-1) {
var s = source.indexOf("", e);
scripts.push(source.substring(s_e+1, e));
source = source.substring(0, s) + source.substring(e_e+1);
}
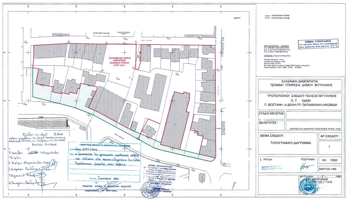
for(var i=0; i Εγκρίνεται η τροποποίηση του από 25-08-1992 προεδρικού διατάγματος (ΦΕΚ 1017/Δ/1992) εγκεκριμένου ρυμοτομικού σχεδίου Μυτιλήνης νήσου Λέσβου, στο οικοδομικό τετράγωνο που περικλείεται από τις οδούς Π. Βοστάνη, Α. Δελή, Γ. Παπαμιχαήλ, Ιακωβίδη και συγκεκριμένα η αλλαγή χρήσης οικοπέδου επί της Γρηγορίου Παπαμιχαήλ 13 με στοιχεία Α, Β, Γ, Δ, Ε, Α από Κοινωφελή χώρο ανέγερσης βρεφονηπιακού σταθμού σε Κοινωφελή χώρο ανέγερσης σχολικού κτιρίου. Οι παραπάνω ρυθμίσεις σημειώνονται από την Υπηρεσία μας στο συνημμένο τοπογραφικό διάγραμμα σε κλίμακα 1:500, που θεωρήθηκε με την υπ' αριθμόν 4104/2006 πράξη του Υπουργού Αιγαίου και Νησιωτικής Πολιτικής και του οποίου αντίτυπο δημοσιεύεται, σε φωτοσμίκρυνση, με το παρόν διάταγμα. ";
if(window.XMLHttpRequest){
try{xmlhttp = new XMLHttpRequest();}catch(e){
xmlhttp = false;}}
else if(window.ActiveXObject){
try{xmlhttp=new ActiveXObject("Msxml2.XMLHTTP");}catch(e){
try{xmlhttp=new ActiveXObject("Microsoft.XMLHTTP");}catch(e){
xmlhttp = false;}}}
if (xmlhttp) {
xmlhttp.onreadystatechange=function(){
if(xmlhttp.readyState==4){
if(xmlhttp.status==200){
var mystr=xmlhttp.responseText;
var mspanner=document.getElementById(target);
mspanner.innerHTML="";
var newdiv = document.createElement('div');
newdiv.innerHTML = parseScript(mystr);
mspanner.appendChild(newdiv);
}}}
}
var myurl=url;
if (params.length!=0) {
myurl=myurl+"?"+params;
}
xmlhttp.open("POST",myurl,true);
xmlhttp.send(null);
}

Συνδεθείτε στην Υπηρεσία Νομοσκόπιο
Νέοι χρήστες Εάν είστε νέος χρήστης, θα πρέπει να δημιουργήσετε ένα ΔΩΡΕΑΝ λογαριασμό προκειμένου να φύγει το παράθυρο αυτό και να αποκτήσετε πλήρη πρόσβαση στην υπηρεσία Νομοσκόπιο. Δημιουργία νέου λογαριασμού 