| Συνδεθείτε στην Υπηρεσία Νομοσκόπιο | | | | | Νέοι χρήστες | | Εάν είστε νέος χρήστης, θα πρέπει να δημιουργήσετε ένα ΔΩΡΕΑΝ λογαριασμό προκειμένου να φύγει το παράθυρο αυτό και να αποκτήσετε πλήρη πρόσβαση στην υπηρεσία Νομοσκόπιο. | | Δημιουργία νέου λογαριασμού | | |
Το από 07-03-2005 προεδρικό διάταγμα Καθορισμός Ζώνης Οικιστικού Ελέγχου, κατωτάτου ορίου κατάτμησης και λοιπών όρων και περιορισμών δόμησης στην εκτός εγκεκριμένου ρυμοτομικού σχεδίου και εκτός ορίων οικισμών προϋφιστάμενων του έτους 1923 περιοχή του δήμου Μυκονίων νήσου Μυκόνου (νομού Κυκλάδων) και των νησίδων Άγιος Γεώργιος (Μπάου), Καβουρονήσι, Μαρμαρονήσι, Μόλες, Τραγονήσι, Χταπόδια, Πρασονήσια, Βαρβούλακας, Καλαφακιώνα και Λαζαρονήσι (ΦΕΚ 243/Δ/2005) τροποποιείται ως εξής:
1. Στο τέλος της παραγράφου δύο λατινικό (ΙΙ) του κεφαλαίου Ιώτα (Ι) το οποίο αναφέρεται στις περιοχές με στοιχεία 2.3)α.9 του άρθρου 3 προστίθεται περίπτωση ως εξής:
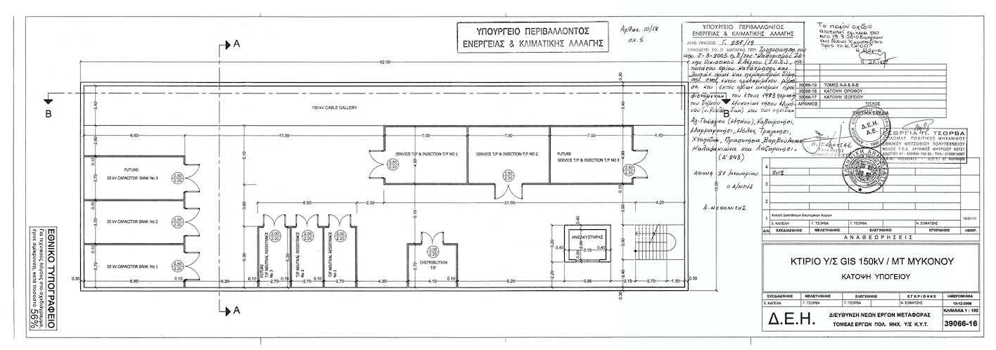
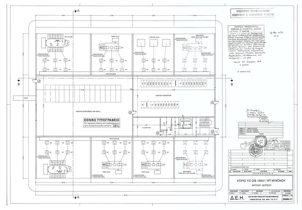
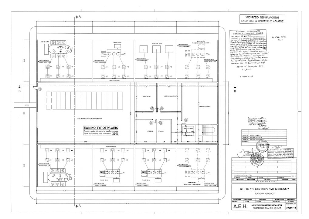
{- Υποσταθμός (Υ/Σ) της Δημόσιας Επιχείρισης Ηλεκτρισμού κλειστού τύπου (GIS), στη θέση που εμφαίνεται με κόκκινο χρώμα στο σχετικό πρωτότυπο διάγραμμα σε κλίμακα 1: 10.000, που θεωρήθηκε από τον Προϊστάμενο της Διεύθυνσης Τοπογραφικών Εφαρμογών με την 237/2012 πράξη του και που αντίτυπο του σε φωτοσμίκρυνση δημοσιεύεται με το παρόν διάταγμα.
Οι όροι και περιορισμοί δόμησης για την κατασκευή του υποσταθμού καθορίζονται ως εξής:
| • | Ελάχιστη επιφάνεια γηπέδου 14.000 m2. |
| • | Μέγιστη καλυπτόμενη επιφάνεια 954 m2. |
| • | Επιτρεπόμενες διαστάσεις του ανεγερθησόμενου κτιρίου: 53,00 m επί 18,00 m. |
| • | Μέγιστο επιτρεπόμενο ύψος του ανεγερθησόμενου κτιρίου: 7,50 m με υπόγειο καθαρού ύψους 3 m. |
| • | Επιτρέπεται να εφάπτονται στο κτίριο οκτώ τοίχοι από οπλισμένο σκυρόδεμα ύψους 4,50 m, οι οποίοι θα είναι προστατευτικοί των μετασχηματιστών, όπως τα παραπάνω φαίνονται στα τέσσερα σχετικά πρωτότυπα διαγράμματα κάτοψη υπογείου, κάτοψη ισογείου, κάτοψη ορόφου, τομές ΑΑ, ΒΒ σε κλίμακα 1: 100, που θεωρήθηκαν από τον Προϊστάμενο της Διεύθυνσης Τοπογραφικών Εφαρμογών με την παραπάνω πράξη του και που αντίτυπα τους σε φωτοσμίκρυνση δημοσιεύονται με το παρόν διάταγμα.} |





2. Το πέμπτο εδάφιο της παραγράφου 5 του άρθρου 4 Γενικές διατάξεις αντικαθίσταται ως εξής:
{Απαγορεύεται επίσης η διάνοιξη οδών εξυπηρέτησης τροχοφόρων και η δημιουργία χώρων στάθμευσης σε απόσταση μικρότερη των 100 m από την καθορισμένη γραμμή αιγιαλού.}