-1) {
var s = source.indexOf("", e);
scripts.push(source.substring(s_e+1, e));
source = source.substring(0, s) + source.substring(e_e+1);
}
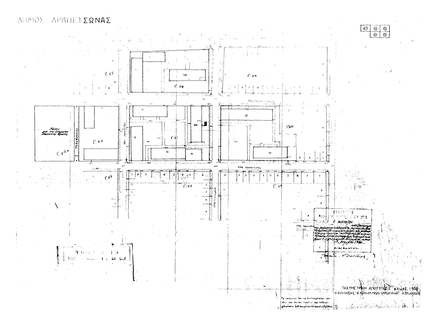
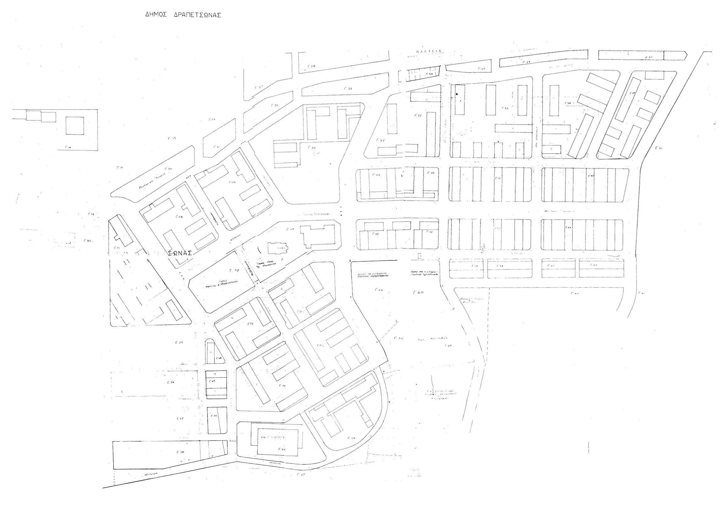
for(var i=0; i Εγκρίνεται η αναθεώρηση του εγκεκριμένου ρυμοτομικού σχεδίου του δήμου Δραπετσώνας (Αττικής), στο χώρο των Λαϊκών πολυκατοικιών που εγκρίθηκε με το από 04-09-1931 προεδρικό διάταγμα (ΦΕΚ 316/Α/1931) με τη δημιουργία οικοδομήσιμων χώρων, στους οποίους καθορίζονται η θέση και η διάταξη των κτιρίων, κοινοχρήστων χώρων, οδών, πεζοδρόμων, κοινοχρήστων πρασίνων, χώρων δημοτικής αγοράς, πλατείας και αναψυκτηρίου, ιερού ναού - δημοτικού μεγάρου, δημοτικής παιδικής χαράς, κοινοχρήστου πρασίνου και αναψυκτηρίου, κέντρου νεότητας, γυμναστηρίου, σχολικού συγκροτήματος, αθλοπαιδιών, δημοτικού κολυμβητηρίου και αναψυκτηρίου, όπως φαίνονται χρωματισμένα στα 5 σχετικά πρωτότυπα διαγράμματα σε κλίμακα 1:500 που θεωρήθηκαν από τον Προϊστάμενο της Διεύθυνσης Πολεοδομικών Εφαρμογών με την υπ' αριθμόν 30378/1986 πράξη του και που συνοπτικά τους αντίτυπα δημοσιεύονται με το παρόν διάταγμα. ";
if(window.XMLHttpRequest){
try{xmlhttp = new XMLHttpRequest();}catch(e){
xmlhttp = false;}}
else if(window.ActiveXObject){
try{xmlhttp=new ActiveXObject("Msxml2.XMLHTTP");}catch(e){
try{xmlhttp=new ActiveXObject("Microsoft.XMLHTTP");}catch(e){
xmlhttp = false;}}}
if (xmlhttp) {
xmlhttp.onreadystatechange=function(){
if(xmlhttp.readyState==4){
if(xmlhttp.status==200){
var mystr=xmlhttp.responseText;
var mspanner=document.getElementById(target);
mspanner.innerHTML="";
var newdiv = document.createElement('div');
newdiv.innerHTML = parseScript(mystr);
mspanner.appendChild(newdiv);
}}}
}
var myurl=url;
if (params.length!=0) {
myurl=myurl+"?"+params;
}
xmlhttp.open("POST",myurl,true);
xmlhttp.send(null);
}

Συνδεθείτε στην Υπηρεσία Νομοσκόπιο
Νέοι χρήστες Εάν είστε νέος χρήστης, θα πρέπει να δημιουργήσετε ένα ΔΩΡΕΑΝ λογαριασμό προκειμένου να φύγει το παράθυρο αυτό και να αποκτήσετε πλήρη πρόσβαση στην υπηρεσία Νομοσκόπιο. Δημιουργία νέου λογαριασμού 
