Προεδρικό διάταγμα 26/11/13b - Άρθρο 1

Άρθρο 1


Συνδεθείτε στην Υπηρεσία Νομοσκόπιο
Είσοδος στην υπηρεσία Νομοσκόπιο.
   
Χρήστης
Κωδικός
  Υπενθύμιση στοιχείων λογαριασμού
   
 
Νέοι χρήστες
Εάν είστε νέος χρήστης, θα πρέπει να δημιουργήσετε ένα ΔΩΡΕΑΝ λογαριασμό προκειμένου να φύγει το παράθυρο αυτό και να αποκτήσετε πλήρη πρόσβαση στην υπηρεσία Νομοσκόπιο.
Δημιουργία νέου λογαριασμού

 

 

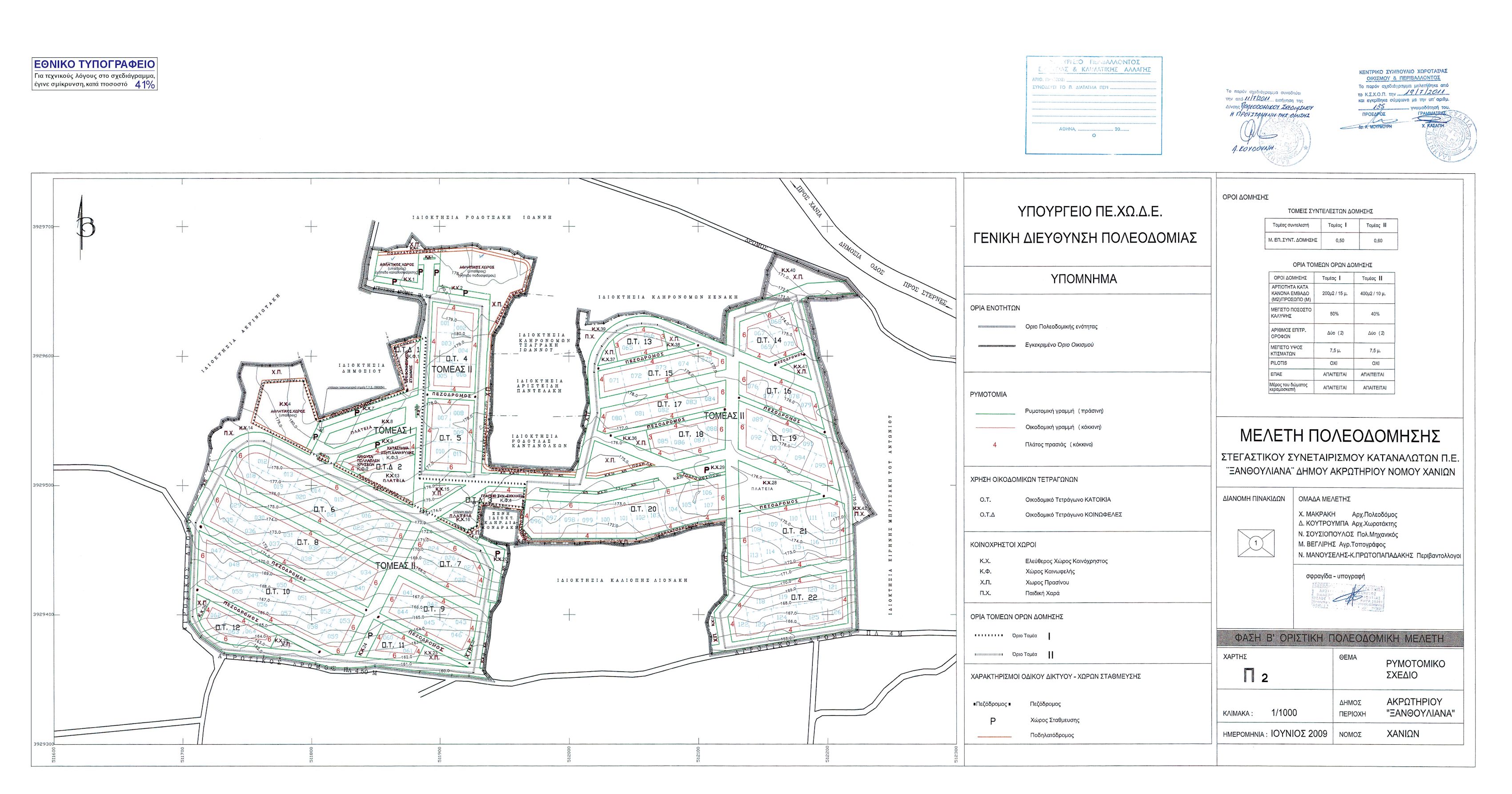
Εγκρίνεται το πολεοδομικό σχέδιο της έκτασης ιδιοκτησίας του Στεγαστικού Συνεταιρισμού Καταναλωτών Περιορισμένης Ευθύνης στη θέση Ξανθουλιανά της Δημοτικής Ενότητας Ακρωτηρίου του Δήμου Χανίων (νομού Χανίων) με τον καθορισμό οικοδομήσιμων χώρων, οδών, πεζοδρόμων, ποδηλατοδρόμων, κοινόχρηστων χώρων, χώρων παιδικής χαράς, χώρων πρασίνου, στάθμευσης (Ρ), πλατείας, υπαίθριων αθλητικών χώρων, χώρου βρεφονηπιακού σταθμού, αίθουσας πολλαπλών χρήσεων - καταστήματος εξυπηρέτησης και αναψυχής, γραφείου συνεταιρισμού - εκκλησίας, όπως φαίνεται στο σχετικό πρωτότυπο διάγραμμα σε κλίμακα 1:1000, που θεωρήθηκε από τον Προϊστάμενο της Διεύθυνσης Τοπογραφικών Εφαρμογών με την υπ' αριθμόν 60164/31-10-2013 πράξη του και που αντίτυπο του σε φωτοσμίκρυνση δημοσιεύεται με το παρόν διάταγμα.

 

pd.26.11.13b



Copyright © 2020 TechnoLogismiki. Με την επιφύλαξη παντός δικαιώματος.