| Συνδεθείτε στην Υπηρεσία Νομοσκόπιο | | | | | Νέοι χρήστες | | Εάν είστε νέος χρήστης, θα πρέπει να δημιουργήσετε ένα ΔΩΡΕΑΝ λογαριασμό προκειμένου να φύγει το παράθυρο αυτό και να αποκτήσετε πλήρη πρόσβαση στην υπηρεσία Νομοσκόπιο. | | Δημιουργία νέου λογαριασμού | | |
Εγκρίνεται:
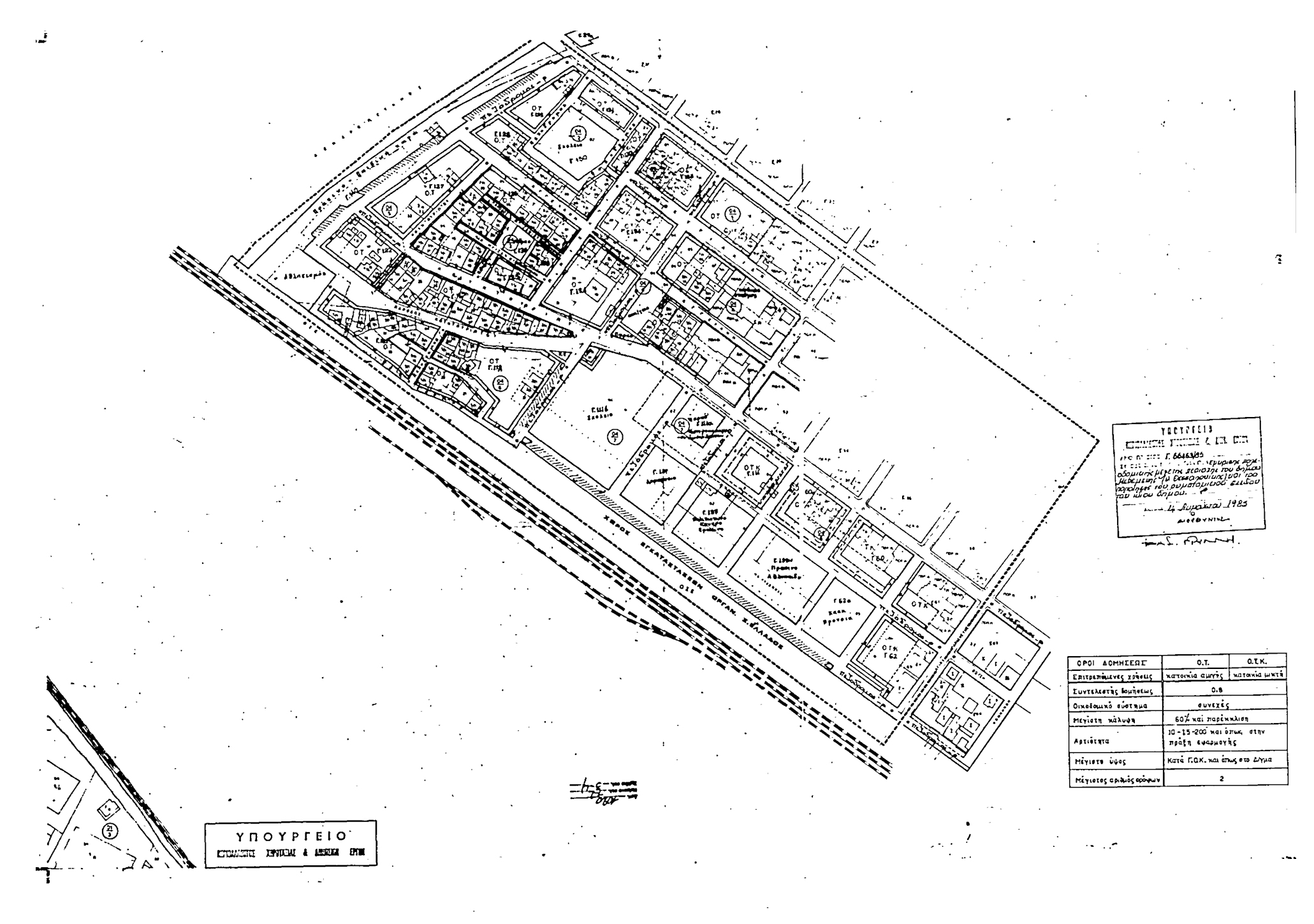
1. η τροποποίηση του εγκεκριμένου ρυμοτομικού σχεδίου του δήμου Μενεμένης (Θεσσαλονίκης) στα οικοδομικά τετράγωνα 39 με τον καθορισμό τμήματός του ως χώρου για παιδικό σταθμό, 64, 65, στα οικοδομικά τετράγωνα της οδού Κουντουριώτου, με τη δημιουργία πεζοδρόμων καθώς και ο αποχαρακτηρισμός του χώρου σχολείου που χαρακτηρίστηκε με την υπ' αριθμόν Γ35375/1978 (ΦΕΚ 168/Δ/1979) απόφαση του Υπουργού Δημοσίων Έργων με τη μετατροπή του σε πάρκο, οικοδομικό τετράγωνο, πεζοδρόμους και κοινόχρηστους χώρους.
2. Το πολεοδομικό σχέδιο περιοχής του δήμου Μενεμένης (Θεσσαλονίκης) που έχει χαρακτηρισθεί ως πυκνοδομημένη με την υπ' αριθμόν 59964/2514/1985 απόφαση του Υπουργού Περιβάλλοντος Χωροταξίας και Δημοσίων Έργων για την οποία έχει κινηθεί διαδικασία του Γενικού Πολεοδομικού Σχεδίου με την υπ' αριθμόν 26249/926/1985 απόφαση του Υπουργού Χωροταξίας Οικισμού και Περιβάλλοντος με τον καθορισμό οικοδομήσιμων χώρων, κοινοχρήστων χώρων, χώρων σχολείων, χώρου αθλητισμού, παιδικής χαράς - πρασίνου, χώρου νηπιαγωγείου, χώρου δημαρχείου, χώρου πολιτιστικού κέντρου - πρασίνου, χώρου αθλοπαιδιών - πρασίνου, Κέντρου Ανοιχτής Προστασίας Ηλικιωμένων (ΚΑΠΗ) - πρόνοιας, πεζοδρόμων, χώρων στάθμευσης αυτοκινήτων,
όπως οι ρυθμίσεις αυτές φαίνονται στο χρωματισμένο σχετικό πρωτότυπο διάταγμα σε κλίμακα 1:1.000 που θεωρήθηκε από τον Προϊστάμενο της Διεύθυνσης Πολεοδομικών Εφαρμογών με την υπ' αριθμόν 66463/1985 πράξη του και που συνοπτικό του αντίτυπο δημοσιεύεται με το παρόν διάταγμα.
