| Συνδεθείτε στην Υπηρεσία Νομοσκόπιο | | | | | Νέοι χρήστες | | Εάν είστε νέος χρήστης, θα πρέπει να δημιουργήσετε ένα ΔΩΡΕΑΝ λογαριασμό προκειμένου να φύγει το παράθυρο αυτό και να αποκτήσετε πλήρη πρόσβαση στην υπηρεσία Νομοσκόπιο. | | Δημιουργία νέου λογαριασμού | | |
1. Γενικά.
Ο εργαστηριακός έλεγχος έχει σκοπό τη διαπίστωση των χαρακτηριστικών ιδιοτήτων του ελεγχομένου τσιμέντου, που αναφέρονται στο άρθρο 5 του παρόντος Κανονισμού. Οι σχετικές εργαστηριακές δοκιμές εκτελούνται σύμφωνα με τα καθοριζόμενα στις επόμενες παραγράφους του παρόντος άρθρου.
2. Προέλεγχος.
2.1. Κοσκίνισμα ποσότητας 100 g από κόσκινο ανοίγματος βροχίδων 0,2 mm.
2.2. Οπτική εκτίμηση υπάρξεως συσσωματωμάτων ή ξένων υλών στο υπόλειμμα, που συγκρατήθηκε στο κόσκινο.
2.3. Σε περίπτωση συσσωματωμάτων:
| • | κοσκίνισμα της όλης ποσότητας του δείγματος από κόσκινο ανοίγματος βροχίδων 0,8 mm. |
| • | αναγραφή στα πρακτικά της εκατοστιαίας αναλογίας συσσωματωμάτων. |
| • | εκτέλεση των δοκιμών του κανονισμού στο διερχόμενο κλάσμα. |
2.4. Σε περίπτωση υπάρξεως ξένων υλών:
| • | Αναγράφεται στο πρακτικό η ποσότητα και το είδος των ξένων υλών. |
| • | Αν ζητηθεί, εκτελείται χημική ανάλυση και μικροσκοπική εξέταση των ξένων υλών. |
| • | Εκτελούνται οι δοκιμές του Κανονισμού, εφ' όσον η ανάλυση δεν αφήνει να διαφανεί ότι οι ξένες ύλες θα έχουν επιβλαβή επίδραση και τη χρήση του τσιμέντου. |
3. Χώρος δοκιμών.
3.1. Ο χώρος παρασκευής κανονικού τσιμεντοπολτού πρέπει να ανταποκρίνεται στις κάτωθι απαιτήσεις:
Θερμοκρασία 20° ± 2° C.
Σχετική υγρασία όχι μικρότερη του 65%.
Ο χώρος συντηρήσεως του κανονικού τσιμεντοπολτού κατά τη δοκιμή πήξεως πρέπει να ανταποκρίνεται στις κάτωθι απαιτήσεις:
Θερμοκρασία 20° ± 2° C.
Σχετική υγρασία όχι μικρότερη του 90%.
Όλα τα χρησιμοποιούμενα όργανα και σκεύη, όπως επίσης και το νερό πρέπει να έχουν τη θερμοκρασία του χώρου.
3.2. Ο χώρος παρασκευής δοκιμίων για μηχανικές δοκιμασίες πρέπει να ανταποκρίνεται στις κάτωθι απαιτήσεις:
Θερμοκρασία 20° ± 2° C.
Σχετική υγρασία όχι μικρότερη του 65%.
3.3. Ο χώρος συντηρήσεως των δοκιμίων για μηχανικές αντοχές μέχρι του ξεκαλουπώματος πρέπει να ανταποκρίνεται στις κάτωθι απαιτήσεις:
Θερμοκρασία 20° ± 2° C.
Σχετική υγρασία όχι μικρότερη του 90%.
3.4. Για τις άλλες δοκιμές ισχύουν οι συνήθεις προϋποθέσεις χημικού εργαστηρίου.
4. Μηχανικές δοκιμασίες τσιμέντου.
4.1. Προσδιορισμός αντοχής σε θλίψη και κάμψη.
4.1.1. Σκοπός.
Η μέθοδος αυτή καθορίζει τρόπο προσδιορισμού αντοχών πλαστικών κονιαμάτων τσιμέντου σε θλίψη και κάμψη.
4.1.2. Υλικά.
4.1.2.1. Πρότυπη άμμος.
Η πρότυπη άμμος πρέπει να είναι φυσική, στρογγυλεμένη, πυριτική άμμος (της μέγιστης δυνατής περιεκτικότητας σε χαλαζία, ιδίως στο λεπτό της κλάσμα).
Η άμμος πρέπει να αποτελείται από τρία κλάσματα:
Λεπτό (0/0,5), μέσο (0,5/1) και χονδρό (1/2), που διαχωρίζονται με τα κόσκινα των 0,5 και 1,0 mm.
H κοκκομετρική διαβάθμιση των τριών κλασμάτων (χονδρού, μέσου και λεπτού) πρέπει να είναι τέτοια, ώστε αναμιγνύονται ίσα βάρη των κλασμάτων να επιτυγχάνεται σύνθεση της άμμου που να ευρίσκονται μέσα στα όρια που δίνονται στον Πίνακα 2.
Πίνακας 2
Άνοιγμα κοσκίνου με τετράγωνες οπές mm
|
Συγκροτούμενα ποσοστά %
|
Αντίστοιχο κλάσμα της άμμου
|
0,08
0,15
|
98 ± 2
88 ± 5
|
Λεπτό
|
0,50
|
67 ± 5
|
Μέσο
|
1,00
1,70
2,00
|
33 ± 5
5 ± 5
0
|
Χοντρό
|
Μέχρις αποκτήσεως ελληνικής προτύπου άμμου καθορίζεται σαν πρότυπη άμμος των Ελληνικών Κανονισμών ή Γαλλική άμμος AFNOR NF P 15-403.
Σαν άμμος διαιτησίας θα χρησιμοποιείται η ίδια άμμος NF P 15-403.
H κοκκομετρική ανάλυση της άμμους πρέπει να γίνεται σε αντιπροσωπευτικό δείγμα άμμου 100 g. Τόσο η άμμος. όσο και τα κόσκινα ελέγχου πρέπει να είναι τελείως στεγνά. Το κοσκίνισμα συνεχίζεται μέχρις ότου το διερχόμενο ποσό της άμμου από κάθε κόσκινο να είναι μικρότερο από 0,5 g στο λεπτό.
Τα αποτελέσματα δίνονται υπό μορφή καμπύλης, όπως στο διάγραμμα του σχήματος 1, με τετμημένη το άνοιγμα των κόσκινων που χρησιμοποιήθηκαν σε λογαριθμική κλίμακα.

Σχήμα 1: Πρότυπη άμμος - κοκκομετρική διαβάθμιση
4.1.2.2. Σύνθεση του κονιάματος.
Οι κατά βάρος αναλογίες πρέπει να είναι: ένα μέρος του από δοκιμή τσιμέντου, τρία μέρη τελείως στεγνής άμμου και μισό μέρος πόσιμου νερού (λόγος νερό / τσιμέντο = 0,5).
4.1.2.3. Προετοιμασία του κονιάματος.
Για την κατασκευή τριών δοκιμίων, κάθε φορά πρέπει να αναμιγνύονται: 450 g άμμος και 225 g νερό. Εάν η άμμος δίνεται σε τρία κλάσματα, τότε ζυγίζονται διαδοχικά ποσά 450 g από το τσιμέντο και από κάθε ένα από τα κλάσματα της άμμου, δηλαδή, χονδρό, μέσο και λεπτό. Η ακρίβεια της ζυγίσεως πρέπει να είναι 0,5%. Η ανάμιξη πρέπει να γίνεται με το μηχανικό αναμικτήρα, που παριστάνεται από Σχήμα 2. Για την παρασκευή του κονιάματος, η θερμοκρασία του τσιμέντου, του νερού, της άμμου και του περιβάλλοντος καθώς και των συσκευών πρέπει να είναι 20° ± 2° C.
Η σχετική υγρασία του αέρος στην αίθουσα του εργαστηρίου πρέπει να μην είναι μικρότερη από 65%.
4.1.3. Εξοπλισμός
4.1.3.1. Μηχανή αναμίξεως (μηχανικός αναμικτήρας)
Ο ηλεκτρονικός αναμικτήρας αποτελείται βασικά από:
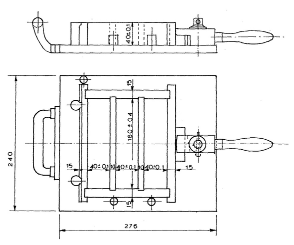
α) Υποδοχέα από ανοξείδωτο χάλυβα, χωρητικότητας περίπου 4,7 Lt, του οποίου το σχήμα και οι διαστάσεις δίνονται στο Σχήμα 2. Ο υποδοχέας φέρνει κατάλληλη διάταξη, με την οποία προσαρμόζεται σταθερά στο πλαίσιο του αναμικτήρα, όταν γίνεται η ανάμιξη και
β) Μίκτρο του οποίου ο τύπος και οι διαστάσεις φαίνονται στο Σχήμα 2, και που εκτελεί δύο κινήσεις μιας γύρω από τον άξονά του και μιας πλανητικής στην περιφέρεια του υποδοχέα, με τη βοήθεια ενός κινητήρα με ελεγχόμενη ταχύτητα. Οι δύο φορές περιστροφής πρέπει να είναι αντίθετες και ο λόγος μεταξύ των δύο ταχυτήτων να μην είναι ακέραιος αριθμός

Σχήμα 2: Υποδοχέας και μίκτρο του μηχανικού αναδευτήρα (διαστάσεις σε mm)
Κατά τη διάρκεια της αναμίξεως, πρέπει να τηρούνται οι κάτωθι ταχύτητες, που δίνονται στον Πίνακα 3.
Πίνακας 3
Ταχύτητες
|
Στροφές μίκτρου / λεπτό (r/min)
|
Στροφές της πλανητικής κινήσεως / λεπτό (r/min)
|
Χαμηλή ταχύτητα
|
140 ± 5
|
62 ± 5
|
Υψηλή ταχύτητα
|
285 ± 10
|
125 ± 10
|
4.1.3.2. Μήτρες (καλούπια)
Οι μήτρες κατασκευάζονται από σκληρό χάλυβα (σκληρότητα Κατά Vickers > 400) και πρέπει να είναι τρίδυμες, για να είναι δυνατή η κατασκευή τριών δοκιμίων ταυτόχρονα. Ένα τυπικό σχέδιο εικονίζεται στο Σχήμα 3.
Οι εσωτερικές τους διαστάσεις, σε mm, πρέπει να είναι:

Σχήμα 3: Μήτρα για τρία πρίσματα (διαστάσεις σε mm)
Τα τοιχώματα της μήτρας πρέπει να έχουν τουλάχιστον πάχος 10 mm.
Οι δυο απέναντι εσωτερικές (πλευρικές) επιφάνειες των 40 mm x 160 mm πρέπει να είναι επίπεδες με ακρίβεια 0,01 mm, και η γωνία μεταξύ αυτών και της βάσεως της μήτρας πρέπει να είναι 90° ± 0,5°. Όταν οι διαστάσεις και το σχήμα των μητρών διαφέρουν από τα προδιαγραφόμενα κατά το διπλάσιο της επιτρεπόμενης ανοχής, σε κάθε διάσταση, οι μήτρες αντικαθίστανται.
Η μήτρα τοποθετείται πάνω σε χαλύβδινη βάση, η οποία έχει κατεργαστεί μηχανουργικά και στερεώνεται καλά με σύσφιξη. Πάνω στη μήτρα τοποθετείται ένα μεταλλικό πλαίσιο (παρέκταμα) με κατακόρυφες πλευρές ύψους 20 - 40 mm, που να μην υπερκαλύπτει τα εσωτερικά τοιχώματα της μήτρας, άνω του 1 mm.
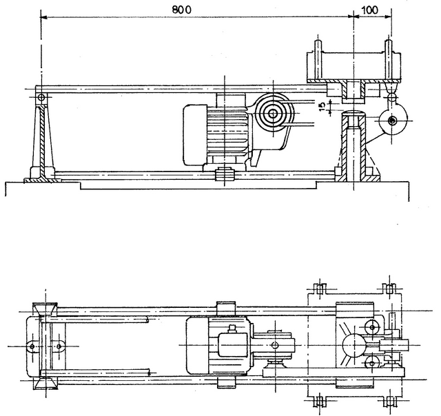
4.1.3.3. Συσκευή συμπύκνωσης με κρούση
Συσκευή φαίνεται στο Σχήμα 4 και αποτελείται βασικά από μια ορθογώνια πλάκα, στερεά συνδεδεμένη με δυο ελαφρούς βραχίονες (μπράτσα) σε ένα άξονα και σε μια οριζόντια απόσταση 80 cm από το κέντρο της πλάκας. Η μάζα των μπράτσων, που συγκρατούν την πλάκα, πρέπει να είναι 1 ± 0,3 kg. Στην κατώτερη επιφάνεια της πλάκας είναι ενσωματωμένη και προεξέχει μια διάταξη προσκρούσεως, με επίπεδη όψη, κάτω από την οποία υπάρχει ένα μικρό στοπ με στρογγυλεμένη την άνω επιφάνειά του.
Όταν η διάταξη προσκρούσεως εφάπτεται στο στοπ, η επίπεδη επιφάνειά της και εκείνη της πλάκας πρέπει να είναι οριζόντιες. Με τη βοήθεια ενός έκκεντρου, κατασκευασμένου από σκληρό χάλυβα (σκληρότητα κατά Vickers > 500) ή από επιφανειακά ενανθρακωμένο χάλυβα, η πλάκα ανυψώνεται, σε συνέχεια αφήνεται να πέσει ελεύθερα από ύψος 15 mm, και κτυπάει με τη διάταξη προσκρούσεως στο στοπ.
Με τη βοήθεια ενός ηλεκτρικού κινητήρα των 250 Watt περίπου και ενός μειωτή, το έκκεντρο κινείται με ταχύτητα 1 στροφή/sec. Συνιστάται να είναι ο κινητήρας εφοδιασμένος με διάταξη αυτόματου σταματήματος, μετά από 60 κτυπήματα.
Η μήτρα τοποθετείται πάνω στην πλάκα με τέτοιο τρόπο, ώστε το μήκος των διαμερισμάτων της να είναι κάθετο στον άξονα περιστροφής του έκκεντρου. Η μήτρα πρέπει να τοποθετείται στην πλάκα με τη βοήθεια καταλλήλων σημείων αναφοράς, έτσι ώστε το κέντρο του κεντρικού διαμερίσματος να βρίσκεται ακριβώς πάν από το σημείο κρούσεως. Η μήτρα με το παρέκταμά της, πρέπει να συνδέεται σταθερά στην πλάκα π.χ. με κατάλληλους κοχλίες.

Σχήμα 4: Συσκευή συμπύκνωσης με κρούση
Το συνολικό βάρος της πλάκας, της μήτρας, του παρεκτάματος και των μέσων συσφίξεως, πρέπει να ανέρχεται σε 20 ± 1 kg. Η συσκευή πρέπει να εδραστεί σε μια βάση από σκυρόδεμα μήκους 1 m, πλάτους 30 cm και ύψους 80 cm. Οι πλάκες της βάσεως των δυο πλαισίων, που συγκρατούν το έκκεντρο και τον άξονα, γύρω από τον οποίο η πλάκα κινείται, πρέπει να στερεωθούν στην από σκυρόδεμα βάση με τη βοήθεια τεσσάρων μπουλονιών αγκυρώσεως. Όταν σταθεροποιηθούν αυτά πρέπει να διαστρωθεί, ανάμεσα στις πλάκες της βάσεως και στην από σκυρόδεμα βάση, ένα λεπτό στρώμα από πλούσιο κονίαμα, έτσι ώστε να εξασφαλίζεται τέλεια επαφή.
Για τη μείωση του θορύβου ή από σκυρόδεμα βάση πρέπει να τοποθετηθεί πάνω σε τέσσερα ελαστικά προσκέφαλα διαστάσεων 10 cm x 10 cm x 1 cm. H πλάκα σε ηρεμία πρέπει να είναι οριζόντια και ο κοινός άξονας, ο οποίος περνάει από το σημείο επαφής της διατάξεως προσκρούσεως και του στοπ, πρέπει να είναι κατακόρυφος.
Η επιφάνεια κρούσεως της διατάξεως προσκρούσεως και του στοπ πρέπει να αντικατασταθούν μόλις οι παραπάνω συνθήκες δεν ικανοποιούνται.
Στους άξονες πρέπει να χρησιμοποιούνται τριβείς με μπίλιες, γύρω από τους οποίους η πλάκα και το έκκεντρο περιστρέφονται. Αν χρησιμοποιούνται λεία κουζινέτα το παίξιμο (ανοχή) των αξόνων σε αυτά δεν πρέπει να ξεπερνά το 0,1 mm.
4.1.3.4. Μηχανή ελέγχου αντοχής σε κάμψη.
Η μηχανή ελέγχου της αντοχής σε κάμψη πρέπει να έχει τη δυνατότητα εφαρμογής φορτίων μικρότερων των 10 kN (1.000 Kg f) με ακρίβεια 1% στην περιοχή των τελευταίων 4/5 της κλίμακας της. Η μηχανή θα είναι εφοδιασμένη με διάταξη κάμψεως, η οποία φέρει δυο κυλινδρικά στηρίγματα διαμέτρου 10 mm σε απόσταση μεταξύ των 100 mm και τρίτο κύλινδρο φορτίσεως της ίδιας διαμέτρου τοποθετημένο κεντρικά μεταξύ των δυο άλλων.
Τα τρία κατακόρυφα επίπεδα, που διέρχονται από τους άξονες των τριών κυλίνδρων, πρέπει να είναι και να παραμένουν παράλληλα και σε ίσες αποστάσεις σε όλη την διάρκεια της δοκιμής. Ένας από τους κυλίνδρους στηρίξεως όπως και ο κύλινδρος φορτίσεως πρέπει να έχουν την δυνατότητα της ελαφράς περιστροφής, σε σχέση με τα κέντρα ανυψώσεως τους, που να επιτρέπει την ομοιόμορφη κατανομή του φορτίου κατά πλάτος του πρίσματος χωρίς το δοκίμιο να υπόκειται σε καταπόνηση στρέψεως.
3.1.3.5. Μηχανή ελέγχου αντοχής σε θλίψη και βοηθητικά εξαρτήματα.
Για τον έλεγχο αντοχών σε θλίψη κάθε μισό πρίσμα μήκους μεγαλύτερου των 40 mm, που λαμβάνεται από τον έλεγχο σε κάμψη τοποθετείται ανάμεσα σε δυο τετράγωνες πλάκες από σκληρό μέταλλο, διαστάσεων, τουλάχιστον 10 mm πάχους, πλευράς 40 ± 0,1 mm και επιπεδότητας της τάξεως του 0,01 mm (πλάκες θραύσεως δοκιμίων). Οι πλάκες αυτές είναι από σκληρό χάλυβα με σκληρότητα κατά Vickers τουλάχιστο 600 ή, κατά προτίμηση, από καρβίδιο βολφραμίου (tungsten carbide).
Η μηχανή θραύσεως πρέπει να έχει ακρίβεια τουλάχιστο 1,5% για τα πιο μικρά φορτία, που χρησιμοποιούνται κατά τις δοκιμές.

Σχήμα 5: Διάταξη θραύσεως σε θλίψη
Η μηχανή αυτή πρέπει να είναι εφοδιασμένη τουλάχιστο με δυο κλίμακες φορτίσεως, μιας των 4 μέχρι 5 ton και άλλης των 15 μέχρι 25 ton. Η πάνω πλάκα της πρέπει να αρθρώνεται με σφαιρική έδραση, της οποίας το κέντρο να αντιστοιχεί στο κέντρο του επίπεδου της κάτω πλάκας.
Όταν η μηχανή θραύσεως είναι εφοδιασμένη με πλάκες συμπιέσεως, των οποίων η διάμετρος δεν είναι μεγαλύτερη από 10 cm και έχει σφαιρική άρθρωση διαμέτρου όχι μεγαλύτερης από 6 cm, οι πλάκες θραύσεως των δοκιμίων μπορούν απλώς να στερεωθούν επάνω στις πλάκες συμπιέσεως της μηχανής και να κεντραριστούν σ' αυτές και στον άξονα του υπό δοκιμή τεμαχίου.
Οι πλάκες πρέπει να μπορούν να παίρνουν την κατάλληλη θέση χωρίς αισθητή τριβή ώστε να διατηρούν την ίδια οριζόντια προβολή κατά την διάρκεια της δοκιμής.
Μια από αυτές μπορεί ελαφρώς να κλίνει με σκοπό να επιτρέπει τέλεια επαφή με το δοκίμιο.
Οι παραπάνω συνθήκες μπορούν εύκολα να επιτυγχάνεται με ειδική διάταξη θραύσεως, η οποία τοποθετείται μεταξύ των πλακών της μηχανής θλίψεως (Σχήμα 5).
Η ειδική αυτή διάταξη θραύσεως χρησιμοποιείται οπωσδήποτε, στην περίπτωση που οι πλάκες και η σφαιρική έδραση της μηχανής θλίψεως είναι μεγαλύτερες από αυτές, που αναφέρονται παραπάνω. Η διάταξη αυτή διευκολύνει τη σωστή μεταφορά του φορτίου της μηχανής στις επιφάνειες φορτίσεως των δοκιμίων του κονιάματος.
Η κάτω πλάκα θραύσεως των δοκιμίων μπορεί να ενσωματωθεί στο κάτω μέρος της διατάξεως, ενώ ή άνω πλάκα δέχεται το φορτίο από την άνω πλάκα της μηχανής θλίψεως, με σφαιρική άρθρωση. Το όλο σύστημα μεταφοράς του φορτίου πρέπει να έχει την ικανότητα, χωρίς σημαντική τριβή, να ολισθαίνει κατακόρυφα και μετά τη θραύση του δοκιμίου να επανέρχεται αυτόματα στην αρχική του θέση.
Η διάταξη θραύσεως πρέπει να διατηρείται καθαρή και η σφαιρική άρθρωση της να μπορεί να περιστρέφεται ελεύθερα, κατά τέτοιο τρόπο, ώστε ή άνω πλάκα θραύσεως να προσαρμόζεται από μόνη της στην επιφάνεια του δοκιμίου και να παραμένει σταθερή κατά τη διάρκεια της δοκιμής.
4.1.4. Τρόπος εργασίας.
4.1.4.1 Ανάμιξη.
Με τον αναμικτήρα στη θέση λειτουργίας:
| • | Ρίχνεται το νερό στον υποδοχέα και προστίθεται το τσιμέντο. |
| • | Ο αναμικτήρας ξεκινά με τη μικρή ταχύτητα (Πίνακας 3) και μετά από 30 sec. Αν τα κλάσματα της άμμου παρέχονται χωριστά, ρίχνονται με τη σειρά: Λεπτό, μέσο, χονδρό στο αυτό χρονικό διάστημα. Ο Αναδευτήρας φέρεται στη μεγάλη ταχύτητα (Πίνακας 3) και η ανάμιξη συνεχίζεται για άλλα 30 sec. |
Σε συνέχεια ο αναμικτήρας σταματά για 1 min και 30 sec. Κατά τη διάρκεια των πρώτων 15 sec. Κατά τη διάρκεια των πρώτων 15 sec, με τη βοήθεια ελαστικής ξύστρας μεταφέρεται στη μέση του υποδοχέα όλο το κονίαμα που έχει επικαθήσει στις πλευρές του. Ο υποδοχέας σκεπάζεται κατά τη διάρκεια των υπόλοιπων 1 min και 15 sec. Μετά συνεχίζεται η ανάμιξη με τη μεγάλη ταχύτητα για 1 min.
4.1.4.2. Γέμισμα των μητρών.
Αμέσως μετά την παρασκευή του κονιάματος γεμίζονται οι μήτρες μηχανικά, με τη βοήθεια της συσκευής συμπυκνώσεως με κρούσεις, όπως περιγράφεται κατωτέρω.
4.1.4.3 Παρασκευή των δοκιμίων.
Οι μήτρες λαδώνονται ελαφρά εσωτερικά και στεγανοποιούνται οι εξωτερικές συνδέσεις τους με μείγμα που αποτελείται από τρία μέρη στερεής παραφίνης και ένα ρητίνης (κολοφωνίου). Η μήτρα με το παρέκταμα στερεώνονται πάνω στη πλάκα της συσκευής συμπυκνώσεως και τοποθετείται μέσα σ' αυτήν, κατ 'ευθείαν από τον αναμικτήρα το πρώτο στρώμα κονιάματος, περίπου 320 g, σε κάθε ένα από τα διαμερίσματα της μήτρας, με τη βοήθεια κουταλιού γνωστής χωρητικότητας. Απλώνεται το στρώμα αυτό με χαλύβδινη σπάτουλα, που σύρεται δυο φορές μπρος πίσω κατά μήκος κάθε διαμερίσματος της μήτρας. Το στρώμα από του κονιάματος υποβάλλεται σε 60 κρούσεις σε χρόνο 60 sec. κατόπιν διαστρώνεται δεύτερο, καθ' όλα όμοιο στρώμα κονιάματος, ισοπεδώνει και συμπυκνώνεται όπως προηγούμενα.
Μετά ο τύπος απομακρύνεται από τη μηχανή διαστρώσεως και αφαιρείται τα παρέκταμά του. Το περίσσευμα του κονιάματος αφαιρείται με μεταλλικό κανόνα, που φέρεται σχεδόν κάθετα και κινείται αργά κατά μήκος της μήτρας με πριονοειδή εγκάρσια κίνηση. Μετά επιπεδώνεται η επιφάνεια με τον ίδιο κανόνα, χρησιμοποιώντας τον σε σχεδόν επίπεδη θέση.
Στη συνέχεια αναγράφονται πάνω στις μήτρες τα στοιχεία αναγνωρίσεως των δοκιμίων.
4.1.4.4. Συντήρηση των δοκιμίων.
Για αποφυγή εξατμίσεως του νερού, οι μήτρες σκεπάζονται με γυάλινη, μεταλλική ή ελαστική πλάκα και τοποθετούνται μέχρι του ξεκαλουπώματος μέσα σε δωμάτιο ή θάλαμο θερμοκρασίας 20ο=1ο C και σχετικής υγρασίας όχι μικρότερης του 90%.
Στην περίπτωση θραύσεως των δοκιμίων σε 24 ώρες, η αφαίρεση από τις μήτρες πρέπει να γίνεται μεταξύ 20 και 24 ωρών μετά την παρασκευή των δοκιμίων. Αν το κονίαμα δεν έχει αποκτήσει ικανοποιητική αντοχή μετά 24 ώρες, για να μπορούν να γίνονται οι διάφοροι χειρισμοί χωρίς κίνδυνο να προξενηθεί ζημιάς στα δοκίμια, η αφαίρεσή τους από τις μήτρες αναβάλλεται επί ένα 24ωρο και το γεγονός αυτό πρέπει να αναγράφεται στο πιστοποιητικό δοκιμασίας. Το ξεκαλούπωμα πρέπει να γίνεται με τις απαιτούμενες προφυλάξεις.
Κάθε δοκίμιο, μετά την αφαίρεση από τη μήτρα, ζυγίζεται και η μάζα του αναγράφεται στην κάτω επιφάνειά του. Η τιμή αυτή αποτελεί έλεγχο του τρόπου εργασίας. Μετά το ξεκαλούπωμα τα δοκίμια πρέπει να συντηρούνται σε νερό πόσιμο 20ο=1ο C μέχρι την ημέρα της δοκιμασίας. Τα δοκίμια τοποθετούνται στο νερό έτσι, ώστε οι κατακόρυφες έδρες τους, που διαμορφώνονται από τα εσωτερικά τοιχώματα της μήτρας, να διατηρούνται ομοίως κατακόρυφες και κατά την συντήρηση και να υπάρχει κάποια απόσταση μεταξύ τους, ώστε να επιτρέπεται η ελεύθερη επαφή του νερού με όλες τις επιφάνειές τους. Το νερό πρέπει να ανανεώνεται κάθε 15 ημέρες.
Τα δοκίμια πρέπει να βγαίνουν από το νερό το πολύ 15 min πριν από τη δοκιμασία. Γι' αυτό πρέπει να μεταφέρονται στη μηχανή ελέγχου μέσα σε δοχείο γεμάτο με νερό. Μετά πρέπει να σκουπίζονται με καθαρό ύφασμα, έτσι ώστε να αφαιρεθούν επικαθίσεις, που μπορεί να έχουν συσσωρευθεί πάνω σ' αυτά.
4.1.4.5. Έλεγχος των δοκιμίων.
4.1.3.5.1 Έλεγχος αντοχής σε κάμψη.
Το πρίσμα πρέπει να τοποθετείται στη μηχανή κάμψεως έτσι ώστε μια από τις πλάγιες έδρες του, που σχηματίσθηκαν από τα τοιχώματα της μήτρας, να πατάει πάνω στους κυλίνδρους στηρίξεως και ο επιμήκης άξονας του να είναι κάθετος σ' αυτούς.
Το φορτίο P πρέπει να εφαρμόζεται κατακόρυφα με τον κύλινδρο φορτίσεως πάνω στην απέναντι παράπλευρη έδρα του πρίσματος και πρέπει να αυξάνει προοδευτικά κατά 50 ± 10 Ν/sec (ή 5 ± 1 kg f/sec).
Η αντοχή σε κάμψη R δίνεται από τον ακόλουθου τύπο:

όπου:
Μ = η ροπή κάμψεως, Μ = PL/4
b = η πλευρά της τετραγωνικής διατομής του πρίσματος
P = το φορτίο ου εφαρμόσθηκε στη μέση του πρίσματος.
L = η απόσταση μεταξύ των στηριγμάτων
Για L = 10 cm και b = 4 cm έχουμε:
R=0,234 P σε kg f/cm2, όταν το P δίνεται σε kg f και
R= 0,00234 P σε Ν/mm2, όταν το P δίνεται σε Ν.
4.1.3.5.2 Έλεγχος αντοχής σε θλίψη.
Τα μισά πρίσματα που προκύπτουν από τη δοκιμασία σε κάμψη διατηρούνται υγρά μέχρι της δοκιμής σε θλίψη. Κάθε μισό πρίσμα τοποθετείται ανάμεσα στις πλάκες θραύσεως (παράγραφος 4.1.3.5. του παρόντος άρθρου), έτσι ώστε το φορτίο θλίψεως να εφαρμόζεται πάνω στις παράλληλες έδρες, που σχηματίστηκαν από τα επιμήκη τοιχώματα της μήτρας και επί εμβαδού 40 mm x 40 mm.
To φορτίο πρέπει να αυξάνεται με τέτοια ταχύτητα ώστε η τάση να μεγαλώνει κατά 1 έως 2Ν/mm2/sec (10 έως 20 kg f/cm2/sec). Το φορτίο μπορεί να αυξάνεται ταχύτερα μέχρι του μισού φορτίου θραύσεως που αναμένεται. Οπωσδήποτε, η διάρκεια της δοκιμής δεν πρέπει να είναι μικρότερη των 10 sec.
4.1.5. Έκφραση των αποτελεσμάτων.
Οι αντοχές σε κάμψη και θλίψη πρέπει να εκφράζονται σε N/mm2, στο πλησιέστερο δέκατο και πρέπει να προσδιορίζονται με θραύση τριών τουλάχιστον πρισμάτων για κάθε ηλικία. Συνιστάται η κάθε σειρά πρισμάτων για κάθε ηλικία να αποτελείται από δοκίμια διαφορετικών χαρμανιών. Δηλαδή γίνονται τρία χαρμάνια. Από κάθε χαρμάνι τρία πρίσματα, και παίρνουμε ένα πρίσμα από κάθε χαρμάνι για κάθε ηλικία θραύσεως 2, 7 και 28 ημερών.
Το πιστοποιητικόν ελέγχου θα πρέπει να δίνει όλα τα αποτελέσματα, αλλά σαν αντοχή σε κάμψη και θλίψη του κονιάματος θα πρέπει να λαμβάνεται ο μέσος όρος αντοχών των τριών δοκιμών για την κάμψη και των 6 δοκιμών για τη θλίψη, σε κάθε ηλικία.
Σε περίπτωση που δυο τιμές διαφέρουν του μέσου όρου των αντοχών περισσότερο του 10%, η δοκιμή επαναλαμβάνεται.
5. Φυσικές δοκιμασίες τσιμέντου.
5.1. Κανονικός τσιμεντοπολτός.
5.1.1. Σκοπός
Η μέθοδος αυτή καθορίζει τον τρόπο προσδιορισμού της ποσότητας του νερού, για την παρασκευή τσιμεντοπολτού κανονικής συνεκτικότητας, ο οποίος χρησιμοποιείται για τις δοκιμασίες προσδιορισμού χρόνου πήξεως και σταθερότητας όγκου.
5.1.2. Όργανα και Συσκευές.
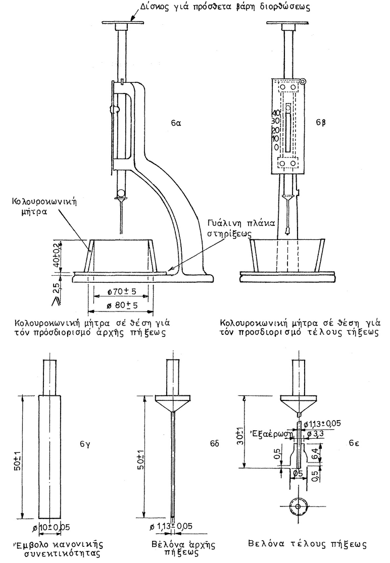
5.1.2.1 Συσκευή VICAT.
Η συσκευή VICAT (Σχήμα 6) αποτελείται βασικά από ένα πλαίσιο που φέρει δυο δακτυλίους, μέσα στους οποίους κινείται κατακόρυφα και χωρίς τριβές χαλύβδινος κύλινδρος. Στο άνω μέρος του κυλίνδρου προσαρμόζεται ένας δίσκος, που μπορεί να δέχεται πρόσθετα βάρη, για τη διόρθωση του συνολικού βάρους του κυλίνδρου. Στο κάτω άκρο του κυλίνδρου μπορούν να προσαρμόζονται το έμβολο της κανονικής συνεκτικότητας και οι βελόνες VICAT. Στον κύλινδρο είναι προσαρμοσμένος δείκτης, που κινείται μπροστά από κατακόρυφη κλίμακα. Σ' αυτή γίνεται απ' ευθείας ανάγνωση σε mm της αποστάσεως ανάμεσα στο κατώτερο άκρο του εμβόλου συνεκτικότητας ή της βελόνας VICAT και της πλάκας στηρίξεως του κολουροκωνικού δακτυλίου.
5.1.2.2. Έμβολο κανονικής συνεκτικότητας.
Είναι κατασκευασμένο από ανοξείδωτο λείο μέταλλο, σε μορφή τέλειου κυλίνδρου, που έχει ενεργό μήκος 50 ± 1 mm και διάμετρο 10 ± 0,05 mm.
H ολική μάζα του κινητού μέρους της συσκευής VICAT, δηλαδή ο κύλινδρος με το δίσκο, τα πιθανά πρόσθετα βάρη και το έμβολο κανονικής συνεκτικότητας, πρέπει να είναι 300 ± 1 g.
5.1.2.3 Κολουροκωνική μήτρα.
Η μήτρα αυτή αποτελείται από εάν κολουροκωνικό δακτύλιο και μια πλάκα στηρίξεως, πάνω στην οποία εδράζεται ο δακτύλιος με τη μεγαλύτερη βάση του.
Ο δακτύλιο πρέπει να είναι κατασκευασμένος από σκληρό ελαστικό, με λεία την εσωτερική του επιφάνεια και να έχει εσωτερικές διαμέτρους, της επάνω βάσεως 70 ± 5 mm, και της κάτω βάσεως 80 ± 5 mm και ύψος 40 ± 0,2 mm.
H πλάκα στηρίξεως πρέπει να είναι από γυαλί με παράλληλες, τέλεια επίπεδες έδρες, πάχους τουλάχιστον 2,5 mm και να έχει τις άλλες διαστάσεις τέτοιες, που να μπορεί να δέχεται με ευχέρεια τον κολουροκωνικό δακτύλιο.
5.1.2.4 Ζυγός.
Πρέπει να χρησιμοποιείται ζυγός, που να δίνει ακρίβεια μεγαλύτερη από 0,5% του βάρους που ζυγίζει.
5.1.2.5. Μηχανικός αναμικτήρας.
Χρησιμοποιούνται αυτός που περιγράφεται στην παράγραφο 4.1.3.1. του παρόντος άρθρου.
5.1.3. Χώρος παρασκευής και δοκιμών τσιμεντοπολτών.
Ο χώρος παρασκευής και δοκιμών των τσιμεντοπολτών πρέπει να είναι θερμοκρασίας 20° ± 2°C και σχετικής υγρασίας τουλάχιστο 65%.
5.1.4. Τρόπος εργασίας.
5.1.4.1. Παρασκευή τσιμεντοπολτού.
| • | Ζυγίζονται 500 g τσιμέντου. |
| • | Ζυγίζεται η πιθανή απαιτουμένη ποσότητα νερού (π.χ. 125 g), για την παρασκευή τσιμεντοπολτού κανονικής συνεκτικότητας και ρίχνεται μέσα στον υποδοχέα του αναμικτήρα. |
| • | Προσθέτονται στο νερό τα 500 g τσιμέντου με προσοχή, για να αποφύγουμε απώλειες νερού ή τσιμέντου, σε χρόνο όχι λιγότερο από 5 sec και όχι περισσότερο από 20 sec. |
| • | χρόνος στον οποίον τελειώνει η προσθήκη του τσιμέντου χαρακτηρίζεται σαν χρόνος μηδέν. |
| • | Μπαίνει αμέσως σε λειτουργία ο χαρακτήρας με τη χαμηλή ταχύτητα για 90 sec. |
| • | Διακόπτεται η λειτουργία του αναμικτήρα για 15 sec, κατά την διάρκεια των οποίων ξύνεται, με ελαστική ξύστρα, ο τσιμεντοπολτός που έχει κολλήσει στα τοιχώματα και στον πυθμένα και μεταφέρεται στη ζώνη αναμίξεως. |
| • | Συνεχίζεται η ανάμιξη του τσιμεντοπολτού με την υψηλή ταχύτητα για άλλα 90 sec. |
5.1.4.2. Γέμισμα της κολουροκωνικής μήτρας.
Μεταφέρεται αμέσως ο τσιμεντοπολτός στην κολουροκωνική μήτρα, της οποίας η πλάκα στηρίξεως έχει ελαφρά λιπανθεί και γεμίζεται καλά χωρίς κρούσεις και δόνηση. Αφαιρείται το περίσσευμα με μυστρί, που μετακινείται πριονωτά πάνω στα χείλη της μήτρας, με τέτοιο τρόπο, ώστε να επιτυγχάνεται λεία επιφάνεια.
5.1.4.3. Δοκιμή συνεκτικότητας.
| • | Ρυθμίζεται από πριν η συσκευή VICAT, ώστε ο δείκτης να είναι στο μηδέν, όταν το έμβολο κανονικής συνεκτικότητας ακουμπά στην πλάκα στηρίξεως της κολουροκωνικής μήτρας. |
| • | Η γεμάτη με τσιμεντοπολτό κολουροκωνική μήτρα τοποθετείται αμέσως στη συσκευή VICAT κάτω από το έμβολο, έτσι που ο άξονάς του να περνάει από τα κέντρα των βάσεων της μήτρας. |
| • | Αφήνεται το έμβολο να κατέβει κατακόρυφα και ακινητοποιείται, όταν έλθει σε επαφή με την επιφάνεια του τσιμεντοπολτού. |
| • | Αφού περάσουν 5 min από το χρόνο μηδέν, απελευθερώνεται γρήγορα το έμβολο και βυθίζεται στον τσιμεντοπολτό, χωρίς αρχική ταχύτητα η επιτάχυνση, με την επίδραση μόνο του βάρους του κινητού μέρους της συσκευής VICAT (300 ± 1 g). |
| • | Μετά από 30 sec διαβάζεται στη κλίμακα η απόσταση του κάτω άκρου του εμβόλου από την πλάκα στηρίξεως και καταγράφεται μαζί με την αντίστοιχη ποσότητα νερού στα 100 μέρη μάζας του τσιμέντου. |
5.1.4.4. Κανονικός τσιμεντοπολτός.
Είναι ο τσιμεντοπολτός, που κατά τη δοκιμή συνεκτικότητας της προηγούμενης παραγράφου δίνει απόσταση εμβόλου πλάκας στηρίξεως 6 ± 1 mm. H αντίστοιχη ποσότητα νερού στα 100 μέρη μάζας τσιμέντου, στρογγυλεμένη σε μισές μονάδες, είναι το νερό της κανονικής συνεκτικότητας.
Για την επιτυχία του κανονικού τσιμεντοπολτού παρασκευάζονται και δοκιμάζονται και δοκιμάζονται τσιμεντοπολτοί με διάφορες περιεκτικότητας σε νερό, σύμφωνα με την παραπάνω διαδικασία.
5.2. Προσδιορισμός του χρόνου πήξεως τσιμέντου.
5.2.1. Σκοπός.
Η μέθοδος αυτή περιγράφει τον τρόπο προσδιορισμού του χρόνου αρχής και τέλους πήξεως τσιμέντων με τη συσκευή VICAT.
5.2.2. Όργανα και συσκευές.
5.2.2.1. Συσκευή VICAT και κολουροκωνική μήτρα.
Περιγράφονται στις παραγράφους 5.1.2.1. και 5.1.2.3. του παρόντος άρθρου.
5.2.2.2. Βελόνα αρχής πήξεως.
Είναι κατασκευασμένη από ανοξείδωτο λείο χάλυβα, σε μορφή τέλειου κυλίνδρου, που έχει ενεργό μήκος 50 ± 1 mm και διάμετρο 1,13 ± 0,05 mm (διατομής 1 mm2).
5.2.2.3. Βελόνα τέλους πήξεως.
Είναι κατασκευασμένη, όπως και η βελόνα αρχής πήξεως (5.2.2.2) με τη μόνη διαφορά ότι, στο κάτω μέρος της, είναι προσαρμοσμένος δακτύλιος για την εύκολη και σωστή παρατήρηση μικρών βυθίσεων της βελόνας. Οι διαστάσεις, το ειδικό σχήμα και η θέση του δακτυλίου, πάνω στη βελόνα, φαίνονται στο Σχήμα 6.ε.
Η ολική μάζα του κινητού μέρους της συσκευής VICAT, δηλαδή ο κύλινδρος με το δίσκο, τα πιθανά πρόσθετα βάρη και η βελόνα αρχής ή τέλους πήξεως, πρέπει να είναι 300 ± 1 g.

Σχήμα 6: Συσκευή VICAT και εξαρτήματά της (διαστάσεις σε mm)
5.2.3. Χώρος δοκιμών και συντηρήσεως.
Ο χώρος παρασκευής και ελέγχου των τσιμεντοπολτών πρέπει να είναι θερμοκρασίας 20° ± 2°C και σχετικής υγρασίας τουλάχιστο 65%.
Ο χώρος συντηρήσεως των τσιμεντοπολτών πρέπει να είναι θερμοκρασίας 20° ± 2°C και σχετικής υγρασίας τουλάχιστο 90%.
5.2.4. Τρόπος εργασίας.
| • | Γεμίζονται οι κολουροκωνικές μήτρες με κανονικό τσιμεντοπολτό και επιπεδώνονται, σύμφωνα με τη παράγραφο 5.1.4.2. του παρόντος άρθρου. |
| • | Τοποθετούνται οι γεμισμένες κολουροκωνικές μήτρες στο χώρο συντηρήσεως (παράγραφος 5.2.3) και διατηρούνται εκεί μέχρι τέλους της όλης δοκιμής, στα νεκρά στάδια των δοκιμών. |
5.2.4.1. Προσδιορισμός αρχής πήξεως.
| • | Τοποθετείται στη συσκευή VICAT η βελόνα αρχής πήξεως, και ρυθμίζεται η συσκευή, ώστε ο δείκτης να είναι στο μηδέν, όταν η βελόνα ακουμπά στην πλάκα στηρίξεως της κολουροκωνικής μήτρας. |
| • | Στον κατάλληλο χρόνο μεταφέρεται η γεμισμένη κολουροκωνική μήτρα στη συσκευή VICAT, κάτω από τη βελόνα αρχής πήξεως. |
| • | Αφήνεται η βελόνα αρχής πήξεως να κατέβει σιγά - σιγά και να έλθει σε επαφή με την επιφάνεια του τσιμεντοπολτού, όπου ακινητοποιείται για λίγο. |
| • | Από τη θέση αυτή και χωρίς αρχή ταχύτητα ή επιτάχυνση με την επίδραση μόνο του βάρους του κινητού μέρους της συσκευής VICAT (300 ± 1 g), αφήνεται η βελόνα να βυθισθεί κατακόρυφα στον τσιμεντοπολτό. |
| • | Μετά από 30 sec διαβάζεται στην κλίμακα και καταγράφεται η απόσταση του κάτω άκρου της βελόνας από την πλάκα στηρίξεως. Καταγράφεται επίσης και ο αντίστοιχος χρόνος που πέρασε από το χρόνο μηδέν της παρασκευής του κανονικού τσιμεντοπολτού. |
| • | Αμέσως μετά τη δοκιμή καθαρίζεται η βελόνα VICAT. |
| • | Επαναλαμβάνονται οι δοκιμές με την προηγούμενη διαδικασία, στην ίδια γεμισμένη με τσιμεντοπολτό μήτρα, σε θέσεις που απέχουν από τα τοιχώματα και προηγούμενες βυθίσεις τουλάχιστο 10 mm. Οι δοκιμές αυτές γίνονται κατά μικρά χρονικά διαστήματα (π.χ. 10 min), που μικραίνουν όσο πλησιάζουν οι ενδείξεις αρχής πήξεως. |
| • | Ο χρόνος που πέρασε από τον χρόνο μηδέν της παρασκευής του κανονικού τσιμεντοπολτού μέχρι τη στιγμή της δοκιμής, που η απόσταση του κάτω άκρου της βελόνας από την πλάκα στηρίξεως είναι 5 ± 1 mm, είναι ο χρόνος αρχής πήξεως και καταγράφεται στρογγυλεμένος στο πλησιέστερο πεντάλεπτο. |
5.2.4.2. Προσδιορισμός τέλους πήξεως.
| • | Τοποθετείται στη συσκευή VICAT η βελόνα τέλους πήξεως. |
| • | Μετά τη δοκιμή αρχής πήξεως αναποδογυρίζεται ο κολουροκωνικός δακτύλιος με τον τσιμεντοπολτό πάνω στην πλάκα στηρίξεως του. Οι δοκιμές για το τέλος πήξεως γίνονται στη νέα άνω επιφάνεια του τσιμεντοπολτού και σε χρονικά διαστήματα σχετικά μεγάλα (π.χ. 30 min), που μικραίνουν όσο ο έλεγχος πλησιάζει το τέλος πήξεως. |
| • | Μεταφέρεται ο κολουροκωνικός δακτύλιος με τη βάση στηρίξεως στη συσκευή VICAT, κάτω από τη βελόνα τέλους πήξεως. |
| • | Αφήνεται η βελόνα να κατέβει ελαφρά και να έλθει σε επαφή με την επιφάνεια του τσιμεντοπολτού. |
| • | Από τη θέση αυτή και χωρίς αρχική ταχύτητα ή επιτάχυνση, με την επίδραση μόνο του βάρους του κινητού μέρους της συσκευής VICAT (300 ± 1 g), αφήνεται η βελόνα να βυθιστεί κατακόρυφα. |
| • | Η διαδικασία αυτή επαναλαμβάνεται μέχρι εκείνη τη δοκιμή, που η βελόνα βυθίζεται μέσα στον τσιμεντοπολτό 0,5 mm και βέβαιο ότι έγινε, όταν για πρώτη φορά ο δακτύλιος δεν αφήνει σημάδι πάνω στην επιφάνεια του τσιμεντοπολτού. |
| • | Ο χρόνος που πέρασε από το χρόνο μηδέν της παρασκευής του κανονικού τσιμεντοπολτού, μέχρι τη στιγμή, που η βελόνα βυθίζεται στον τσιμεντοπολτό 0,5 mm, είναι ο χρόνος τέλους πήξεως και καταγράφεται στρογγυλεμένος στο πλησιέστερο δεκάλεπτο. |
5.3. Προσδιορισμός σταθερότητας όγκου τσιμέντου.
5.3.1. Σκοπός.
Η μέθοδος αυτή περιγράφει τον τρόπο προσδιορισμού της σταθερότητας του όγκου τσιμέντου, με μέτρηση της διογκώσεως κανονικού τσιμεντοπολτού, με τη βοήθεια της συσκευής Le Chatelier.
5.3.2. Όργανα και συσκευές.
5.3.2.1. Δακτύλιος Le Chatelier.
Είναι κυλινδρικός δακτύλιος με εσωτερική διάμετρο 30 mm και ύψος 30 mm. Είναι κατασκευασμένος από φύλλο- φωσφορούχου ορείχαλκου (ποιότητας ελατηρίων), πάχους 0,5 mm περίπου και είναι σχισμένος κατά γενέτειρα. Από τη μια και την άλλη πλευρά της σχισμής, κάθετα σ' αυτή, είναι συγκολλημένες δυο βελόνες μήκους 15 cm (Σχήμα 7Α). Επίσης είναι προσαρμοσμένη στο δακτύλιο, μια διάταξη ανεξάρτητη από τις βελόνες (σχήμα 7Γ) που επιτυγχάνει το άνοιγμα της σχισμής και διευκολύνει το ξεκαλούπωμα, με τα δοκιμή.
Ο δακτύλιος πρέπει να παρουσιάζει ελαστικότητα τέτοια, ώστε, όταν εφαρμοσθεί βάρος 300 g, όπως φαίνεται στο Σχήμα 7Β, η απόσταση των άκρων των βελονών να αυξάνεται κατά 17,5 ± 2,5 mm χωρίς μόνιμη παραμόρφωση του δακτύλου.
5.3.2.2. Γυάλινες πλάκες.
Οι πλάκες εδράσεως και επικαλύψεως του δακτύλου πρέπει να είναι από γυαλί και να έχουν διαστάσεις μεγαλύτερες από τη διάμετρο του δακτυλίου. Η πλάκα επικαλύψεως πρέπει να ζυγίζει τουλάχιστο 75 g. Στην περίπτωση που χρησιμοποιείται πλάκα μικρότερης μάζας τοποθετείται πάνω σ' αυτή πρόσθετο βάρος, ώστε να καλύπτεται η παραπάνω απαίτηση.
5.3.2.3. Λουτρό βρασμού.
Το λουτρό πρέπει να είναι εφοδιασμένο με θερμαντικά στοιχεία και να μπορεί να ανεβάζει προοδευτικά τη θερμοκρασία του νερού και τριών τουλάχιστον εμβαπτισμένων δοκιμίων Le Chatelier, από τους 20° ± 2°C στη θερμοκρασία βρασμού του νερού, μέσα σε χρόνο 30 ± 5 min

Σχήμα 7: Συσκευή Le Chatelier σταθερότητας όγκου σκυροδέματος (διαστάσεις σε mm)
5.3.3. Τρόπος εργασίας
| • | Λαδώνονται ελαφρά οι δακτύλιοι Le Chatelier και οι γυάλινες πλάκες. |
| • | Τοποθετούνται οι δακτύλιοι πάνω στις πλάκες εδράσεως. |
| • | Παρασκευάζεται κανονικός τσιμεντοπολτός (παράγραφος 5.1 του παρόντος άρθρου). |
| • | Γεμίζονται αμέσως οι δακτύλιοι, με τα χέρια, χωρίς κρούση ή δόνηση και επιπεδώνονται με τη βοήθεια μυστηρίου. Κατά το γέμισμα πρέπει να λαμβάνεται φροντίδα, ώστε να μην ανοίγει η σχισμή. |
| • | Σκεπάζονται οι γεμισμένοι δακτύλιοι με τις πλάκες επικαλύψεως και τοποθετείται, αν απαιτείται, πάνω σ' αυτές πρόσθετο βάρος. |
| • | Κατόπιν οι δακτύλιοι βυθίζονται μέσα σε νερό θερμοκρασίας 20° ± 2°C και διατηρούνται σ' αυτό για 24 ± 0,5 ώρες. |
| • | Στο τέλος των 24 ωρών εξάγονται οι δακτύλιοι από το νερό και μετριέται η απόσταση Α1 των άκρων των δύο βελονών, με ακρίβεια 0,5 mm. |
| • | Στη συνέχεια, βυθίζονται οι δακτύλιοι στο λουτρό βρασμού και θερμαίνονται προοδευτικά στη θερμοκρασία του βρασμού σε χρόνο 30 ± 5 min. |
| • | Διατηρούνται στη θερμοκρασία βρασμού για 3 h ± 5 min. |
| • | Εξάγονται και αφήνονται να ψυχθούν στη θερμοκρασία 20° ± 2°C. |
| • | Μετριέται η απόσταση Α2 των δύο άκρων των βελονών, με ακρίβεια 0,5 mm. |
5.3.4. Έκφραση αποτελεσμάτων.
Η διαφορά των αποστάσεων Α2 - Α1 χαρακτηρίζει τη σταθερότητα όγκου του τσιμέντου.
Ο έλεγχος γίνεται σε τρεις τουλάχιστον δακτυλίους από το ίδιο μείγμα και δίνονται ξεχωριστά τα αποτελέσματα για κάθε δακτύλιο, καθώς επίσης και ο μέσος όρος αυτών, που αποτελεί και το κριτήριο της σταθερότητας όγκου.
5.3.5. Επανέλεγχος.
Αν ένα τσιμέντο δεν ανταποκρίνεται στις απαιτήσεις της παραγρ. 4 του άρθρου 5 του παρόντος κανονισμού, επανελέγχεται για σταθερότητα όγκου, σύμφωνα με την προηγούμενη διαδικασία, αφού πρώτα εκτεθεί σε ένα στρώμα πάχους 7 cm για επτά ημέρες σε χώρο θερμοκρασίας 20° ± 2°C και σχετικής υγρασίας μεγαλύτερης του 65%.
5.4. Προσδιορισμός της λεπτότητας του τσιμέντου με τη συσκευή αεροδιαπερατότητας Blaine.
5.4.1. Σκοπός.
Η μέθοδος περιγράφει τον τρόπο προσδιορισμού της λεπτότητας του τσιμέντου με τη συσκευή αεροδιαπερατότητας Blaine. Η λεπτότητα του τσιμέντου εκφράζεται σαν ειδική επιφάνεια, η οποία είναι το συνολικό εμβαδόν σε cm2 της επιφάνειας των κόκκων ενός γραμμαρίου τσιμέντου.
5.4.2. Συσκευές, όργανα και υλικά.
5.4.2.1. Συσκευή Blaine.
Η συσκευή αεροδιαπερατότητας Blaine δίνει, ουσιαστικά, τη δυνατότητα διελεύσεως καθορισμένης ποσότητας αέρος από στρώμα τσιμέντου με καθορισμού πορώδες. Ο αριθμός και το μέγεθος των πόρων σ' ένα στρώμα τσιμέντου κόκκων και καθορίζει την ταχύτητα ροής του αέρα μέσα από το στρώμα. Η συσκευή Blaine που εικονίζεται στο Σχήμα 8, αποτελείται ειδικά από τα μέρη, που περιγράφονται στις κατωτέρω παραγράφους.
5.4.2.1.1. Κελί διαπερατότητας.
Αποτελεί από άκαμπτο κύλινδρο εσωτερικής διαμέτρου 12,7 ± 1 min, που κατασκευάζεται από γυαλί ή ανοξείδωτο μέταλλο, που δεν κάνει αμάλγαμα με τον υδράργυρο. Τα άνω χείλη του κελιού πρέπει να σχηματίζουν ορθή γωνία με τον κύριον άξονά του. Το κατώτερο τμήμα του πρέπει να μπορεί να εφαρμόζει καλά με το άνω άκρο του μανόμετρου, για να μην υπάρχει διαφυγή αέρα ανάμεσα στις επιφάνειες, που έρχονται σε επαφή.
Το κελί καταλήγει σε χείλος 0,8 ± 0,2 mm, που προεξέχει εσωτερικά και απέχει 50 ± 15 mm από το άνω μέρος του κελιού και χρησιμεύει να στηρίζει το διάμετρο δίσκο.
5.4.2.1.2. Διάτρητος δίσκος.
Κατασκευάζεται από ανοξείδωτο μέταλλο, πάχους 0,9 ± 0,1 mm με 30 - 40 οπές διαμέτρου 1 mm, που κατανέμονται ομοιόμορφα σ' όλη την επιφάνεια του. Ο δίσκος πρέπει να μπορεί να προσαρμόζεται στο εσωτερικό του κελιού χωρίς δυσκολία. Ο δίσκος έχει ένα σημάδι από τη μία πλευρά του, που διευκολύνει τον χειριστή να τοποθετεί την πλευρά αυτή πάντα προς τα κάτω, όταν βάζει τον δίσκο μέσα στο κελί. Το σημάδι δεν φθάνει σε καμιά από τις οπές, ούτε εφάπτεται στην περιφέρειά τους, ούτε και φθάνει μέχρι την περιοχή του δίσκου, που ακουμπά στο χείλος του κελιού.
5.4.2.1.3. Έμβολο.
Είναι κυλινδρικό και κατασκευάζεται από ανοξείδωτο μέταλλο. Η διάμετρός του είναι μικρότερη από τη διάμετρο του κελιού κατά 0,1 mm. Η κάτω βάση που πρέπει να είναι κάθετη στον άξονά του. Η κυλινδρική επιφάνεια του εμβόλου είναι κομμένη σε μια γενέτειρά της, έτσι ώστε να σχηματίζεται επίπεδο πλάτους 3 ± 0,3 mm, που διευκολύνει τη διαφυγή του αέρα. Προβλέπεται επίσης να υπάρχει στο άνω μέρος του εμβόλου ένα περιλαίμιο (κολάρο) ώστε, όταν το έμβολο τοποθετείται στο κελί και το περιλαίμιο έρχεται σε επαφή με το άνω μέρος του κελιού, η απόσταση μεταξύ της κάτω επιφάνειας του εμβόλου και της άνω επιφάνειας του διάτρητου δίσκου να είναι 15 +- 1 mm.
5.4.2.1.4. Μανομετρικός σωλήνας (μανόμετρο).
Είναι γυάλινος σωλήνας σχήματος U (Σχήμα 8Α), εξωτερικής διαμέτρου 9 mm. Το άνω άκρο του ενός σκέλους του μανόμετρου πρέπει να μπορεί να συνδέεται στεγανά με το κελί διαπερατότητας.
Αυτό το σκέλος του μανόμετρου φέρει κυκλική χαραγή σε απόσταση 125 - 145 mm κάτω από την πλευρική έξοδο. Επίσης φέρει και άλλες χαραγές σε αποστάσεις 15 ± 1 mm και 70 ± 1 mm και 110 ± 1 mm από την προηγούμενη και προς τα άνω. Στην πλευρική έξοδο και σε απόσταση από το μανομετρικό σκέλος μικρότερη των 50 mm πρέπει να υπάρχει δικλείδα ή σφιγκτήρας. Το μανόμετρο προσαρμόζεται σταθερά και κατά τέτοιο τρόπο, που τα σκέλη του να είναι κατακόρυφα.
5.4.2.2. Χρονόμετρο.
Το Χρονόμετρο πρέπει να έχει σταθερούς μηχανισμούς εκκινήσεως και στάσεως, με δυνατότητα αναγνώσεως 0.5 sec ή λιγότερο. Το χρονόμετρο πρέπει να έχει ακρίβεια 0.5 sec ή μικρότερη για χρονικά διαστήματα μέχρι 60 sec και 1% ή μικρότερη, για χρονικά διαστήματα 60 - 300 sec.
5.4.2.3. Δίσκοι διηθητικού χαρτιού.
Πρέπει να είναι μέσης ικανότητας συγκρατήσεως, κυκλικοί, της ίδιας διαμέτρου με το εσωτερικό του κελιού και με λεία άκρα.
5.4.2.4. Υγρό μανομέτρου.
Το υγρό αυτό πρέπει να είναι σταθερό, μη πτητικό, μη υγροσκοπικό, χαμηλού ιξώδους και πυκνότητας (π.χ. ελαφρό κλάσμα ορυκτελαίου).
Με το υγρό αυτό γεμίζεται το μανόμετρο μέχρι τη μέση.

Σχήμα 8: Συσκευή αεροδιαπερατότητας Blaine (διαστάσεις σε mm)
5.4.3. Εύρεση σταθερών συσκευής (καλιμπράρισμα).
5.4.3.1. Πρότυπο δείγμα.
Είναι δείγμα τσιμέντου με καθορισμένα το ειδικό βάρος και την ειδική επιφάνεια την ακρίβεια των οποίων εγγυάται επίσημος Οργανισμός Προτυποποίησης. Το δείγμα, όταν χρησιμοποιείται για το καλιμπράρισμα της συσκευής, πρέπει να έχει την θερμοκρασία του δωματίου.
5.4.3.2. Φαινόμενος όγκος του συμπιεσμένου στρώματος τσιμέντου.
Προσδιορίζει ως κατωτέρω:
| • | Τοποθετούνται δυο δίσκοι διηθητικού χαρτιού στο κελί διαπερατότητας, με τη βοήθεια ράβδου, που έχει διάμετρο κάπως μικρότερη απ' αυτήν του κελιού, έτσι ώστε να εφαρμόσουν τέλεια πάνω στο διάμετρο δίσκο. (Οι διάφοροι χειρισμοί του κελιού γίνονται πάντοτε με λαβίδα). |
| • | Το κελί, συγκρατούμενο με λαβίδα,γεμίζεται με υδράργυρο χημικώς καθαρό και αφαιρούνται όλες οι φυσαλίδες αέρα, που έχουν επικολληθεί στα τοιχώματά τους. Ισοπεδώνεται ο υδράργυρος στην κορυφή του κελιού με τη βοήθεια μικρής πλάκας γυαλιού, που πιέζεται πάνω στην επιφάνεια του υδραργύρου, έως ότου το γυαλί έλθει σε πλήρη επαφή με τα χείλη του κελιού, χωρίς να υπάρχουν φυσαλίδες ή κενά μεταξύ της επιφανείας του υδραργύρου και της γυάλινης πλάκας. |
| • | Αφαιρείται ο υδράργυρος από το κελί, ζυγίζεται και σημειώνεται το βάρος του. |
| • | Αφαιρείται ο ένας από τους δυο δίσκους και εισάγεται στο κελί μια δοκιμαστική ποσότητα 2,80 g τσιμέντου. |
| • | Τοποθετείται πάνω στο τσιμέντο ο δίσκος που αφαιρέθηκε και συμπιέζεται το τσιμέντο, σύμφωνα με τις οδηγίες της παραγράφου 5.4.3.5. Αν σχηματίζεται χαλαρό στρώμα τσιμέντου, ή δεν μπορεί να συμπιεστεί στον απαιτούμενο όγκο, προσαρμόζουμε τη δοκιμαστική ποσότητα τσιμέντου. |
| • | Ο κενός χώρος του κελιού, πάνω από το στρώμα του τσιμέντου γεμίζεται με υδράργυρο, αφαιρείται ο αέρας και ισοπεδώνεται το άνω μέρος, όπως προηγούμενα. |
| • | Αφαιρείται ο υδράργυρος από το κελί, ζυγίζεται και σημειώνεται το βάρος του. |
| • | Υπολογίζεται ο φαινόμενος όγκος, που καταλαμβάνεται από το στρώμα τσιμέντου, με προσέγγιση 0,005 cm3, με τον ακόλουθο τύπο: |
(1)
V = O φαινόμενος όγκος του τσιμέντου, σε cm3.
WA = Τα γραμμάρια υδραργύρου που απαιτούνται για το γέμισμα του κελιού, όταν δεν υπάρχει τσιμέντο σ' αυτό.
WB = Τα γραμμάρια υδραργύρου, που απαιτούνται για το γέμισμα του κενού μέρους του κελιού, πάνω από το στρώμα του τσιμέντου.
D = Η πυκνότητα του υδραργύρου στη θερμοκρασία της δοκιμής, σε g/cm3 (Πίνακας 5).
| • | Λαμβάνεται σαν φαινόμενος όγκος ο μέσος όρος δυο τιμών που συμφωνούν κατά 0,005 cm3. Σημειώνεται η θερμοκρασία στην περιοχή του κελιού, στην αρχή και στο τέλος του προσδιορισμού. |
5.4.3.3. Προετοιμασία του δείγματος.
Κλείνεται το περιεχόμενο ενός φιαλιδίου του πρότυπου δείγματος τσιμέντου σε ένα δοχείο 120 cm3 περίπου και ανακινείται δυνατά για 2 min, για να διασκορπιστεί το τσιμέντο και να σπάσουν τα συσσωματώματα.
Αφήνεται το δοχείο να παραμείνει κλειστό για άλλα 2 min, αφαιρείται το πώμα και ανακατεύεται ήρεμα το τσιμέντο, για να κατανεμηθεί σε όλη τη μάζα του δείγματος το λεπτό κλάσμα, που έχει επικαθήσει στην επιφάνεια μετά το διασκορπισμό.
5.4.3.4. Βάρος δείγματος.
Το βάρος το προτύπου δείγματος που χρησιμοποιείται για τη δοκιμή καλιμπραρίσματος της συσκευής θα είναι τόσο όσο απαιτείται για την παρασκευή ενός στρώματος τσιμέντου με πορώδες 0,500=0,005 και υπολογίζεται με τον τύπο:
W= ρ V (1-ε) (2)
όπου:
W = γραμμάρια δείγματος που απαιτούνται
ρ = ειδικό βάρος του δείγματος που θα δοκιμαστεί
V = o φαινόμενος όγκος του στρώματος του τσιμέντου σε cm2, που έχει προσδιοριστεί σύμφωνα με την παράγραφο 5.4.3.2 και
ε = το επιθυμητό πορώδες του στρώματος του τσιμέντου (0,50=0,005).
5.4.3.5. Παρασκευή συμπιεσμένου στρώματος τσιμέντου.
| • | Τοποθετείται ο διάτρητος δίσκος στη θέση του, στο εσωτερικό του κελιού, με τη σημαδεμένη επιφάνειά του προς τα κάτω. |
| • | Πάνω στο διάτρητο δίσκο τοποθετείται δίσκος διηθητικού χαρτιού και πιέζεται με ένα κύλινδρο διαμέτρου ελαφρά μικρότερης από την διάμετρο του κελιού, για πλήρη εφαρμογή. |
| • | Ζυγίζεται, με προσέγγιση 0,001 g η ποσότητα του δείγματος που καθορίσθηκε σύμφωνα με την παράγραφο 5.4.3.4 και τοποθετείται μέσα στο κελί. |
| • | Οριζοντιώνεται η επιφάνεια του στρώματος τσιμέντου, με ελαφρά χτυπήματα στα πλευρά του κελιού. |
| • | Τοποθετείται δίσκος διηθητικού χαρτιού πάνω από το τσιμέντο και συμπιέζεται με το έμβολο, ώστε το περιλαίμιο του εμβόλου να έλθει σε επαφή με το άνω μέρος του κελιού. |
| • | Ανασηκώνεται λίγο το έμβολο, περιστρέφεται περίπου 90°, ξαναπιέζεται και μετά αφαιρείται αργά. Χρησιμοποιούνται νέοι ηθμοί σε κάθε μέτρηση. |
5.4.3.6. Εκτέλεση της δοκιμής.
| • | Εφαρμόζεται το κελί διαπερατότητας στο μανομετρικό σωλήνα, με προσοχή ώστε να η προξενηθεί καταστροφή του συμπιεσμένου στρώματος τσιμέντου. |
| • | Ελέγχεται η στεγανότητα της συνδέσεως, ως εξής; Πωματίζεται το κελί, δημιουργείται κενό στο ένα σκέλος του μανόμετρου και κλείνεται η δικλείδα. Όταν υπάρχει συνεχής πτώση της πιέσεως σημαίνει ότι υπάρχει διαφυγή στο σύστημα. |
| • | Δημιουργείται αργά κενός στο ένα σκέλος του μανόμετρου U, έως ότου το υγρό φθάσει στην άνω χαραγή του σωλήνα και κλείνεται καλά η στρόφιγγα. |
| • | Όταν το κάτω μέρος του μηνίσκου του μανομετρικού υγρού φθάσει στην τρίτη από την κορυφή χαραγή, διακόπτεται η λειτουργία του χρονομέτρου. |
| • | Σημειώνεται το χρονικό διάστημα, που μετρήθηκε σε δευτερόλεπτα, ως επίσης και η θερμοκρασία της δοκιμής. |
| • | Για το καλιμπράρισμα της συσκευής προσδιορίζεται ο χρόνος της ροής σε τρία ξεχωριστά στρώματα συμπιεσμένου πρότυπου τσιμέντου, με εκτέλεση σε κάθε στρώμα απ' αυτά τριών τουλάχιστον δοκιμών. Το καλιμπράρισμα πρέπει να γίνεται από το ίδιο πρόσωπο, που κάνει και τους προσδιορισμούς λεπτότητας. |
5.4.3.7. Επανέλεγχος της συσκευής.
Η συσκευή καλιμπραρίζεται εκ νέου:
α) Κατά περιόδους για διόρθωση σφαλμάτων, που μπορεί να οφείλονται σε φθορά του εμβόλου ή του κελιού διαπερατότητας.
β) Όταν υπάρχει απώλεια στο μανομετρικό υγρό.
γ) Όταν αλλαχθεί ο τύπος ή η ποιότητα των δίσκων διηθητικού χαρτιού, που χρησιμοποιούνται στις δοκιμές.
5.4.4. Τρόπος εργασίας.
5.4.4.1. Θερμοκρασία του τσιμέντου.
Το, για προσδιορισμό, δείγμα τσιμέντου πρέπει να έχει τη θερμοκρασία του δωματίου.
5.4.4.2 Βάρος δείγματος.
Το βάρος δείγματος, που χρησιμοποιείται στη δοκιμή, υπολογίζεται με τη βοήθεια του τύπου W=ρ V (1-ε) της παραγράφου 5.4.3.4.
Το πορώδες για τα συμπιεσμένα στρώματα τσιμέντου συνιστάται να είναι:
| • | για τσιμέντα Πόρτλαντ 0,500 ± 0,005. |
| • | για τσιμέντα λεπτοαλεσμένα 0,530 ± 0,005. |
| • | γενικά δε τέτοιο ώστε, με κανονική συμπίεση, (μόνο με τον αντίχειρα) να παράγεται συνεκτικό στρώμα τσιμέντου. |
5.4.4.3. Παρασκευή συμπιεσμένου στρώματος τσιμέντου.
Το συμπιεσμένο στρώμα του για δοκιμή τσιμέντου παρασκευάζεται σύμφωνα με τη μέθοδο, που περιγράφεται στη παράγραφο 5.43.5.
5.4.4.4 Δοκιμή διαπερατότητας.
Εκτελείται η δοκιμή σύμφωνα με τα περιγραφόμενα στην παράγραφο 5.4.3.6, με τη διαφορά ότι γίνεται μια μέτρηση του χρόνου ροής σε κάθε στρώμα συμπιεσμένου τσιμέντου.
5.4.5. Υπολογισμοί.
Υπολογίζονται οι τιμές της ειδικής επιφάνειες σύμφωνα με τις ακόλουθες εξισώσεις:

S = Ειδική επιφάνεια του για προσδιορισμού δείγματος, cm2/g.
SS = Ειδική επιφάνεια του πρότυπου, δείγματος, που χρησιμοποιείται στο καλιμπράρισμα της συσκευής, cm2/g.
T = Χρόνος της δοκιμής για το πρότυπο δείγμα, το χρησιμοποιούμενο για το καλιμπράρισμα της συσκευής. sec.
ΤS = Χρόνος της δοκιμής για το πρότυπο δείγμα, το χρησιμοποιούμενο για το καλιμπράρισμα της συσκευής sec.
η = Ιξώδες αέρα στη θερμοκρασία δοκιμής του για προσδιορισμό δείγματος τσιμέντου, Poise.
nS = Ιξώδες αέρα στη θερμοκρασία δοκιμής του πρότυπου δείγματος, που χρησιμοποιείται για το καλιμπράρισμα της συσκευής Poise.
ε = Πορώδες συμπιεσμένου στρώματος τσιμέντου, που σχηματίζεται από το για προσδιορισμό δείγμα.
ES = Πορώδες συμπιεσμένου στρώματος τσιμέντου, που σχηματίζεται από πρότυπο δείγμα, για το καλιμπράρισμα της συσκευής.
ρ = Ειδικό βάρος του για προσδιορισμό δείγματος.
ρS = Ειδικό βάρος του πρότυπου δείγματος.
Τιμές για τα
λαμβάνονται αντίστοιχα από τους πίνακες 4, 5 και 6.
Οι εξισώσεις (3), (4), και (6) χρησιμοποιούνται για τσιμέντα του ίδιου ειδικού βάρους με αυτό του πρότυπου τσιμέντου.
Οι εξισώσεις (3), (5) και (7) χρησιμοποιούνται, όταν η θερμοκρασία δοκιμής του για προσδιορισμό δείγματος διαφέρει το πολύ ± 3 °C από τη θερμοκρασία της δοκιμής καλιμπραρίσματος. Οι εξισώσεις (4), (6) και (8) χρησιμοποιούνται στον υπολογισμό όταν η θερμοκρασία δοκιμής διαφέρει περισσότερο των ± 3 °C.
Οι εξισώσεις (3) και (4) χρησιμοποιούνται για υπολογισμούς της ειδικής επιφάνειας τσιμέντων, όταν κατά τη δοκιμή γίνεται χρήση του ίδιου πορώδους, που χρησιμοποιήθηκε στο πρότυπο δείγμα.
Οι εξισώσεις (5) και 6) χρησιμοποιούνται στον υπολογισμό της ειδικής επιφάνειας τσιμέντων, όταν κατά τη δοκιμή γίνεται χρήση διαφορετικού πορώδους απ' αυτό, που χρησιμοποιήθηκε στο πρότυπο δείγμα.
Οι εξισώσεις (7) και (8) είναι γενικής εφαρμογής.
5.4.6. Έκφραση αποτελεσμάτων.
Λαμβάνεται σαν ειδική επιφάνεια του ελεγχόμενου δείγματος τσιμέντου ο μέσος όρος των αποτελεσμάτων τριών δοκιμών (παράγραφος 5.4.4.4.), τα οποία δεν διαφέρουν περισσότερο του 2% του μέσου όρου αυτών, στρογγυλεμένος στα 10 cm2/g.
5.4.7. Ακρίβεια μεθόδου μεταξύ εργαστηρίων.
Αποτελέσματα ειδικής επιφανείας τσιμέντου μεταξύ δυο διαφορετικών εργαστηρίων, σε δείγματα αντιπροσωπευτικά του αυτού τσιμέντου, δεν πρέπει να διαφέρουν μεταξύ τους περισσότερο του 6% του μέσου όρου αυτών.
Πίνακας 4: Τιμές των ε, (1-ε), 
ε
|
1-ε
|

|
0,45
|
0,55
|
0,302
|
0,46
|
0,54
|
0,312
|
0,47
|
0,53
|
0,322
|
0,48
|
0,52
|
0,333
|
0,49
|
0,51
|
0,343
|
0,50
|
0,50
|
0,354
|
0,51
|
0,49
|
0,364
|
0,52
|
0,48
|
0,375
|
0,53
|
0,47
|
0,386
|
0,54
|
0,46
|
0,397
|
0,55
|
0,45
|
0,408
|
0,56
|
0,44
|
0,419
|
0,57
|
0,43
|
0,430
|
0,58
|
0,42
|
0,442
|
Πίνακας 5: Πυκνότητα υδραργύρου, ιξώδες του αέρα και
σε συνάρτηση της θερμοκρασίας
Θερμοκρασία °C
|
Πυκνότητα υδραργύρου g/cm3
|
Ιξώδες του αέρα σε Poise
|
n
|

|
16
|
13,56
|
0,0001788
|
0,01337
|
18
|
13,55
|
0,0001798
|
0,01341
|
20
|
13,55
|
0,0001808
|
0,01344
|
22
|
13,54
|
0,0001818
|
0,01348
|
24
|
13,54
|
0,0001828
|
0,01352
|
26
|
13,53
|
0,0001837
|
0,01355
|
28
|
13,53
|
0,0001847
|
0,01359
|
30
|
13,52
|
0,0001857
|
0,01362
|
32
|
13,52
|
0,0001867
|
0,01366
|
34
|
13,51
|
0,0001876
|
0,01369
|
Πίνακας 6: Τιμές της
, Τ χρόνος ροής σε sec

6. Χημικοί Προσδιορισμοί.
6.1. Γενικές Παρατηρήσεις.
6.1.1. Αντιδραστήρια.
Όλα τα αντιδραστήρια πρέπει να είναι χημικώς καθαρά (pro analysis).
6.1.2. Διηθητικό χαρτί (ηθμός).
Οι ηθμοί πρέπει να είναι χωρίς τέφρα. Χρησιμοποιούνται οι τρεις κατηγορίες ηθμών: βραδείας, μέσης και ταχείας διηθήσεως.
6.1.3. Αναλυτικός ζυγός.
Χρησιμοποιείται αναλυτικός ζυγός ακριβείας 0,0001 g.
6.1.4. Τυφλοί προσδιορισμοί.
Συνιστάται να γίνεται σε κάθε προσδιορισμό ενός συστατικού ένας τυφλός προσδιορισμός, που εκτελείται χωρίς δείγμα ή καλύτερα σε δείγμα παραπλήσιας συνθέσεως, το οποίο δεν περιέχει το συστατικό, που πρόκειται να προσδιοριστεί.
6.2. Προσδιορισμός απώλειας πυρώσεως.
6.2.1. Τρόπος εργασίας.
| • | Ζυγίζεται 1 g δείγματος μέσα σε προζυγισμένο χωνευτήριο πλατίνας, χωρητικότητας 20 - 25 ml. |
| • | καλύπτεται το χωνευτήριο και πυρώνεται μέχρι σταθερού βάρους μέσα σε ηλεκτρικό φούρνο, στη θερμοκρασία των 925° ± 25 °C. Διάρκεια αρχικής θερμάνσεως 15 min. Οι επόμενοι χρόνοι θερμάνσεως μέχρι σταθερού, βάρους, είναι της τάξεως των 5 min. |
| • | Ψύχεται κάθε φορά, μέσα σε ξηραντήρα στη θερμοκρασία του περιβάλλοντος και ζυγίζεται. |
6.2.2. Έκφραση αποτελεσμάτων.
Η απώλεια πυρώσεως εκφράζεται % του αρχικού δείγματος, στρογγυλεμένη στο πλησιέστερο 0,1%.
6.3. Προσδιορισμός αδιάλυτου υπολείμματος.
6.3.1. Αντιδραστήρα.
| • | Δείκτης ερυθρού του μεθυλίου. |
| • | Διάλυμα ΝΗ4ΝΟ3 (20 g/L). |
6.3.2. Τρόπος εργασίας.
| • | Ζυγίζεται 1 g δείγματος και ρίχνεται προσεκτικά σε ποτήρι ξέσεως 250 ml. |
| • | Προσθέτονται 10 ml κρύο νερό και με σύγχρονη ισχυρή ανάδευση 5 ml HCL. |
| • | Θερμαίνεται το διάλυμα ελαφρά και διασκορπίζεται το δείγμα με το πλατυσμένο άκρο γυάλινης ράβδου, μέχρι να γίνει πλήρης η αποσύνθεση. |
| • | Αραιώνεται στα 50 ml και διατηρείται για 15 min, σε θερμοκρασία λίγο χαμηλότερη του βρασμού. |
| • | Διηθείται σε ηθμό μέσης διηθήσεως (λευκής ταινίας). |
| • | Εκπλύνεται το υπόστημα 6 φορές με θερμό νερό. |
| • | Μεταφέρεται ο ηθμός με το υπόστημα στο αρχικό ποτήρι της διαλύσεως. |
| • | Προστίθενται 100 ml NaOH και διατηρείται το διάλυμα σε θερμοκρασία λίγο χαμηλότερη του βρασμού για 15 min. |
| • | Οξύνεται το διάλυμα με HCL, με τη χρήση ερυθρού του μεθυλίου σαν δείκτη. |
| • | Προσθέτονται για περίσσεια 4 έως 5 σταγόνες HCL. |
| • | Διηθείται με ηθμό μέσης διηθήσεως. |
| • | Πλύνεται το υπόστημα 12 έως 15 φορές με θερμό διάλυμα NH4NO3. |
| • | Ξηραίνεται, πυρώνεται και ζυγίζεται μέχρι σταθερού βάρους, μέσα σε χωνευτήρι πλατίνας, σε θερμοκρασία 950 °C - 1000 °C. |
6.3.3. Έκφραση αποτελεσμάτων.
Το αδιάλυτο υπόλειμμα εκφράζεται % του αρχικού δείγματος, στρογγυλεμένο στο πλησιέστερο 0,01%.
6.3.4. Παρατήρηση.
Το διήθημα από τη πρώτη διήθηση, το προσδιορισμού του αδιάλυτου υπολείμματος, φυλάγεται για τον προσδιορισμό του S03.
6.4 Προσδιορισμός ολικού οξειδίου του πυριτίου (SIO2)- Μέθοδος Maczkowski.
6.4.1. Αντιδραστήρα.
6.4.2. Αρχή της μεθόδου.
Οι διαλυτές πυριτικές ενώσεις αποσυνθέτονται με HCI, παρουσία ΝΗ4CI το οποίο θρομβώνει το σχηματιζόμενο κολλοειδές διοξείδιο του πυριτίου και επιτρέπει την ταχεία και ποσοτική καταβύθιση του, αφού προηγούμενα θερμανθεί για 30 min σε ατμόλουτρο. Μετά τη διήθηση, πύρωση και ζύγιση, προσδιορίζεται το καθαρό SiO2 από την εξάτμισή του, παρουσία H2SO4 Σαν SiF4.
6.4.3. Τρόπος εργασίας.
| • | Ζυγίζονται 1 g δείγματος και 1 g NH4Cl περίπου και ρίχνονται προσεκτικά μέσα σε ποτήρι ξέσεως 250 ml. |
| • | Αναμιγνύονται καλά με γυάλινη ράβδο. |
| • | Καλύπτεται το ποτήρι ζέσεως με γυαλί ωρολογίου. |
| • | Προσθέτονται αργά με σιφώνια 10 ml HCL, αφήνοντάς το να ρέει στην πλευρά του ποτηριού. |
| • | Αναδεύεται το μείγμα για την αποφυγή σχηματισμού συσσωματωμάτων. |
| • | Θερμαίνεται σε ατμόλουτρο για 30 min, με συχνή ανάδευση του περιεχόμενου. |
| • | Αραιώνεται το σχηματιζόμενο παχύρρευστο προϊόν με 50 ml θερμό αποσταγμένο νερό. |
| • | Διηθείται με ηθμό ταχείας διηθήσεως (μαύρης ταινίας). |
| • | Πλύνεται το ίζημα 2 φορές με θερμό διάλυμα 5% HCL. |
| • | Πλύνεται κατόπιν με θερμό αποσταγμένο νερό μέχρι απουσίας χλωριόντων (έλεγχος με AgNO3). |
| • | Τοποθετείται ο ηθμός με το ίζημα μέσα σε προζυγισμένο χωνευτήριο πλατίνας, καλύπτεται και θερμαίνεται ήπια, ώστε να καεί χωρίς ανάφλεξη. |
| • | Πυρώνεται στους 1150 °C - 1200 °C σε ηλεκτρικό φούρνο για 45 min. |
| • | Ψύχεται σε ξηραντήρα και ζυγίζεται (ζύγιση 1). |
| • | Διαβρέχεται το περιεχόμενο του χωνευτηριού με σταγόνες νερού. |
| • | Προσθέτονται 5 ml καθαρό, πυκνό HF και 3 έως 4 σταγόνες πυκνό H2SO4. |
| • | Εξατμίζεται προσεκτικά το περιεχόμενο του χωνευτηριού σε αμμόλουτρο. |
| • | Πυρώνεται για 5 min σε θερμοκρασία 1150 °C έως 1200 °C. |
| • | Ψύχεται και ζυγίζεται (ζύγιση 2). |
6.4.4. Έκφραση αποτελεσμάτων.
Η διαφορά των δυο ζυγίσεων (ζύγιση 1 - ζύγιση 2) δίνει το καθαρό ολικό SiO2 και εκφράζεται % του αρχικού δείγματος στρογγυλεμένο στο πλησιέστερο 0,1%.
6.4.5. Παρατηρήσεις.
α) Το διήθημα από την εργασία προσδιορισμού του ολικού SiO2, φυλάγεται για τους προσδιορισμούς των άλλων συστατικών.
β) Το περιεχόμενο του χωνευτηρίου στη ζύγιση 1 αποτελείται από το ολικό SiO2 και προσμίξεις οξειδίων του τύπου R2O3.
γ) Το χωνευτήριο στη ζύγιση 2, που περιέχει τα οξείδια R2O3, φυλάσσεται για να χρησιμοποιηθεί στον προσδιορισμό των ολικών οξειδίων R2O3 (παράγραφος 6.5.).
δ) Η θέρμανση, στη σχετικά υψηλή θερμοκρασία των 1150 °C, γίνεται για την απομάκρυνση του SO3, που μπορεί να συγκρατήσουν τα R2O3.
ε) Προσοχή στους ατμούς SiF4. Η όλη εργασία γίνεται μέσα σε καλά λειτουργούντα απαγωγό.
6.5. Προσδιορισμός οξειδίων του τύπου R2O3 (Al2O3, FeO3, TiO2, P2O5 κ.λ.π.)
6.5.1. Αντιδραστήρια.
| • | Βρωμιούχο νερό ή Η2Ο2 3%. |
| • | Δείκτης ερυθρού του μεθυλίου. |
| • | Διάλυμα αμμωνίας 10% απαλλαγμένο CO2. |
6.5.2. Αρχή της μεθόδου.
Καταβύθιση υδροξειδίων με ΝΗ4ΟΗ, παρουσία αμμωνιακών αλάτων και ζύγιση του αθροίσματος των οξειδίων, μετά την πύρωση.
6.5.3. Τρόπος εργασίας.
Στο διήθημα του προσδιορισμού του ολικού SiO2, προσθέτονται 5 ml βρωμιούχο νερό ή Η2Ο2 3% (ο όγκος) αυτός διπλασιάζεται παρουσία μεγάλων συγκεντρώσεων Μn).
| • | Θερμαίνεται για να φύγει η περίσσεια του βρόμιου και εξατμίζεται μέχρι όγκου 150 ml. |
| • | Προσθέτονται 2 έως 3 σταγόνες δείκτη ερυθρού του μεθυλίου και 1 g NH4NO3. |
| • | Καταβυθίζονται τα υδροξείδια με την προσθήκη, κατά σταγόνες, διαλύματος 10% αμμωνίας με σύγχρονη ισχυρή ανάδευση, μέχρις ότου το διάλυμα πάρει κίτρινη χροιά. |
| • | Καλύπτεται το ποτήρι με γυαλί ωρολογίου και παραμένει μερικά λεπτά για την καταβύθιση. |
| • | Αποχύνεται το υπερκείμενο στο ίζημα διάλυμα σε ηθμό μέσης διηθήσεως (λευκής ταινίας), που έχει προπλυθεί με διάλυμα ΝΗ4ΝΟ3 2%. |
| • | Προσθέτεται στο ίζημα ζεστό διάλυμα NH4NOA 2%, διηθείται και πλύνεται με το ίδιο διάλυμα του ΝΗ4ΝΟ3. |
| • | Μεταφέρεται προσεκτικά ο ηθμός με το ίζημα στο ίδιο ποτήρι ζέσεως και αναδιαλύεται, με την προσθήκη θερμού ΗCL 1 ~ 1. |
| • | Κόβεται σε μικρά κομμάτια ο ηθμός και προσθέτονται 2 έως 3 σταγόνες δείκτη ερυθρού του μεθυλίου. |
| • | Καταβυθίζονται για δεύτερη φορά τα υδροξείδια, ε την προσθήκη διαλύματος 10% αμμωνίας. |
| • | Διηθείται σε ηθμό μέσης διηθήσεως και πλύνεται το ίζημα με διάλυμα ΝΗ4NO3 2%. |
| • | Τοποθετείται το ίζημα με τον ηθμό στο χωνευτήριο πλατίνας, που περιέχει το υπόλειμμα από την εξάτμιση του SiF4 (Προσδιορισμός ολικού SiO2 παράγραφος 4.5). |
| • | Καίγεται ο ηθμός, χωρίς ανάφλεξη και πυρώνεται το ίζημα σε θερμοκρασία τουλάχιστον 1100 °C, για 30 min. |
| • | Ψύχεται σε ξηραντήρα και ζυγίζεται. |
| • | Επαναλαμβάνεται η πύρωση και ζύγιση μέχρι σταθερού βάρους. |
6.5.4. Έκφραση αποτελεσμάτων.
Η τελική ζύγιση δίνει τα ολικά οξείδια R2O3, που εκφράζονται % του αρχικού δείγματος, στρογγυλεμένα στο πλησιέστερο 0,1%.
6.5.5. Παρατηρήσεις.
α) Η παρουσία αμμωνιακών αλάτων επιτρέπει καλύτερη εξουδετέρωση, θρόμβωση των κολλοειδών, μειώνει τη συγκράτηση άλλων στοιχείων και εμποδίζει την καταβύθιση υδροξειδίων του Μg και Ca,σχηματίζοντας σύμπλοκα άλατα. Εμποδίζει επίσης τη συγκράτηση NaCl και SO3.
β) Ταυτόχρονα με το Al (ΟΗ)3 και Fe (OH)3 καταβυθίζονται και τα ιόντα Ti4+,PO4 3-, V5+ και Cr3+.
γ) Η παρουσία CO2 στο αμμωνιακό διάλυμα προκαλεί την καταβύθιση μικρής ποσότητας CaO.
δ) Τα διηθήματα που προκύπτουν από τον προσδιορισμό των ολικών οξειδίων R2O3 φυλάγονται για τους προσδιορισμούς των υπολοίπων συστατικών.
6.6. Προσδιορισμός ολικού οξειδίου του ασβεστίου (CaO).
6.6.1 Αντιδραστήρια:
| • | Οξαλικό οξύ, κρυσταλλικό. |
| • | Διάλυμα οξαλικού αμμωνίου 1‰. |
| • | Δείκτης ερυθρού του μεθυλίου. |
| • | Διάλυμα οξαλικού αμμωνίου 5%. |
6.6.2 Αρχή της μεθόδου.
Το ασβέστιο καταβυθίζεται σαν οξαλικό και με πύρωση μετατρέπεται σε οξείδιο ασβεστίου.
6.6.3. Τρόπος εργασίας:
| • | Το διήθημα από τον προσδιορισμό των R2O3 εξατμίζεται μέχρι του όγκου των 300 ml και οξυνίζεται ελαφρά με HCL, με την προσθήκη σταγόνων ερυθρού του μεθυλίου. |
| • | Προσθέτονται 2 g οξαλικό οξύ, θερμαίνεται μέχρι βρασμού και εξουδετερώνεται ενώ βράζει με αραιή αμμωνία 1 ~ 4 μέχρι να πάρει κίτρινο χρώμα. |
| • | Διατηρείται θερμό το διάλυμα για 15 min, ώστε να δοθεί ο απαραίτητος χρόνος για τον πλήρη σχηματισμό του ιζήματος. |
| • | Διηθείται από ηθμό μέσης διηθήσεως και πλύνεται, με αισθητά κύριο διάλυμα οξαλικού αμμωνίου 1 ‰. |
| • | Μεταφέρεται ο ηθμός με το ίζημα στο ποτήρι της πρώτης καταβυθίσεως. |
| • | Προσθέτονται 50 ml HCL 1 ~ 4 για τη διάλυση του ιζήματος και κόβεται ο ηθμός σε μικρά κομμάτια. |
| • | Αραιώνεται στα 200 ml και ρίχνονται 2 έως 3 σταγόνες ερυθρού του μεθυλίου. |
| • | Προσθέτονται 20 ml διάλυμα οξαλικού αμμωνίου 5%. |
| • | Θερμαίνεται σχεδόν μέχρι βρασμού (70 °C - 80 °C) και γίνεται η ανακαταβύθιση του ασβεστίου με διάλυμα αμμωνίας 1 ~ 4, που προστίθεται κατά σταγόνες μέχρι το διάλυμα να πάρει κίτρινο χρώμα. |
| • | Μετά από παραμονή 2 ωρών γίνεται η διήθηση με ηθμό μέσης διηθήσεως και εκπλύνεται με αραιό διάλυμα οξαλικού αμμωνίου 1‰. |
| • | Τοποθετείται το ίζημα με την ηθμό σε προζυγισμένο χωνευτήριο πλατίνας. |
| • | Καίγεται ο ηθμός χωρίς ανάφλεξη και πυρώνεται το ίζημα σε θερμοκρασία τουλάχιστο 1100 °C, για 20 min. |
| • | Ψύχεται σε ξηραντήρα και ζυγίζεται. |
| • | Επαναλαμβάνεται η πύρωση και ζύγιση μέχρι σταθερού βάρους. |
6.6.4. Έκφραση αποτελεσμάτων.
Η τελική ζύγιση δίνει το ολικό CaO, που εκφράζεται % του αρχικού δείγματος, στρογγυλεμένο στο πλησιέστερο 0,1%.
6.6.5. Παρατηρήσεις:
α) Το διήθημα των δυο διηθήσεων, που προκύπτει στον προσδιορισμό του ολικού CaO, φυλάγεται για τον προσδιορισμό του οξειδίου του μαγνησίου (MgO).
β) Σαν αφυδατικό o ξηραντήρας πρέπει να περιέχει κόκκους ασβέστης που ασβεστοποιήθηκε σε χαμηλή θερμοκρασία (900 °C) ή κόκκους Silica gel, που πρόσφατα έχει αφυδατωθεί. Επίσης μπορεί να χρησιμοποιηθεί υπερχλωρικό μαγνήσιο, ενώ το χλωριούχο ασβέστιο είναι κατάλληλο.
6.7. Προσδιορισμός οξειδίου του μαγνησίου.
6.7.1. Αντιδραστήρια.
| • | Κορεσμένο διάλυμα (ΝΗ4)2 HPO4 |
| • | Πυκνή αμμωνία (d = 0,910) |
| • | Διάλυμα αμμωνίας 1 ~ 3, που να περιέχει και 2 ‰ ΝΗ4 NO3. |
6.7.2. Αρχή της μεθόδου.
Το μαγνήσιο καταβυθίζεται ποσοτικά με τη μορφή MgNH4PO4. 6H2O, από όξινο περιβάλλον, με την προσθήκη αμμωνίας, παρουσία περίσσειας αλάτων αμμωνίου. Τα άλατα αμμωνίου μειώνουν τα διαλυτότητα του ιζήματος, και εμποδίζουν την καταβύθιση του μαγνησίου σαν Μg (OH)2. To MgNH4PO4. 6H2O πυρώνεται και μετατρέπεται σε πυροφωσφορικό μαγνήσιο (Mg2P2O7) και ζυγίζεται με τη μορφή αυτή.
6.7.3. Τρόπος εργασίας.
| • | Οξυνίζεται αργά το διήθημα, που προέκυψε από τον προσδιορισμό CaO, με αραιό HCL και εξατμίζεται σε όγκο περίπου 400 ml. |
| • | Στο ζεστό διάλυμα προσθέτονται 20 ml κορεσμένου διαλύματος (ΝΗ4)2 ΗPO4 και περίπου 50 ml πυκνής αμμωνίας. |
| • | Ψύχεται το διάλυμα σε ροή κρύου νερού, σε θερμοκρασία χαμηλότερη του περιβάλλοντος, ενώ σύγχρονα αναδεύεται για 20 έως 30 min. |
| • | Αφήνεται να κατακαθίσει το ίζημα για άλλα 30 min, διηθείται από ηθμό μέσης διηθήσεως και εκπλύνεται καλά το ίζημα με κρύο διάλυμα αμμωνίας 2,5%. Ολοκληρώνεται η έκπλυση με 20 ml διαλύματος αμμωνίας 1 ~ 3 που περιέχει και 2 ‰ ΝΗ4NO3. |
| • | Τοποθετείται ο ηθμός με το ίζημα σε προζυγισμένο χωνευτήριο πλατίνας. |
| • | Καίγεται ο ηθμός χωρίς ανάφλεξη και πυρώνεται το ίζημα στους 1100 °C. |
| • | Ψύχεται σε ξηραντήρα και ζυγίζεται. |
| • | Επαναλαμβάνεται η πύρωση και ζύγιση μέχρι σταθερού βάρους. |
6.7.4. Έκφραση αποτελεσμάτων.
Η τελική ζύγιση δίνει τη μάζα του Mg2P2O7. To MgO εκφράζεται % του αρχικού δείγματος στρογγυλεμένο στο πλησιέστερο 0,1%. Για να g αρχικού δείγματος το MgO υπολογίζεται με τον τύπο:
% MgO = W x 0,3623 x 100
όπου W = Μάζα του Μg2PO7 σε g και 0,3623 ο λόγος των μοριακών βαρών 2 MgO προς Μg2P2O7.
6.7.5. Παρατηρήσεις.
α) Δεν γίνεται τέλια η καταβύθιση του μαγνησίου , όταν υπάρχει μεγάλο ποσό οξαλικών ιόντων στο διάλυμα, διότι σχηματίζονται σύμπλοκα άλατα. Αν η συγκέντρωση του οξαλικού αμμωνίου είναι μεγαλύτερη από 1 g στα 100 ml διαλύματος, τότε εξατμίζεται το διήθημα του προσδιορισμού CaO μέχρι ξηρού, προσθέτονται 40 ml νιτρικό οξύ (d = 1,42), βράζεται μέχρι να φύγουν οι νιτρώδεις ατμοί, αραιώνεται με νερό και συνεχίζεται η εργασία σύμφωνα με την παράγραφο 6.6.3.
β) Το ΜgP2O7 σε υψηλή θερμοκρασία ανάγεται από τον άνθρακα και γι' αυτόν συνιστάται η καύση του ηθμού να γίνεται σε θερμοκρασία, όσο το δυνατό, χαμηλότερη και προσεκτικά, ώστε να μην παραμείνει άκαυστος άνθρακας.
6.8. Προσδιορισμός οξειδίου σιδήρου (Fe2O3).
6.8.1. Αντιδραστήρια.
| • | Διάλυμα χλωριούχου κασσίτερου: Διαλύονται 5 g SnCl2 2H20 σε 10 ml πυκνού HCL και αραιώνονται σε 100 ml. Προσθέτονται τεμάχια μεταλλικού κασσίτερου απαλλαγμένου σιδήρου και βράζεται, έως ότου το διάλυμα να γίνει διαυγές. Το διάλυμα διατηρείται σε ένα σταγονομετρικό φιαλίδιο, που περιέχει μερικά κομμάτια μεταλλικού κασσίτερου. |
| • | Δείκτης διφαινυλο - αμινο - σουλφονικό βάριο Ο,3 g / 100 ml απεσταγμένου νερού. |
| • | Διάλυμα διχρωμικού καλίου (1 ml = 0,004 g Fe2O3): Περιέχει 2,457 g K2Gr2O7 / 1 l απεσταγμένου νερού. |
| • | Κορεσμένο διάλυμα χλωριούχο υδραργύρου. |
6.8.2. Αρχή της μεθόδου.
Ανάγεται ο τρισθενής σίδηρος σε δισθενή με SnCl2 και τιτλοδοτείται με διάλυμα K2Gr2O7. O προσδιορισμός γίνεται σε ξεχωριστό δείγμα.
6.8.3. Τρόπος εργασίας.
| • | Ζυγίζεται 1 g δείγματος μέσα σε κωνική φιάλη των 250 ml, προσθέτονται 40 ml κρύο νερό και με σύγχρονη ισχυρή ανακίνηση, 10 ml πυκνό HCL. |
| • | Θερμαίνεται το διάλυμα και διασκορπίζονται τυχόν συσσωματώματα μέχρι η αποσύνθεση του δείγματος να γίνει πλήρης. |
| • | Θερμαίνεται μέχρι βρασμού. |
| • | Ρίχνεται σε σταγόνες διάλυμα χλωριούχου κασσίτερου, με σύγχρονη ανακίνηση, μέχρι αποχρωματισμού. |
| • | Ρίχνεται επί πλέον 1 σταγόνα διαλύματος SnCl2 και ψύχεται στη θερμοκρασία του περιβάλλοντος. |
| • | Εκπλύνονται τα τοιχώματα της κωνικής φιάλης με αποσταγμένο νερό. |
| • | Προσθέτονται 10 ml κορεσμένου διαλύματος Hg Cl2. |
| • | Ανακινείται καλά για 1 min και προσθέτονται 10 ml διαλύματος 1:1 Η3PO4 και 3 σταγόνες δείκτου διφαινυλο-αμινο-σουλφονικό βάριο. |
| • | Αραιώνεται με αποσταγμένο νερό, ώστε μετά την τιτλοδότηση ο όγκος να είναι 75 έως 100 ml. |
| • | Τιτλοδοτείται με το διάλυμα του K2Gr2O7, μέχρι τη σταγόνα που σχηματίζει έντονο ιώδες χρώμα, το οποίο μένει αμετάβλητο με την προσθήκη και άλλων σταγόνων διαλύματος K2Gr2O7. |
6.8.4. Έκφραση αποτελεσμάτων.
Το FeO2 εκφράζεται % του αρχικού δείγματος, στρογγυλεμένο στο πλησιέστερο 0,1%. Για 1 g αρχικού δείγματος το % Fe2O2 υπολογίζεται από τον τύπο:
% Fe2O3=E.V.100
Όπου:
Ε = Ισοδύναμο σε Fe2O3 του διαλύματος K2Gr2O7, g/ml.
V = ml του διαλύματος K2Gr2O7, που καταναλώθηκαν.
6.8.5. Παρατήρηση.
Για τη διόρθωση των αποτελεσμάτων είναι απαραίτητος ένας τυφλός προσδιορισμός με τον οποίον υπολογίζεται το Fe2O3, που προέρχεται από τα αντιδραστήρια, καθώς και ο όγκος του K2Gr2O7 που καταναλώνεται από το δείκτη.
6.9. Προσδιορισμός οξειδίου του αργιλίου (Al2O3).
Το οξείδιο αυτό προσδιορίζεται από τη διαφορά του συνόλου των οξειδίων R2O3 και του οξειδίου του σιδήρου.
Al2O3% = R2O3% - Fe2O3%
Παρατήρηση:
Στην περίπτωση που συνυπάρχουν στο τσιμέντο αξιόλογες ποσότητες TiO2, V2O5, Cr2O3 και P2O5 πρέπει να γίνονται οι σχετικές διορθώσεις, στο ποσοστό του Al2O3 και να αναφέρονται στο πιστοποιητικά αναλύσεως.
6.10 Προσδιορισμός τριοξειδίου του θείου (SO3).
6.10.1. Αντιδραστήρια.
Διάλυμα χλωριούχου βαρίου: 100 g BaCl2 στο λίτρο διαλύματος.
6.10.2. Αρχή της μεθόδου.
Τα Θειικά καταβυθίζονται σε όξινο περιβάλλον με την προσθήκη BaCl2.
To ίζημα πυρώνεται και ζυγίζεται σαν BaSO4.
6.10.3. Τρόπος εργασίας.
| • | Το διήθημα, από την πρώτη διήθηση του προσδιορισμού του αδιάλυτου υπολείμματος, αραιώνεται στα 250 ml και θερμαίνεται μέχρι βρασμού. |
| • | Προσθέτονται σιγά - σιγά σε σταγόνες 10 ml ζεστό διάλυμα BaCl2 και συνεχίζεται ο βρασμός μέχρι την πλήρη καταβύθιση του ιζήματος. |
| • | Διατηρείται το διάλυμα σε θερμοκρασία ελαφρά μικρότερη του βρασμού για 12 έως 24 ώρες, κατά τη διάρκεια των οποίων το ποτήρι είναι σκεπασμένο με γυαλί ωρολογίου και λαμβάνεται φροντίδα, ώστε ο όγκος του διαλύματος να διατηρείται από 225 έως 260 ml, με την προσθήκη νερού, όταν απαιτείται. |
| • | Διηθείται με ηθμό βραδείας διηθήσεως (κυανής ταινίας) και εκπλύνεται με ζεστό νερό. |
| • | Τοποθετείται ο ηθμός με το ίζημα σε προζυγισμένο χωνευτήριο πλατίνας και καίγεται αργά χωρίς ανάφλεξη. |
| • | Πυρώνεται το ίζημα στους 800 °C έως 900 °C για 15 min, ψύχεται σε ξηραντήρα και ζυγίζεται. |
| • | Η πύρωση, ψύξη και ζύγιση επαναλαμβάνεται μέχρι σταθερού βάρους. |
6.10.4. Έκφραση αποτελεσμάτων.
Η τελική ζύγιση δίνει τη μάζα του BaSO4. To SO3 εκφράζεται % του αρχικού δείγματος, στρογγυλεμένο στο πλησιέστερο 0,1%. Για 1 g αρχικού δείγματος το %SO3 υπολογίζεται με τον τύπο:
% SO3 =W x 0.343 x 100
όπου:
W = μάζα BaSO4, σε g και
0,343 = λόγος των μοριακών βαρών SO4 προς BaSO4.
6.11. Δοκιμή ποζολανικότητας για ποζολανικά τσιμέντα (Pozzolanicity test).
6.11.1. Σκοπός.
Η μέθοδος αυτή περιγράφει τον τρόπον ελέγχου της ποζολανικότητας (δραστικότητας) περιεχόμενης ποζολάνης στα ποζολανικά τσιμέντα.
6.11.2. Αρχή της μεθόδου.
Συγκρίνεται η ποσότητα υδροξειδίου του ασβεστίου της υγρής φάσεως του ενυδατωμένου τσιμέντου, με την ποσότητα υδροξειδίου ασβεστίου κορεσμένου διαλύματος της ιδίας αλκαλικότητας.
Σε ένα ποζολανικό τσιμέντο, η συγκέντρωση Ca(OH)2 στην υγρή φάση είναι πάντοτε μικρότερη της συγκεντρώσεως κορεσμού.
6.11.3. Αντιδραστήρια.
| • | Πρότυπο διάλυμα HCL (0,1N). |
| • | Διάλυμα αμμωνίας (0,5Ν). |
| • | Κορεσμένο διάλυμα οξαλικού αμμωνίου. |
| • | Διάλυμα υπερμαγγανικού καλίου (0,05Ν). |
| • | Περίπου 20 g στερεής παραφίνης (εάν χρησιμοποιείται γυάλινη φιάλη). |
6.11.4. Συσκευές.
| • | Κωνική φιάλη 300 ml από γυαλί ανθεκτικό σε αλκαλικά διαλύματα ή καλύτερα από πλαστικό, με πώμα ελαστικό ή από φελλό με επάλειψη παραφίνης. Πώμα και φιάλη προσαρμόζονται καλά, ώστε να μπορεί να γίνει ισχυρή ανακίνηση του περιεχόμενου με ασφάλεια. |
| • | Ηθμός από πορώδες γυαλί. |
| • | Κωνική φιάλη 250 ml με εσμυρισμένο πώμα. |
| • | Σιφώνια ακριβείας 50 ml και 100 ml. |
| • | Χώρος σταθερής θερμοκρασίας, που μπορεί να ρυθμίζεται στους 40ο=2οC. |
6.11.5. Τρόπος εργασίας.
| • | Επικαλύπτεται το εσωτερικό της κωνικής φιάλης των 300 ml, αν είναι γυάλινη, με 20 g περίπου λιωμένης παραφίνης, το πλεόνασμα της οποίας πρέπει να αφήνεται να στερεοποιηθεί στον πυθμένα ομοιόμορφα. |
| • | Προσθέτονται με σιφώνιο 100 ml αποσταγμένο νερό, πωματίζεται η κωνική και τοποθετείται στο χώρο σταθερής θερμοκρασίας για να αποκτήσει την θερμοκρασία των 40 °C ± 2 °C (περίπου 1 ώρα). |
| • | Στη συνέχεια ρίχνονται στην κωνική φιάλη, με τη βοήθεια του χωνιού, 20 ± 0,01 g δείγματος τσιμέντου. |
| • | Πωματίζεται, ασφαλίζεται καλά η κωνική φιάλη και ανακινείται ισχυρά το περιεχόμενο για 20 sec, ώστε να μην σχηματισθούν συσσωματώματα τσιμέντου. |
| • | Τοποθετείται ξανά η κωνική φιάλη στο χώρο σταθερής θερμοκρασίας με τη φροντίδα, ώστε ο πυθμένας της να είναι τέλεια οριζόντιος, για να εξασφαλίζεται ομοιόμορφη στρώση τσιμέντου. |
Παρατήρηση:
Όλοι οι χειρισμοί, που γίνονται έξω από το χώρο σταθερής θερμοκρασίας, πρέπει να εκτελούνται όσο το δυνατό ταχύτερα, για να αποφεύγεται σημαντική μείωση της θερμοκρασίας, του περιεχομένου της κωνικής φιάλης.
| • | Μετά από παραμονή 7 ημερών σταθερής θερμοκρασίας διηθείται γρήγορα το υγρό στον ηθμό από πορώδες γυαλί και μαζεύεται το διήθημα στην κωνική φιάλη με το εσμυρισμένο πώμα. |
| • | Αφήνεται να ψυχθεί στη θερμοκρασία του περιβάλλοντος. |
| • | Ανακατεύεται καλά. Λαμβάνονται με σιφώνιο 50 ml διαλύματος και μεταφέρονται στο ποτήρι ζέσεως των 250 ml. |
| • | Προσδιορίζεται η ολική αλκαλικότητα με το πρότυπο διάλυμα HCL (O,1N) και δείκτη ερυθρό του μεθυλίου. |
| • | Καταβυθίζεται το ασβέστιο, που περιέχεται στο διάλυμα, σαν οξαλικό ασβέστιο, σε αμμωνιακό περιβάλλον. |
| • | Διηθείται και πλύνεται με κρύο νερό. |
| • | Το ίζημα διαλύεται με τη βοήθεια αραιού Η3SO4 και τιτλοδοτείται με το διάλυμα του υπερμαγγανικού καλίου (0,05Ν). |
6.11.6. Έκφραση αποτελεσμάτων.
Εκφράζεται η ολική αλκαλικότητα σε mmol OH-/L και η περιεκτικότητα σε CaO σε mmol CaO/L και ορίζεται το σημείο, που έχει αυτά σαν συντεταγμένες, πάνω σε διάγραμμα ποζολανικότητας (Σχήμα 9).
Αν το σημείο αυτό (Μ) ευρίσκεται κάτω από την καμπύλη διαλυτικότητας, η περιεχόμενη στο τσιμέντο ποζολάνη θεωρείται ικανοποιητικής ποζολανικότητας.
Αν το σημείο βρίσκεται πολύ κοντά η πάνω στη καμπύλη διαλυτότητας, επαναλαμβάνεται η δοκιμή με παραμονή της φιάλης στο χώρο σταθερής θερμοκρασίας για 14 ημέρες. Στην περίπτωση αυτή, αν το σημείο, που ορίζεται με τα νέα αποτελέσματα, βρίσκεται κάτω από την καμπύλη ή ποζολάνη θεωρείται ικανοποιητικής ποζολανικότητας.

Σχήμα 9: Διάγραμμα ποζολανικότητας