Προεδρικό διάταγμα 23/6/05c - Άρθρο 1

Άρθρο 1


Συνδεθείτε στην Υπηρεσία Νομοσκόπιο
Είσοδος στην υπηρεσία Νομοσκόπιο.
   
Χρήστης
Κωδικός
  Υπενθύμιση στοιχείων λογαριασμού
   
 
Νέοι χρήστες
Εάν είστε νέος χρήστης, θα πρέπει να δημιουργήσετε ένα ΔΩΡΕΑΝ λογαριασμό προκειμένου να φύγει το παράθυρο αυτό και να αποκτήσετε πλήρη πρόσβαση στην υπηρεσία Νομοσκόπιο.
Δημιουργία νέου λογαριασμού

 

 

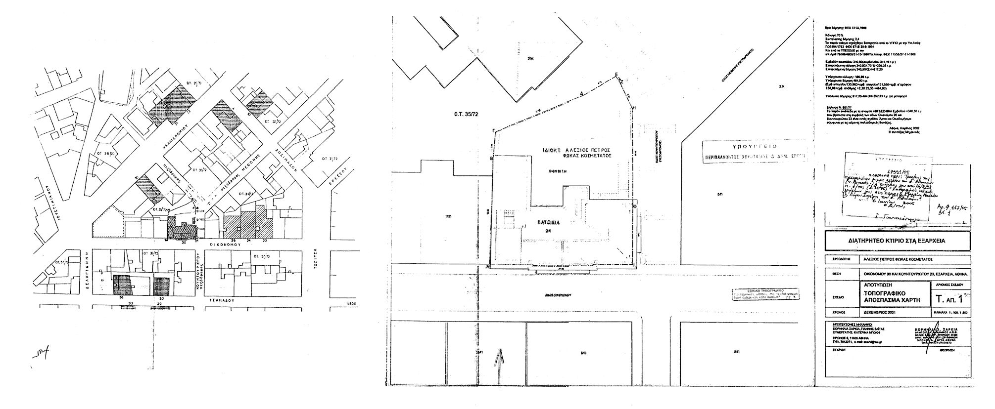
Εγκρίνεται η τροποποίηση του εγκεκριμένου ρυμοτομικού σχεδίου του δήμου Αθηναίων (νομού Αττικής) και ειδικότερα στο οικοδομικό τετράγωνο 35 περιοχής 72 που εμπίπτει στο τμήμα της πόλης που έχει χαρακτηρισθεί ως παραδοσιακό με το από 03-10-1991 προεδρικό διάταγμα (ΦΕΚ 797/Δ/1991), με τον αποχαρακτηρισμό του τμήματος αυτού με στοιχεία ΕΖΗΙΕ από χώρο Δημοτικού Πολιτιστικού κτιρίου, όπως φαίνεται στο σχετικό πρωτότυπο διάγραμμα σε κλίμακα 1:500, που θεωρήθηκε από τον Προϊστάμενο της Διεύθυνσης Τοπογραφικών Εφαρμογών με την 17991/2005 πράξη του και που αντίτυπό του σε φωτοσμίκρυνση δημοσιεύεται με την παρούσα απόφαση.

 

pd.23.6.05c



Copyright © 2020 TechnoLogismiki. Με την επιφύλαξη παντός δικαιώματος.