Προεδρικό διάταγμα 23/3/11b - Άρθρο 1

Άρθρο 1


Συνδεθείτε στην Υπηρεσία Νομοσκόπιο
Είσοδος στην υπηρεσία Νομοσκόπιο.
   
Χρήστης
Κωδικός
  Υπενθύμιση στοιχείων λογαριασμού
   
 
Νέοι χρήστες
Εάν είστε νέος χρήστης, θα πρέπει να δημιουργήσετε ένα ΔΩΡΕΑΝ λογαριασμό προκειμένου να φύγει το παράθυρο αυτό και να αποκτήσετε πλήρη πρόσβαση στην υπηρεσία Νομοσκόπιο.
Δημιουργία νέου λογαριασμού

 

 

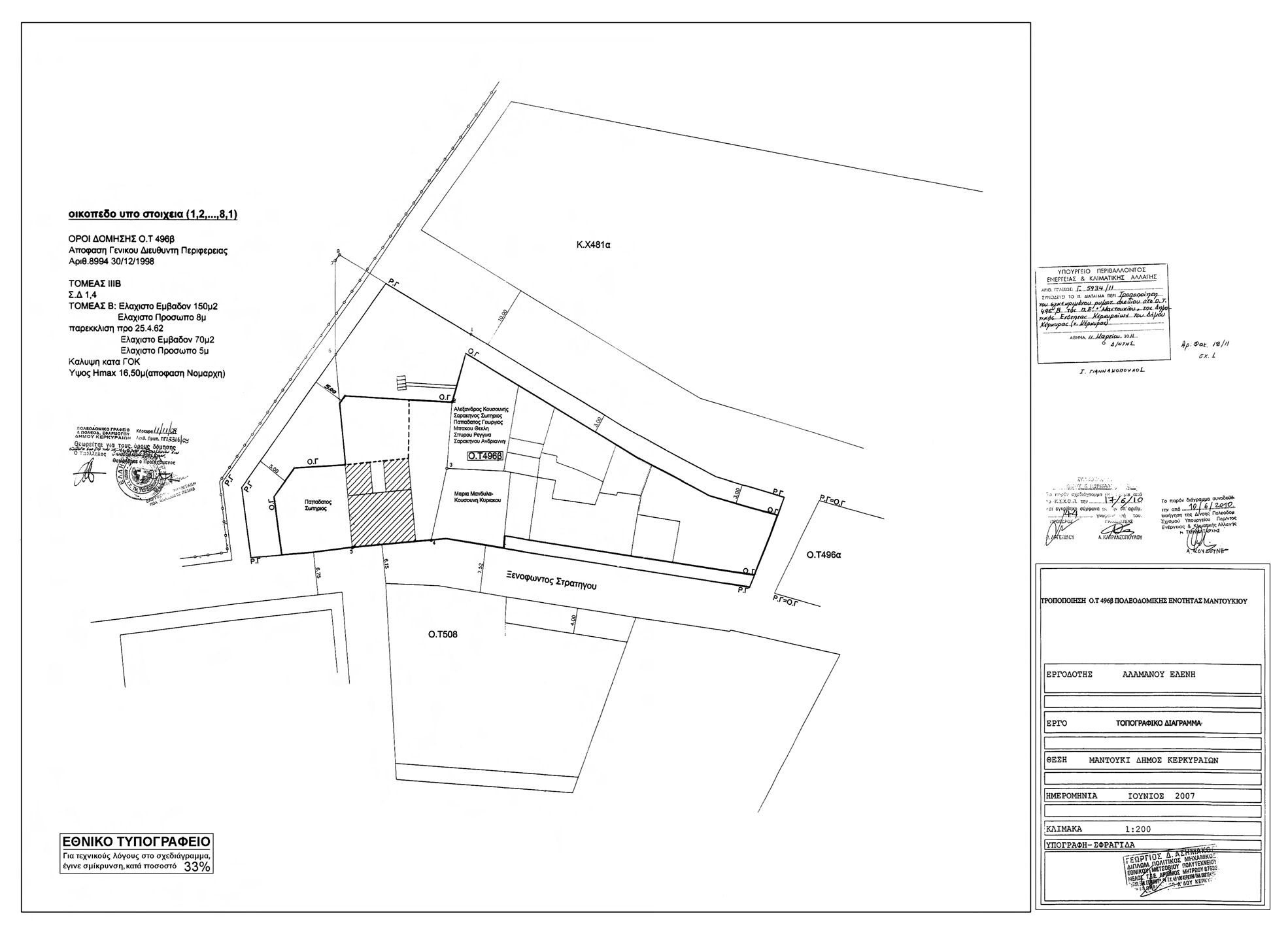
Εγκρίνεται η τροποποίηση του εγκεκριμένου ρυμοτομικού σχεδίου της Δημοτικής Ενότητας Κερκυραίων του Δήμου Κέρκυρας (νομού Κέρκυρας) και ειδικότερα με την μετατόπιση της οικοδομικής γραμμής στο Οικοδομικό Τετράγωνο 496Β της Πολεοδομικής Ενότητας Μαντουκίου, όπως φαίνεται στο σχετικό πρωτότυπο διάγραμμα σε κλίμακα 1:200 που θεωρήθηκε από τον Προϊστάμενο της Διεύθυνσης Τοπογραφικών Εφαρμογών με την 5934/2011 πράξη του και που αντίτυπό του σε φωτοσμίκρυνση δημοσιεύεται με το παρόν διάταγμα.

 

pd.23.3.11b



Copyright © 2020 TechnoLogismiki. Με την επιφύλαξη παντός δικαιώματος.