Προεδρικό διάταγμα 19/1/12b - Άρθρο 1

Άρθρο 1


Συνδεθείτε στην Υπηρεσία Νομοσκόπιο
Είσοδος στην υπηρεσία Νομοσκόπιο.
   
Χρήστης
Κωδικός
  Υπενθύμιση στοιχείων λογαριασμού
   
 
Νέοι χρήστες
Εάν είστε νέος χρήστης, θα πρέπει να δημιουργήσετε ένα ΔΩΡΕΑΝ λογαριασμό προκειμένου να φύγει το παράθυρο αυτό και να αποκτήσετε πλήρη πρόσβαση στην υπηρεσία Νομοσκόπιο.
Δημιουργία νέου λογαριασμού

 

 

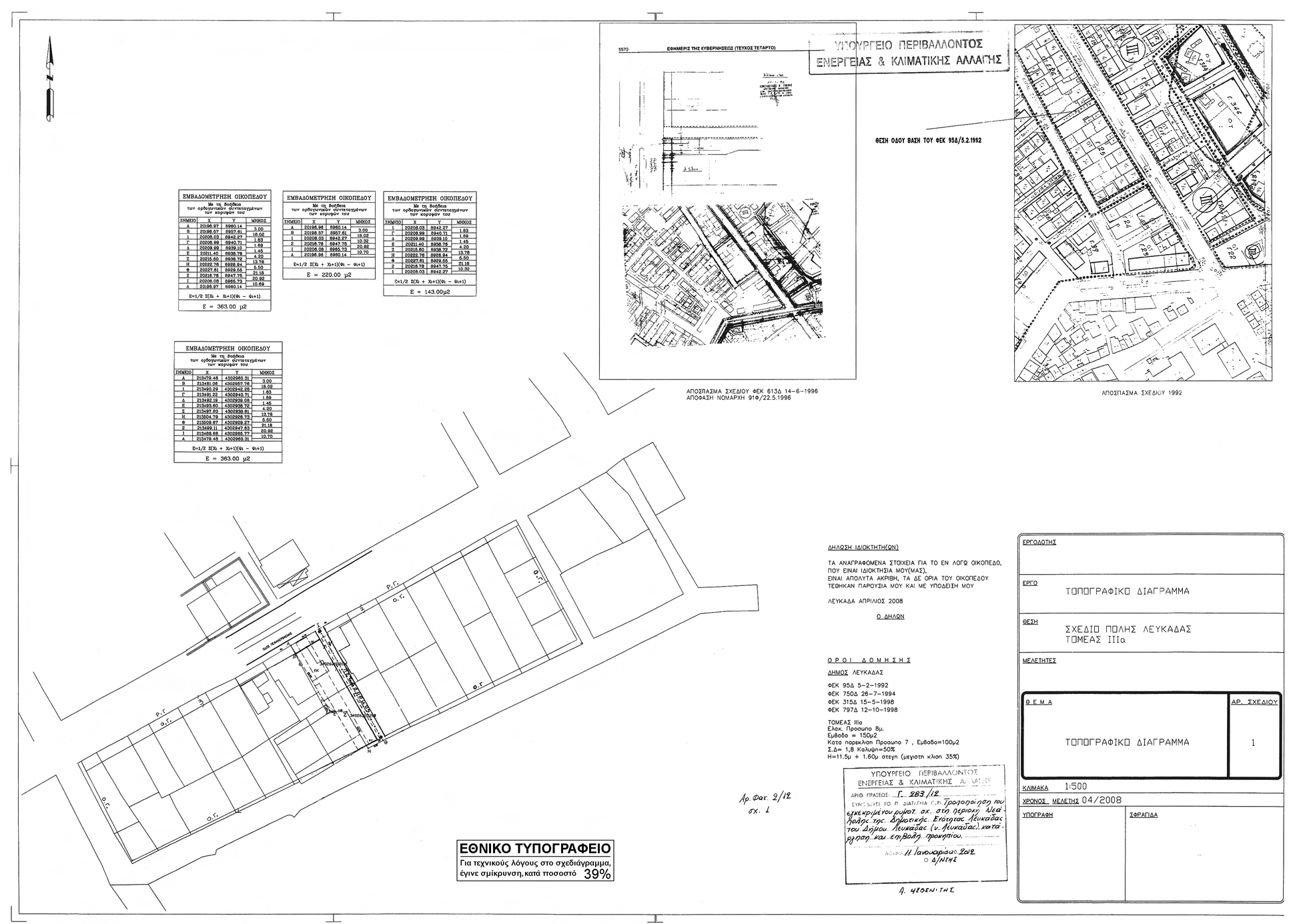
Εγκρίνεται η τροποποίηση του εγκεκριμένου ρυμοτομικού σχεδίου της δημοτικής ενότητας Λευκάδας του Δήμου Λευκάδας (Νομού Λευκάδας) στη περιοχή Νεάπολης στα οικοδομικά τετράγωνα που βρίσκονται μεταξύ των οδών Πεφανερωμένης και Ζαμπέλη με τη μετατόπιση οικοδομικών και ρυμοτομικών γραμμών, τη κατάργηση του μεταξύ αυτών πεζοδρόμου και έγκριση νέου, όπως φαίνεται στο σχετικό πρωτότυπο διάγραμμα σε κλίμακα 1:500 που θεωρήθηκε από τον Προϊστάμενο της Διεύθυνσης Τοπογραφικών Εφαρμογών με την υπ' αριθμόν 283/2012 πράξη του και που αντίτυπο του σε φωτοσμίκρυνση δημοσιεύεται με το παρόν διάταγμα.

 

pd.19.1.12b



Copyright © 2020 TechnoLogismiki. Με την επιφύλαξη παντός δικαιώματος.