| Συνδεθείτε στην Υπηρεσία Νομοσκόπιο | | | | | Νέοι χρήστες | | Εάν είστε νέος χρήστης, θα πρέπει να δημιουργήσετε ένα ΔΩΡΕΑΝ λογαριασμό προκειμένου να φύγει το παράθυρο αυτό και να αποκτήσετε πλήρη πρόσβαση στην υπηρεσία Νομοσκόπιο. | | Δημιουργία νέου λογαριασμού | | |
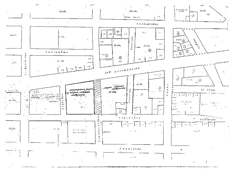
Εγκρίνεται η τροποποίηση του εγκεκριμένου ρυμοτομικού σχεδίου του Δήμου Πειραιά (νομού Αττικής) στο τμήμα της πόλης που έχει χαρακτηριστεί ως παραδοσιακό (Ιστορικό Κέντρο Πειραιά) με το από 27-07-1982 προεδρικό διάταγμα (ΦΕΚ 410/Δ/1982) και ειδικότερα στο οικοδομικό τετράγωνο 130 που περικλείεται από τις οδούς 34ου Συντάγματος Πεζικού, Ευαγγελίστριας, Ευριπίδου και Ζεύξιδος και στο οικοδομικό τετράγωνο 143 που περικλείεται από τις οδούς 34ου Συντάγματος Πεζικού, Πύλης Ευριπίδου και Ευαγγελίστριας, με τον καθορισμό κοινοχρήστου χώρου και υπογείου χώρου στάθμευσης αυτοκινήτων στο οικοδομικό τετράγωνο 130, την έγκριση οδού εντός του οικοδομικού τετραγώνου 143, τη δημιουργία νέων οικοδομικών τετραγώνων και τον καθορισμό υπόγειου χώρου στάθμευσης αυτοκινήτων, στο οικοδομικό τετράγωνο 143Α όπως φαίνεται στο σχετικό πρωτότυπο διάγραμμα σε κλίμακα 1:500 που θεωρήθηκαν από τον Προϊστάμενο της Διεύθυνσης Τοπογραφικών Εφαρμογών με την 6919/1997 πράξη του και που αντίτυπό του σε φωτοσμίκρυνση δημοσιεύεται με το παρόν διάταγμα.
