Προεδρικό διάταγμα 14/4/10c - Άρθρο 1

Άρθρο 1


Συνδεθείτε στην Υπηρεσία Νομοσκόπιο
Είσοδος στην υπηρεσία Νομοσκόπιο.
   
Χρήστης
Κωδικός
  Υπενθύμιση στοιχείων λογαριασμού
   
 
Νέοι χρήστες
Εάν είστε νέος χρήστης, θα πρέπει να δημιουργήσετε ένα ΔΩΡΕΑΝ λογαριασμό προκειμένου να φύγει το παράθυρο αυτό και να αποκτήσετε πλήρη πρόσβαση στην υπηρεσία Νομοσκόπιο.
Δημιουργία νέου λογαριασμού

 

 

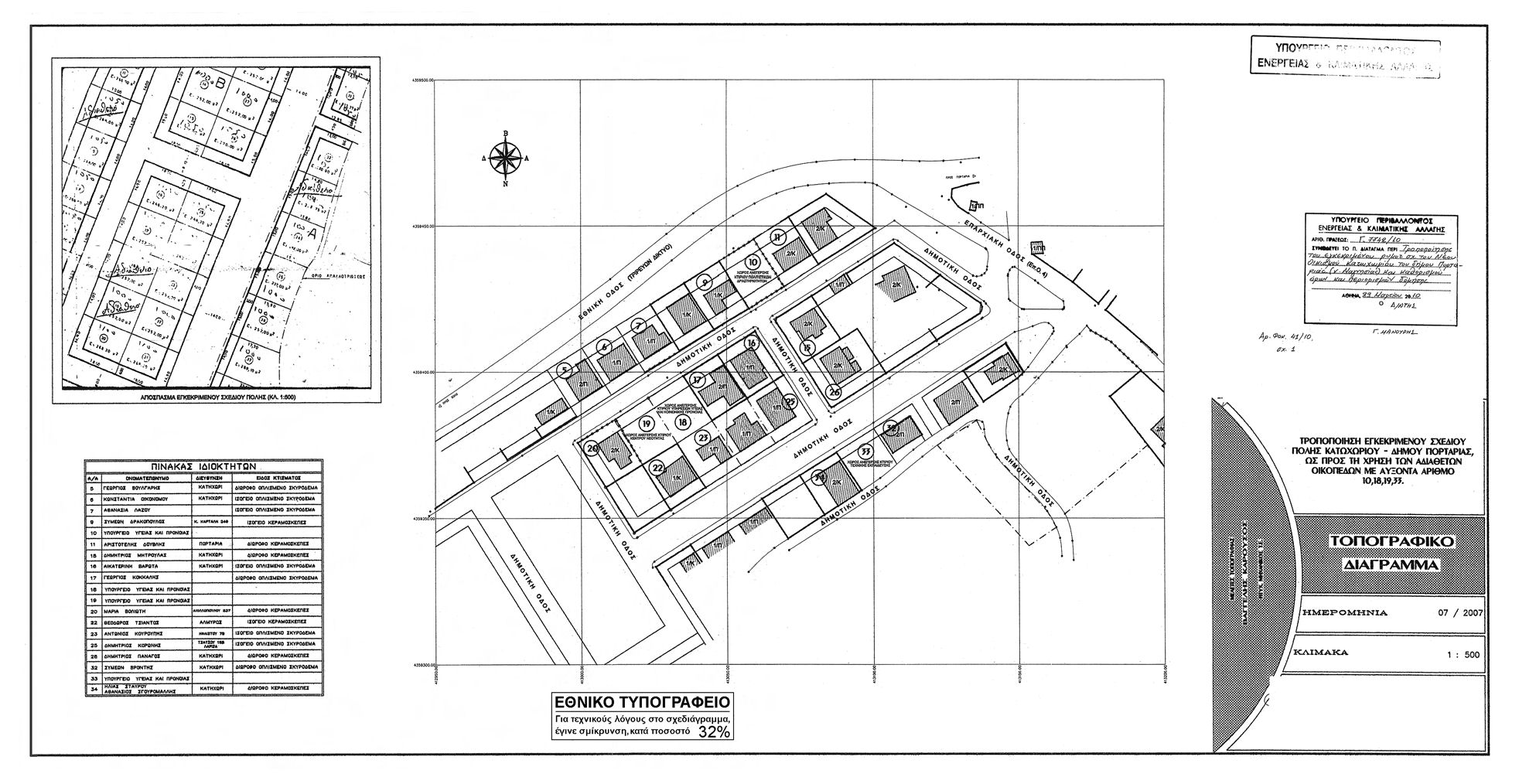
Εγκρίνεται η τροποποίηση του εγκεκριμένου ρυμοτομικού σχεδίου του Νέου Οικισμού Κατωχωρίου του Δήμου Πορταριάς (νομός Μαγνησίας), ο οποίος έχει χαρακτηρισθεί ως παραδοσιακός οικισμός με το από 11-06-1980 προεδρικό διάταγμα (ΦΕΚ 374/Δ/1980), και ειδικότερα με το καθορισμό των οικοπέδων με αύξοντα αριθμό 10, 18, 19 και 33 ως χώρων για την ανέγερση κτιρίων πολιτιστικών δραστηριοτήτων, υπηρεσιών υγείας και κοινωνικής πρόνοιας, κέντρου νεότητας και τεχνικής εκπαίδευσης αντίστοιχα, όπως φαίνεται στο σχετικό πρωτότυπο διάγραμμα σε κλίμακα 1:500, που θεωρήθηκε από τον Προϊστάμενο της Διεύθυνσης Τοπογραφικών Εφαρμογών του Υπουργείου Περιβάλλοντος και Κλιματικής Αλλαγής με την υπ' αριθμόν 7742/2010 πράξη του και που αντίτυπό του σε φωτοσμίκρυνση δημοσιεύεται με το παρόν διάταγμα.

 

pd.14.4.10c



Copyright © 2020 TechnoLogismiki. Με την επιφύλαξη παντός δικαιώματος.