Προεδρικό διάταγμα 13/1/00b - Άρθρο 1

Άρθρο 1


Συνδεθείτε στην Υπηρεσία Νομοσκόπιο
Είσοδος στην υπηρεσία Νομοσκόπιο.
   
Χρήστης
Κωδικός
  Υπενθύμιση στοιχείων λογαριασμού
   
 
Νέοι χρήστες
Εάν είστε νέος χρήστης, θα πρέπει να δημιουργήσετε ένα ΔΩΡΕΑΝ λογαριασμό προκειμένου να φύγει το παράθυρο αυτό και να αποκτήσετε πλήρη πρόσβαση στην υπηρεσία Νομοσκόπιο.
Δημιουργία νέου λογαριασμού

 

 

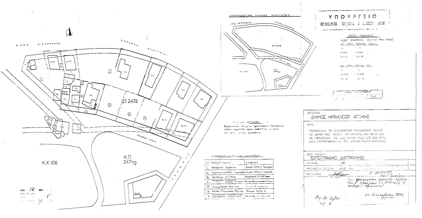
Εγκρίνεται η τροποποίηση του εγκεκριμένου ρυμοτομικού σχεδίου του Δήμου Ηρακλείου (νομού Αττικής) και ειδικότερα στο οικοδομικό τετράγωνο 247Δ με την μετατόπιση των ρυμοτομικών και οικοδομικών γραμμών όπως φαίνεται στο σχετικό πρωτότυπο διάγραμμα σε κλίμακα 1:500, που θεωρήθηκε από τον Προϊστάμενο της Διεύθυνσης Τοπογραφικών Εφαρμογών με την 32794/1999 πράξη του και που αντίτυπό του σε φωτοσμίκρυνση δημοσιεύεται με το παρόν διάταγμα.

 

pd.13.1.00b



Copyright © 2020 TechnoLogismiki. Με την επιφύλαξη παντός δικαιώματος.