| Συνδεθείτε στην Υπηρεσία Νομοσκόπιο | | | | | Νέοι χρήστες | | Εάν είστε νέος χρήστης, θα πρέπει να δημιουργήσετε ένα ΔΩΡΕΑΝ λογαριασμό προκειμένου να φύγει το παράθυρο αυτό και να αποκτήσετε πλήρη πρόσβαση στην υπηρεσία Νομοσκόπιο. | | Δημιουργία νέου λογαριασμού | | |
1. Γενικά
Ως μικρά ορίζονται τα τεχνικά έργα με ελαφρύ ορθό άνοιγμα μικρότερο ή ίσο των 6,00 m. Τεχνικά κυκλικής διατομής με διάμετρο μικρότερη του 1,00 m θεωρούνται σωληνωτοί οχετοί αντιστήριξης μέχρι και 8,0 m ύψος.
Τα μικρά τεχνικά είναι συνήθως οχετοί ή διαβάσεις μικρών οχημάτων ή / και πεζοδιαβάσεις ανεξαρτήτου μήκους.
2. Διάρκεια ζωής
Όλα τα κατασκευαστικά στοιχεία των μικρών τεχνικών θα μελετηθούν για ελάχιστη διάρκεια ζωής 100 ετών.
3. Ορισμοί
Βλέπε παράγραφο 1.3 Μελέτης Τεχνικών Έργων
4. Αισθητική και περιβαλλοντική θεώρηση
Βλέπε παράγραφο 1.4.3 Μελέτης Τεχνικών Έργων
5. Γεωμετρικό σχεδιασμός διαβάσεων και οχετών
5.1. Διαβάσεις μικρών οχημάτων
Για την κατηγορία των διαβάσεων μικρών οχημάτων που θεωρούνται ότι εξυπηρετούν τις διαβάσεις πεζών και μικρών οχημάτων, τα απαιτούμενα χαρακτηριστικά του ελευθέρου χώρου έχουν ως ακολούθως:
α) Κύριες διαβάσεις μικρών οχημάτων
Ελεύθερο πλάτος: LΕΛ = 6,00 m
Ελεύθερο ύψος: ΗΕΛ = 3,00 m
β) Δευτερεύουσες διαβάσεις μικρών οχημάτων
Ελεύθερο πλάτος: LΕΛ = 4,00 m
Ελεύθερο ύψος: ΗΕΛ = 3,00 m
5.2. Πεζοδιαβάσεις
Για την κατηγορία των πεζοδιαβάσεων που κατασκευάζονται με Κάτω Διάβαση τα απαιτούμενα χαρακτηριστικά του ελεύθερου χώρου έχουν ως ακολούθως:
α) Πεζοδιαβάσεις μεγάλου μήκους (Μήκους Μ > 40,0 m)
Ελεύθερο πλάτος: LΕΛ = 6,00 m
Ελεύθερο ύψος: ΗΕΛ = 2,50 m
β) Πεζοδιαβάσεις συνήθους μήκους (Μήκους Μ ≤ 40,0 m)
Ελεύθερο πλάτος: LΕΛ = 4,00 m
Ελεύθερο ύψος: HΕΛ = 2,50 m
Για πεζοδιαβάσεις που εξυπηρετούν μεγάλη κυκλοφορία πεζών, το ελεύθερο πλάτος τους θα προκύπτει από σχετικό υπολογισμό, δεν θα μπορεί όμως να είναι μικρότερο από το παραπάνω ελάχιστο πλάτος.
5.3. Οχετοί
Ο γεωμετρικός σχεδιασμός των τεχνικών όσον αφορά τους οχετούς θα παίρνει υπόψη τις παρακάτω απαιτήσεις, καθώς και των Προδιαγραφών Κατασκευής Έργου.
(1) Οι οχετοί πρέπει να σχεδιάζονται με τέτοιο τρόπο ώστε να λαμβάνονται επαρκώς υπόψη οι υδραυλικές συνθήκες του προς παροχέτευση ρέματος.
(2) Γενικά οι οχετοί θα σχεδιάζονται κατά τρόπον ώστε να μην προκύπτει υπερύψωση της ελεύθερης επιφάνειας του νερού ανάντη του οχετού και η διατομή του οχετού να εξασφαλίζει ελεύθερη ροή με ύπαρξη ελεύθερου περιθωρίου για την παροχή υπολογισμού (βλέπε παράγραφο 6.4).
Κατ' εξαίρεση είναι δυνατόν σε δυσχερείς θέσεις να περιορίζεται ή/και να μηδενίζεται το ελεύθερο περιθώριο, σύμφωνα με όσα αναφέρονται στην παράγραφο 6.4 (3).
(3) Οι άξονες εισόδου και εξόδου των οχετών πρέπει πάντοτε να ευρίσκονται στον άξονα του ρέματος.
(4) Γενικά είναι επιθυμητό οι οχετοί να κατασκευάζονται με ευθύγραμμη χάραξη. Επιτρέπεται η κατασκευή καμπύλων οχετών με ελάχιστη ακτίνα οριζοντιογραφικής καμπύλης ίση προς το δεκαπλάσιο του ελεύθερου ανοίγματος του οχετού.
Σε δυσχερείς περιπτώσεις θα είναι δυνατόν να επιτραπεί η κατασκευή οριζοντίων καμπυλών μικρότερης ακτίνας, ύστερα από λεπτομερειακό υπολογισμό και μετά από σύμφωνη γνώμη της Υπηρεσίας.
(5) Παραδοχές υδραυλικού υπολογισμού των οχετών
Α' Περίπτωση Υπολογισμού
Ο υδραυλικός υπολογισμός των οχετών θα γίνεται με υπολογισμό ανομοιόμορφης ροής συνεκτιμώμενης της υπερύψωσης στις καμπύλες αλλά και της εισρόφησης αέρα για ταχύτητες μεγαλύτερες των 6,00 m/sec.
Ο υδραυλικός υπολογισμός με ανομοιόμορφη ροή γίνεται είτε αναλυτικά χρησιμοποιώντας ευρύτατα αποδεκτές μεθόδους (π.χ. Standard step method ή Direct step method) με επίλυση προς τα ανάντη όταν η ροή είναι υποκρίσιμη ή προς τα κατάντη όταν η ροή είναι υπερκρίσιμη, είτε με την χρήση ευρύτατα αποδεκτών λογισμικών πακέτων.
Για την ακρίβεια των υπολογισμών θα πρέπει να καθορίζονται στα δεδομένα οι αρχικές συνθήκες ροής (βάθος - ταχύτητα) και στα αποτελέσματα οι τελικές συνθήκες ροής (βάθος - ταχύτητα).
Όμοια θα πρέπει να εισέρχονται στους υπολογισμούς οι τοπικές συνθήκες με την επιλογή κατάλληλων συντελεστών τραχύτητας (Manning) και απωλειών ενέργειας.
Για τον έλεγχο θα πρέπει όλοι οι υπολογισμοί να αναφέρονται σε συγκεκριμένες διατομές, οι οποίες θα συμπεριλαμβάνουν χαρακτηριστικά σημεία του έργου.
Στους παραπάνω υπολογισμούς πρέπει να περιλαμβάνονται επίσης και τα έργα εισόδου και εξόδου του οχετού ώστε να καθορίζεται η μηκοτομή της επιφάνειας του νερού κατά τη διαδρομή του διαδοχικά από την φυσική κοίτη προς τον οχετό μέσω του έργου εισόδου (περιοχή πτερυγότοιχων) και στη συνέχεια προς τη φυσική κοίτη μέσω του έργου εξόδου.
Για οχετούς με παροχές μικρότερες των 5,00 m3/sec και για κατά μήκος κλίσεις μικρότερες του 5%, ο αναλυτικός υπολογισμός μπορεί να αντικαθίσταται με απλούς ελέγχους οι οποίοι θα εξασφαλίζουν:
| • | ότι εντός του οχετού και των έργων εισόδου-εξόδου δεν γίνονται υδραυλικά άλματα |
| • | ότι το μήκος της μεταβαλλόμενης ροής δεν θα ξεπερνά το μήκος του οχετού |
| • | ότι ο οχετός θα λειτουργεί χωρίς υπερπλήρωση και συνεπώς δεν θα λειτουργεί υπό πίεση. |
| • | ότι θα είναι γνωστές οι ταχύτητες εισόδου στο έργο εισόδου και εξόδου στο έργο εξόδου. |
Για το λόγο αυτό ανάλογα με την κατάσταση της εισερχόμενης ροής πρέπει:
(i) Όταν η ροή από το υδατόρεμα έρχεται σε υποκρίσιμη κατάσταση
(i-1) Για υποκρίσιμη ροή από την είσοδο μέχρι και την έξοδο να ισχύουν οι περιορισμοί:
Η < Η*
Yt > YC
(i-2) Για υποκρίσιμη ροή από την είσοδο και μέσω του οχετού αλλά με υπερκρίσιμη στην έξοδο (έλεγχος στην είσοδο) να ισχύουν οι περιορισμοί:
Η < Η*
Yt < YC
(i-3) Για υπερκρίσιμη ροή από την είσοδο και μέσω του οχετού αλλά με υποκρίσιμη στην έξοδο (έλεγχος στην έξοδο) να ισχύουν οι περιορισμοί
Η < Η*
Yt < YC
Στις παραπάνω σχέσεις είναι
Η: το βάθος ροής ανάντη
Η*: = 1,50 x d (d είναι το ύψος του οχετού)
Yt: το βάθος ροής κατάντη
YC: το κρίσιμο βάθος ροής για την υφιστάμενη κλίση του οχετού
(ii) Όταν η ροή από το υδατόρεμα έρχεται σε κρίσιμη ή υπερκρίσιμη κατάσταση τότε θα πρέπει να διατηρείται σε όλες τις θέσεις ελέγχου η κατάσταση αυτή ώστε να μη συμβαίνει υδραυλικό άλμα στον οχετό ή στην περιοχή των έργων. Στην περίπτωση αυτή είναι σημαντικό οι ταχύτητες να είναι εντός των επιτρεπομένων ορίων και η ροή να έχει την απαραίτητη ενέργεια για να διέλθει από τον οχετό. Πρέπει δηλαδή να γίνεται έλεγχος της ενέργειας στις διατομές εισόδου με τη σχέση:

Όπου:
Ε: το ύψος της γραμμής ενέργειας
Υ: το βάθος ροής
V: η ταχύτητα ροής
g: η επιτάχυνση της βαρύτητας
z: βάθος ροής
(iii) Στις παραπάνω περιπτώσεις (i έως και ii) για το σχεδιασμό των έργων εισόδου και τον καθορισμό του μήκους της μεταβαλλόμενης ροής θα πρέπει να γίνεται χρήση των εξισώσεων:


Όπου είναι:
ΔX: το μήκος μεταξύ των ελεγχομένων διατομών
ΔE: η διαφορά στις στάθμες της γραμμής ενέργειας
S0: η κλίση του πυθμένα
Sf: η κλίση από τις απώλειες τριβής
n: ο συντελεστής Manning
V: η ταχύτητα ροής
R: η υδραυλική ακτίνα
(iv) Όταν η κατά μήκος κλίση του οχετού υπερβαίνει την τιμή 10% τότε θα πρέπει να διατάσσονται βαθμίδες (πτώσεις) σε αποστάσεις μεγαλύτερες των 5,00 m και με μέγιστο ύψος 0,50 m ώστε να διατηρείται η ταχύτητα στα επιτρεπόμενα όρια (παράγραφος 6.2.3).
Εάν δεν είναι δυνατός ο έλεγχος της ροής με την διάταξη των παραπάνω βαθμίδων τότε ο σχεδιασμός του οχετού θα γίνεται με την διάταξη συνεχών βαθμίδων αλλά με μηδενική κλίση πατημάτων σύμφωνα με τα όσα αναφέρονται στην προδιαγραφή:
CIRIA REPORT 33 The hydraulic design of stepped spillways
(v) Για την περίπτωση επίσης που η κλίση υπερβαίνει την τιμή 12% και για αναπτυσσόμενες ταχύτητες πάνω από 7,00 m/sec θα πρέπει να ελέγχεται εάν η ροή είναι εντός των παραδοχών ισχύος της γραμμικής κατανομής των πιέσεων στη διατομή της ροής (μη-μόνιμη ροή)
(vi) Επίσης θα πρέπει σε οποιοδήποτε υπολογιστικό βήμα ή έλεγχο να υπολογίζεται ο αριθμός Froude και να εμφανίζεται στους υπολογιστικούς πίνακες ώστε να είναι γνωστή στον έλεγχο η κατάσταση της ροής.
Β' Περίπτωση Υπολογισμού
Κατά τους υδραυλικούς υπολογισμούς οχετών σε περιοχές με περιβαλλοντικά προβλήματα και για παροχές μεγαλύτερες των 50 m3/sec επιβάλλεται να γίνεται συνεκτίμηση του όγκου της στερεοπαροχής και επίλυση του προβλήματος στερεοπαροχής με αποδεκτές μεθόδους (π.χ. σχέση Φ=f(ψ), Einstein).
Σε περίπτωση οχετών μεγάλου ελεύθερου ανοίγματος (π.χ. LW > 2,00 m) συνιστάται να γίνεται διαμόρφωση του οχετού με αμετάβλητη τη μέση υγρά διατομή.
Διεύρυνση της διατομής απορροής στη θέση του οχετού σε σχέση με τη διατομή του ρέματος πρέπει να αποφεύγεται γιατί παρουσιάζονται κίνδυνοι αποθέσεων.
Το στόμιο εισόδου και εξόδου των οχετών πρέπει να προστατεύονται με κατάλληλο τρόπο (π.χ. με λιθορριπές, λιθοστρώσεις και ενδεχομένως με στρώση σκυροδέματος κατάλληλα αγκυρωμένη με χαλινούς).
Η κλίση των πρανών του οδικού / σιδηροδρομικού έργου, βάσει της οποίας θα γίνεται η διαμόρφωση των πτερυγότοιχων των οχετών, δεν θα είναι πιο απότομη από h:b= 1:1,5.
Οι (ανεστραμμένοι) σίφωνες είναι τεχνικά έργα που οδηγούν υπό πίεση ένα ρέμα κάτω από διατομή ορύγματος ή κάτω από ένα εμπόδιο που βρίσκεται σε κάποιο βάθος. Στην παρούσα προδιαγραφή δεν προβλέπεται η δυνατότητα κατασκευής ανεστραμμένων σιφώνων ομβρίων. Στην περίπτωση που γίνουν δεκτοί ανεστραμμένοι σίφωνες, ύστερα από σύμφωνη γνώμη της Υπηρεσίας, θα πρέπει να σχεδιαστούν και κατασκευασθούν κατάλληλα με πρόβλεψη όλων των αναγκαίων μέτρων για τη σωστή λειτουργία τους, συνεκτιμώμενων των προβλημάτων από τη μεταφορά φερτών. (Πλέγματα συγκράτησης φερτών, κατασκευή φρεατίου βαθέων σημείων, παγίδα ιλύος, αναρροφητική αντλία στο βαθύ σημείο του ανερχόμενου τμήματος εκροής).
Οι οχετοί και το σύστημα αποχέτευσης της οδού δεν πρέπει να αλληλοτέμνονται. Κατά το σχεδιασμό θα πρέπει να γίνεται μέριμνα για την αποφυγή της περίπτωσης ο συλλέκτης αγωγός των ομβρίων να εκβάλλει απευθείας στο σώμα οχετού για τους παρακάτω λόγους:
| • | Λόγω της διαφορετικής ακαμψίας των αγωγών και του οχετού υπάρχει ενδεχόμενο να θραυστεί η ένωσή τους και να διηθείται το νερό προς το επίχωμα. |
| • | Λόγω της εκβολής του αγωγού εντός του οχετού υπάρχει το ενδεχόμενο κατά την πλημμυρική παροχή να αντιστραφεί η κατεύθυνση ροής εντός του αγωγού. |
| • | Λόγω της ελεύθερης πτώσης των νερών από τον αγωγό εντός του οχετού υπάρχει κίνδυνος διάβρωσης του πυθμένα του οχετού. |
Σε περίπτωση ανάγκης λήψης μέτρων για τον έλεγχο της ρύπανσης δεν είναι δυνατή η συλλογή των νερών του αγωγού μέσα από τον οχετό.
6. Διαστασιολόγηση οχετών από υδραυλική άποψη
Οι οχετοί θα διαστασιολογούνται σύμφωνα με την παροχή υπολογισμού και με υπολογισμό των υδραυλικών στοιχείων, σύμφωνα με τα αναφερόμενα στις παραγράφους 6.1 και 6.2 αντίστοιχα.
Για τις ελάχιστες διαστάσεις των οχετών αποχέτευσης γίνεται αναφορά στην παράγραφο 6.3, ενώ για τα όρια ύψους πλήρωσης και το ελεύθερο περιθώριο (freeboard) γίνεται αναφορά στην παράγραφο 6.4.
6.1. Υπολογισμός Παροχών
6.1.1. Παροχή υπολογισμού αποχέτευσης ομβρίων
(1) Ο υπολογισμός της παροχής της κρίσιμης απορροής των έργων αποχέτευσης ομβρίων, πλην οχετών της επόμενης υποπαραγράφου (2), θα γίνεται με βάση την ορθολογική μέθοδο δηλαδή τη σχέση:

όπου:
C: o συντελεστής απορροής
i: η ένταση της βροχόπτωσης σε (mm/ώρα)
Α: το εμβαδόν της λεκάνης (στρέμματα)
Q: η παροχή υπολογισμού (Lt/s)
(2) Εφόσον δεν υπάρχουν ακριβέστερα στοιχεία βροχοπτώσεων επιτρέπεται για μικρές και μεσαίου μεγέθους λεκάνες (F< 20 km2) η εκτίμηση της παροχής μελέτης να γίνεται, σύμφωνα με τα όσα αναφέρονται παρακάτω, με βάση τον τύπο του FULLER:

Όπου:
Q = η παροχή υπολογισμού σε m3/sec
F = η επιφάνεια της λεκάνης απορροής σε km2
Τ = η περίοδος επαναφοράς (παράγραφος 6.1.3)
Qi = συντελεστής εξαρτώμενος από την περίοδο επαναφοράς
Η εφαρμογή του τύπου του FULLER μπορεί να γίνεται μόνο:
| • | Για τον υπολογισμό της κρίσιμης παροχής των γεφυρών και οχετών από φυσικές λεκάνες βροχόπτωσης σε ΜΗ ΑΣΤΙΚΕΣ ΠΕΡΙΟΧΕΣ |
| • | Για την εκτίμηση της κρίσιμης παροχής από λεκάνες απορροής μικρού και μέσου μεγέθους οποιασδήποτε διαμόρφωσης (F< 20 km2) |
| • | Ο συντελεστής Qi ανάλογα με περίοδο επαναφοράς λαμβάνει τις τιμές |
Περίοδος επαναφοράς σε έτη
|
10
|
50
|
100
|
Τιμή του συντελεστή Qi
|
1.80
|
2.35
|
2.60
|
(3) Η εφαρμογή του τύπου του FULLER θα μπορεί να γίνεται μόνον για τον υπολογισμό της παροχής της κρίσιμης απορροής των οχετών από φυσικές λεκάνες βροχόπτωσης σε ΜΗ ΑΣΤΙΚΕΣ ΠΕΡΙΟΧΕΣ. Λεπτομερέστερη αναφορά για τη μέθοδο υπολογισμού της παροχής των φυσικών λεκανών και την επιρροή της παροχής που προέρχεται από το δίκτυο αποχέτευσης ομβρίων των κυκλοφοριακών έργων (όμβρια που επιβαρύνουν το οδόστρωμα και τις τάφρους των κυκλοφοριακών έργων) γίνεται αναφορά στην παρακάτω υποπαράγραφο (4).
Στις περιπτώσεις οδού ή Σιδηροδρομικής Γραμμής που διέρχεται από ΜΗ ΑΣΤΙΚΕΣ ΠΕΡΙΟΧΕΣ και για λεκάνες επιφάνειας F≤ 200 km2 όταν ο οχετός αποτελεί και αποδέκτη του δικτύου ομβρίων των κυκλοφοριακών έργων, στην παροχή που προκύπτει από τη φυσική λεκάνη βροχόπτωσης θα επαλληλίζεται η παροχή εκροής του δικτύου ομβρίων.
(4) Στις περιπτώσεις αυτές ο υπολογισμός της παροχής θα γίνεται γενικά με την ορθολογική μέθοδο για την ενιαία πλέον λεκάνη, με ακριβή υπολογισμό της μεγίστης παροχής για την συγκεκριμένη περίοδο επαναφοράς, και μετά από ακριβή προσδιορισμό του συντελεστή απορροής και των χρόνων συρροής, επιτρέπονται όμως να γίνονται οι παρακάτω απλοποιητικές παραδοχές:
α) Για μεγάλες λεκάνες απορροής (20 ≤ F < 200 km2) ο υπολογισμός της παροχής της κρίσιμης βροχόπτωσης θα γίνεται μόνο για την απορροή από τη φυσική λεκάνη, χωρίς να συνυπολογίζεται η παροχή απορροής του δικτύου ομβρίων της οδού. Στην περίπτωση αυτή, αν δεν υπάρχουν έστω και προσεγγιστικά στοιχεία, βάσει των οποίων να είναι δυνατόν να γίνει υπολογισμός βάσει της ορθολογικής μεθόδου, επιτρέπεται να γίνεται χρήση του τύπου του FULLER που αναφέρθηκε στην παραπάνω υποπαράγραφο (2). Ως αναγκαία στοιχεία για την εφαρμογή της ορθολογικής μεθόδου στην περίπτωση αυτή θα ήταν:
| • | Προσεγγιστικές σχέσεις έντασης - διάρκειας βροχόπτωσης με δυνατότητα συσχετισμού τους με υπάρχουσες μελέτες υδρολογίας περιοχών εγγύς των μελετώμενων οδικών / σιδηροδρομικών έργων. |
| • | Προσεγγιστική εκτίμηση συντέλεσης απορροής λαμβανόμενης υπόψη της γεωλογίας, των κλίσεων, της φυτοκάλυψης κ.λ.π. |
| • | Υπολογισμός του χρόνου συρροής (με υποδιαίρεση σε υπολεκάνες που απορρέουν από μία μισγάγγεια και χάραξη ισόχρονων καμπυλών ως προς την εξεταζόμενη θέση). |
Στην περίπτωση αυτή επιτρέπεται να ληφθεί υπόψη συντελεστής ανομοιομορφίας.
β) Για λεκάνες απορροής μέσου μεγέθους (π.χ. 5 < F < 20 km2) μπορεί να χρειασθεί ιδιαίτερη διερεύνηση που να αφορά το μέγεθος και τη χρονική διακύμανση της απορροής των υψηλών παροχών της φυσικής λεκάνης, όπως και τη συν-επίδραση των απορροών της φυσικής λεκάνης και του δικτύου ομβρίων της οδού. Αν δεν γίνεται ακριβέστερος υπολογισμός, μπορεί επί το δυσμενέστερον, να αθροισθεί η παροχή εκροής του δικτύου στην παροχή απορροής της φυσικής λεκάνης, η οποία μπορεί να υπολογισθεί επί τη βάσει του τύπου του FULLER.
γ) Για μικρές λεκάνες απορροής (π.χ. F ≤ 5 km2) ο υπολογισμός της παροχής της κρίσιμης βροχόπτωσης θα γίνεται με επαλληλία των απορροών του δικτύου ομβρίων της οδού και της φυσικής λεκάνης βροχόπτωσης, αφού παρθεί υπόψη η χρονική διαδοχή μεταξύ των αιχμών απορροής των επί μέρους επιφανειών.
(5) Ο υπολογισμός της παροχής της κρίσιμης απορροής, σε οδούς / Σιδηροδρομικές Γραμμές που διέρχονται από ΑΣΤΙΚΕΣ ΠΕΡΙΟΧΕΣ, για σημαντικούς οχετούς (πρωτεύοντες συλλεκτήρες αστικών δικτύων αποχέτευσης) θα γίνεται με εφαρμογή της ορθολογικής μεθόδου, με την προϋπόθεση ακριβή προσδιορισμού του συντελεστή απορροής, με αναλυτικό υπολογισμό του χρόνου συρροής (με υποδιαίρεση της λεκάνης απορροής σε υπολεκάνες που απορρέουν από μία μισγάγγεια και χάραξη ισόχρονων καμπυλών ως προς την εξεταζόμενη θέση) και εφαρμογή της παρακάτω σχέσης έντασης - διάρκειας:

όπου:
i = Η ένταση της κρίσιμης βροχόπτωσης (mm/h)
T = Περίοδος επανάληψης (χρόνια) που ελήφθη Τ=10 χρόνια
t = H κρίσιμη διάρκεια βροχής (h)
για περίοδο επαναφοράς του πίνακα της παραγράφου 6.1.3. Να σημειωθεί ότι η παραπάνω σχέση έντασης διάρκειας έχει προκύψει για περίοδο επαναφοράς Τ=10 χρόνια και ότι η αναγωγή της έντασης βροχόπτωσης για διαφορετικές περιόδους επαναφοράς θα γίνεται με την παραδοχή ότι αυτή είναι ανάλογη του όρου 1+0.80*log(T) του τύπου του FULLER.
Στην περίπτωση αυτή επιτρέπεται να ληφθεί υπόψη συντελεστής ανομοιομορφίας.
(6) Για την εφαρμογή της ορθολογικής μεθόδου προϋποτίθεται ότι η έρευνα θα γίνεται σε τοπογραφικά διαγράμματα κατάλληλης κλίμακας, ώστε να τεκμηριώνεται η ακρίβεια του υπολογισμού σε συσχετισμό με την εποπτεία.
Επιπλέον, θα πρέπει να υπάρχουν πρόσφατες σχετικά αεροφωτογραφίες που να καλύπτουν τη λεκάνη για προσδιορισμό της φυτοκάλυψης.
6.1.2. Συντελεστής απορροής αποχέτευσης ομβρίων
(1) Για οδοστρώματα και επιφάνειες καλυμμένες από οικοδομές ο συντελεστής θα λαμβάνεται: C1 = 0,90.
(2) Για πρανή ορυγμάτων κλίσης 1:1 ή ηπιότερης, ή ισχυρότερης κλίσης αλλά με μία τουλάχιστον βαθμίδα (μπαγγίνα) θα λαμβάνεται:
C = 0,60 (αν θα γίνει φύτευση από την εργολαβία)
C = 0,75 (αν δεν γίνει φύτευση από την εργολαβία)
(3) Για πρανή ορυγμάτων με κλίση υ:β > 1:1 χωρίς αναβαθμό θα λαμβάνεται:
C = 0,85
(4) Για εξωτερικές λεκάνες ο υπολογισμός του συντελεστή απορροής θα γίνεται από τη σχέση C = 1-C' σε συνάρτηση με τη φύση του εδάφους, τις τοπογραφικές συνθήκες και τη φυτική κάλυψη, σύμφωνα με την παράγραφο 2 του άρθρου 187 του προεδρικού διατάγματος 696/1974.
(5) Σε εξωτερικές λεκάνες, ελάχιστες τιμές που μπορούν να εφαρμοσθούν χωρίς περαιτέρω διερεύνηση των επί μέρους συνθηκών που επηρεάζουν το συντελεστή απορροής είναι:
για ορεινές λεκάνες (κλίσεις 20% και άνω) C2 = 0.60
για λοφώδεις λεκάνες (κλίσεις 5 έως 20%) C2 = 0.50
για πεδινές λεκάνες (κλίσεις 0 έως 5%) C2 = 0.30
(6) Ειδικότερα για αστικές περιοχές θα εφαρμόζεται σύνθετος συντελεστής απορροής που θα ανταποκρίνεται στο προβλεπόμενο ποσοστό κάλυψης (δρόμοι, οικοδομές) για μελλοντικό χρονικό ορίζοντα 30 χρόνων.
Ο σύνθετος συντελεστής απορροής θα υπολογίζεται από τη σχέση:

όπου:
C1 και C2: οι συντελεστές απορροής καλυμμένων και μη καλυμμένων επιφανειών σύμφωνα με τα προηγούμενα
π: συντελεστής κάλυψης που θα υπολογίζεται ή θα εκτιμάται από:
α) Το νομοθετημένο συντελεστή κάλυψης σε συνδυασμό με την εκτίμηση του ποσοστού της επιφάνειας του οδικού δικτύου για περιοχές εντός σχεδίου πόλης.
β) Την προβλεπόμενη ανάπτυξη (και τους αναμενόμενους συντελεστές κάλυψης και ποσοστό επιφάνειας οδικού δικτύου) για περιοχές εκτός σχεδίου πόλης.
6.1.3. Περίοδος επανάληψης αποχέτευσης ομβρίων
Η περίοδος επανάληψης της κρίσιμης βροχόπτωσης με την οποία θα διαστασιολογηθούν τα έργα αποχέτευσης, ορίζεται στον επόμενο πίνακα για τις διάφορες κατηγορίες οδικών έργων. Στον ίδιο πίνακα παρουσιάζονται και τα επιτρεπόμενα όρια κατάκλυσης του οδοστρώματος κατά την κρίσιμη βροχόπτωση.
Πίνακας περιόδων επανάληψης βροχόπτωσης μελέτης - ορίων κατάκλυσης οδοστρώματος οδικών έργων
Χαρακτηριστικά Οδού
|
Κατηγορία έργου
|
Συχνότητα βροχόπτωσης, ανάλογα προς τα έργα (έτη)
|
Όρια κατάκλυσης από πλημμύρα
|
Έργα υδροσυλλογής, συνδέσεων και τοπικών αγωγών
|
Κύριοι αγωγοί
|
|
Υπεραστικές Ελεύθερες Λεωφόροι (1)
|
10
|
50
|
Μη κατάκλυση του οδοστρώματος (στο οδόστρωμα περιλαμβάνεται και η ΛΕΑ)
|
Κυκλοφορούμενα τμήματα, κλάδοι κόμβων, επιφάνειες καταστρώματος
|
Υπεραστικές Εθνικές & Επαρχιακές οδοί (1)
|
10
|
25
|
Μη κατάκλυση του οδοστρώματος (στο οδόστρωμα περιλαμβάνεται και η ΛΕΑ)
|
γεφυρών και άλλα τμήματα ίδιας σημασίας
|
Αστικές Ελεύθερες Λεωφόροι (2)
|
10
|
50
|
Μη κατάκλυση των λωρίδων κυκλοφορίας (3)
|
|
Ταχείες λεωφόροι και άλλες αρτηριακές αστικές οδοί (2)
|
10
|
25
|
Κατάκλυση το πολύ μέχρι το μισό πλάτος μιας λωρίδας κυκλοφορίας
|
|
Υπεραστικές Ελεύθερες Λεωφόροι (2)
|
50
|
50
|
Μη κατάκλυση του οδοστρώματος (στο οδόστρωμα περιλαμβάνεται η και ΛΕΑ)
|
Κυκλοφορούμενα τμήματα και κλάδοι κόμβων και άλλα τμήματα ίδιας σημασίας σε βαθιά
σημεία και σε ταπεινωμένα τμήματα που απαιτούν άντληση
|
Υπεραστικές Εθνικές & Επαρχιακές οδοί (2)
|
25
|
25
|
Μη κατάκλυση του οδοστρώματος (στο οδόστρωμα περιλαμβάνεται η και ΛΕΑ)
|
Αστικές Ελεύθερες Λεωφόροι (2)
|
50
|
50
|
Μη κατάκλυση των λωρίδων κυκλοφορίας (3)
|
|
Ταχείες λεωφόροι και άλλες αρτηριακές αστικές οδοί (2)
|
25
|
25
|
Κατάκλυση το πολύ μέχρι το μισό πλάτος μιας λωρίδας κυκλοφορίας
|
Παράπλευρες οδοί και εγκάρσιες δευτερεύουσες αστικές οδοί - κοινοτικές και λοιπές δευτερεύουσες υπεραστικές οδοί
|
|
10 (4)
|
10 (4)
|
Κατάκλυση το πολύ μέχρι το μισό πλάτος μιας λωρίδας κυκλοφορίας
|
Για γέφυρες και οχετούς με βάθρα εκτός κοίτης
|
ΜΗ ΑΣΤΙΚΕΣ ΠΕΡΙΟΧΕΣ Υπεραστικές Ελεύθερες Λεωφόροι Εθνικές οδοί κόμβοι και μέρη αυτών
|
|
50
|
|
Για γέφυρες και οχετούς με βάθρα εντός της κοίτης (5)
|
ΜΗ ΑΣΤΙΚΕΣ ΠΕΡΙΟΧΕΣ Υπεραστικές Ελεύθερες Λεωφόροι Εθνικές οδοί κόμβοι και μέρη αυτών
|
|
100
|
|
(1) Χωρίς κρασπεδωμένα άκρα (αποχέτευση σε τάφρους)
(2) Με κρασπεδωμένα άκρα ή New Jersey
(3) Σε περιπτώσεις όπου δεν υπάρχει Λωρίδα Έκτακτης Ανάγκης στη θέση όπου γίνεται ο έλεγχος, τότε επιτρέπεται κατάκλυση της λωρίδας κυκλοφορίας σε πλάτος τόσο ώστε το μέγιστο ύψος νερού πλημμύρας στο άκρο της λωρίδας κυκλοφορίας να είναι το πολύ ίσο προς 0.02 m.
(4) Για ειδικές περιπτώσεις στις οποίες οι κίνδυνοι από την πλημμύρα είναι μεγάλοι, θα αυξάνεται η περίοδος επανάληψης, ύστερα από αιτιολογημένη πρόταση του μελετητή ή/και εντολή της Υπηρεσίας
(5) Στην κατηγορία αυτή δεν υπάγονται οι δίδυμες μόνο κιβωτοειδείς διατομές
6.1.4. Χρόνος συρροής αποχέτευσης ομβρίων
(1) Στις περιπτώσεις περιοχών εκτός σχεδίου πόλης που δεν προβλέπεται να ενταχθούν στο σχέδιο πόλης και να κατασκευασθούν έργα αποχέτευσης ή διευθέτησης χειμάρρων, ο υπολογισμός του χρόνου συρροής των εξωτερικών λεκανών (εκτός του καταστρώματος του συγκοινωνιακού έργου) θα γίνεται με την εφαρμογή της σχέσης KIRPICH:

όπου:
tσ : ο χρόνος συρροής (min)
L: το μήκος διαδρομής της φυσικής κοίτης (km)
Η: η μέγιστη υψομετρική διαφορά (km)
(2) Για τη περίπτωση που η λεκάνη απορροής αποτελείται αποκλειστικά από κατάστρωμα οδού (π.χ. τάφρος κεντρικής νησίδας) ο χρόνος συρροής στη κεφαλή του δικτύου θα λαμβάνεται ίσος με 5 πρώτα λεπτά.
(3) Στη περίπτωση που η λεκάνη απορροής αποτελείται από τμήμα οδοστρώματος και εξωτερική λεκάνη μικρής σχετικά έκτασης που απορρέει επιφανειακά (π.χ. πρανές ορύγματος) ο χρόνος συρροής στη κεφαλή του δικτύου θα λαμβάνεται ίσος με 10 πρώτα λεπτά.
(4) Κατάντη της κεφαλής του δικτύου αποχέτευσης (τάφρου ή υπονόμου) ο κρίσιμος χρόνος συρροής θα υπολογίζεται ως άθροισμα του χρόνου στην κεφαλή (5 ή 10 min) και του υδραυλικού χρόνου ροής.
(5) Στις περιπτώσεις που τα έργα αποχέτευσης ομβρίων προβλέπεται να αποχετεύσουν περιοχές εντός σχεδίου πόλεως (ή και περιοχές που αναμένεται σε μελλοντικό χρονικό ορίζοντα 30 χρόνων να ενταχθούν στο σχέδιο πόλεως):
α) Ο χρόνος συρροής στην κεφαλή των προτεινομένων έργων θα υπολογίζεται με την παραδοχή κατασκευής δικτύου αποχέτευσης ομβρίων ανάντη (υδραυλικός χρόνος ροής στο δίκτυο).
Κατάντη της κεφαλής ο χρόνος συρροής θα υπολογίζεται υδραυλικά:
tΔΙΑΔΡ(s) = L(m) / V(m/s)
β) Ο σχεδιασμός των έργων συγκέντρωσης της επιφανειακής απορροής (φρεάτια υδροσυλλογής) και των σχετικών αγωγών θα γίνεται κατά τρόπο που να αντιμετωπίζει και την ΥΠΑΡΧΟΥΣΑ ΚΑΤΑΣΤΑΣΗ (χωρίς να υπάρχει το ολοκληρωμένο δίκτυο ομβρίων).
(6) Στις περιπτώσεις τάφρων οφρύος στις οποίες καταλήγουν οι απορροές εξωτερικής λεκάνης χωρίς διαμορφωμένη μισγάγγεια θα εφαρμόζεται η σχέση Giandotti:

όπου:
t: ο χρόνος συρροής σε ώρες
F: η επιφάνεια της λεκάνης σε km2
L: το μήκος της γραμμής φυσικής απορροής σε km
z: η υψομετρική διαφορά του μέσου υψομέτρου της λεκάνης απορροής και του σημείου ελέγχου σε m.
6.1.5. Σχέσεις έντασης - διάρκειας βροχοπτώσεων
Οι σχέσεις έντασης - διάρκειας των κρίσιμων βροχοπτώσεων για τον υπολογισμό των κρίσιμων παροχών δίνονται στην παράγραφο 6.1.1 (5).
6.2. Υπολογισμός Υδραυλικών Στοιχείων
6.2.1. Σχέση υπολογισμού ανοικτών αγωγών
(1) Για το σύνολο των περιπτώσεων υπολογισμού αγωγών με ελεύθερη ροή εφαρμόζεται η συνθήκη συνέχειας σε συνδυασμό με τον τύπο του ΜΑΝNING - STRICΚLER:
Q = A x V (m3/s)
V = (1/n) x R2/3 x S1/2
όπου:
Q: η παροχή (m3/s)
Α: η υγρά διατομή (m2)
V: η ταχύτητα ροής (m/s)
(1/n): ο συντελεστής τραχύτητας που εξαρτάται από τις ιδιότητες των τοιχωμάτων (m-1/3s)
R: η υδραυλική ακτίνα (m), όπου: R = A/π
π: η βρεχόμενη περίμετρος (m)
S: η κλίση της γραμμής ενέργειας σε απόλυτο αριθμητικό μέγεθος (π.χ. S=0,01). Για ομοιόμορφη ροή η κλίση S είναι ίση με την κλίση πυθμένα.
6.2.2. Συντελεστές τραχύτητας
Οι συντελεστές τραχύτητας n που θα χρησιμοποιούνται στον τύπο του Manning - Strickler θα παίρνονται από τον παρακάτω πίνακα.
Πίνακας συντελεστών τραχύτητας για τον τύπο Manning - Strickler
Έργο
|
Ιδιότητες τοιχωμάτων
|
Συντελεστής n
(m-1/3s)
|
Επενδεδυμένες τάφροι (αποχέτευσης, συνέχειας, οφρύος, κ.λ.π.), έγχυτοι ορθογωνικοί αγωγοί
|
Επιφάνεια παλαιού σκυροδέματος, καθαρές επιφάνειες
|
0,016
|
Αγωγοί με διαμόρφωση πυθμένα με κολυμβητές πέτρες εγκιβωτισμένες σε Σκυρόδεμα
|
Χονδρή λιθοδομή αργών λίθων
|
0,020
|
Οχετοί υπεραστικών οδών και
συλλεκτήρες αποχέτευσης ομβρίων αστικών περιοχών
|
Επιφάνεια σκυροδέματος:
Για έλεγχο πληρότητας (ανώτατη στάθμη νερού) Για έλεγχο μέγιστης ταχύτητας
|
0,018
0,012
|
Σωληνωτοί αγωγοί τσιμεντοσωλήνες δικτύου ομβρίων (για ελεύθερη ροή)
|
Επιφάνεια παλαιού σκυροδέματος, καθαρές επιφάνειες
|
0,016
|
Σωληνωτοί αγωγοί ακαθάρτων (για ελεύθερη ροή λυμάτων)
|
Πλαστικοί
Αμιαντοτσιμεντοσωλήνες
Τσιμεντοσωλήνες
|
0,014
0,015
0,016
|
Σιδηροσωλήνες
Ελατές διατομές Χάλυβα
|
Γαλβανισμένες επιφάνειες
Μαύρες επιφάνειες
|
0,012-0,016
0,013-0,017
0,012-0,015
|
Χυτοσιδηροί αγωγοί
|
Επενδεδυμένες επιφάνειες
Ανεπένδυτες επιφάνειες
|
0,011-0,014
0,012-0,016
|
6.2.3. Μέγιστες ταχύτητες ροής
(1) Η μέγιστη επιτρεπόμενη ταχύτητα για την παροχή σχεδιασμού των έργων, για την αποφυγή διάβρωσης, θα παίρνεται από τον παρακάτω πίνακα.
Πίνακας μέγιστων ταχυτήτων για την παροχή σχεδιασμού
Έργο
|
Ιδιότητες τοιχωμάτων
|
Μέγιστη ταχύτητα
(VMAX) (m/s)
|
Επενδεδυμένες τάφροι, αγωγοί και οχετοί
|
Σκυρόδεμα κατηγορίας Β10
|
5,0
|
|
Σκυρόδεμα κατηγορίας Β15
|
6,0
|
|
Σκυρόδεμα κατηγορίας Β25 (ανθεκτικό σε επιφανειακή φθορά(1))
|
8,0 (2)
|
|
Σκυρόδεμα κατηγορίας Β35 (αυξημένης αντοχής σε επιφανειακή φθορά)
|
9,5(2)
|
|
Σκυρόδεμα κατηγορίας Β45(3) (υψηλής αντοχής σε επιφανειακή φθορά)
|
11,0(4)
|
(1) Ως σκυρόδεμα ανθεκτικό στην επιφανειακή φθορά στην παρούσα περίπτωση θεωρείται το σκυρόδεμα με τις ιδιότητες και τον τρόπο κατασκευής που περιγράφεται στην εκάστοτε Τεχνική Συγγραφή Υποχρεώσεων, αλλά γίνεται δεκτή χαρακτηριστική αντοχή 25 MPa (250 kg/cm2) αντί για 30 MPa.
(2) Σε περιοχές όπου παρουσιάζονται συνθήκες στροβιλώδους (turbulent) ροής (περιοχές υδραυλικού άλματος και λεκάνες ηρεμίας), η δράση του νερού, με την περιδίνηση των φερτών, ασκεί σημαντικές δυνάμεις επιφανειακής φθοράς. Στις θέσεις αυτές θα χρησιμοποιείται κατηγορίας σκυροδέματος Β 35.
(3) Σε περιοχές όπου μπορούν να παρουσιασθούν φαινόμενα σπηλαίωσης (cavitation) θα πρέπει να παίρνονται ειδικά μέτρα προστασίας χωρίς να μπορεί να θεωρηθεί επαρκής η κατασκευή του σκυροδέματος κατηγορίας Β45 με τις ειδικές απαιτήσεις υψηλής αντοχής σε επιφανειακή φθορά. (Η σπηλαίωση για ανοικτούς αγωγούς παρουσιάζεται όταν η ταχύτητα ροής υπερβαίνει τα 12 m/s και όταν παρουσιάζονται εμπόδια ή απότομες αλλαγές στη διεύθυνση, που προκαλούν μείωση των πιέσεων. Από τη μείωση αυτή δημιουργούνται φυσαλίδες με ατμό, οι οποίες, αφού περάσουν το εμπόδιο και καταλήξουν σε περιοχές με αυξημένη πίεση σε σχέση με το περιβάλλον στο οποίο σχηματίσθηκαν (π.χ. όταν κτυπήσουν στην επιφάνεια σκυροδέματος) ο ατμός υγροποιείται και καταλαμβάνει μικρότερο όγκο από τον όγκο της φυσαλίδας, οπότε προκύπτει θραύση των φυσαλίδων προς τα μέσα που χαρακτηρίζεται ως ενδόρρηξη (implosion) η οποία ασκεί εξαιρετικά μεγάλες πιέσεις στο σκυρόδεμα (έχει εκτιμηθεί άσκηση πιέσεων 7.000 kg/cm2). Η επανειλημμένη δράση της θραύσης των φυσαλίδων με τόσο υψηλή ενέργεια δημιουργεί τις κοιλότητες (pits) ή οπές (holes), που είναι γνωστές ως διάβρωση σπηλαίωσης (cavitation erosion)). Επισημαίνεται ότι θα πρέπει να παίρνονται ειδικά μέτρα:
| • | Αποφυγής εμφάνισης εμποδίων |
| • | Αποφυγής απότομων αλλαγών στη διεύθυνση ροής |
| • | Επιμελημένης διαμόρφωσης της επιφάνειας του σκυροδέματος ώστε να μην υπάρχουν πόροι και ειδικής επεξεργασίας των αρμών εργασίας και συναρμογής |
(4) Για μεγαλύτερες ταχύτητες θα γίνεται ανασχεδιασμός του έργου ή θα γίνεται ειδική προστασία της επιφάνειας
(2) Γενικά θα καταβάλλεται προσπάθεια κατά το σχεδιασμό των έργων, οι μέγιστες ταχύτητες να μην υπερβαίνουν τα 8,0 m/s. Μεγαλύτερες ταχύτητες και αντίστοιχη κατασκευή καταλλήλων ανθεκτικών έργων σε επιφανειακή φθορά θα μπορεί να εφαρμοσθεί στις περιπτώσεις που ο σχεδιασμός με ταχύτητες V ≤ 8,0 m/s οδηγεί σε αντιοικονομικές / δυσχερείς λύσεις (μεγάλα ή / και συχνά έργα πτώσης, λεκάνες ηρεμίας, απαιτήσεις καθαιρέσεων άλλων έργων, απαιτήσεις δυσχερών απαλλοτριώσεων κ.λ.π.).
(3) Για τα έργα στα οποία αναπτύσσονται ταχύτητες ροής, για την παροχή σχεδιασμού, V > 9,5 m/s, θα είναι δυνατές, εναλλακτικά, και άλλες μέθοδοι προστασίας από τη διάβρωση, οι οποίες όμως θα πρέπει να υποστηρίζονται από σχετική βιβλιογραφία, και με αναφορά συμπεριφοράς σε κατασκευασμένα έργα, θα πρέπει δε να τύχουν της έγκρισης της Υπηρεσίας.
(4) Δεν επιτρέπονται ταχύτητες ροής μεγαλύτερες των 15 m/sec
6.2.4. Ελάχιστες ταχύτητες ροής
Οι απαιτήσεις για τις ελάχιστες ταχύτητες ροής σε αγωγούς ομβρίων και ακαθάρτων των αντίστοιχων παραγράφων ισχύουν και στους οχετούς.
Αναγόμενη στην παροχή υπολογισμού πρέπει η ταχύτητα ροής οχετών ομβρίων να μην είναι κατώτερη από 0,5 m/s.
Για λόγους αυτοκαθαρισμού, η ελάχιστη ταχύτητα ροής, για οχετούς ακαθάρτων με παροχή ίση προς το 1/10 της παροχής υπολογισμού, δεν πρέπει να είναι μικρότερη από 0,3 m/s. Για ειδικές περιπτώσεις (π.χ. αποφυγής αντλιοστασίου κ.λ.π.) επιτρέπονται παρεκκλίσεις από τους κανόνες καθορισμού της ελάχιστης επιτρεπόμενης κατά μήκος κλίσης, απαιτείται όμως σύμφωνη γνώμη της Υπηρεσίας.
6.3. Ελάχιστες Διαστάσεις
(1) Οι ελάχιστες διαστάσεις οχετών και σωληνωτών αγωγών συναρτώνται με κατασκευαστικούς περιορισμούς και με απαιτήσεις επισκεψιμότητας και συντήρησης και δίδονται στον επόμενο πίνακα.
Πίνακας ελάχιστων διαμέτρων σωληνωτών αγωγών και ελάχιστων ελεύθερων υψών οχετών
Έργο
|
Θέση - Χαρακτηριστικά
|
Ελάχιστη εσωτερική διάμετρος (Di)
Ελάχιστο ελεύθερο
ύψος (Lh) (m)
|
Σωληνωτοί αγωγοί ακαθάρτων
|
|
Di = 0,20
|
Σωληνωτοί αγωγοί στραγγιστηρίων
|
|
Di = 0,20
|
Αγωγοί σύνδεσης φρεατίων υδροσυλλογής
|
|
Di = 0,20
|
Συλλεκτήριοι αγωγοί δικτύων ομβρίων(1)
|
|
Di = 0,60(2)
|
Εγκάρσιοι σωληνωτοί οχετοί στραγγιστηρίων
|
Di = 0,40
|
Εγκάρσιοι σωληνωτοί οχετοί δικτύων ομβρίων
|
α.
|
Υπεραστικές οδοί κατηγορίας ΑV και κατώτερης και αστικές οδοί λειτουργικής κατάταξης συλλεκτήριας και κατώτερης
|
Di = 0,60
|
|
β.
|
Υπεραστικές οδοί κατηγορίας AIV και ανώτερης και αστικές οδοί λειτουργικής κατάταξης αρτηρίας και ανώτερης
|
Di = 0,80
|
Ορθογωνικοί οχετοί(3)
|
1.
|
Ελεύθερο άνοιγμα LW = 1,00 m
|
|
(Νέα έργα)
|
|
α.
|
Για μεγάλο μήκος (L > 40 m)
|
Lh = 2,00
|
|
|
β.
|
Σε δυσχερείς περιπτώσεις για μήκος
L ≤ 40 m
|
Lh = 1,50
|
|
γ.
|
Σε πολύ δυσχερείς περιπτώσεις για
L ≤ 15.
|
Lh = 1,00(4)
|
|
2.
|
Ελεύθερο άνοιγμα 1,00 < LW <= 6,00 m
|
|
|
|
α.
|
Για μεγάλο μήκος (L > 45 m)
|
Lh = 2,50
|
|
|
β.
|
Σε δυσχερείς περιπτώσεις για μήκος
20 < L ≤ 45 m
|
Lh = 2,00
|
|
|
γ.
|
Σε δυσχερείς περιπτώσεις για μήκος
L ≤ 20 m
|
Lh = 1,50
|
|
|
δ.
|
Σε πολύ δυσχερείς περιπτώσεις για
L ≤ 10 m
|
Lh = 1,00(4)
|
(1) Πρόκειται για τους αγωγούς των δικτύων αποχέτευσης ομβρίων
(2) Κατ' εξαίρεση στα τμήματα συλλεκτήριων αγωγών περί την κεφαλή των δικτύων θα είναι δυνατή η εφαρμογή αγωγών ελάχιστης διαμέτρου Di = 0,40 m
(3) Το ελάχιστο ελεύθερο ύψος που αναφέρεται για την περίπτωση μεγάλου μήκους ορθογωνικών οχετών κάθε κατηγορίας ισχύει και για το ελεύθερο ύψος θολωτών και καμπυλόμορφης διατομής οχετών. (Το ελεύθερο ύψος των θολωτών και καμπυλόμορφης διατομής οχετών μετράται μεταξύ του πυθμένα και της κλείδας)
(4) Απαιτείται η σύμφωνη γνώμη της Υπηρεσίας
(2) Για επιμήκυνση υπαρχόντων οχετών, θα ισχύουν σε κάθε περίπτωση οι απαιτήσεις του ελεύθερου περιθωρίου της παραγράφου 6.4, με δυνατότητα εφαρμογής των παρακάτω μειωμένων χαρακτηριστικών:
α) Για οχετούς με ελεύθερο άνοιγμα LW ≤ 2,0 m θα διατηρείται το ελεύθερο άνοιγμα και θα μπορεί να περιορισθεί το ελεύθερο ύψος (Lh) σε κατ' εξαίρεση ελάχιστη τιμή:
Lh = 1,00 m (Για LW = 1,00 m και μήκος οχετού L ≤ 40 m)
Lh = 1,50 m (Για LW = 2,00 m και μήκος οχετού L ≤ 45 m)
Lh = 1,00 m (Για LW = 2,00 m και μήκος οχετού L ≤ 20 m)
β) Για υπάρχοντες οχετούς με ελεύθερο άνοιγμα LW > 2,0 m, θα μπορεί να γίνει κατάλληλη προσαρμογή με εφαρμογή νέας διατομής περιορισμένου πλάτους, με διατήρηση του υπάρχοντος ύψους. (Η συναρμογή μεταξύ υπάρχοντος και νέου ανοίγματος θα μπορεί να είναι ευθύγραμμη και να γίνεται με κατάλληλη γωνία ως προς τον άξονα (π.χ. 12ο). Ο υπολογισμός θα γίνεται με ανομοιόμορφη ροή).
(3) Σύμφωνα με το DIN 19661:
| • | Οχετοί που διασχίζονται έρποντας δεν πρέπει να είναι χαμηλότεροι από 0,80 m και στενότεροι από 0,60 m |
| • | Οι βατοί οχετοί δεν πρέπει να είναι χαμηλότεροι από 2,00 m |
(4) Ως συνιστώμενη ελάχιστη ελεύθερη τυπική διατομή βατού οχετού θεωρείται LW/Lh = 1,00 / 2,00 m.
6.4. Όρια Ύψους Πλήρωσης και Παροχετευτικότητας Οχετών
(1) Το ελεύθερο ύψος οχετών (Lh) που συνέχονται προς ανοικτές τάφρους ή ρέματα, πρέπει να τηρεί τους ακόλουθους περιορισμούς:
α) Για οχετούς ελεύθερου ανοίγματος LW ≤ 4,0 m
Lh >= Ηp + 0,50 (m)
β) Για οχετούς LW > 4,0 m
Lh >= Ηp + 1,00 (m)
Όπου:
Ηp : το ύψος ροής για την παροχή σχεδιασμού (m)
0.50, 1.00 το ελεύθερο περιθώριο (Freeboard) (m)
(2) Το συνολικό βάθος ροής θα προκύπτει από υπολογισμό ανομοιόμορφης ροής, λαμβάνοντας υπόψη την εισρόφηση αέρα για ταχύτητες πάνω από 7 m/sec και την υπερύψωση στις καμπύλες.
(3) Σε δυσχερείς θέσεις και ύστερα από έγκριση από την Υπηρεσία, το ελεύθερο περιθώριο είναι δυνατόν να περιορίζεται (ή / και να μηδενίζεται) στο εξωτερικό τμήμα των καμπυλών όπου προκύπτει υπερύψωση της επιφάνειας του νερού, λαμβανομένων όμως των σχετικών υπολογιστικών και κατασκευαστικών μέτρων για την αντιμετώπιση της υπερύψωσης.
7. Υλικά και μέθοδοι κατασκευής
7.1. Σκυροδέματα
(1) Ο φορέας των τεχνικών, περιλαμβανομένης της θεμελίωσης και των πτερυγότοιχων, θα κατασκευάζεται από οπλισμένο σκυρόδεμα. Η ποιότητα του σκυροδέματος θα είναι Β25 ή ανώτερη. Μεταλλικές κατασκευές, κατασκευές τύπου ARMCO και σύμμεικτες κατασκευές αποκλείονται.
(2) Οι πάσσαλοι θεμελίωσης, όπου αυτοί προβλέπονται, καθώς και οι κεφαλόδεσμοι των πασσάλων θα κατασκευάζονται από οπλισμένο σκυρόδεμα. Η ποιότητα σκυροδέματος θα είναι Β25 ή ανώτερη. Οι μεταλλικοί πάσσαλοι αποκλείονται.
(3) Σε οποιαδήποτε θέση γίνεται στερέωση στηθαίου ασφαλείας σε διάβαση ή οχετό στέψης, η ελάχιστη κατηγορία του σκυροδέματος που θα χρησιμοποιείται στην περιοχή της πάκτωσης θα είναι Β25 (εκτός αν προδιαγράφεται διαφορετικά στην αντίστοιχη Τεχνική Συγγραφή Υποχρεώσεων ή / και τους λοιπούς όρους δημοπράτησης).
(4) Κάτω από τα θεμέλια των τεχνικών θα κατασκευασθεί υποχρεωτικά εξομαλυντική στρώση από σκυρόδεμα Β10 ελάχιστου πάχους 0,10 m. Η στρώση αυτή θεωρείται αναγκαία ακόμη και στην περίπτωση κατασκευής των οχετών με προκατασκευασμένους σπονδύλους.
(5) Τα τοιχώματα ή τα βάθρα των τεχνικών θα κατασκευάζονται απαραίτητα με τη χρήση πλευρικών ξυλότυπων. Δεν θα γίνεται δεκτή λύση οχετού που θα προβλέπει σκυροδέτηση σε επαφή με μέτωπο εκσκαφής.
(6) Επιτρέπεται η χρήση προκατασκευασμένων σπονδύλων σε τεχνικά κλειστής διατομής (κιβωτοειδείς, καμπυλόμορφους), υπό την προϋπόθεση ότι θα γίνει κατάλληλη διαμόρφωση αρμών που θα πληροί τις προδιαγραφόμενες απαιτήσεις στεγανότητας και συνεργασίας των σπονδύλων. Επίσης θα πρέπει να γίνουν διαμορφώσεις κατάλληλων διατάξεων για την ανύψωση, μεταφορά και τοποθέτηση των σπονδύλων. Τα σχέδια της σπονδυλωτής κατασκευής με τις σχετικές λεπτομέρειές τους θα συνταχθούν από τον ανάδοχο και πρέπει να τύχουν της έγκρισης της Υπηρεσίας.
Το μήκος των προκατασκευασμένων σπονδύλων μπορεί να μειωθεί μέχρι τα 2,0 m.
7.2. Αρμοί Διαστολής και Αρμοί Κατασκευής
Αρμοί διαστολής θα κατασκευάζονται σε αποστάσεις που δεν θα υπερβαίνουν τα 14,0 m. Η απόσταση θα ορίζεται ανάλογα με το έδαφος θεμελίωσης, το ύψος του επιχώματος και την κλίση του εδάφους.
7.2.1. Αρμοί διαστολής
(1) Οι αρμοί διαστολής στο φορέα και τα βάθρα θα σχεδιαστούν σύμφωνα με τα σχετικά ΠΚΕ και τις συμπληρωματικές απαιτήσεις των επομένων υποπαραγράφων.
(2) Οι αρμοί διαστολής θα διατάσσονται κατακόρυφα και θα επεκτείνονται σε όλο το ύψος του βάθρου, συμπεριλαμβανομένου του πεδίλου. Η απόσταση μεταξύ δύο αρμών διαστολής δεν πρέπει γενικά να υπερβαίνει τα 14,0 m. Στα ακρόβαθρα επιτρέπεται μεγαλύτερη απόσταση, με την προϋπόθεση ότι θα γίνει έλεγχος των εντατικών μεγεθών από θερμοκρασιακές μεταβολές και από συστολή πήξης του σκυροδέματος.
(3) Οι αρμοί διαστολής διακρίνονται σε επίπεδους και οδοντωτούς. Οι αρμοί μεταξύ τμημάτων ακροβάθρων θα είναι γενικά επίπεδοι, ανεξάρτητα από το έδαφος θεμελίωσης και το ύψος του ακροβάθρου. Οι αρμοί μεταξύ τοίχων αντιστήριξης και ακροβάθρων ή πτερυγίων ακροβάθρων θα είναι γενικά επίπεδοι.
(4) Σε ειδικές περιπτώσεις, στις οποίες εμφανίζεται έντονη διαφοροποίηση των συνθηκών έδρασης ή φόρτισης των παρακειμένων τμημάτων, θα εφαρμόζονται οδοντωτοί αρμοί με διαμόρφωση διατμητικού συνδέσμου (τόρμος - εντορμία).
(5) Στους οδοντωτούς αρμούς η οδόντωση εκτείνεται μόνο στο ύψος του κορμού του τοίχου και θα διακόπτεται στην επίστεψη του τοίχου και τουλάχιστον 0,40 m κάτω από τη στέψη του, αφήνοντας στο πάνω και κάτω άκρο της κενό 0,04 m.
7.2.2. Αρμοί κατασκευής (διακοπής εργασίας)
(1) Οι αρμοί κατασκευής στο φορέα και τα βάθρα θα σχεδιαστούν σύμφωνα με τις σχετικές προδιαγραφές και τις συμπληρωματικές απαιτήσεις των επομένων υποπαραγράφων.
(2) Οι οριζόντιοι ή / και κατακόρυφοι αρμοί κατασκευής στην ανωδομή των ακροβάθρων πρέπει να αποφεύγονται. Όταν η πρόβλεψή τους επιβάλλεται από τον όγκο του προς διάστρωση σκυροδέματος, θα παίρνεται φροντίδα να συμπίπτουν με σκοτίες στην πρόσοψη του κορμού με τη διατομή που δίνεται στα ΠΚΕ για τις κατακόρυφες σκοτίες. Όταν η διακοπή της σκυροδέτησης δεν μπορεί να είναι μικρότερη των 15 ωρών, συνιστάται η χρήση πρόσμικτου επιβραδυντικής πήξης.
(3) Η πάνω επιφάνεια των αρμών κατασκευής θα μορφώνεται πάντοτε αδρή.
7.3. Θεμελιώσεις
(1) Το ελάχιστο βάθος θεμελίωσης θα είναι 0,80 m από την τελική στάθμη διαμορφώσεων μπροστά στο πέδιλο ή την πλάκα θεμελίωσης.
(2) Το βάθος θεμελίωσης των βάθρων τεχνικών υγρών κωλυμάτων θα καθορίζεται με υπολογισμούς του βάθους της πιθανής διάβρωσης της κοίτης. Το ελάχιστο βάθος θεμελίωσης θα είναι 1,0 m κάτω από την πιθανή στάθμη διάβρωσης του εδάφους και τουλάχιστον 3,0 m κάτω από την υπάρχουσα κοίτη ή 1,0 m μέσα στον βράχο (αν η θεμελίωση γίνεται σε βράχο). Αν η θεμελίωση γίνεται σε πασσάλους, οι υπολογισμοί των πασσάλων και της ανωδομής θα περιλάβουν και τις δύο καταστάσεις, πριν και μετά την πιθανή διάβρωση. Εν πάση περιπτώσει, το τελικό βάθος θεμελίωσης θα καθορισθεί με παράλληλη θεώρηση του βάθους διάβρωσης και της φέρουσας ικανότητας και ανεκτών υποχωρήσεων του εδάφους.
(3) Κατά τη διαμόρφωση της επιφάνειας θεμελίωσης θα τηρούνται επίσης οι προδιαγραφές σχετικά με την αφαίρεση του επιφανειακού στρώματος φυτικών γαιών και χαλαρών κ.λ.π.
7.4. Μεταβατικά Έργα και Πλάκες Πρόσβασης
Πίσω από τα ακρόβαθρα των τεχνικών που φέρουν οδούς:
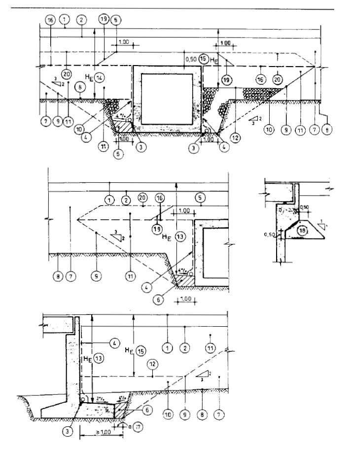
(1) Θα κατασκευασθούν πλάκες πρόσβασης, σύμφωνα με τα αντίστοιχα ΠΚΕ, όταν το μέγιστο ύψος ΗΕ, όπως αυτό καθορίζεται στα παρακάτω σχήματα A και B, υπερβαίνει τα 4,0 m και παράλληλα το πάχος της επικάλυψης πάνω από τον φορέα του τεχνικού έργου είναι ίσο ή μικρότερο του ΗΕ/4. Το ύψος ΗΕ είναι το μεγαλύτερο από τα αντίστοιχα ύψη του επιχώματος που βρίσκεται πίσω από το ακρόβαθρο, σε μια έκταση που έχει πλάτος το πλάτος του επιχώματος στη στέψη αυτού και μήκος ίσο με αυτού και μήκος ίσο με 1,5Η'Ε όπου Η'Ε είναι το μέγιστο ύψος του επιχώματος ακριβώς πίσω από το ακρόβαθρο.
(2) Η δομική διαμόρφωση και η γεωμετρία των μεταβατικών έργων δείχνεται στα παρακάτω σχήματα A και B και η επιλογή του είδους και της έκτασης αυτών θα προκύπτει ύστερα από οικονομοτεχνική διερεύνηση του θέματος επί τη βάσει των τοπικών συνθηκών, συνεκτιμώμενης της δυνατότητας κατάργησης των πλακών πρόσβασης κ.λ.π.
(3) Τα μεταβατικά έργα της παραπάνω υποπαραγράφου (2) θα μπορούν να κατασκευάζονται, ανάλογα με τις τοπικές συνθήκες και την οικονομοτεχνική διερεύνηση, από:
α) Λιθορριπές(1) Αυτές θα κατασκευάζονται από λίθους λατομείου μέγιστης διάστασης 0,40 m (ή μικρότερης εφόσον οι διαστάσεις του σκάμματος και οι τοπικές συνθήκες δεν επιτρέπουν τη χρήση τόσο μεγάλων λίθων). Οι λιθορριπές θα κατασκευάζονται σε στρώσεις μέγιστου πάχους 0,80 m και το συνολικό τους ύψος δεν θα μπορεί να υπερβαίνει τα 8,00 m. Σε όση έκταση δεν είναι δυνατή η χρησιμοποίηση κατάλληλων δονητικών οδοστρωτήρων, οι λιθορριπές θα συμπυκνώνονται με κατάλληλα δονητικά μηχανήματα συμπύκνωσης (δονητικοί συμπιεστές, δονητικές πλάκες, δονητικοί κύλινδροι) βαρέως τύπου (σύμφωνα με την εκάστοτε Τεχνική Συγγραφή Υποχρεώσεων).
(1) Σε κάθε περίπτωση η λιθορριπή θα θεωρείται ότι έχει τις απαιτήσεις σφράγισης της άνω επιφάνειάς της, όπως στα επιχώματα από βραχώδη προϊόντα ορυγμάτων και θα απαιτείται η κατασκευή μεταβατικού τμήματος και στέψης πάνω από αυτήν, σύμφωνα με την αντίστοιχη προδιαγραφή χωματουργικών εργασιών της Τεχνικής Συγγραφής Υποχρεώσεων.
β) Σταθεροποιημένο Εδαφικό Υλικό (ΣΕΥ) με τσιμέντο, σύμφωνα με την Τεχνική Συγγραφή Υποχρεώσεων.
γ) Σκυρόδεμα κατηγορίας Β10.
Ενδέχεται να αποδεικνύεται οικονομικότερη η κατασκευή υλικού επιχώματος ή λιθορριπής με παρεμβολή πλάκας ρύσεων από σκυρόδεμα Β10 πάχους 0,10 m, για την έδραση των στραγγιστηρίων όπου απαιτούνται.
Η επιλογή της μεθόδου και της σχετικής διαμόρφωσης και ποσοτήτων υπόκειται στην σύμφωνη γνώμη της Υπηρεσίας.
(4) Αν τυχόν το πλάτος εκσκαφής πίσω από τα ακρόβαθρα των τεχνικών είναι μικρότερο από 2,0 m και δεν έχει γίνει πλήρωση του απομένοντος σκάμματος με μεταβατικό έργο, σύμφωνα με τα παραπάνω, τότε η πλήρωση θα γίνεται με μεταβατικό επίχωμα και θα κατασκευάζονται πλάκες πρόσβασης για ύψος επιχώματος μεγαλύτερο από 2,0 m.
(5) Οι πλάκες πρόσβασης θα κατασκευάζονται από οπλισμένο σκυρόδεμα Β25 και θα έχουν μήκος (κάθετα στο τοίχωμα του ακροβάθρου) ίσο με τα δύο τρίτα (2/3) του ύψους του επιχώματος ΗΕ και τουλάχιστον 4,00 m. Το πάχος τους θα είναι 0,25 m ο κατασκευαστικός κύριος οπλισμός τους διπλή εσχάρα (πάνω και κάτω επιφάνεια ) Φ 12/20 S500S ή ανάλογος και οι πλάκες θα φέρουν αρμούς διαστολής σε αποστάσεις που δεν θα υπερβαίνουν τα 4,00 m σε κάθε κατεύθυνση. Αν το μήκος τους υπερβαίνει τα 4,00 m, θα διατάσσεται αρμός διαστολής στο μέσο του μήκους τους.
(6) Στους θολωτούς οχετούς υπό επίχωση, η διάταξη πλακών πρόσβασης ή φορέων πρόσβασης παρέλκει, εκτός από ειδικές περιπτώσεις (π.χ. επέκταση θολωτού έργου με φορέα άλλου τύπου κ.λ.π.).

Σχήμα 7.7.4: Μεταβατικά έργα πίσω από οχετούς και γέφυρες
(Δεν δείχνονται τυχόν απαιτούμενες πλάκες πρόσβασης)
Υπόμνημα σχήματος
1. Επιφάνεια κύλισης οδού ή ανώτατη στάθμη υποστρώματος Σιδηροδρομικής Γραμμής στον άξονα αυτής.
2. Ανώτατη στάθμη χωματουργικών (Ταυτίζεται με την Κάτω στάθμη Στρώσης Έδρασης Οδοστρώματος (ΣΕΟ))
3. Στραγγιστήριο όταν απαιτείται. (Ενδεικτική υψομετρική τοποθέτηση ανάλογα με τις τοπικές συνθήκες)
4. Στρώση στράγγισης. (Εφαρμόζεται στην περίπτωση που τα μεταβατικά έργα / μεταβατικό επίχωμα δεν εξασφαλίζουν την ευχερή στράγγιση)
5. Άνω στάθμη επίχωσης με μεταβατικό επίχωμα για οχετούς υπό επίχωση. (Ισχύει και για θολωτούς οχετούς υπό επίχωση)
6. Επίχωση με αργιλικό υλικό καλά συμπυκνωμένο, ή σκυρόδεμα Β5
7. Κανονικό επίχωμα
8. Στάθμη έδρασης κανονικού επιχώματος (μετά την αφαίρεση τυχόν ακαταλλήλων εδαφών)
9. Γραμμή ορίου μεταξύ μεταβατικών έργων και μεταβατικού επιχώματος αφ' ενός και κανονικού επιχώματος αφ' ετέρου. (Για την περίπτωση οδικών έργων, η κλίση h:b = 2:3 μπορεί να μετατραπεί σε h:b = 1:1 ύστερα από έγκριση της Υπηρεσίας, εφόσον η κατασκευή των μεταβατικών έργων / μεταβατικού επιχώματος γίνεται ταυτοχρόνως με την κατασκευή του κανονικού επιχώματος)
10. Μεταβατικά έργα από λιθορριπές, ή σκυρόδεμα Β5. (Θα εφαρμόζονται έπειτα από οικονομοτεχνική διερεύνηση)
11. Μεταβατικό επίχωμα. (Μπορεί να αντικατασταθεί μερικά ή ολικά από μεταβατικά έργα, ύστερα από οικονομοτεχνική διερεύνηση)
12. Άνω στάθμη μεταβατικών έργων (θα εκλέγεται ύστερα από οικονομοτεχνική διερεύνηση)
13. Ύψος ΗΕ για την περίπτωση που δεν προβλέπεται η κατασκευή μεταβατικών έργων
14. Ύψος ΗΕ για την περίπτωση που προβλέπεται η κατασκευή μεταβατικών έργων μέχρι τη στάθμη έδρασης του κανονικού επιχώματος
15. Ύψος ΗΕ για την περίπτωση που προβλέπεται η κατασκευή μεταβατικών έργων πάνω από τη στάθμη έδρασης του κανονικού επιχώματος
16. Ανώτατη στάθμη μεταβατικών έργων.
17. Γενικώς α=0,50 m. Για θεμέλια που σκυροδετούνται μέχρι το πρανές εκσκαφής (κόντρα στο πρανές), χωρίς παρεμβολή ξυλότυπου, το πλάτος α περιορίζεται σε 0,25 m.
18. Γενική περίπτωση πέρατος μεταβατικού επιχώματος με εξαίρεση των επόμενη περίπτωση (παράγραφος α/α 20 υπομνήματος)
19. Σε περίπτωση που μεταβατικό έργο από λιθορριπές κατασκευάζεται μέχρι την άνω στάθμη του οχετού και το κανονικό επίχωμα έχει κοκκομετρική σύνθεση που να απαιτεί να γίνει σφράγιση της λιθορριπής, τότε το μεταβατικό επίχωμα της παραγράφου 19 του υπομνήματος επεκτείνεται ως στρώση σφράγισης όπως δείχνεται στο σχέδιο.
7.5. Ο ανάδοχος μπορεί να χρησιμοποιήσει τους τύπους κιβωτοειδών οχετών της Γενικής Γραμματείας Δημοσίων Έργων του Υπουργείου Περιβάλλοντος, Χωροταξίας και Δημοσίων Έργων.
7.6. Ο σχεδιασμός των οχετών πρέπει να δίνει αισθητικά καλό αποτέλεσμα, έτσι ώστε αυτές να εναρμονίζονται με τα οδικά και σιδηροδρομικά έργα καθώς και με το περιβάλλον, και να μην οχλούν τους χρήστες της οδού ή τους περίοικους και ειδικότερα:
Η επιλογή των στηθαίων ασφαλείας θα είναι σύμφωνα με το κεφάλαιο 4 του ΟΜΟΕ στις αντίστοιχες διατάξεις. Πιο συγκεκριμένα:
α) Εφόσον προβλέπεται εφαρμογή τυπικής διατομής αυτοκινητοδρόμου ή άλλης κατηγορίας οδού (κλάδου, κόμβου, υπεραστικής οδού, αστικής οδού) με πλευρικά χαλύβδινα στηθαία ασφαλείας, τότε στην παρακάτω ανάπτυξη θα επιλέγεται σε κάθε περίπτωση ο αντίστοιχος τύπος χαλύβδινου στηθαίου (Σημειώνεται πάντως ότι είναι δυνατόν στην περίπτωση αυτή να επιλέγεται στηθαίο ασφαλείας από σκυρόδεμα τύπου NEW JERSEY στους τοίχους ολικού ύψους(*) ΗΤ > 7,0 m).
β) Εφόσον προβλέπεται εφαρμογή τυπικής διατομής αυτοκινητοδρόμου ή άλλης κατηγορίας οδού (κλάδου, κόμβου, υπεραστικής οδού, αστικής οδού) με πλευρικά στηθαία ασφαλείας από σκυρόδεμα τύπου NEW JERSEY, τότε στην παρακάτω ανάπτυξη θα επιλέγεται σε κάθε περίπτωση ο αντίστοιχος τύπος στηθαίου από σκυρόδεμα τύπου NEW JERSEY.
7.7. Κατά την εκλογή και την κατασκευή των οχετών πρέπει να προσεχθούν οι χημικές ιδιότητες των υλικών που έρχονται σε επαφή με τον οχετό, όπως π.χ. ταινίες στεγανοποίησης.
8. Προστατευτικές επιστρώσεις
Στα κατασκευαστικά στοιχεία, που άλλως θα φθείρονταν, θα εφαρμοσθούν κατάλληλες προστατευτικές επιστρώσεις. Οι επιστρώσεις αυτές περιλαμβάνουν:
(1) Συστήματα βαφής και αντιδιαβρωτικής προστασίας για κυρίως μεταλλικά και μη μεταλλικά στοιχεία
(2) Στεγανωτικές μεμβράνες και συστήματα εμποτισμού επιφανειών από σκυρόδεμα που είναι εκτεθειμένες σε άσχημες ή πολύ άσχημες περιβαλλοντικές συνθήκες.
Για το σκοπό αυτό οι επιφάνειες σκυροδέματος στο οδόστρωμα ή σε απόσταση έως 5,0 m από την άκρη του οδοστρώματος, θεωρούνται ότι εκτίθενται σε άσχημες ή πολύ άσχημες περιβαλλοντικές συνθήκες.
9. Υδατοστεγάνωση
9.1. Υδατοστεγάνωση Καταστρώματος
Τα καταστρώματα των τεχνικών θα στεγανοποιούνται και θα προστατεύονται από βλάβη τους με ένα κατάλληλο ανθεκτικό, αποτελεσματικό τυποποιημένο (proprietary) σύστημα, σε συμφωνία με τη Τεχνική Συγγραφή Υποχρεώσεων. Επ' αυτού θα τοποθετηθεί μία μεταβατική, προστατευτική επιφανειακή στρώση, η οποία θα επιτρέπει αφαίρεση και αντικατάσταση της στρώσης επιφάνειας κύλισης του τεχνικού, χωρίς να βλάπτεται η μεμβράνη υδατοστεγάνωσης.
9.2. Τρόπος στεγάνωσης των διαφόρων κατασκευών
(1) Οριζόντιοι φορείς μικρών τεχνικών
Η πάνω επιφάνεια του οριζόντιου φορέα πλακοσκεπών και κιβωτοειδών μικρών τεχνικών στέψης θα στεγανοποιηθεί με δύο ή με μια στρώση ειδικών μεμβρανών, αντίστοιχα σύμφωνα με την εκάστοτε Τεχνική Συγγραφή Υποχρεώσεων. Εναλλακτικά, αν δεν γίνεται ειδική διαφορετική αναφορά στους ειδικούς όρους δημοπράτησης, γίνεται δεκτή η προστασία με διπλή στρώση ασφαλτόπανου με κατάλληλη προστασία αυτού με τσιμεντοκονία ή προστατευτική στρώση σκυροδέματος Β15, σύμφωνα με την εκάστοτε Τεχνική Συγγραφή Υποχρεώσεων.
Για μικρά τεχνικά υπό επίχωση, η στεγάνωση θα γίνει με μεμβράνες σύμφωνα με όσα αναφέρονται στην εκάστοτε Τεχνική Συγγραφή Υποχρεώσεων, ή με διπλή στρώση ασφαλτόπανου (αν δεν γίνεται ειδική διαφορετική αναφορά στους ειδικούς όρους δημοπράτησης) και προστασία αυτής με στρώση σκυροδέματος Β15, σύμφωνα με την εκάστοτε Τεχνική Συγγραφή Υποχρεώσεων.
(2) Θολωτοί οχετοί
i. Η εξωτερική επιφάνεια του σκυροδέματος των θολωτών οχετών θα προστατευθεί με πατητή τσιμεντοκονία πάχους 1,5 cm, σύμφωνα με την αντίστοιχη Τεχνική Συγγραφή Υποχρεώσεων ή με διπλή ασφαλτική επάλειψη σύμφωνα με την αντίστοιχη Τεχνική Συγγραφή Υποχρεώσεων.
ii. Αν οι εξωτερικές συνθήκες είναι ιδιαίτερα επιβαρυντικές (υδροφόρος ορίζοντας, χημικές επιδράσεις και γενικά πολύ ισχυρές συνθήκες κατά το DIN 4030) κατά την κρίση της Υπηρεσίας, η στεγάνωση θα γίνει με ειδικές μεμβράνες, σύμφωνα με την αντίστοιχη Τεχνική Συγγραφή Υποχρεώσεων.
(3) Ακρόβαθρα και πλάκες πρόσβασης
Για την περίπτωση στεγάνωσης σε περιοχές που παρουσιάζονται μικρές μόνο ποσότητες διηθούμενων υπόγειων νερών (π.χ. περιοχές έργων σε επιχώματα), τότε η επιφάνεια προς τις γαίες του σκυροδέματος του κορμού των ακροβάθρων, των πτερυγίων, καθώς και η πάνω επιφάνεια των πλακών πρόσβασης, θα στεγανοποιηθούν με διπλή ασφαλτική επάλειψη, σύμφωνα με την εκάστοτε Τεχνική Συγγραφή Υποχρεώσεων.
Αν οι εξωτερικές συνθήκες είναι ιδιαίτερα επιβαρυντικές (υδροφόρος ορίζοντας, χημικές επιδράσεις και γενικά πολύ ισχυρές συνθήκες κατά το DIN 4030), κατά την κρίση της Υπηρεσίας, η στεγάνωση θα γίνει με ειδικές μεμβράνες, σύμφωνα με την εκάστοτε Τεχνική Συγγραφή Υποχρεώσεων.
(4) Όψη πασσαλοστοιχιών
Το σκυρόδεμα επένδυσης των όψεων πασσαλοστοιχιών θα στεγανοποιηθεί σύμφωνα με την εκάστοτε Τεχνική Συγγραφή Υποχρεώσεων.
(5) Οριζόντιοι φορείς υπόγειων έργων
Η άνω επιφάνεια οριζοντίων φορέων έργων υπό επίχωση θα στεγανοποιηθεί με μεμβράνη και στη συνέχεια θα προστατευθεί με μια στρώση σκυροδέματος κατηγορίας Β 10 ελάχιστου πάχους 0,07 m, (οπλισμένου με γαλβανισμένο σιδηρό πλέγμα που τοποθετείται στο μέσο του πάχους της στρώσης προστασίας από σκυρόδεμα). Η στρώση προστασίας από σκυρόδεμα θα έχει αρμούς και προς τις δύο κατευθύνσεις ανά 4,00 m.
Αναλυτικότερα ο τρόπος της στεγάνωσης εκτίθεται στην αντίστοιχη Τεχνική Συγγραφή Υποχρεώσεων.
(6) Αρμοί Διαστολής
Οι αρμοί διαστολής του φορέα και των βάθρων θα κατασκευάζονται στεγανοί. Η στεγανότητα θα εξασφαλίζεται με στεγανωτική ταινία από PVC ελάχιστου πλάτους 240 mm, με κεντρική οπή για συστολές - διαστολές. Στην περιοχή της ταινίας αυτής θα γίνεται κατάλληλη διαμόρφωση του σιδηρού οπλισμού.
Όπου εφαρμόζονται τυποποιημένοι (βιομηχανικού τύπου) αρμοί διαστολής, αυτοί θα έχουν υδατοστεγανωτικά στοιχεία που θα αποτρέπουν τη διαρροή νερού δια του αρμού προς κατασκευαστικά και μη στοιχεία, σύμφωνα με τις ισχύουσες τεχνικές προδιαγραφές.
(7) Αρμοί κατασκευής (διακοπής εργασίας)
Όταν αναμένεται ή υπάρχει κίνδυνος παρουσίας νερού με πίεση πίσω από το ακρόβαθρο, ο αρμός διακοπής εργασίας θα κατασκευάζεται στεγανός με στεγανωτική ταινία τύπου PVC.
10. Ελάχιστες επικαλύψεις και επιχώσεις διαβάσεων και οχετών στέψης
10.1. Οι ελάχιστες επικαλύψεις διαβάσεων και οχετών συναρτώνται με τις απαιτήσεις του Κυρίου του Έργου για την προστασία της στρώσης στεγάνωσης του τεχνικού έργου από τα φορτία της κυκλοφορίας και την ομαλή λειτουργία των έργων.
Οι παρακάτω απαιτήσεις έχουν εφαρμογή για την περίπτωση που θα κατασκευασθούν εύκαμπτα ή ημιάκαμπτα οδοστρώματα. Και στις δύο περιπτώσεις, το ανώτερο τμήμα της κατασκευής οδοστρώματος κατασκευάζεται με ασφαλτικές στρώσεις. Ασφαλτικές στρώσεις, όμοιες με τις ασφαλτικές στρώσεις του οδοστρώματος εκτός της περιοχής των τεχνικών έργων, κατασκευάζονται και στην περιοχή των διαβάσεων και οχετών.
10.2. (1) Για την περίπτωση διαβάσεων και οχετών στέψης, το ελάχιστο συνολικό πάχος ασφαλτικής επικάλυψης σε περιοχή οδοστρώματος είναι ίσο προς 0,10 m, για την περίπτωση που πρόκειται να χρησιμοποιηθεί ειδική κατηγορία μεμβράνης του συστήματος στεγάνωσης που είναι κατάλληλα κατασκευασμένη, ώστε να μη κινδυνεύει να τραυματισθεί από τις εργασίες κατασκευής των ασφαλτικών στρώσεων.
(2) Αν τυχόν η μεμβράνη του συστήματος στεγάνωσης δεν πληροί την παραπάνω απαίτηση, θα πρέπει να κατασκευασθεί και πρόσθετη προστατευτική στρώση ελαχίστου πάχους 0,02 m, από αμμάσφαλτο (ή άλλο κατάλληλο υλικό σύμφωνα με ισχύουσες προδιαγραφές χωρών - μελών της Ευρωπαϊκής Ένωσης ή σύμφωνα με τις προδιαγραφές AASHTO/ASTM) για την προστασία της μεμβράνης από τις εργασίες κατασκευής των ασφαλτικών στρώσεων.
Στην περίπτωση αυτή, το ελάχιστο πάχος επικάλυψης πάνω από τη στεγανωτική μεμβράνη θα είναι ίσο προς 0,12 m.
(3) Για την περίπτωση μικρών τεχνικών που ανήκουν σε οδούς των οποίων το οδόστρωμα θα ενισχυθεί μελλοντικά, τότε η απαιτούμενη ελάχιστη επικάλυψη θα είναι ίση προς 0,10 m ή 0,12 m (σύμφωνα με τα προηγούμενα) προσαυξημένη κατά το πάχος d της μελλοντικής ενίσχυσης του οδοστρώματος.
10.3. (1) Στα πεζοδρόμια διαβάσεων και οχετών στέψης θα είναι δυνατή η κατασκευή επιφανειακής διαμόρφωσης εύκαμπτου τύπου. Το ίδιο ισχύει και για τις επιφάνειες των κεντρικών νησίδων και των πλευρικών φυτικών λωρίδων που διαμορφώνονται με επιφανειακή επίστρωση στις περιοχές των διαβάσεων και οχετών στέψης.
(2) Αν χρησιμοποιηθεί πλακόστρωση στα πεζοδρόμια, θα πρέπει ολόκληρο το πάχος της υποκείμενης στρώσης, μέχρι το φορέα, να κατασκευασθεί από σκυρόδεμα για να αποφευχθεί η διείσδυση νερού από τις ρωγμές που θα μπορούσαν να δημιουργηθούν στους αρμούς της πλακόστρωσης.
(3) Όταν χρησιμοποιείται υλικό επίχωσης χωρίς συνδετική ύλη κάτω από την επιφανειακή διαμόρφωση των πεζοδρομίων κ.λ.π., τότε η επιφανειακή διαμόρφωση αυτών μπορεί να κατασκευάζεται από:
| • | Μια κάτω στρώση ασφαλτικής βάσης συμπυκνωμένου πάχους 0,05 m και |
| • | Μια άνω ασφαλτική στρώση κλειστού τύπου συμπυκνωμένου πάχους 0,025 m, ή εναλλακτικά μια στρώση ασφαλτομαστίχης κατάλληλης για οδούς και πεζοδρόμια, πάχους 0,025 m. |
(4) Στα πεζοδρόμια κ.λ.π. δεν είναι αναγκαία η κατασκευή προστατευτικής στρώσης της στεγανωτικής μεμβράνης, δεδομένου ότι δεν απαιτείται η άμεση επ' αυτής κατασκευή ασφαλτικών στρώσεων με κυλίνδρωση εν θερμώ.
10.4. (1) Οι παραπάνω απαιτήσεις δεν ισχύουν για την περίπτωση πεζογεφυρών.
(2) Για τις πεζογέφυρες θα μπορούν να εφαρμοσθούν οι ισχύουσες προδιαγραφές χωρών - μελών της Ευρωπαϊκής Ένωσης ή προδιαγραφές του AASHTO/ASTM.
(3) Αν δεν προδιαγράφονται αυστηρότερες απαιτήσεις για τις πεζογέφυρες, ορίζονται οι παρακάτω ελάχιστες απαιτήσεις:
i. Το ελάχιστο πάχος επικάλυψης της στεγανωτικής μεμβράνης που είναι κατάλληλα κατασκευασμένη για να αντέχει στην εφαρμογή ασφαλτικής στρώσης με κυλίνδρωση εν θερμώ, θα είναι ίσο προς 0,05 m.
ii. Αν η στεγανωτική μεμβράνη δεν πληροί την παραπάνω απαίτηση, θα κατασκευάζεται επ' αυτής μιας πρόσθετη προστατευτική στρώση ελάχιστου πάχους 0,02 m από αμμάσφαλτο ή άλλο ανάλογο υλικό.
iii. Είναι δυνατή η κατασκευή επιφανειακής διαμόρφωσης του καταστρώματος της πεζογέφυρας με αντιολισθηρή πλακόστρωση ελάχιστου ολικού πάχους 0,07 m.
11. Κανονισμοί
Ολόκληρος ο σχεδιασμός θα γίνει σύμφωνα με τους ισχύοντες στην χώρα μας κανονισμούς και λοιπές κανονιστικές διατάξεις, προεδρικά διατάγματα, Υπουργικές Αποφάσεις, Εγκυκλίους κ.α. σε συνδυασμό με τη διάταξη της παρούσας Οδηγίας Μελετών Οδικών Έργων.
12. Φορτία υπολογισμού
Ισχύουν τα αναφερόμενα στο κεφάλαιο 2 της παρούσας Οδηγίας Μελετών Οδικών Έργων.
13. Ελάχιστες διατάσεις δομικής διαμόρφωσης
Οι παρακάτω αναγραφόμενες ελάχιστες διαστάσεις δομικής διαμόρφωσης ισχύουν για δομικά στοιχεία από σκυρόδεμα κατασκευαζόμενα επί τόπου, δεν έχουν όμως εφαρμογή για προκατασκευασμένα στοιχεία, όπου ισχύουν τα DIN και οι λοιποί σχετικοί κανονισμοί.
13.1. Κεφαλόδεσμοι πασσάλων
Η καθαρή απόσταση μεταξύ πασσάλων στο κάτω πέλμα του κεφαλόδεσμου θα είναι τουλάχιστον 60 cm. Ο κεφαλόδεσμος θα έχει ελάχιστο πάχος 60 cm, αλλά όχι μικρότερο από τη μεγαλύτερη διάμετρο πασσάλου.
13.2. Βάθρα
Ελάχιστες διαστάσεις d:
| • | Εξομαλυντική στρώση (καθαριότητας) από σκυρόδεμα d = 10 cm |
| • | Πτερύγια στη θέση πάκτωσης d = 30 cm |
- Για ύψος τοίχου ≤ 1,50 m πάνω και κάτω d = 30 cm
- Για ύψος τοίχου ≥ 4,50 m κάτω d = 50 cm
- Για ύψος τοίχου ≥ 4,50 m πάνω d = 30 cm
- (Για ενδιάμεσες τιμές θα γίνεται γραμμική παρεμβολή)
13.3. Φορείς ανωδομής
Ελάχιστες διαστάσεις d:
(1) Χωρίς επαφή με το έδαφος
| • | Πλάκες καταστρώματος d = 20 cm |
(2) Σε επαφή με το έδαφος
| • | Πλαίσια, θόλοι και ανωδομές υπό επίχωση d = 30 cm |
14. Απαιτήσεις χαλαρού οπλισμού σκυροδέματος
14.1. Ελάχιστη διάμετρος και μέγιστη απόσταση ράβδων
Η ελάχιστη διάμετρος χαλαρών οπλισμών σκυροδέματος είναι 10 mm και η μέγιστη απόσταση ράβδων 20 cm. Τούτο δεν ισχύει για τον οπλισμό μονταρίσματος, όπως τα άγκιστρα S κ.λ.π.
Για πλέγματα οπλισμού, το άνοιγμα βροχίδας θα είναι ≤ 150 mm και η διάμετρος των ράβδων ≥ 6 mm.
14.2. Ελάχιστος οπλισμός
(1) Υποδομή
Όλες οι παρειές δομικών στοιχείων μορφής δίσκων ή πλακών θα οπλίζονται με οπλισμό και στις δύο κατευθύνσεις. Κάθε παρειά θα οπλίζεται ανά κατεύθυνση με ελάχιστον οπλισμό 0,06% της επιφάνειας σκυροδέματος, αλλά τουλάχιστον Φ10 mm ανά 20 cm, ή με πλέγμα της ίδιας επιφάνειας χάλυβα.
(2) Ανωδομή
(1) Ο ελάχιστος οπλισμός θα τίθεται σε όλους τους αρμούς διακοπής εργασίας, εκτός αν απαιτείται περισσότερος για στατικούς λόγους.
(2) Σε φορείς με διάκενα, π.χ. πλάκες με διάκενα ή κιβωτοειδείς φορείς, θα προβλέπεται ένας ελάχιστος οπλισμός στις εσωτερικές παρειές σκυροδέματος γύρω από τα διάκενα.
(3) Σε μία λωρίδα πλάτους 1,0 m στο εξωτερικό άκρο πλακών προβόλων θα τοποθετείται ελάχιστος διαμήκης οπλισμός με συνολική επιφάνεια ίση με 0,8% της επιφάνειας σκυροδέματος της παραπάνω λωρίδας. Ο οπλισμός αυτός θα διατάσσεται και στα δύο πέλματα, πάνω και κάτω, με τις ίδιες διαμέτρους και σε αποστάσεις μικρότερες από 10 cm. Σε περιπτώσεις προβολών μικρότερων του 1,0 m, ο οπλισμός καθορίζεται από τη συνολική επιφάνεια σκυροδέματος.
14.3. Επικάλυψη οπλισμών
Γενικά, η ελάχιστη επικάλυψη οπλισμών θα είναι 4 cm και η ονομαστική επικάλυψη 4,5 cm. Σε περίπτωση επαφής του σκυροδέματος με το έδαφος η ελάχιστη επικάλυψη θα είναι 5,0 cm και η ονομαστική 5,5 cm.
15. Σωληνωτοί οχετοί - ειδικές διατάξεις
15.1. Οι σωληνωτοί οχετοί αποχέτευσης (ομβρίων - ακαθάρτων) θα διαστασιολογούνται σύμφωνα με την παροχή υπολογισμού και με υπολογισμό των υδραυλικών στοιχείων, σύμφωνα με τα αναφερόμενα στις παραγράφους 6.1 και 6.2 αντίστοιχα.
15.2. Δεν επιτρέπεται η κατασκευή σωληνωτών οχετών αποχέτευσης ομβρίων όταν αποχετεύουν άμεσα εξωτερικές λεκάνες απορροής (Στην περίπτωση αυτή είναι δυνατή η εφαρμογή σωληνωτών οχετών μόνον όταν ανήκουν σε δίκτυα αποχέτευσης ομβρίων και η αποχέτευση γίνεται με την παρεμβολή φρεατίων υδροσυλλογής, σύμφωνα με τον πίνακα της παραγράφου 6.3 που αφορά στις ελάχιστες διαμέτρους σωληνωτών οχετών και αγωγών). Οι οχετοί, στην περίπτωση αυτή, θα πρέπει να είναι ορθογωνικής διατομής (ή θολωτής / καμπυλόμορφης διατομής) και θα πρέπει να τηρούν τις απαιτήσεις της ιδίας παραγράφου.
15.3. Επιτρέπεται η κατασκευή σωληνωτών οχετών που αποχετεύουν άμεσα εξωτερικές λεκάνες απορροής σε υπεραστικές οδούς τυπικής διατομής AV και κατώτερης και σε αστικές οδούς λειτουργικής κατάταξης συλλεκτήριας οδού και κατώτερης, κάτω από τις ακόλουθες προϋποθέσεις:
(1) Η ελάχιστη εσωτερική διάμετρος σωληνωτού οχετού δεν μπορεί να είναι μικρότερη από 1,00 m.
(2) Το μέγιστο μήκος σωληνωτού οχετού δεν θα υπερβαίνει τα 20,0 m.
(3) Απαγορεύεται η χρήση σωληνωτών οχετών σε περιπτώσεις σχηματισμένης μισγάγγειας ή τάφρου, για την οποία εκτιμάται ότι υπάρχει κίνδυνος έμφραξης από στερεοπαροχή.
15.4. Κατ' εξαίρεση, για υπεραστικές οδούς τυπικής διατομής ή και αστικές οδούς λειτουργικής κατάταξης οδού προσπέλασης παρόδιων και κατώτερης, επιτρέπεται η κατασκευή σωληνωτών οχετών εσωτερικής διαμέτρου μικρότερης από 1,00 m, ακόμη και στην περίπτωση που αποχετεύουν άμεσα εξωτερικές λεκάνες απορροής, σύμφωνα με τα παρακάτω:
(1) Επιτρέπεται ειδικά η κατασκευή σωληνωτών οχετών εσωτερικής διαμέτρου 0,60 m και 0,80 m για μέγιστα μήκη 10,0 m και 15,0 m αντίστοιχα.
(2) Απαγορεύεται η χρήση σωληνωτών οχετών σε περιπτώσεις σχηματισμένης μισγάγγειας ή τάφρου, για την οποία εκτιμάται ότι υπάρχει κίνδυνος έμφραξης από στερεοπαροχή.
(3) Γενικά, σωληνωτοί οχετοί με εσωτερική διάμετρο μικρότερη από 0,80 m διαμορφώνονται μόνον όταν μπορούν να καθαριστούν με μηχανικό τρόπο. Για πολύ επιμήκεις οχετούς χρειάζονται μεγαλύτερες διαστάσεις.
(4) Οι σωληνωτοί οχετοί θα είναι σύμφωνοι με τα αναφερόμενα ακολούθως που αφορούν στους σωληνωτούς αγωγούς.
16. Σωληνωτοί αγωγοί - ειδικές διατάξεις
16.1. Γενικά
(1) Σωληνωτοί αγωγοί χρησιμεύουν για την υπόγεια μεταφορά των ομβρίων. Επίσης, σωληνωτοί αγωγοί χρησιμοποιούνται στα έργα αποχέτευσης ακαθάρτων.
(2) Η διάμετρος του σωληνωτού αγωγού προκύπτει από την παροχή υπολογισμού, την κλίση και την ταχύτητα.
(3) Σωληνωτοί αγωγοί πρέπει να υπολογίζονται έτσι ώστε ακόμη και με την ελάχιστη ποσότητα νερού να υπάρχουν όσο το δυνατό λιγότερες αποθέσεις.
(4) Οι σωλήνες μεταξύ των φρεατίων πρέπει να τοποθετούνται σε οριζοντιογραφία και μηκοτομή ευθύγραμμα (οριζόντιες καμπύλες ακτίνας R > 100 m λογίζονται ως ευθυγραμμία).
(5) Η απαιτούμενη φέρουσα ικανότητα των σωλήνων πρέπει να υπολογίζεται με βάση τη φόρτιση από την επικάλυψη και τη φόρτιση της κυκλοφορίας.
(6) Κατά την εκλογή και την κατασκευή των σωληνώσεων πρέπει να προσεχθούν οι χημικές ιδιότητες των υλικών που έρχονται σε επαφή με τον σωλήνα, όπως π.χ. ταινίες στεγανοποίησης.
(7) Γενικά για την αποχέτευση ομβρίων θα χρησιμοποιούνται οι ακόλουθες κατηγορίες σωλήνων:
i. Άοπλοι πρεσσαριστοί τσιμεντοσωλήνες της ΠΤΠ Τ110 από σκυρόδεμα, κατηγορίας Β15 (συνήθους αντοχής) ή Β25 (υψηλής αντοχής)
ii. Οπλισμένοι πρεσσαριστοί τσιμεντοσωλήνες της ΠΤΠ Τ110 από σκυρόδεμα κατηγορίας Β25
iii. Οπλισμένοι δονητικοί ή φυγοκεντρικοί τσιμεντοσωλήνες (χωρίς εσωτερική προστασία), σύμφωνα με την προδιαγραφή του τέως Υπουργείου Δημοσίων Έργων (ΦΕΚ 253 Β/1984) με καμπάνα με στεγανωτικό δακτύλιο από λάστιχο (σειρές 75, 100 και 150). Για την περίπτωση που οι σωλήνες αυτοί τοποθετούνται σε διαβρωτικό έδαφος, θα προστατεύονται και εξωτερικά με κατάλληλη επένδυση (άρθρο 10 προδιαγραφής τέως Υπουργείου Δημοσίων Έργων (ΦΕΚ 253 Β/1984))
iv. Σωλήνες από σκυρόδεμα (οπλισμένο ή άοπλο), σύμφωνα με εν ισχύ προδιαγραφές χωρών μελών της Ευρωπαϊκής Ένωσης ή σύμφωνα με τα ΑΑSHTO/ASTM.
v. Πλαστικοί σωλήνες από σκληρό PVC με πάχος ίσο ή μεγαλύτερο προς αυτό που αντιστοιχεί στη σειρά 41 του Ελληνικού Οργανισμού Τυποποίησης, σύμφωνα με προδιαγραφές χωρών μελών της Ευρωπαϊκής Ένωσης ή σύμφωνα με τα ΑΑSHTO/ASTM.
vi. Αμιαντοτσιμεντοσωλήνες σύνδεσης φρεατίων της σειράς ΙΙΙ-9000 (χωρίς εσωτερική προστασία), σύμφωνα με το πρότυπο Ελληνικού Οργανισμού Τυποποίησης 179-1979. Ισχύει και εδώ η απαίτηση εξωτερικής και εσωτερικής προστασίας. Είναι επίσης αποδεκτό να υιοθετηθούν οι προδιαγραφές χωρών μελών της Ευρωπαϊκής Ένωσης ή αντίστοιχα οι προδιαγραφές ΑΑSHTO/ASTM.
Σημείωση: Για περίπτωση τοποθέτησης των σωλήνων σε περιοχές όπου αναμένονται υποχωρήσεις (π.χ. σε επιχώματα ύψους Η > 3,0 m, συνεκτικά εδάφη για τα οποία αναμένονται καθιζήσεις κ.λ.π.) θα πρέπει να χρησιμοποιούνται εύκαμπτοι σύνδεσμοι των σωλήνων με χρήση των σωλήνων των παραπάνω υποπαραγράφων iii και iv.
(8) Γενικά για την αποχέτευση ακαθάρτων θα χρησιμοποιούνται οι ακόλουθες κατηγορίες σωλήνων:
i. Οπλισμένοι δονητικοί ή φυγοκεντρικοί τσιμεντοσωλήνες, σύμφωνα με την προδιαγραφή τέως Υπουργείου Δημοσίων Έργων (ΦΕΚ 253 Β/84) με καμπάνα με ειδικό στεγανωτικό δακτύλιο από λάστιχο κατάλληλο για ακάθαρτα, με χρησιμοποίηση τσιμέντου κατηγορίας IV, ανθεκτικού στα θειικά (SULFATE RESISTANT), με εσωτερική προστασία με εποξειδική βαφή, σύμφωνα με την προδιαγραφή του αντίστοιχου άρθρου της εκάστοτε Τεχνική Συγγραφή Υποχρεώσεων.
ii. Οπλισμένοι δονητικοί ή φυγοκεντρικοί τσιμεντοσωλήνες κ.λ.π, σύμφωνα με την παραπάνω υποπαράγραφο I και με πρόσθετη εξωτερική προστατευτική επένδυση για τοποθέτησή τους σε διαβρωτικό έδαφος (άρθρο 10 προδιαγραφής τέως Υπουργείου Δημοσίων Έργων (ΦΕΚ 253 Β/1984)).
iii. Πλαστικοί σωλήνες από σκληρό PVC της σειράς SDR 41 ή με παχύτερα τοιχώματα, σύμφωνα με το αντίστοιχο πρότυπο του Ελληνικού Οργανισμού Τυποποίησης, με δυνατότητα χρήσης μόνο των διαμέτρων DMIN = 200 mm έως και DMAX = 315 mm.
iv. Αργιλοπυριτικοί σωλήνες ακαθάρτων
16.2. Παροχή υπολογισμού και παραδοχές υπολογισμού δικτύων αποχέτευσης ακαθάρτων
Ο υπολογισμός των παροχών των αγωγών ακαθάρτων θα γίνεται ως ακολούθως:
(1) α) Υπολογίζεται η λεκάνη απορροής (F) που καταλήγει στο υπόψη τμήμα του αγωγού. Η λεκάνη απορροής θα περατώνεται στα όρια του εγκεκριμένου Σχεδίου Πόλης.
β) Ως λεκάνη απορροής (F) θα θεωρείται η επιφάνεια των Οικοδομικών Τετραγώνων, αφαιρουμένων των επιφανειών των οδών και των κοινοχρήστων χώρων για τις οποίες δεν προβλέπεται δόμηση (π.χ. πλατείες, πάρκα κ.λ.π.).
γ) Για την περίπτωση περιοχών που ευρίσκονται εκτός Σχεδίου Πόλης, για τις οποίες όμως αναμένεται σε μελλοντικό χρονικό ορίζοντα 30 χρόνων να ενταχθούν στο Σχέδιο Πόλης (π.χ. ύπαρξη διαμορφωμένων ρυμοτομικών γραμμών, διαδικασία υπό εξέλιξη για ένταξη στο Σχέδιο Πόλης, εκτιμήσεις Δημοτικών/Κοινοτικών Αρχών κ.λ.π.) αυτές θα περιλαμβάνονται στις λεκάνες απορροής του υπόψη αγωγού.
δ) Για τις περιοχές εκτός Σχεδίου Πόλης που δεν υπάρχουν διαμορφωμένα Οικοδομικά Τετράγωνα ή δεν υπάρχει πρόταση Ρυμοτομικού Σχεδίου, θα μπορεί να γίνεται εκτίμηση της επιφάνειας των Οικοδομικών Τετραγώνων με χρήση καταλλήλων συντελεστών (f) μετατροπής της γεωμετρικής επιφάνειας (Α) σε επιφάνεια Οικοδομικών Τετραγώνων (F). (Αν δεν υπάρχουν κατάλληλες εκτιμήσεις μπορεί να παίρνεται f = 0,70).
(2) α) Με εφαρμογή των επί μέρους συντελεστών δόμησης (δi) στις επί μέρους επιφάνειες Οικοδομικών Τετραγώνων (Fi) του Σχεδίου Πόλης υπολογίζεται η δομήσιμη επιφάνεια Δi=δi x Fi και εξ αυτής η συνολική δομήσιμη επιφάνεια ΔΟΛ = Σ(δi x Fi)
β) Για τις Εκτός Σχεδίου Πόλεως επιφάνειες της παραπάνω παραγράφου (1)γ, εφόσον δεν υπάρχουν προτάσεις για συντελεστές δόμησης (π.χ. από μελέτη υπό ένταξη Ρυμοτομικού Σχεδίου), αυτοί θα εκτιμώνται με αιτιολογημένη πρόταση του μελετητή και ύστερα από συνεργασία με τις αρμόδιες Δημοτικές/Κοινοτικές Αρχές.
(3) Υπολογίζεται ο ισοδύναμος μέγιστος πληθυσμός (Ρο) με την παραδοχή ενός κατοίκου ανά 25 m2 δομήσιμης επιφάνειας:
Ρο = ΔΟΛ / 25 (κάτοικοι).
(4) Εκτιμάται κορεσμός δόμησης περίπου 90%, οπότε προκύπτει πληθυσμός κορεσμού (Ρ) : Ρ = 0,9 x Po (κάτοικοι).
(5) Υπολογίζεται η μέση κατ' άτομο ημερήσια κατανάλωση νερού (qw) και με βάση αυτήν η μέση απορροή (Q) στο δίκτυο ακαθάρτων.
Για την περίπτωση που δεν υπάρχουν ακριβέστερα στοιχεία μέσης κατ' άτομο ημερήσιας κατανάλωσης (ειδικής κατανάλωσης) νερού από αρμόδιους Οργανισμούς (π.χ. Δήμοι, Εταιρεία Ύδρευσης και Αποχέτευσης Πρωτεύουσας κ.λ.π.) τότε θα μπορεί να παίρνεται qw = 200 λίτρα/άτομο/ημέρα.
Από την παραπάνω ειδική κατανάλωση νερού θα εκτιμάται η απορροή στο δίκτυο ακαθάρτων με συντελεστή απορροής (C) ίσον προς:
C = 0,65 Για αγροτική περιοχή
C = 0,75 Για ημιαστική περιοχή
C = 0,85 Για καθαρά αστική περιοχή
Σύμφωνα με τα παραπάνω για αστική περιοχή και για την περίπτωση που δεν υπάρχουν στοιχεία ειδικής κατανάλωσης νερού προκύπτει:

(6) Θεωρείται μέγιστη ημερήσια παροχή (QMAX), (η οποία καλύπτει τις διακυμάνσεις των παροχών)
QMAX = 1,50 x Q (m3/ημέρα)
(7) Παροχή υπολογισμού του δικτύου είναι η παροχή αιχμής (qMAX), που μπορεί να υπολογισθεί από την παρακάτω σχέση:
qMAX = K x QMAX / 86,4 (l/s)
όπου Κ = 5 / (P/1.000)1/6
(8) Για τις περιπτώσεις που περιλαμβάνονται στις λεκάνες απορροής σημαντικές βιομηχανικές περιοχές, στρατόπεδα, μεγάλες νοσοκομειακές μονάδες, μεγάλες αθλητικές εγκαταστάσεις κλπ. παρόμοια, απαιτείται να γίνεται ειδική διερεύνηση των σχετικών απορροών που θα παίρνονται υπόψη στις συνολικές παροχές σχεδιασμού.
(9) Στην παραπάνω παροχή υπολογισμού qMAX προστίθενται οι παροχές διηθήσεων που θα κυμαίνονται, ανά μέτρο μήκους ονομαστικής διαμέτρου αγωγού και χιλιόμετρο αγωγού, από 0,1 έως 1,0 m3/ημέρα. Η εκτίμηση της παροχής διηθήσεων θα γίνεται ανάλογα με την ύπαρξη ή μη υδροφόρου ορίζοντα, το είδος του αγωγού, τα χαρακτηριστικά του εδάφους, το πλήθος των κάθε είδους συνδέσεων (ιδιωτικές, ενώσεις αγωγών, φρεάτια κ.λ.π.) κ.λ.π.
16.3. Μέγιστο βάθος ροής (Ύψος πλήρωσης)
Το μέγιστο επιτρεπόμενο ύψος πλήρωσης (yMAX) των σωληνωτών αγωγών κυκλικής διατομής σε σχέση με την εσωτερική διάμετρο αυτών (D), δηλαδή ο λόγος yMAX/D, ορίζεται σε:
Για αγωγούς D ≤ 0,40 m : yMAX/D = 0,50
Για αγωγούς 0,40 < D ≤ 0,60 m : yMAX/D = 0,60
Για αγωγούς D > 0,60 m : yMAX/D = 0,70
16.4. Ελάχιστες ταχύτητες ροής
Οι σωληνωτοί αγωγοί πρέπει να υπολογίζονται έτσι ώστε ακόμη και με την ελάχιστη ποσότητα νερού να υπάρχουν όσο το δυνατόν λιγότερες αποθέσεις. Για το λόγο αυτό επιβάλλεται η ικανοποίηση των παρακάτω κριτηρίων:
(1) Αναγόμενη στην παροχή υπολογισμού πρέπει η ταχύτητα ροής των αγωγών κάθε είδους να μη είναι κατώτερη από 0,5 m/s.
(2) Για λόγους αυτοκαθαρισμού, η ελάχιστη ταχύτητα ροής, για τους αγωγούς κάθε είδους με παροχή ίση προς το 1/10 της παροχής υπολογισμού, δεν πρέπει να είναι μικρότερη από 0.3 m/s. Για ειδικές περιπτώσεις (π.χ. αποφυγής αντλιοστασίου κ.λ.π.) επιτρέπονται παρεκκλίσεις από τους κανόνες καθορισμού της ελάχιστης επιτρεπόμενης κατά μήκος κλίσης, απαιτείται όμως σύμφωνη γνώμη της Υπηρεσίας.