| Συνδεθείτε στην Υπηρεσία Νομοσκόπιο | | | | | Νέοι χρήστες | | Εάν είστε νέος χρήστης, θα πρέπει να δημιουργήσετε ένα ΔΩΡΕΑΝ λογαριασμό προκειμένου να φύγει το παράθυρο αυτό και να αποκτήσετε πλήρη πρόσβαση στην υπηρεσία Νομοσκόπιο. | | Δημιουργία νέου λογαριασμού | | |
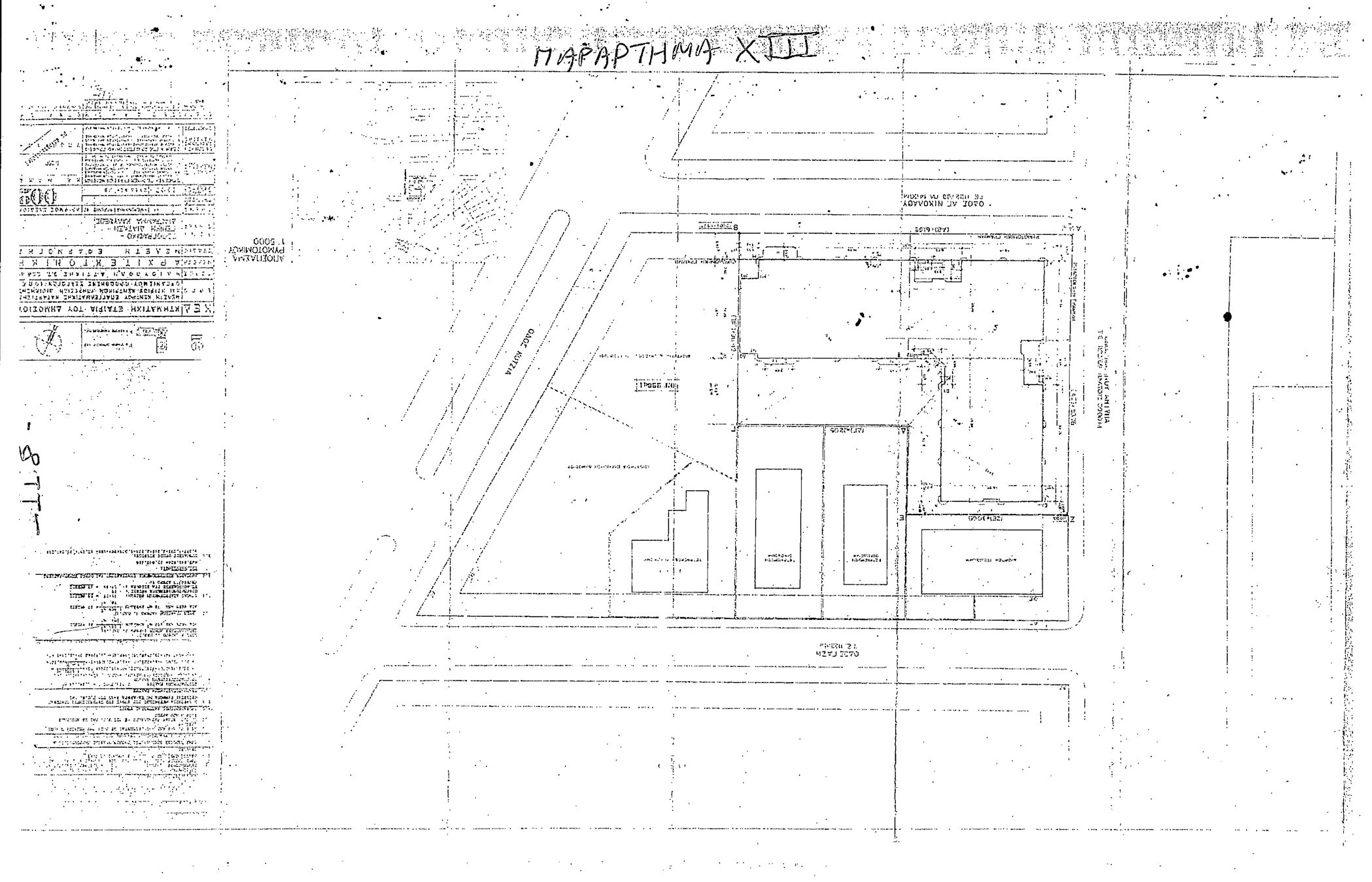
1. Παραχωρείται χωρίς αντάλλαγμα στην Ανεξάρτητη Αρχή Δημοσίων Εσόδων, για 30 έτη, η χρήση τμήματος του δημοσίου ακινήτου με ΑΒΚ 1975 του Γενικού Βιβλίου Καταγραφής της Οικονομικής Εφορίας Δημοσίων Κτημάτων Αθηνών, με στοιχεία Κ, Π, Ν, Ν1, Ν2, Μ2, Μ1, Μ, Λ, Κ (κτήρια Κ1 και Κ2) και του περιβάλλοντος χώρου, με τα συστατικά και τα παραρτήματά του, όπως αυτό εμφαίνεται στο συνημμένο στο παρόν άρθρο τοπογραφικό διάγραμμα (Παράρτημα ΧΙΙΙ), για τη στέγαση της Φορολογικής και Τελωνειακής Ακαδημίας της Ανεξάρτητης Αρχής Δημοσίων Εσόδων.

2. Με απόφαση του Υπουργού Οικονομικών καθορίζονται η διαδικασία, οι όροι και κάθε λεπτομέρεια για την παραχώρηση της χρήσης του ακινήτου του παρόντος άρθρου.
3. Η παραχώρηση της χρήσης του δημοσίου ακινήτου του παρόντος άρθρου ανακαλείται, με απόφαση του Υπουργού Οικονομικών, εάν αυτό δεν χρησιμοποιηθεί εντός πενταετίας από την έναρξη ισχύος του παρόντος για τους σκοπούς, για τους οποίους παραχωρήθηκε.
4. Με αιτιολογημένη απόφαση του Υπουργού Οικονομικών αίρεται η παραχώρηση της χρήσης του δημοσίου ακινήτου του παρόντος άρθρου, ιδίως για καθυστέρηση, ματαίωση ή πλημμελή εκπλήρωση του σκοπού της παραχώρησης, αλλαγή της προβλεπόμενης χρήσης, καθώς και για λόγους ανωτέρας βίας ή για σπουδαίο λόγο.