| Συνδεθείτε στην Υπηρεσία Νομοσκόπιο | | | | | Νέοι χρήστες | | Εάν είστε νέος χρήστης, θα πρέπει να δημιουργήσετε ένα ΔΩΡΕΑΝ λογαριασμό προκειμένου να φύγει το παράθυρο αυτό και να αποκτήσετε πλήρη πρόσβαση στην υπηρεσία Νομοσκόπιο. | | Δημιουργία νέου λογαριασμού | | |
1. α. Χαρακτηρίζονται νομίμως υφιστάμενα κατά θέση, χρήση και δόμηση, το σύνολο των εγκαταστάσεων των κτιρίων της Ακαδημίας Εμπορικού Ναυτικού Ασπροπύργου ως έχει, επί συνολικής οικοπεδικής έκτασης των εγκαταστάσεων 58.962,35 τετραγωνικά μέτρα όπως αυτή ορίζεται από τα στοιχεία (1 - 2 - 3 - 4 - 5 - 6 - 7 - 48 -8 - 9 - 10 - 11 - 12 - 13 - 14 - 15 - 16 - 17 - 18 - 19 - 20 -21 - 22 - 23 - 24 - 25 - 26 - 27 - 28 - 29 - 30 - 31 - 32 -32 - 33 - 34 - 35 - 36 - 37 - 38 - 39 - 40 - 41 - 42 - 43 -1), αποτελούμενη από το εκτός χερσαίας ζώνης λιμένα τμήμα, υπό τα στοιχεία (1 - 2 - 3 - 4 - 5 - 6 - 7 - 48- 47 - 46 - 45 - 44 - 30 - 31 - 32 - 32 - 33 - 34 - 35 - 36 -37 - 38 - 39 - 40 - 41 - 42 - 43 - 1) έκτασης 46.280,50 τετραγωνικά μέτρα και το εντός χερσαίας ζώνης λιμένα, υπό τα στοιχεία (48 - 8 - 9 - 10 - 11 - 12 - 13 - 14 - 15 - 16 - 17 - 18 - 19 - 20 - 21 - 22 - 23 - 24 - 25 - 26 - 27 - 28 - 29 - 30 - 44 - 45 - 46 - 47 - 48) έκτασης 12.681,85 m2, όπως απεικονίζονται στο υπό κλίμακα 1:500 από το Φεβρουάριο του 2013 τοπογραφικό διάγραμμα του πολιτικού μηχανικού Χριστόφιλου Γεωργίου, θεωρημένο από την αρμόδια Διεύθυνση Προμηθειών και Κτιριακών Εγκαταστάσεων τμήμα δ' (κτιριακών εγκαταστάσεων) του Υπουργείου Ναυτιλίας και Αιγαίου, το οποίο σε φωτοσμίκρυνση δημοσιεύεται με τον παρόντα νόμο (Παράρτημα 1) με συνολική κάλυψη κτιριακών εγκαταστάσεων 10.277,94 m2 και συνολική δόμηση 17.699,71 m2.

β. Νομιμοποιούνται ως έχουν επί της ανωτέρω συνολικής έκτασης, οι προσχώσεις που έχουν πραγματοποιηθεί και οι λιμενικές εγκαταστάσεις που έχουν ανεγερθεί εντός της χερσαίας λιμενικής ζώνης και περικλείονται από τα στοιχεία (48 - 8 - 9 - 10 - 11 - 12 - 13 - 14 - 15 - 16 - 17 - 18 - 19 - 20 - 21 - 22 - 23 - 24 - 25 - 26 - 27 - 28 - 29 - 30 - 44 - 45 - 46 - 47 - 48) έκτασης 12.681,85 m2, τα κτίρια και οι κατασκευές που βρίσκονται επ' αυτών, και συγκεκριμένα, ο προσήνεμος μώλος (στοιχεία 19-24), το κρηπίδωμα (στοιχεία 13-19), ο υπήνεμος μώλος (στοιχεία 8-13) και το μέτωπο των έργων προστασίας της ακτογραμμής (στοιχεία 24-26), όπως αυτά απεικονίζονται υπό τα αντίστοιχα στοιχεία στο ανωτέρω τοπογραφικό διάγραμμα.
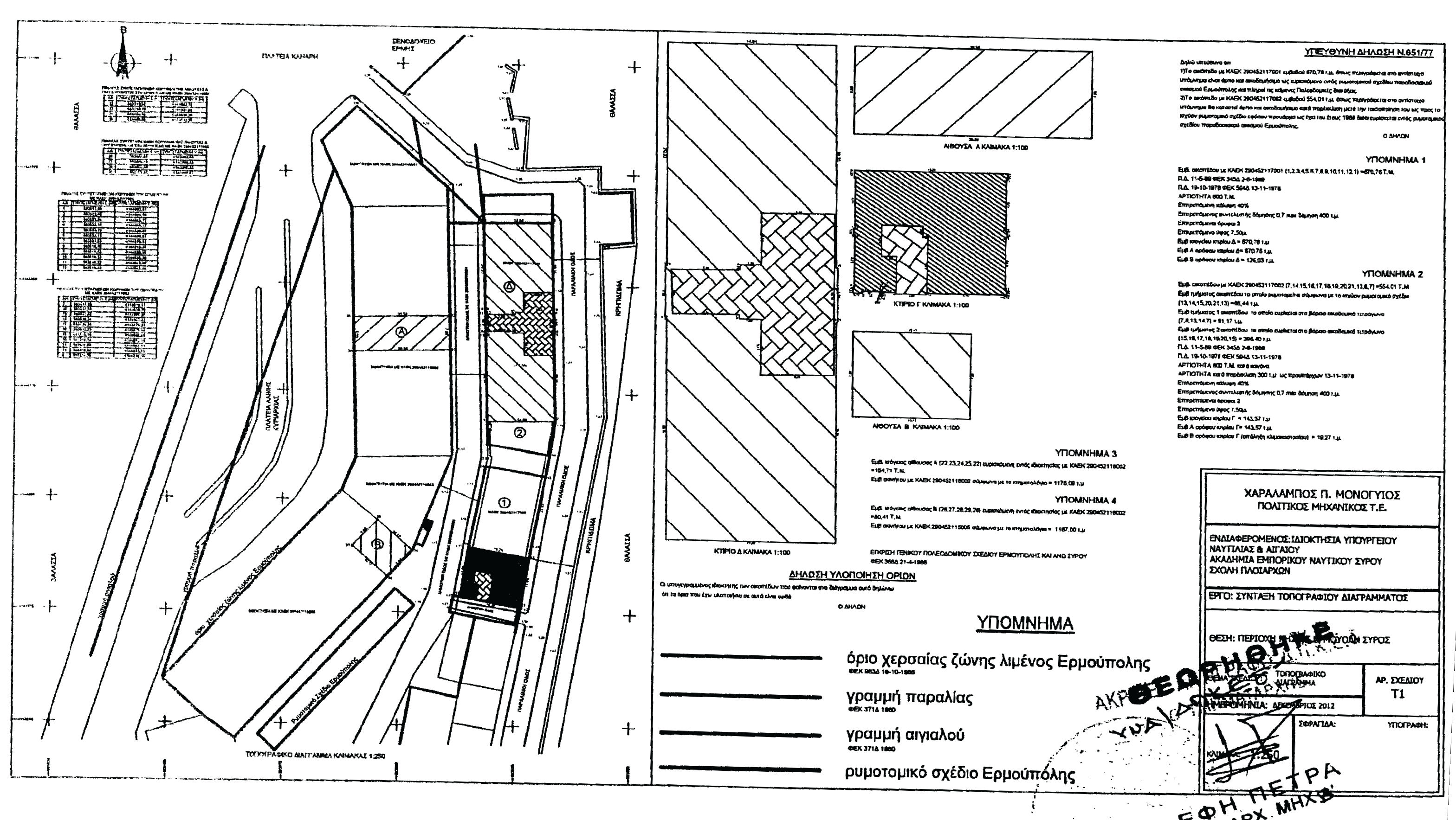
2. Χαρακτηρίζεται νομίμως υφιστάμενο κατά θέση, χρήση και δόμηση, το κτίριο Διοικητηρίου Ακαδημίας Εμπορικού Ναυτικού Σύρου υπό στοιχεία κάτοψης (16 - 17 - 18 - 19 - 16), ευρισκόμενο εντός του ρυμοτομικού σχεδίου Ερμούπολης και εκτός αιγιαλού, παραλίας και εκτός χερσαίας ζώνης λιμένα, ως έχει, επί συνολικής οικοπεδικής έκτασης των εγκαταστάσεων 1.224,77 τετραγωνικά μέτρα όπως αυτή ορίζεται από τα στοιχεία (1 - 2 - 3 - 4 - 5 - 6 - 7 - 8 - 9 - 10 - 11 - 13 - 14 - 15 - 16 - 17 - 18 - 19 - 20 - 21 - 13 - 8 - 9 - 10 - 11 - 12 - 1), όπως απεικονίζονται στο υπό κλίμακα 1:250 από το Δεκέμβριο 2012 τοπογραφικό διάγραμμα πολιτικού μηχανικού Τεχνολογικής Εκπαίδευσης Μονογιού Χαράλαμπου, θεωρημένο από την αρμόδια Διεύθυνση Προμηθειών και Κτιριακών Εγκαταστάσεων τμήμα δ' (κτιριακών εγκαταστάσεων) του Υπουργείου Ναυτιλίας και Αιγαίου, το οποίο σε φωτοσμίκρυνση δημοσιεύεται με τον παρόντα νόμο (Παράρτημα 2) με συνολική κάλυψη κτιρίου 143,57 m2 και συνολική δόμηση 287,14 m2.

3. Χαρακτηρίζονται νομίμως υφιστάμενα κατά θέση, χρήση και δόμηση, το σύνολο των εγκαταστάσεων των κτιρίων της Ακαδημίας Εμπορικού Ναυτικού Ηπείρου ως έχει, επί συνολικής οικοπεδικής έκτασης των εγκαταστάσεων 35.887,53 τετραγωνικά μέτρα όπως αυτή ορίζεται από τα στοιχεία (1 - 2 - 3 - 4 - 5 - 6 - 7 - 8 - 9 - 10 - 11 - 12 - 13 - 14 - 15 - 16 - 17 - 18 - 19 - 20 - 21 - 22 - 23 - 24 - 25 - 26 - 27 - 28 - 29 - 30 - 31 - 32 - 32 - 33 - 34 - 35 - 36 - 37 - 38 - 39 - 40 - 41 - 42 - 43 - 44 - 45 - 46 - 47 - 48 - 49 - 50 - 51 - 52 - 53 - 54 - 55 - 56 - 57 - 58 - 59 - 60 - 61 - 62 - 63 - 64 - 65 - 66 - 67 - 68 - 69 - 70 - 71 - 72 - 1), όπως απεικονίζονται στο υπό κλίμακα 1:500 από τον Ιανουάριο του 2013 τοπογραφικό διάγραμμα του πολιτικού μηχανικού Αναστασόπουλου Ανδρέα, θεωρημένο από την αρμόδια Διεύθυνση Προμηθειών και Κτιριακών Εγκαταστάσεων τμήμα δ' (κτιριακών εγκαταστάσεων) του Υπουργείου Ναυτιλίας και Αιγαίου, το οποίο σε φωτοσμίκρυνση δημοσιεύεται με τον παρόντα νόμο (Παράρτημα 1) με συνολική κάλυψη κτιριακών εγκαταστάσεων 7.522,29 m2 και συνολική δόμηση 10.746,43 m2.

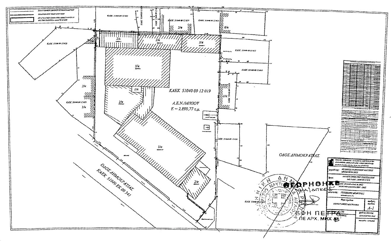
4. Χαρακτηρίζονται νομίμως υφιστάμενα κατά θέση, χρήση και δόμηση, το σύνολο των εγκαταστάσεων των κτιρίων της Ακαδημίας Εμπορικού Ναυτικού Χίου ως έχει, επί συνολικής οικοπεδικής έκτασης των εγκαταστάσεων 2.899,77 m2 όπως αυτή ορίζεται από τα στοιχεία (1-2-3-4-5-6-7-8-9-10-11-12-13-14-15-16-17-18-19-20-21- 22-23-24-25-26-27-28-29-1) στο υπό κλίμακα 1:100 από τον Ιανουάριο του 2013 τοπογραφικό διάγραμμα του πολιτικού μηχανικού Γκογκόζη Δημητρίου, θεωρημένο από την αρμόδια Διεύθυνση Προμηθειών και Κτιριακών Εγκαταστάσεων τμήμα δ' (κτιριακών εγκαταστάσεων) του Υπουργείου Ναυτιλίας και Αιγαίου, το οποίο σε φωτοσμίκρυνση δημοσιεύεται με τον παρόντα νόμο (Παράρτημα 1) με συνολική κάλυψη κτιριακών εγκαταστάσεων 1.506,23 m2 και συνολική δόμηση 3.702,22 m2.

4.Α. Χαρακτηρίζονται νομίμως υφιστάμενα κατά θέση, χρήση και δόμηση, το κτίριο της αποθήκης, εμβαδού 44,31 m2 και οριζόμενου από τα στοιχεία (ξ,ο,π,ρ,ξ) και το κτίριο του αντλιοστασίου, εμβαδού 30,64 m2 και οριζόμενου από τα στοιχεία (φ,σ,τ,υ,φ) ως έχουν, επί συνολικής οικοπεδικής έκτασης των εγκαταστάσεων της Ακαδημίας Εμπορικού Ναυτικού (ΑΕΝ) Ιονίων Νήσων, εμβαδού 17.542,42 m2, οριζόμενης από τα στοιχεία (Α, Β, Γ, Δ, Ε, Ζ, Η, Θ, Ι, Κ, Λ, Μ, Ν, Ξ, Ο, Π, Α), όπως απεικονίζονται στο υπό κλίμακα 1:500 από το Νοέμβριο του 2012 τοπογραφικό διάγραμμα του τοπογράφου μηχανικού Παναγιώτη Εφραιμίδη, το οποίο σε φωτοσμίκρυνση δημοσιεύεται με τον παρόντα νόμο και αποτελεί αναπόσπαστο μέρος της παρούσας (Παράρτημα 1).
5. α. Η παράγραφος 4 του άρθρου 5 του νόμου 4081/2012 (ΦΕΚ 184/Α/2012) εφαρμόζεται υπό τους ίδιους όρους και προϋποθέσεις για την επισκευή κάθε κτιρίου των Ακαδημιών Εμπορικού Ναυτικού το οποίο είναι ή έχει χαρακτηριστεί ως νόμιμο.
β. Στην περίπτωση συντάξεως μελετών από ιδιώτες μελετητές, αυτές πρέπει να εγκρίνονται από την αρμόδια υπηρεσία του Υπουργείου Ναυτιλίας και Αιγαίου. Όμοια έγκριση παρέχεται και για μελέτες ιδιωτών μελετητών, οι οποίες συμπληρώνουν ή τροποποιούν υφιστάμενες μελέτες συνταχθείσες από τις αρμόδιες δημόσιες υπηρεσίες. Τα προηγούμενα εδάφια ισχύουν και στην περίπτωση της παραγράφου 4 του άρθρου 5 του νόμου 4081/2012.
γ. Με απόφαση του Υπουργού Ναυτιλίας και Αιγαίου ρυθμίζονται θέματα που αφορούν στην κατάρτιση, υπογραφή και εκτέλεση, καθώς και κάθε άλλη αναγκαία λεπτομέρεια των σχετικών συμβάσεων.