Νόμος 3758/09 - Άρθρο 16

Άρθρο 16


Συνδεθείτε στην Υπηρεσία Νομοσκόπιο
Είσοδος στην υπηρεσία Νομοσκόπιο.
   
Χρήστης
Κωδικός
  Υπενθύμιση στοιχείων λογαριασμού
   
 
Νέοι χρήστες
Εάν είστε νέος χρήστης, θα πρέπει να δημιουργήσετε ένα ΔΩΡΕΑΝ λογαριασμό προκειμένου να φύγει το παράθυρο αυτό και να αποκτήσετε πλήρη πρόσβαση στην υπηρεσία Νομοσκόπιο.
Δημιουργία νέου λογαριασμού

 

 

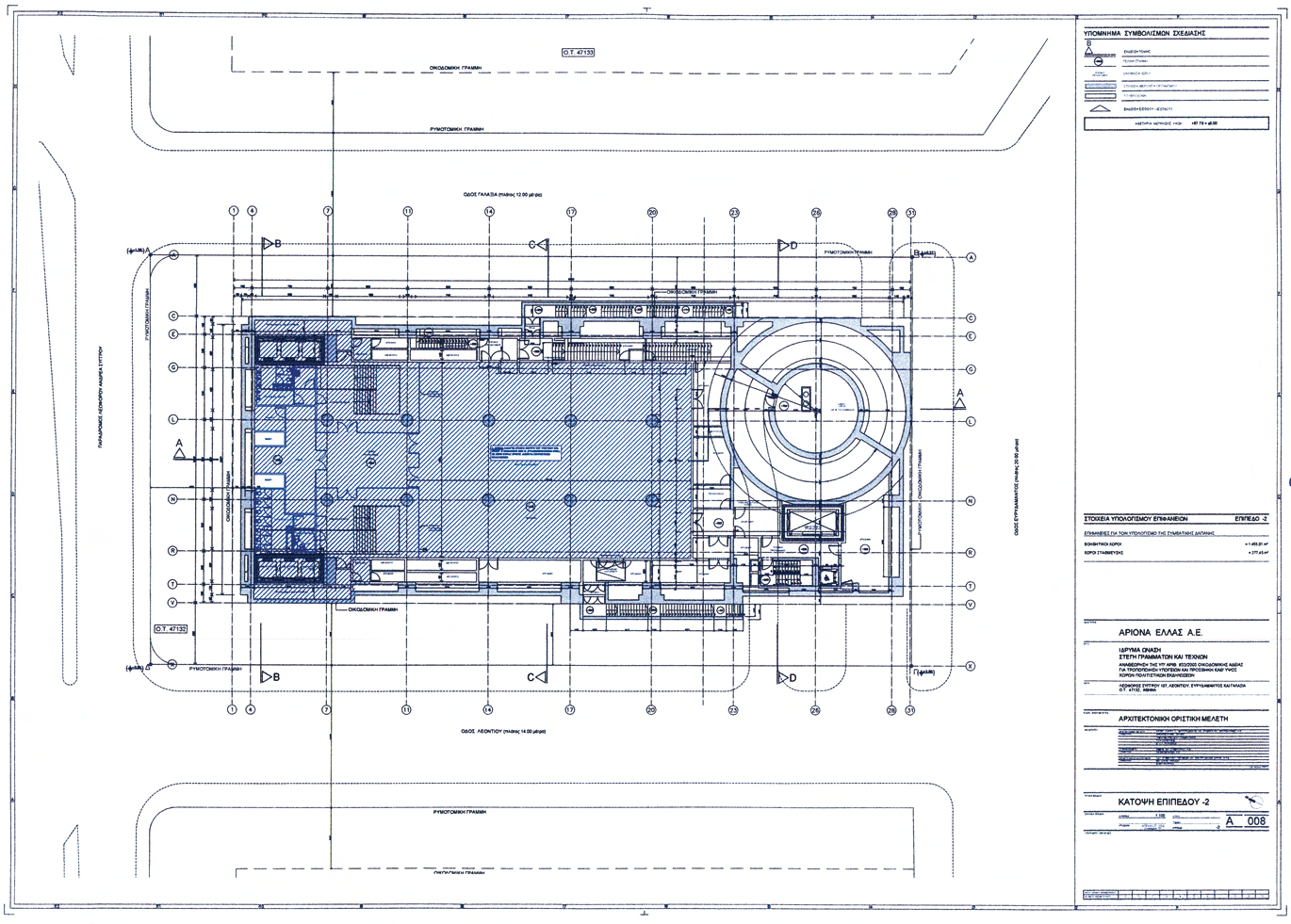
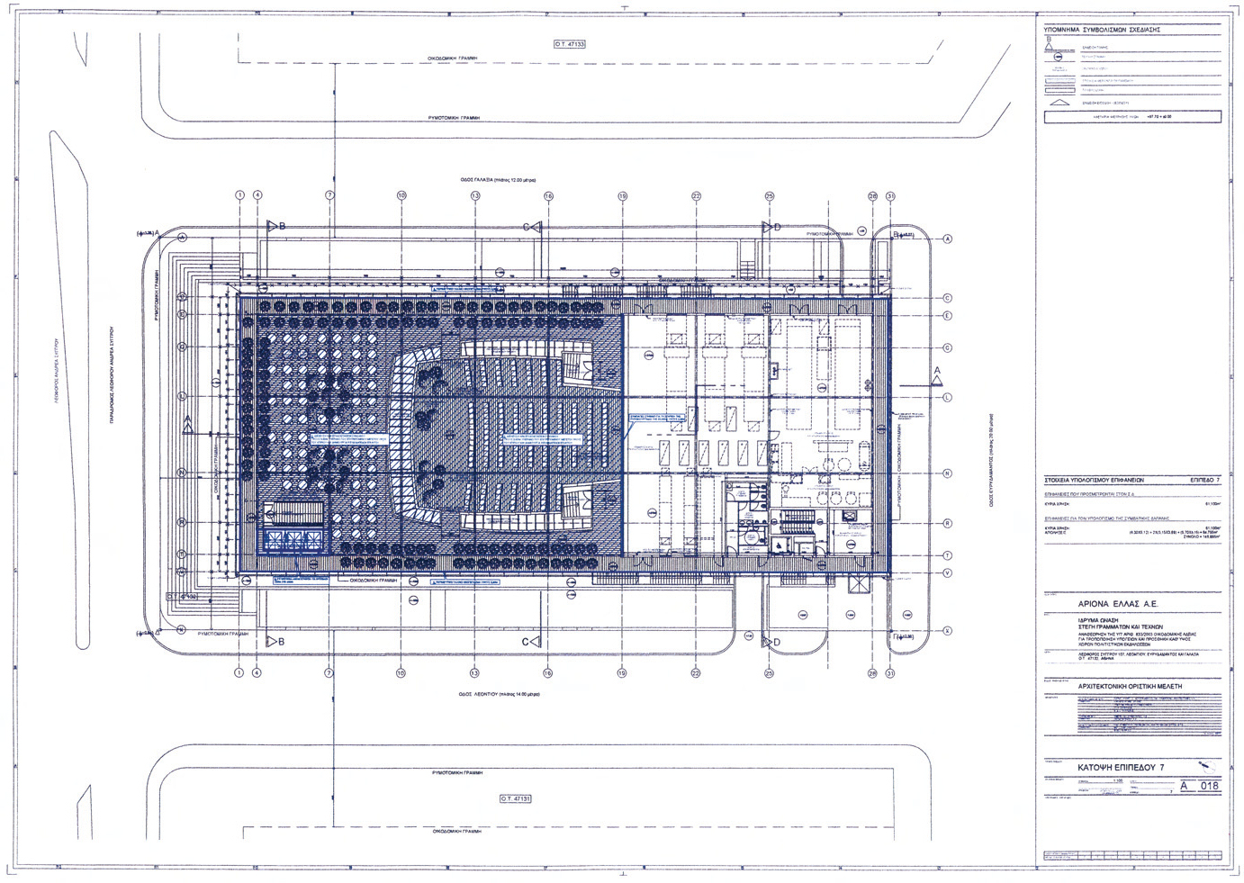
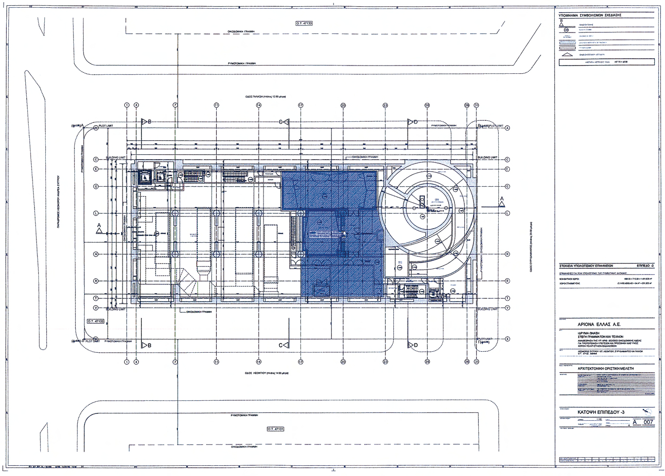
Στο κτίριο της Ωνάσειου Στέγης Γραμμάτων και Καλών Τεχνών, στο Οικοδομικό Τετράγωνο 132 περιοχή 47 του εγκεκριμένου ρυμοτομικού σχεδίου του Δήμου Αθηναίων, επιτρέπονται κατά παρέκκλιση των ισχυουσών διατάξεων τα παρακάτω:

 

1. Η λειτουργία πολιτιστικών εκδηλώσεων και υποστηρικτικών λειτουργιών αυτών στο πρώτο και δεύτερο υπόγειο του κτιρίου (εκθεσιακοί χώροι, αίθουσα διαλέξεων, χώρος επαγγελματικής ψηφιοποίησης οπτικοακουστικού υλικού κ.λ.π.).

 

2. Η επικάλυψη των μηχανολογικών δικτύων στο δώμα του κτιρίου στη στάθμη 27,60 m.

 

3. Η τοποθέτηση στο δώμα πέργκολας, υαλοπετασμάτων, συμπαγούς στηθαίου για τη στήριξη της πυροκουρτίνας της σκηνής και στάση συγκροτήματος ανελκυστήρων για Άτομα με Ειδικές Ανάγκες, μέγιστου ύψους 3,60 m από την κατά το προηγούμενο εδάφιο στάθμη δώματος.

 

4. Ο μηχανολογικός όροφος του πύργου της σκηνής του θεάτρου μπορεί να έχει ελεύθερο ύψος μεγαλύτερο των 2,20 m.

 

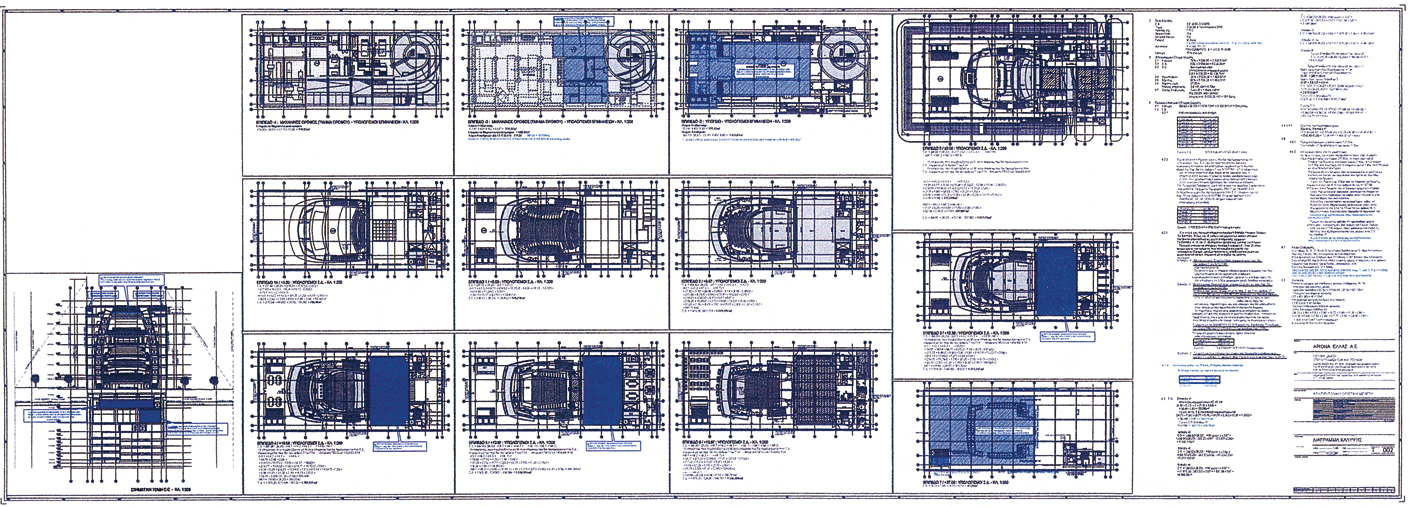
Όπως τα παραπάνω φαίνονται στα επτά (7) σχέδια κλίμακας 1:200, 1:100, που θεωρήθηκαν από τον Προϊστάμενο της Διεύθυνσης Πολεοδομίας του Υπουργείου Περιβάλλοντος, Χωροταξίας και Δημόσιων Έργων και των οποίων αντίτυπο σε φωτοσμίκρυνση δημοσιεύεται με τον παρόντα νόμο.

 

n.3758.09.1

n.3758.09.2

n.3758.09.3

n.3758.09.4

n.3758.09.5

n.3758.09.6

n.3758.09.7

 



Copyright © 2017 TechnoLogismiki. Με την επιφύλαξη παντός δικαιώματος.