| Συνδεθείτε στην Υπηρεσία Νομοσκόπιο | | | | | Νέοι χρήστες | | Εάν είστε νέος χρήστης, θα πρέπει να δημιουργήσετε ένα ΔΩΡΕΑΝ λογαριασμό προκειμένου να φύγει το παράθυρο αυτό και να αποκτήσετε πλήρη πρόσβαση στην υπηρεσία Νομοσκόπιο. | | Δημιουργία νέου λογαριασμού | | |
Απόφαση ΥΠΠΟΑ/ΓΔΑΜΤΕ/ΔΠΑΝΣΜ/386892/37827/4026/2017: Χαρακτηρισμός ως μνημείου του Δημοτικού Σταδίου Διαγόρας, επί των οδών Βενετοκλέων, Βύρωνος και Κοδριγκτώνος, στον Δήμο Ρόδου, Περιφερειακής Ενότητας Ρόδου, Περιφέρειας Νοτίου Αιγαίου, (ΦΕΚ 279/ΑΑΠ/2017), 01-12-2017.
Η Υπουργός Πολιτισμού και Αθλητισμού
Έχοντας υπόψη:
1. Τις διατάξεις:
α) Του άρθρου 90 του προεδρικού διατάγματος 63/2005 (ΦΕΚ 98/Α/2005) Κωδικοποίηση της Νομοθεσίας για την Κυβέρνηση και τα Κυβερνητικά Όργανα καθώς και ότι από την εφαρμογή των κανονιστικών αυτών διατάξεων δεν προκαλείται δαπάνη σε βάρος του Κρατικού προϋπολογισμού.
β) Του νόμου 2039/1992 (ΦΕΚ 61/Α/1992) Περί Κύρωσης της Σύμβασης για την προστασία της Αρχιτεκτονικής Κληρονομιάς της Ευρώπης.
γ) Του νόμου 3028/2002 (ΦΕΚ 153/Α/2002) Για την προστασία των Αρχαιοτήτων και εν γένει της Πολιτιστικής Κληρονομιάς ιδίως του άρθρου 6 παράγραφος 4.
δ) Του προεδρικού διατάγματος [ΠΔ] 104/2014 (ΦΕΚ 171/Α/2014) Οργανισμός Υπουργείου Πολιτισμού και Αθλητισμού, καθώς και το προεδρικό διάταγμα 191/2003 (ΦΕΚ 146/Α/2003) Οργανισμός του Υπουργείου Πολιτισμού καθ' ο μέρος αυτό διατηρείται σε ισχύ με το άρθρο 70 του προεδρικού διατάγματος [ΠΔ] 104/2014.
ε) Του άρθρου 1 του προεδρικού διατάγματος 70/2015 (ΦΕΚ 114/Α/2015) Ανασύσταση των Υπουργείων ... σχετικά με τη σύσταση Υπουργείου Πολιτισμού και Αθλητισμού.
στ) Του προεδρικού διατάγματος 73/2015 (ΦΕΚ 116/Α/2015) Διορισμός Αντιπροέδρου της Κυβέρνησης, Υπουργών, Αναπληρωτών Υπουργών και Υφυπουργών.
ζ) Την υπ' αριθμόν ΥΠΠΟΑ/ΓΔΔΥΗΔ/ΔΔΑΑΔ/ΤΔΑΔΤΠ/Α1/272598/33659/30330/23405/2015 κοινή απόφαση του Πρωθυπουργού και του Υπουργού Πολιτισμού και Αθλητισμού για το διορισμό Μετακλητού Γενικού Γραμματέα του Υπουργείου Πολιτισμού και Αθλητισμού (ΦΕΚ 706/ΥΟΔΔ/2015).
2. Την Υπουργική Απόφαση ΥΠΠΟ/ΔΟΕΠΥ/ΤΟΠΥΝΣ/14/3698/2004 Οργάνωση και λειτουργία των Συμβουλίων του νόμου 3028/2002 (ΦΕΚ 70/Β/2004).
3. Την κοινή υπουργική απόφαση ΥΠΠΟ/ΓΝΟΣ/49610/1990 (ΦΕΚ 743/Β/1990) Εξαίρεση από τον περιορισμό των τριών υπογραφών.
4. Τη συν-εισήγηση της Διεύθυνσης Προστασίας και Αναστήλωσης Νεώτερων και Σύγχρονων Μνημείων και της Διεύθυνσης Προϊστορικών και Κλασικών Αρχαιοτήτων και τα λοιπά στοιχεία του φακέλου.
5. Την ομόφωνη γνωμοδότηση του Ειδικού Οργάνου ΚΑΣ-ΚΣΝΜ, σύμφωνα με το υπ' αριθμόν 2/14-09-2017 πρακτικό, (θέμα 2ο), αποφασίζουμε:
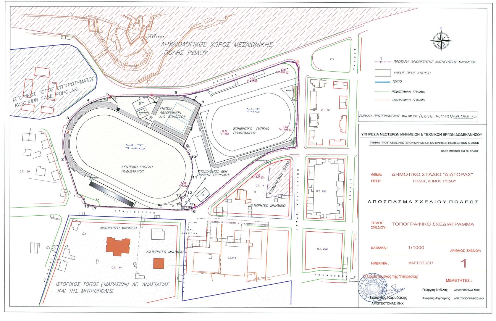
Το χαρακτηρισμό ως μνημείου σύμφωνα με τις διατάξεις του άρθρου 6 παράγραφος 1)γ του νόμου 3028/2002, του Δημοτικού Σταδίου Διαγόρας επί των οδών Βενετοκλέων, Βύρωνος και Κοδριγκτώνος στο Δήμο Ρόδου, Περιφερειακής Ενότητας Ρόδου, Περιφέρειας Νοτίου Αιγαίου, και συγκεκριμένα την πρώτη φάση του σταδίου γνωστού και ως Στάδιο του Ήλιου. Η φάση αυτή αφορά τις αθλητικές εγκαταστάσεις της δεκαετίας του 1930, δηλαδή, την εξέδρα των θεατών με τα οξύκορφα τόξα, τις 4 πύλες στην δυτική, νοτιοδυτική, νότια και βόρεια πλευρά του, χωρίς τις μεταγενέστερες επεμβάσεις και το συγκρότημα των 2 κατοικιών που ενσωματώθηκαν την ίδια περίοδο στον χώρο του σταδίου, σύμφωνα με το συνημμένο τοπογραφικό διάγραμμα με στοιχεία (1, 2, 3, 4, ..., 18, 1), καθώς και τον μαντρότοιχο ο οποίος περικλείει το σύνολο της έκτασης των αθλητικών εγκαταστάσεων, διότι αποτελεί ιδιαίτερα αξιόλογο έργο της περιόδου της Ιταλοκρατίας στα Δωδεκάνησα και πληροί τις ιδιαίτερα αυξημένες τασσόμενες από το νόμο προϋποθέσεις για τον χαρακτηρισμό του ως μνημείου.
Η απόφαση αυτή δεν αποτελεί αναγνώριση κυριότητας ή τίτλου ιδιοκτησίας.
Η απόφαση αυτή να δημοσιευθεί στην Εφημερίδα της Κυβερνήσεως.

Αθήνα, 10-11-2017
Η Υπουργός