| Συνδεθείτε στην Υπηρεσία Νομοσκόπιο | | | | | Νέοι χρήστες | | Εάν είστε νέος χρήστης, θα πρέπει να δημιουργήσετε ένα ΔΩΡΕΑΝ λογαριασμό προκειμένου να φύγει το παράθυρο αυτό και να αποκτήσετε πλήρη πρόσβαση στην υπηρεσία Νομοσκόπιο. | | Δημιουργία νέου λογαριασμού | | |
Απόφαση ΥΠΠΟΑ/ΓΔΑΜΤΕ/ΔΠΑΝΣΜ/ΤΠΔΝΣΜΤΠ/335125/30181/4239/1313/2015: Χαρακτηρισμός ως μνημείου του κτηρίου φερόμενης ιδιοκτησίας αδελφών Ιωάννου (κληρονόμων Θρασύβουλου Αλεπουδέλλη) επί της οδού Ελευθερίου Βενιζέλου 83 στην περιοχή Σουράδα της Μυτιλήνης Δήμου Λέσβου, (ΦΕΚ 252/ΑΑΠ/2015), 21-12-2015.
Ο Υπουργός Πολιτισμού και Αθλητισμού
Έχοντας υπόψη:
1. Τις διατάξεις:
α) Του άρθρου 90 του προεδρικού διατάγματος 63/2005 (ΦΕΚ 98/Α/2005) Κωδικοποίηση της Νομοθεσίας για την Κυβέρνηση και τα Κυβερνητικά Όργανα καθώς και ότι από την εφαρμογή των κανονιστικών αυτών διατάξεων δεν προκαλείται δαπάνη σε βάρος του Κρατικού Προϋπολογισμού.
β) Του νόμου 2039/1992 (ΦΕΚ 61/Α/1992) Περί Κύρωσης της Σύμβασης για την προστασία της Αρχιτεκτονικής Κληρονομιάς της Ευρώπης.
γ) Του νόμου 3028/2002 (ΦΕΚ 153/Α/2002) Για την προστασία των Αρχαιοτήτων και εν γένει της Πολιτιστικής Κληρονομιάς ιδίως του άρθρου 6 παράγραφος 4.
δ) Του προεδρικού διατάγματος [ΠΔ] 104/2014 (ΦΕΚ 171/Α/2014) περί Οργανισμού του Υπουργείου Πολιτισμού και Αθλητισμού καθώς και του προεδρικού διατάγματος 191/2003 (ΦΕΚ 146/Α/2003) περί Οργανισμού του Υπουργείου Πολιτισμού, κατά το μέρος που αυτό διατηρείται σε ισχύ με το άρθρο 70 του προεδρικού διατάγματος [ΠΔ] 104/2014.
ε) Του άρθρου 1 του προεδρικού διατάγματος 70/2015 (ΦΕΚ 114/Α/2015) Ανασύσταση των Υπουργείων ... σχετικά με τη σύσταση Υπουργείου Πολιτισμού και Αθλητισμού.
στ) Του προεδρικού διατάγματος 73/2015 (ΦΕΚ 116/Α/2015) Διορισμός Αντιπροέδρου της Κυβέρνησης, Υπουργών, Αναπληρωτών Υπουργών και Υφυπουργών.
ζ) Την υπ' αριθμόν ΥΠΠΟΑ/ΓΔΔΥΗΔ/ΔΔΑΑΔ/ΤΔΑΔΤΠ/Α1/272598/33659/30330/23405/2015 κοινή απόφαση του Πρωθυπουργού και του Υπουργού Πολιτισμού και Αθλητισμού για το διορισμό Μετακλητού Γενικού Γραμματέα του Υπουργείου Πολιτισμού και Αθλητισμού (ΦΕΚ 706/ΥΟΔΔ/2015).
η) Την υπουργική απόφαση ΥΠΠΟ/ΔΟΕΠΥ/ΤΟΠΥΝΣ/14/3698/2004 Οργάνωση και λειτουργία των Συμβουλίων του νόμου 3028/2002 (ΦΕΚ 70/Β/2004).
θ) Την κοινή υπουργική απόφαση ΥΠΠΟ/ΓΝΟΣ/49610/1990 (ΦΕΚ 743/Β/1990) Εξαίρεση από τον περιορισμό των τριών υπογραφών.
2. Την ΥΠΠΟ/ΔΟΕΠΥ/ΤΠΟΝΥΣ/14/3698/2004 υπουργική απόφαση Οργάνωση και λειτουργία των Συμβουλίων του νόμου 3028/2002 (ΦΕΚ 70/Β/2004).
3. Την από 17-06-2015 εισήγηση της Διεύθυνσης Προστασίας και Αναστήλωσης Νεώτερων και Σύγχρονων Μνημείων και τα λοιπά στοιχεία του φακέλου.
4. Την ομόφωνη γνωμοδότηση του Κεντρικού Συμβουλίου Νεωτέρων Μνημείων, σύμφωνα με το υπ' αριθμόν 16/2015 Πρακτικό, (θέμα 7ο), αποφασίζουμε:
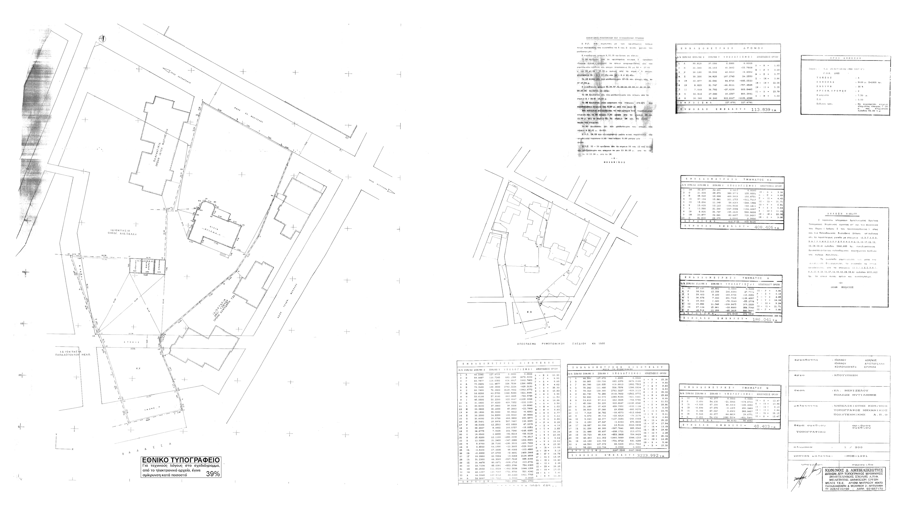
Τον χαρακτηρισμό ως μνημείου σύμφωνα με τις διατάξεις του άρθρου 6, παράγραφος 1)β' του νόμου 3028/2002, του κτηρίου μαζί με τον κήπο και την μεταλλική περίφραξη σύμφωνα με το συνημμένο τοπογραφικό, φερόμενης ιδιοκτησίας αδελφών Ιωάννου (κληρονόμων Θρασύβουλου Αλεπουδέλλη) επί της οδού Ελευθερίου Βενιζέλου 83 στην περιοχή Σουράδα της Μυτιλήνης Δήμου Λέσβου, διότι έχει ιστορική αξία, αποτελεί μαρτυρία της αρχιτεκτονικής και οικονομικής ακμής της Μυτιλήνης στις αρχές του 20ου αιώνα, όπως αυτή διαμορφώθηκε από την άρχουσα τάξη των εμπόρων και γαιοκτημόνων και διαθέτει όλα εκείνα τα αρχιτεκτονικά και μορφολογικά χαρακτηριστικά που το καθιστούν αξιόλογο δείγμα μεγαλοαστικής κατοικίας του παραλιακού προαστίου της Σουράδας στη Μυτιλήνη.
Η παρούσα δεν αποτελεί αναγνώριση ιδιοκτησίας.

Η απόφαση αυτή να δημοσιευθεί στην Εφημερίδα της Κυβερνήσεως.
Αθήνα, 30-11-2015
Ο Υπουργός