| Συνδεθείτε στην Υπηρεσία Νομοσκόπιο | | | | | Νέοι χρήστες | | Εάν είστε νέος χρήστης, θα πρέπει να δημιουργήσετε ένα ΔΩΡΕΑΝ λογαριασμό προκειμένου να φύγει το παράθυρο αυτό και να αποκτήσετε πλήρη πρόσβαση στην υπηρεσία Νομοσκόπιο. | | Δημιουργία νέου λογαριασμού | | |
Απόφαση ΥΠΕΝ/ΔΝΕΠ/9411/291/2018: Καθορισμός συμπληρωματικών ειδικών όρων και περιορισμών δόμησης και χρήσης στο διατηρητέο κτίριο επί των οδών Αδριανού 16-18 και Κόκκοτα 1, στο οικοδομικό τετράγωνο 85 του εγκεκριμένου ρυμοτομικού σχεδίου Δήμου Κηφισιάς (νομού Αττικής), (ΦΕΚ 155/ΑΑΠ/2018), 27-07-2018.
Ο Υπουργός Περιβάλλοντος και Ενέργειας
1. Τις διατάξεις του άρθρου 6 (παράγραφοι 3)α και 3)γ) του νόμου 4067/2012 Νέος Οικοδομικός Κανονισμός (ΦΕΚ 79/Α/2012), όπως ισχύει.
2. Τις διατάξεις των άρθρων 13 και 14 του νόμου 4495/2017 Έλεγχος και προστασία του δομημένου περιβάλλοντος και άλλες διατάξεις (Α' 167).
3. Τις διατάξεις του άρθρου 11 (παράγραφοι 1.3.1 και 1.3.2.) της 178581/2017 απόφασης των Υπουργών Οικονομικών και Περιβάλλοντος και Ενέργειας Έγκριση Κανονισμού Ενεργειακής Απόδοσης Κτιρίων (ΚΕΝΑΚ) (ΦΕΚ 2367/Β/2017).
4. Τις διατάξεις του άρθρου 1 του νόμου 960/1979 (ΦΕΚ 194/Α/1979), όπως αντικαταστάθηκε με το άρθρο 1 του νόμου 1221/1981 (ΦΕΚ 292/Α/1981).
5. Τις διατάξεις του άρθρου 90 του Κώδικα Νομοθεσίας για την Κυβέρνηση και τα κυβερνητικά όργανα, που κυρώθηκε με το άρθρο πρώτο του προεδρικού διατάγματος 63/2005 (ΦΕΚ 98/Α/2005).
6. Το 260/14-06-2017 έγγραφο του Συμβουλίου Αρχιτεκτονικής Περιφερειακής Ενότητας Βόρειου Τομέα.
7. Την από 22-12-2017 αιτιολογική έκθεση της Διεύθυνσης Αρχιτεκτονικής, Οικοδομικών Κανονισμών και Αδειοδοτήσεων του Υπουργείου Περιβάλλοντος και Ενέργειας και το 34128/3242/22-12-2017 έγγραφο της ίδιας υπηρεσίας προς τον Δήμο Κηφισιάς.
8. Την 2998/19-01-2018 δήλωση των ενδιαφερομένων για την αποδοχή της από 22-12-2017 αιτιολογικής έκθεσης.
9. Το 180263/116084/9845/2534/23-05-2017 έγγραφο της Εφορείας Αρχαιοτήτων Αθηνών του Υπουργείου Πολιτισμού και Αθλητισμού.
10. Το 199366/18760/3127/26-06-2017 έγγραφο της Υπηρεσίας Νεωτέρων Μνημείων και Τεχνικών Έργων Αττικής, Ανατολικής Στερεάς Ελλάδας και Κυκλάδων του Υπουργείου Πολιτισμού και Αθλητισμού.
11. Την 355/2017 γνωμοδότηση του δημοτικού συμβουλίου Κηφισιάς (ΑΔΑ: Ω0ΒΚΩΕΜ-ΣΤΥ).
12. Την 35/συνεδρία 2/31-01-2018 γνωμοδότηση του Κεντρικού Συμβουλίου Αρχιτεκτονικής (ΚΕΣΑ).
13. Το γεγονός ότι από τις κανονιστικές διατάξεις της παρούσας απόφασης δεν προκαλείται δαπάνη σε βάρος του κρατικού προϋπολογισμού και του προϋπολογισμού του οικείου οργανισμού τοπικής αυτοδιοίκησης, αποφασίζουμε:
1. Στο κτίριο που βρίσκεται επί των οδών Αδριανού αριθμός 16-18 και Κόκκοτα αριθμός 1, στο οικοδομικό τετράγωνο 85 του εγκεκριμένου ρυμοτομικού σχεδίου δήμου Κηφισιάς (νομού Αττικής), το οποίο έχει χαρακτηριστεί ως διατηρητέο με την υπ' αριθμόν 9611/1382/1992 απόφαση του Υπουργού Περιβάλλοντος, Χωροταξίας και Δημοσίων Έργων (ΦΕΚ 252/Δ/1992) και έχουν καθορισθεί ειδικοί όροι και περιορισμοί δόμησης με την 11751/2005 όμοια απόφαση (ΦΕΚ 397/Δ/2005), επιτρέπονται:
α) η αποκατάσταση των αρχιτεκτονικών και μορφολογικών στοιχείων των όψεων του διατηρητέου,
β) οι εσωτερικές διαρρυθμίσεις για την επιτρεπόμενη χρήση Πολιτιστικό Κέντρο,
γ) οι διαμορφώσεις στον περιβάλλοντα χώρο.
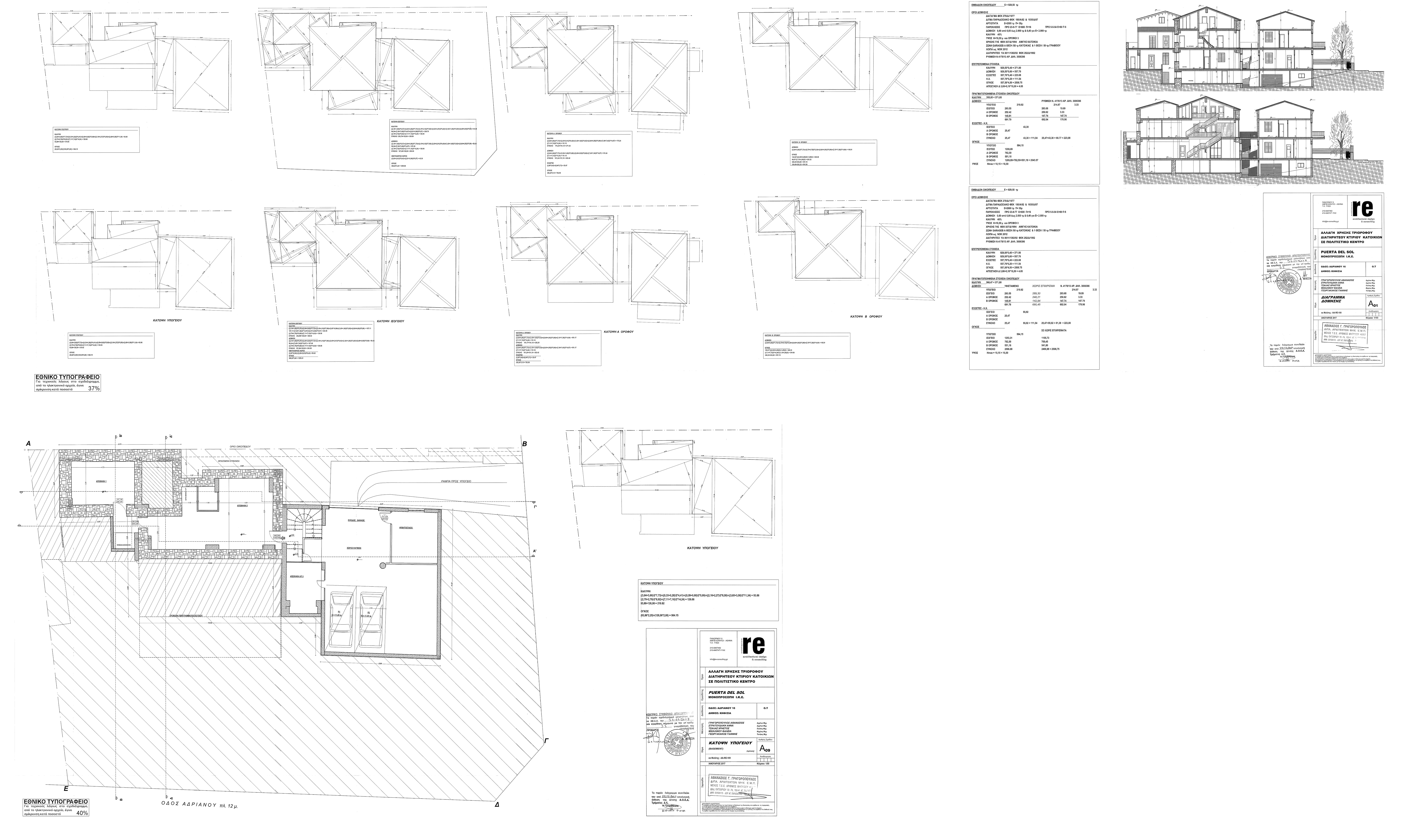
Όλες οι παραπάνω εργασίες πραγματοποιήθηκαν χωρίς υπέρβαση των ισχυουσών στην περιοχή πολεοδομικών διατάξεων, όπως περιγράφονται στην τεχνική αιτιολογική έκθεση και φαίνονται στα 19 σχετικά πρωτότυπα διαγράμματα της αρχιτεκτονικής μελέτης (διάγραμμα δόμησης σε κλίμακα 1: 100, 5 σχέδια κατόψεων και 13 σχέδια τομών και όψεων σε κλίμακα 1:50) που εγκρίθηκαν από το Κεντρικό Συμβούλιο Αρχιτεκτονικής, με την 35/2018 γνωμοδότηση, θεωρήθηκαν από τον Προϊστάμενο της Διεύθυνσης Τοπογραφικών Εφαρμογών και που αντίτυπά τους σε φωτοσμίκρυνση συνδημοσιεύονται με την παρούσα απόφαση.
2. Επιτρέπεται η μη εφαρμογή των διατάξεων του ΚΕΝΑΚ.
3. Το κτίριο απαλλάσσεται της υποχρέωσης εξασφάλισης θέσεων στάθμευσης.
4. Στο διατηρητέο κτίριο, επιπλέον των επιτρεπομένων στην περιοχή χρήσεων, επιτρέπεται η χρήση Πολιτιστικό Κέντρο.
5. Οι απαιτούμενες εκσκαφικές εργασίες διενεργούνται με την εποπτεία της Εφορείας Αρχαιοτήτων Αθηνών του Υπουργείου Πολιτισμού και Αθλητισμού ύστερα από έγκαιρη και έγγραφη ειδοποίησή της.
6. Κατά τα λοιπά εξακολουθούν να ισχύουν οι διατάξεις της υπ' αριθμόν 9611/1382/1992 απόφασης του Υπουργού Περιβάλλοντος, Χωροταξίας και Δημοσίων Έργων (ΦΕΚ 252/Δ/1992) και της 11751/2005 όμοιας απόφασης (ΦΕΚ 397/Δ/2005).
7. Η ισχύς της παρούσας απόφασης αρχίζει από τη δημοσίευσή της στην Εφημερίδα της Κυβερνήσεως Η απόφαση αυτή να δημοσιευθεί στην Εφημερίδα της Κυβερνήσεως.

Αθήνα, 18-06-2018
Ο Υπουργός