| Συνδεθείτε στην Υπηρεσία Νομοσκόπιο | | | | | Νέοι χρήστες | | Εάν είστε νέος χρήστης, θα πρέπει να δημιουργήσετε ένα ΔΩΡΕΑΝ λογαριασμό προκειμένου να φύγει το παράθυρο αυτό και να αποκτήσετε πλήρη πρόσβαση στην υπηρεσία Νομοσκόπιο. | | Δημιουργία νέου λογαριασμού | | |
Απόφαση ΥΠΕΝ/ΔΝΕΠ/27254/1740/2018: Καθορισμός συμπληρωματικών ειδικών όρων και περιορισμών δόμησης στο διατηρητέο κτίριο που βρίσκεται επί των οδών Αθηνάς 38 και Ευριπίδου 27 του εγκεκριμένου ρυμοτομικού σχεδίου του Δήμου Αθηναίων Περιφερειακής Ενότητας Κεντρικού Τομέα Αθηνών (νομού Αττικής), (ΦΕΚ 117/ΑΑΠ/2018), 05-06-2018.
Ο Υπουργός Περιβάλλοντος και Ενέργειας Έχοντας υπόψη:
1. Τις διατάξεις του άρθρου 6 (παράγραφοι 3)α και 3)γ) του νόμου 4067/2012 Νέος Οικοδομικός Κανονισμός (ΦΕΚ 79/Α/2012) και όπως η παράγραφος 3)α τροποποιήθηκε με το άρθρο 48 παράγραφος 2 του νόμου 4178/2013 (ΦΕΚ 174/Α/2013) και ισχύουν.
2. Τις διατάξεις των άρθρων 26 και 27 του νόμου 4030/2011 Νέος τρόπος έκδοσης αδειών δόμησης, ελέγχου κατασκευών και λοιπών διατάξεων (ΦΕΚ 249/Α/2011), όπως τροποποιήθηκαν με το άρθρο 49 (παράγραφοι 6 και 7) του νόμου 4178/2013 Αντιμετώπιση της Αυθαίρετης Δόμησης - Περιβαλλοντικό ισοζύγιο και άλλες διατάξεις (ΦΕΚ 174/Α/2013) και όπως το άρθρο 27 αντικαταστάθηκε με το άρθρο 21 (παράγραφος 4) του νόμου 4258/2014 Διαδικασία Οριοθέτησης και ρυθμίσεις θεμάτων για τα υδατορέματα - ρυθμίσεις Πολεοδομικής νομοθεσίας και άλλες διατάξεις (ΦΕΚ 94/Α/2014) και ισχύουν.
3. Τις διατάξεις του άρθρου 90 του Κώδικα Νομοθεσίας για την Κυβέρνηση και τα κυβερνητικά όργανα, που κυρώθηκε με το άρθρο πρώτο του προεδρικού διατάγματος 63/2005 (ΦΕΚ 98/Α/2005).
4. Το υπ' αριθμόν ΥΠΠΟΑ/ΓΔΑΜΤΕ/ΔΠΑΝΣΜ/175088/16394/2071/16-05-2017 έγγραφο της Διεύθυνσης Προστασίας και Αναστήλωσης Νεώτερων και Σύγχρονων Μνημείων του Υπουργείου Πολιτισμού και Αθλητισμού.
5. Το υπ' αριθμόν 22/6/04-10-2016 απόσπασμα πρακτικού του Συμβουλίου Αρχιτεκτονικής Περιφερειακής Ενότητας Κεντρικού Τομέα Αθηνών.
6. Την από 12-04-2017 αιτιολογική έκθεση της Διεύθυνσης Αρχιτεκτονικής Οικοδομικών Κανονισμών και Αδειοδοτήσεων - Τμήμα Διατηρητέων Κτιρίων του Υπουργείου Περιβάλλοντος και Ενέργειας.
7. Την από 09-05-2017 (αριθμός ΥΠΕΝ 22650/09-05-2017) αίτηση της εξουσιοδοτημένης Ελένης Μπαρμπαλιά με την οποία υποβλήθηκαν οι από 25-04-2017 δηλώσεις αποδοχής των φερόμενων ιδιοκτητών.
8. Το υπ' αριθμόν 129387/08-05-2017 έγγραφο του Δήμου Αθηναίων.
9. Την υπ' αριθμόν 49/συνεδρίαση 5η/08-06-2017 γνωμοδότηση του Κεντρικού Συμβουλίου Αρχιτεκτονικής.
10. Το γεγονός ότι από τις κανονιστικές διατάξεις της παρούσας απόφασης δεν προκαλείται δαπάνη σε βάρος του κρατικού προϋπολογισμού και του προϋπολογισμού του οικείου οργανισμού τοπικής αυτοδιοίκησης, αποφασίζουμε:
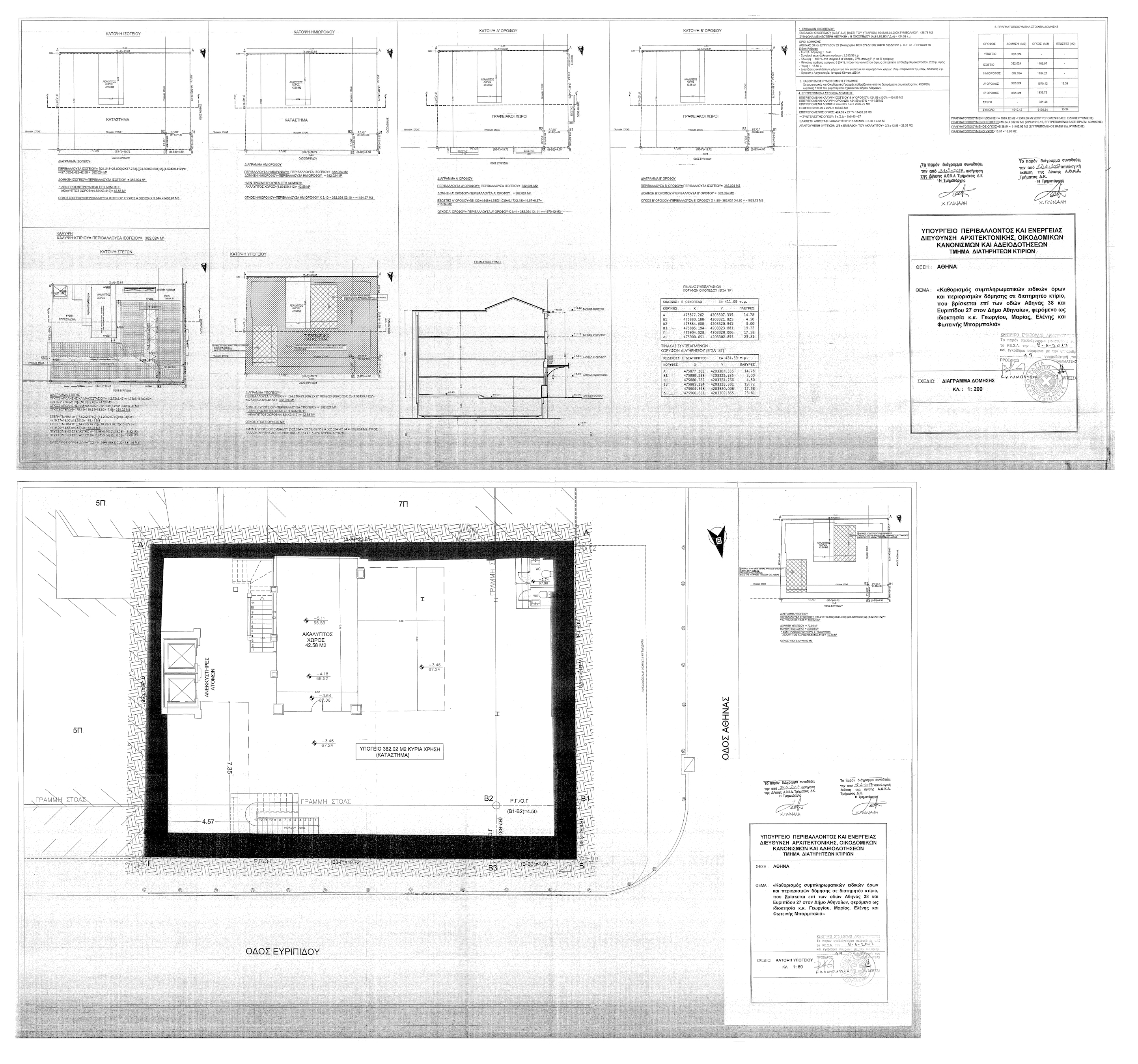
Α. Στο κτίριο που βρίσκεται επί των οδών Αθηνάς 38 και Ευριπίδου 27 (οικοδομικό τετράγωνο 43/66) του εγκεκριμένου ρυμοτομικού σχεδίου του Δήμου Αθηναίων της Περιφερειακής Ενότητας Κεντρικού Τομέα Αθηνών (νομού Αττικής), φερόμενο ιδιοκτησίας Γεωργίου, Μαρίας, Ελένης και Φωτεινής Μπαρμπαλιά, το οποίο έχει χαρακτηρισθεί ως διατηρητέο με το από 30-05-1985 προεδρικό διάταγμα ((ΦΕΚ 349/Δ/1985) διόρθωση σφάλματος (ΦΕΚ 440/Δ/1985)), επιτρέπεται η μετατροπή τμήματος του υπογείου επιφάνειας 309,08 m2 από χώρο βοηθητικής χρήσης σε χώρο κύριας χρήσης (τραπεζικό κατάστημα), σύμφωνα με τις ισχύουσες πολεοδομικές διατάξεις, όπως φαίνεται στα 2 σχετικά πρωτότυπα διαγράμματα (διάγραμμα κάλυψης σε κλίμακα 1:200, κάτοψη υπογείου σε κλίμακα 1:50), που θεωρήθηκαν από τον Προϊστάμενο της Διεύθυνσης Τοπογραφικών Εφαρμογών και που αντίτυπά τους σε φωτοσμίκρυνση συνδημοσιεύονται με την παρούσα απόφαση.
Β. Κατά τα λοιπά εξακολουθούν να ισχύουν οι διατάξεις του από 30-05-1985 π.δ/τος χαρακτηρισμού του κτιρίου ως διατηρητέου.
Γ. Η ισχύς της παρούσας απόφασης αρχίζει από τη δημοσίευσή της στην Εφημερίδα της Κυβερνήσεως.
Η απόφαση αυτή να δημοσιευθεί στην Εφημερίδα της Κυβερνήσεως.

Αθήνα, 23-04-2018
Ο Υπουργός