| Συνδεθείτε στην Υπηρεσία Νομοσκόπιο | | | | | Νέοι χρήστες | | Εάν είστε νέος χρήστης, θα πρέπει να δημιουργήσετε ένα ΔΩΡΕΑΝ λογαριασμό προκειμένου να φύγει το παράθυρο αυτό και να αποκτήσετε πλήρη πρόσβαση στην υπηρεσία Νομοσκόπιο. | | Δημιουργία νέου λογαριασμού | | |
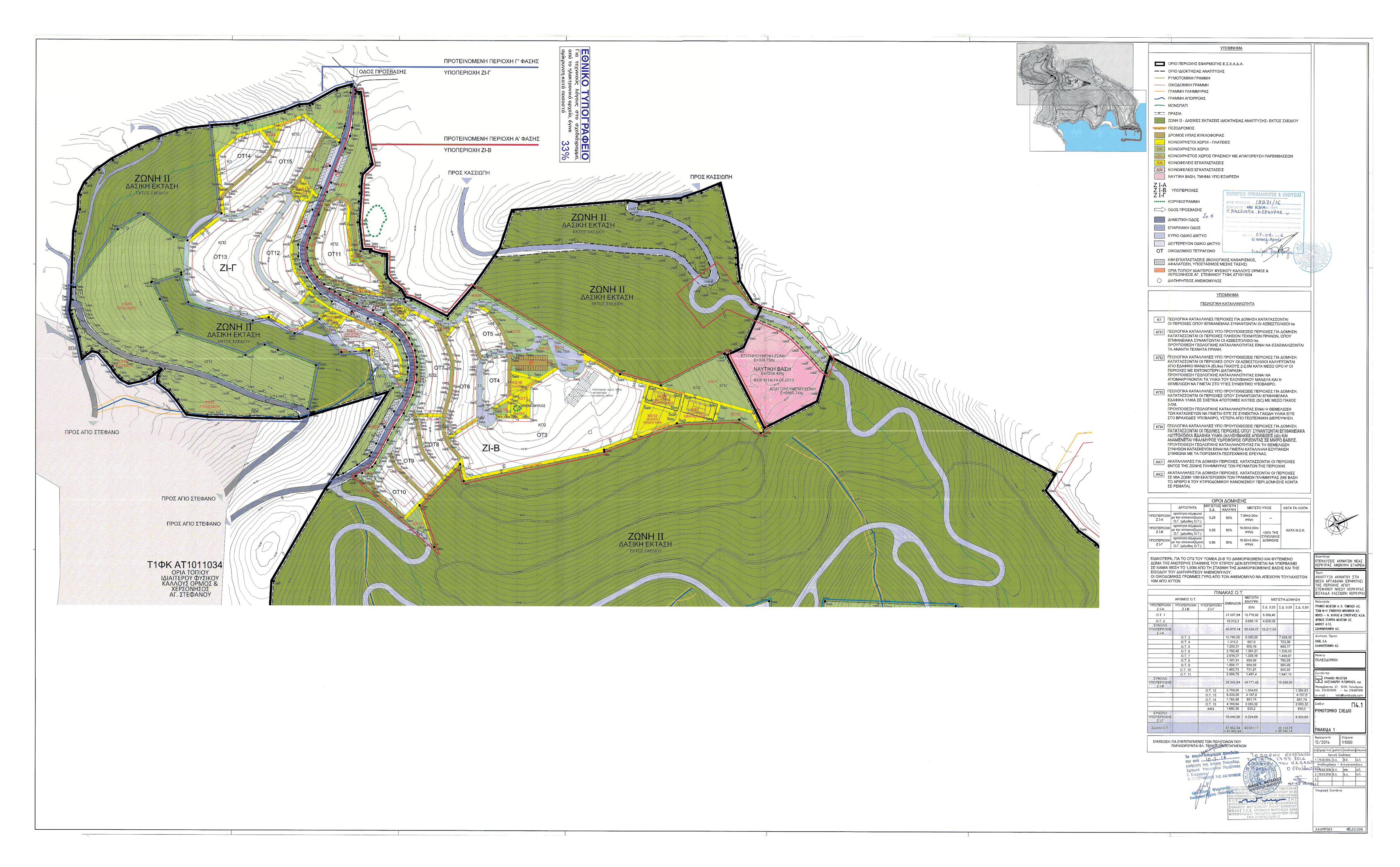
1. Εγκρίνεται το πολεοδομικό σχέδιο του παραθεριστικού - τουριστικού χωριού με την ονομασία Κασσιώπη Κέρκυρας, στο ακίνητο που περιβάλλεται με μαύρη συνεχή γραμμή όπως αυτό εμφαίνεται στο τοπογραφικό διάγραμμα Α1 κλίμακας 1:2000 που συνοδεύει την παρούσα, επιφανείας 175.725,68 m2 πολεοδομούμενης έκτασης, στη θέση Ερημίτης Δήμου Κερκυραίων της νήσου και Περιφερειακής Ενότητας Κέρκυρας της Περιφέρειας Ιονίων Νήσων, με τον καθορισμό οικοδομικών και ρυμοτομικών γραμμών, προκηπίων, οδών, οδών ήπιας κυκλοφορίας, πεζοδρόμων, χώρων στάθμευσης, πλατειών, κοινόχρηστων χώρων, χώρων κοινοχρήστου πρασίνου, αθλητικών εγκαταστάσεων και χώρων εγκατάστασης μονάδας επεξεργασίας λυμάτων, σταθμού αφαλάτωσης και λοιπών έργων υποδομής, όπως οι ρυθμίσεις αυτές φαίνονται στα δύο σχετικά χρωματισμένα πρωτότυπα διαγράμματα κλίμακας 1:1.000 που θεωρήθηκαν από τον Προϊστάμενο της Διεύθυνσης Τοπογραφικών Εφαρμογών του Υπουργείου Περιβάλλοντος και Ενέργειας με την υπ' αριθμόν 18271/2016 πράξη του και του οποίου αντίτυπο σε φωτοσμίκρυνση δημοσιεύεται με την παρούσα απόφαση.


2. Εγκρίνεται ο πολεοδομικός κανονισμός του ανωτέρω παραθεριστικού - τουριστικού χωριού, ως ακολούθως:
α. Στους οικοδομήσιμους χώρους της πιο πάνω περιοχής επιτρέπονται οι χρήσεις παραθεριστικής κατοικίας.
Στο οικοδομικό τετράγωνο 3 επιτρέπεται η χρήση ξενοδοχείου, η επιφάνεια του οποίου δεν μπορεί να υπερβαίνει τα 7.029,00 m2, καθώς και οι υπόλοιπες χρήσεις της περιπτώσεως 4Α της παραγράφου Β του άρθρου 11 του νόμου 3986/2011, πλην των εγκαταστάσεων γκολφ. Επιτρέπεται, επίσης, υπό τους όρους των άρθρων 10 και 40 παράγραφος 1 του νόμου 3028/2002, η επισκευή και αποκατάσταση του διατηρητέου ανεμόμυλου, με σκοπό την ανάδειξη του μνημειακού χαρακτήρα του.
β. Η αρτιότητα των οικοπέδων ορίζεται ανά οικοδομικό τετράγωνο όπως αυτά απεικονίζονται στα διαγράμματα της προηγούμενης παραγράφου. Στο πρόσωπο των οικοπέδων επιβάλλεται προκήπιο μεταβλητού πλάτους όπως φαίνεται στα διαγράμματα της προηγούμενης παραγράφου.
γ. Οι λοιποί όροι και περιορισμοί δόμησης των οικοπέδων ορίζονται κατά τομείς ως εξής:
γ)α. Τομέας ΖΙ-Α:
| • | Μέγιστος επιτρεπόμενος συντελεστής δόμησης ανά οικοδομικό τετράγωνο: 0.25 |
| • | Μέγιστη επιτρεπόμενη κάλυψη ανά οικοδομικό τετράγωνο: 50% |
| • | Μέγιστο επιτρεπόμενο ύψος κτιρίων: 7.5 m + 2 m στέγη. |
γ)β. Τομέας ΖΙ-Β:
| • | Μέγιστος επιτρεπόμενος συντελεστής δόμησης ανά οικοδομικό τετράγωνο: 0.55 |
| • | Μέγιστη επιτρεπόμενη κάλυψη ανά οικοδομικό τετράγωνο: 50% |
| • | Μέγιστο επιτρεπόμενο ύψος κτιρίων: 10.5 m + 2 m στέγη. |
| • | Ειδικά για το χώρο του ξενοδοχείου στο οικοδομικό τετράγωνο 3 το διαμορφωμένο και φυτεμένο δώμα της ανώτερης στάθμης του κτιρίου δεν επιτρέπεται να υπερβαίνει σε καμία θέση το 1.5 m από τη στάθμη της διαμορφωμένης βάσης και της εισόδου του διατηρητέου ανεμόμυλου. |
γ)γ. Τομέας ΖΙ-Γ:
| • | Μέγιστος επιτρεπόμενος συντελεστής δόμησης ανά οικοδομικό τετράγωνο: 0.5. |
| • | Μέγιστη επιτρεπόμενη κάλυψη ανά οικοδομικό τετράγωνο: 50% |
| • | Μέγιστο επιτρεπόμενο ύψος κτιρίων: 10.5 m + 2 m στέγη. |
3. Ειδικές διατάξεις:
α. Η περιοχή διακρίνεται στις παρακάτω ζώνες γεωλογικής καταλληλότητας όπως αυτές εμφαίνονται στα συνημμένα στο παρόν διαγράμματα:
α)α. Περιοχές Ακατάλληλες για Δόμηση: Πρόκειται για τις περιοχές με στοιχεία ΑΚ1 και ΑΚ2 εντός των ζωνών πλημμύρας και μέσα σε ζώνη 10 m στα ανάντη και εκατέρωθεν των γραμμών πλημμύρας. Στις περιοχές αυτές απαγορεύεται η δόμηση.
α)β. Περιοχές Κατάλληλες για Δόμηση: Πρόκειται για τις περιοχές με στοιχεία Κ1 στις οποίες επιτρέπεται η δόμηση.
α)γ. Περιοχές Κατάλληλες για Δόμηση υπό προϋποθέσεις: Πρόκειται για τις περιοχές με στοιχεία ΚΠ1, ΚΠ2, ΚΠ3 και ΚΠ4, με ειδικά χαρακτηριστικά όπως αυτά αναλυτικά αναφέρονται στη μελέτη και στο υπόμνημα του συνημμένου διαγράμματος, στις οποίες επιτρέπεται η δόμηση με τις εξής προϋποθέσεις:
| • | ΚΠ1: Να εξασφαλίζονται τα ανάντη και κατάντη τεχνικά πρανή. |
| • | ΚΠ2: Να απομακρύνονται τα υλικά του ελουβιακού μανδύα και η θεμελίωση να γίνεται στο υγιές συνεκτικό υπόβαθρο. |
| • | ΚΠ3: Η θεμελίωση των κατασκευών να γίνεται είτε σε συνεκτικά γαιώδη υλικά είτε στο βραχώδες υπόβαθρο, ύστερα από γεωτεχνική διερεύνηση. |
| • | ΚΠ4: Για τη θεμελίωση συνήθων κατασκευών να γίνεται κατάλληλη εξυγίανση του εδάφους σύμφωνα με τα πορίσματα γεωτεχνικής έρευνας. |
β. Στους χώρους που χαρακτηρίζονται ως ΚΧ - Πράσινο δεν επιτρέπονται οι παρεμβάσεις και κατασκευές του άρθρου 20 του Νέου Οικοδομικού Κανονισμού πλην των απολύτως αναγκαίων οδών, δικτύων υποδομής και συνοδών τους έργων με σκοπό τη διατήρηση της φυσικής τους μορφής. Κατ' εξαίρεση επιτρέπονται μη προσωρινές κατασκευές όπως ξύλινα παγκάκια και περίπτερα για την απόλαυση του πρασίνου. Ειδικά στον χώρο πρασίνου που περιβάλει τη Βρωμολίμνη απαγορεύεται κάθε είδους παρέμβαση στο φυσικό περιβάλλον πλην της διάνοιξης του δρόμου προσπέλασης της λιμενικής εγκατάστασης και των απολύτως αναγκαίων τεχνικών του έργων.
γ. Απαγορεύεται η επίστρωση ή πλακόστρωση του παραλιακού πεζοδρόμου ο οποίος παραμένει σε φυσική μορφή.
δ. Οι οικοδομικές άδειες εκδίδονται για το σύνολο εκάστου οικοδομικού τετραγώνου.
ε. Για τη διαμόρφωση του περιβάλλοντα χώρου του ανεμόμυλου και του τρόπου ένταξής του στο προτεινόμενο ξενοδοχειακό συγκρότημα υποβάλλεται αρχιτεκτονική μελέτη που εγκρίνεται από το Υπουργείο Πολιτισμού και Αθλητισμού. Όλες οι εργασίες γίνονται υπό την άμεση εποπτεία της αρμόδιας Εφορείας Αρχαιοτήτων την οποία οφείλει ο ανάδοχος να ειδοποιήσει ένα μήνα πριν την έναρξη των εργασιών. Η παρακολούθηση των εκσκαφικών εργασιών θα γίνει από προσωπικό που θα προσλάβει ο κύριος του έργου μετά από υπόδειξη της αρμόδιας για την περιοχή Εφορείας Αρχαιοτήτων, προκειμένου να εποπτεύσει το έργο καθ' όλη την διάρκεια υλοποίησής του. Σε περίπτωση εντοπισμού αρχαιοτήτων σε οποιοδήποτε στάδιο του έργου, οι εργασίες θα διακοπούν για να διεξαχθεί σωστική ανασκαφική έρευνα από τα αποτελέσματα της οποίας θα εξαρτηθεί η συνέχισή τους.
στ. Για την έκδοση οικοδομικών αδειών απαιτείται η προηγούμενη παραχώρηση στον οικείο Δήμο των κοινόχρηστων και κοινωφελών εκτάσεων, πλην του ΚΦ3 - βιολογικός καθαρισμός, όπως αυτές εμφαίνονται στο διάγραμμα Π1 κλίμακας 1:2000 που συνοδεύει την παρούσα και θεωρήθηκε στις 10-03-2016 από τον Προϊστάμενο της Διεύθυνσης Πολεοδομικού Σχεδιασμού και Τράπεζας Γης του Υπουργείου Περιβάλλοντος και Ενέργειας.
