| Συνδεθείτε στην Υπηρεσία Νομοσκόπιο | | | | | Νέοι χρήστες | | Εάν είστε νέος χρήστης, θα πρέπει να δημιουργήσετε ένα ΔΩΡΕΑΝ λογαριασμό προκειμένου να φύγει το παράθυρο αυτό και να αποκτήσετε πλήρη πρόσβαση στην υπηρεσία Νομοσκόπιο. | | Δημιουργία νέου λογαριασμού | | |
Απόφαση ΔΠΧΣ/2250/2017: Τροποποίηση του εγκεκριμένου ρυμοτομικού σχεδίου Ξηροποτάμου στο οικοδομικό τετράγωνο 119, (ΦΕΚ 146/ΑΑΠ/2017), 29-06-2017.
Ο Περιφερειάρχης Ανατολικής Μακεδονίας - Θράκης
Έχοντας υπόψη:
1. Τις διατάξεις των άρθρων 3 και 186 του νόμου 3852/2010 (ΦΕΚ 87/Α/2010) Νέα Αρχιτεκτονική της Αυτοδιοίκησης και Αποκεντρωμένης Διοίκησης - Πρόγραμμα Καλλικράτης όπως τροποποιήθηκαν και συμπληρώθηκαν μεταγενέστερα.
2. Το προεδρικό διάταγμα 144/2010 (ΦΕΚ 237/Α/2010) Οργανισμός της Περιφέρειας Ανατολικής Μακεδονίας και Θράκης.
3. Τη με αριθμό οίκοθεν ΔΔ/1327/2016 (ΦΕΚ 1026/Β/2016) απόφαση Περιφερειάρχη Ανατολικής Μακεδονίας και Θράκης περί εξουσιοδότησης υπογραφής εγγράφων, αποφάσεων και άλλων πράξεων Με Εντολή Περιφερειάρχη στους Προϊστάμενους Γενικών Διευθύνσεων, Διευθύνσεων, Τμημάτων και Γραφείων της Περιφέρειας Ανατολικής Μακεδονίας - Θράκης.
4. Τις διατάξεις του από 17-07-1923 νομοθετικού διατάγματος (ΦΕΚ 228/Α/1923) Περί σχεδίων πόλεων, κωμών και συνοικισμών του Κράτους και οικοδομής αυτών όπως τροποποιήθηκαν και συμπληρώθηκαν μεταγενέστερα.
5. Τις διατάξεις του νόμου 1337/1983 (ΦΕΚ 33/Α/1983) όπως τροποποιήθηκαν και συμπληρώθηκαν μεταγενέστερα.
6. Το άρθρο 10 του νόμου 3044/2002 Μεταφορά Συντελεστή Δόμησης και ρυθμίσεις άλλων θεμάτων αρμοδιότητας Υπουργείου Περιβάλλοντος, Χωροταξίας και Δημοσίων Έργων (ΦΕΚ 197/Α/2002).
7. Τα άρθρα 6, 31 και 32 του νόμου 4067/2012 Νέος Οικοδομικός Κανονισμός (ΦΕΚ 79/Α/2012) όπως τροποποιήθηκαν και συμπληρώθηκαν μεταγενέστερα.
8. Τα άρθρα 3 και 6 του νόμου 4315/2014 Πράξεις εισφοράς σε γη και σε χρήμα-Ρυμοτομικές απαλλοτριώσεις και άλλες διατάξεις (ΦΕΚ 269/Α/2014).
9. Την εγκύκλιο 43511/161/55/1988 (εγκύκλιος 55/1988) Οδηγίες και προδιαγραφές για τροποποιήσεις, επεκτάσεις, ρυμοτομικών σχεδίων.
10. Την εγκύκλιο 18894/6/2006 (εγκύκλιος 6/2006) του Υπουργείου Περιβάλλοντος, Χωροταξίας και Δημοσίων Έργων Άσκηση αρμοδιοτήτων πολεοδομικού σχεδιασμού.
11. Την εγκύκλιο 29829/2012 (εγκύκλιος 10/2012) του Υπουργείου Περιβάλλοντος, Ενέργειας και Κλιματικής Αλλαγής Αρμοδιότητες γνωμοδότησης Συμβουλίων Πολεοδομικών Θεμάτων και Αμφισβητήσεων Περιφερειακών Ενοτήτων / Περιφερειών για θέματα πολεοδομικού σχεδιασμού.
12. Την υπ' αριθμόν 3239/30-09-2015 απόφαση Γενικού Γραμματέα Αποκεντρωμένης Διοίκησης Μακεδονίας - Θράκης Συγκρότηση του Συμβουλίου Πολεοδομικών Θεμάτων και Αμφισβητήσεων της Περιφερειακής Ενότητας Δράμας (ΑΔΑ: Ω0Κ0ΟΡ1Υ-ΡΤΔ).
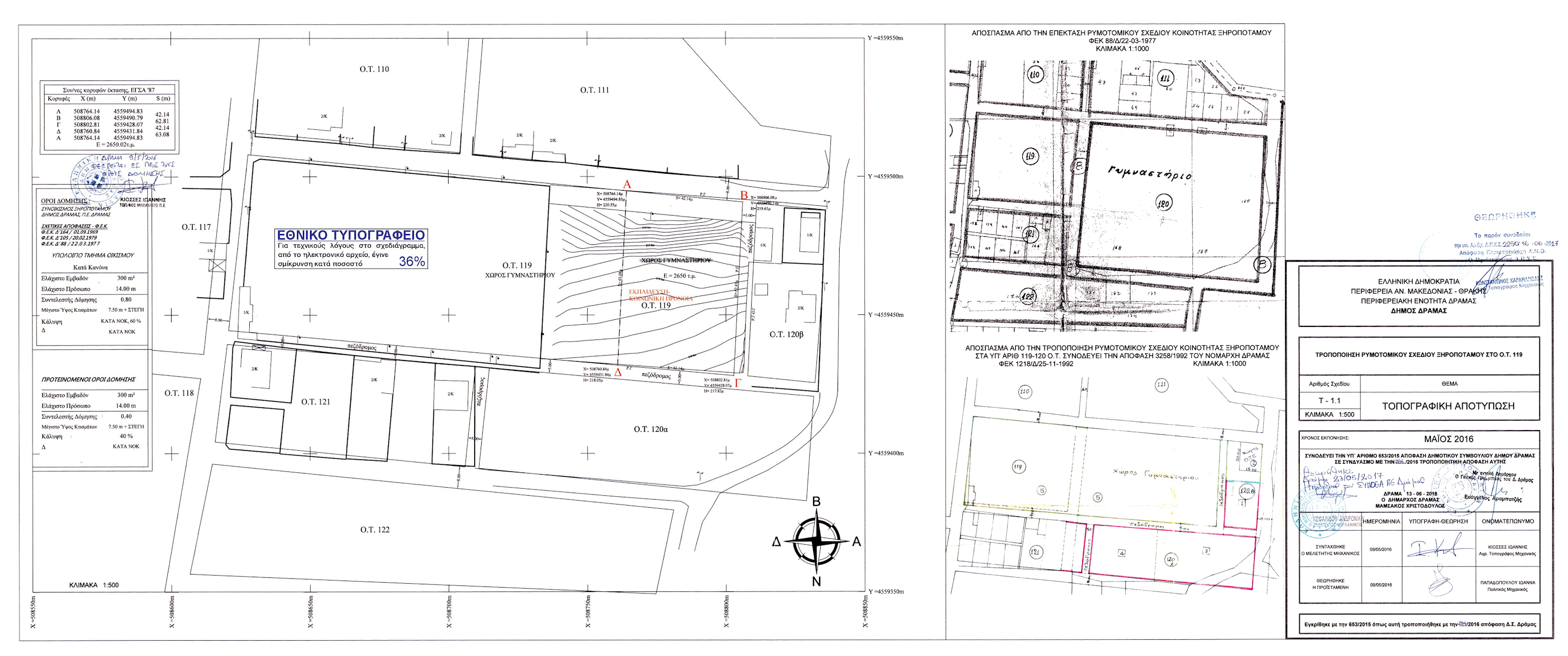
13. Την υπ' αριθμόν ΤΥ/994/09-02-1977 απόφαση Νομάρχη Δράμας (ΦΕΚ 88/Δ/1977) Περί επεκτάσεως του ρυμοτομικού σχεδίου Κοινότητος Ξηροποτάμου επί των υπ' αριθμόν 101 έως 130 οικοδομικών τετραγώνων.
14. Την υπ' αριθμόν ΤΠΠΕ/568/1989 απόφαση Νομάρχη Δράμας (ΦΕΚ 134/Δ/1989) Αποχαρακτηρισμός του οικόπεδου με τα στοιχεία ΑΒΓΔΑ στο οικοδομικό τετράγωνο 120 από χώρο γηπέδου σε χώρο του Οργανισμού Τηλεπικοινωνιών Ελλάδος και καθορισμός όρων δόμησης στο Ξηροπόταμο Δράμας.
15. Την υπ' αριθμόν ΤΠΠΕ/3258/1992 απόφαση Νομάρχη Δράμας (ΦΕΚ 1218/Δ/1992) Τροποποίηση στα οικοδομικά τετράγωνα 119-120-121 στον οικισμό Ξηροποτάμου Δράμας.
16. Το υπ' αριθμόν 1350/12-07-2016 έγγραφο της Διεύθυνσης Δόμησης Δήμου Δράμας με το οποίο διαβιβάσθηκε ο φάκελος δικαιολογητικών και τα συμπληρωματικά στοιχεία που κατατέθηκαν με το υπ' αριθμόν 249/23-02-2017 έγγραφο του.
17. Την υπ' αριθμόν 653/2015 απόφαση του Δημοτικού Συμβουλίου Δήμου Δράμας, όπως τροποποιήθηκε με την 284/2016 απόφαση Δημοτικού Συμβουλίου, με θετική γνωμοδότηση υπέρ της προτεινόμενης τροποποίησης.
18. Τα αποδεικτικά κοινοποίησης της υπ' αριθμόν 284/ 2016 απόφασης στους άμεσα και έμμεσα θιγόμενους καθώς και τα αποδεικτικά τοιχοκόλλησης της υπ' αριθμόν 284/2016 απόφασης.
19. Την υπ' αριθμόν 26338/11-07-2016 βεβαίωση Δημάρχου ότι δεν υποβλήθηκε καμία ένσταση και ότι με την προτεινόμενη τροποποίηση δεν προκύπτουν επιπλέον ρυμοτομούμενα κτίσματα και δεν δημιουργούνται μη άρτια οικόπεδα.
20. Το τοπογραφικό διάγραμμα του Δήμου Δράμας σε κλίμακα 1:500 και με ημερομηνία Μάιος 2016 που αποτελεί αναπόσπαστο τμήμα και συνοδεύει την υπ' αριθμόν 653/2015, όπως αυτή τροποποιήθηκε με την υπ' αριθμόν 284/2016 απόφαση του Δημοτικού Συμβουλίου Δήμου Δράμας.
21. Την από 22-03-2017 θετική εισήγηση της Υπηρεσίας προς το Συμβούλιο Πολεοδομικών Θεμάτων και Αμφισβητήσεων Περιφερειακής Ενότητας Δράμας.
22. Το απόσπασμα του πρακτικού με αριθμό 1/2017 (Πράξη 2η/23-05-2017) του Συμβουλίου Πολεοδομικών Θεμάτων και Αμφισβητήσεων Περιφερειακής Ενότητας Δράμας με ομόφωνη θετική γνωμοδότηση για την έγκριση της τροποποίησης του ρυμοτομικού σχεδίου Ξηροποτάμου στο οικοδομικό τετράγωνο 119 με την αλλαγή χρήσης του τμήματος υπό στοιχεία ΑΒΓΔΑ από κοινωφελή χώρο, προοριζόμενο για ΧΩΡΟ ΓΥΜΝΑΣΤΗΡΙΟΥ σε κοινωφελή χώρο προοριζόμενο για ΕΚΠΑΙΔΕΥΣΗ -ΚΟΙΝΩΝΙΚΗ ΠΡΟΝΟΙΑ και τον καθορισμό όρων δόμησης στο ανωτέρω τμήμα.
23. Το γεγονός ότι από τις κανονιστικές διατάξεις της παρούσας δεν προκαλείται δαπάνη σε βάρος του κρατικού προϋπολογισμού και του προϋπολογισμού του οικείου οργανισμού τοπικής αυτοδιοίκησης.
Επειδή:
Έχουν υποβληθεί τα δικαιολογητικά που ορίζει η εγκύκλιος 55/1988 και λαμβάνοντας υπόψη ότι η εν λόγω τροποποίηση της αλλαγής χρήσης στο υπό στοιχεία ΑΒΓΔΑ τμήμα του οικοδομικού τετραγώνου 119 από κοινωφελή χρήση Χώρο Γυμναστηρίου σε κοινωφελή χρήση Εκπαίδευση- Κοινωνική Πρόνοια δεν επιφέρει αύξηση του Συντελεστή δόμησης και δεν αποτελεί αλλαγή χρήσης δυσμενέστερη για το φυσικό, αλλά και το οικιστικό περιβάλλον, προκύπτει δε ότι η τροποποίηση αποβλέπει στη θεραπεία πολεοδομικών αναγκών της Δημοτικής Κοινότητας Ξηροποτάμου, αποφασίζουμε:
1. Εγκρίνεται η τροποποίηση του εγκεκριμένου Ρυμοτομικού Σχεδίου Ξηροποτάμου στο οικοδομικό τετράγωνο 119 με την αλλαγή χρήσης του τμήματος υπό στοιχεία ΑΒΓΔΑ από κοινωφελή χώρο, προοριζόμενο για ΧΩΡΟ ΓΥΜΝΑΣΤΗΡΙΟΥ σε κοινωφελή χώρο προοριζόμενο για ΕΚΠΑΙΔΕΥΣΗ -ΚΟΙΝΩΝΙΚΗ ΠΡΟΝΟΙΑ, όπως η παραπάνω ρύθμιση απεικονίζεται στο συνημμένο τοπογραφικό διάγραμμα σε κλίμακα 1:500, που θεωρήθηκε από τη Διεύθυνση Περιβάλλοντος και Χωρικού Σχεδιασμού της Περιφέρειας Αν. Μακεδονίας-Θράκης και συνοδεύει την παρούσα απόφαση.
2. Καθορίζονται όροι δόμησης στο ανωτέρω τμήμα ως εξής:
Ελάχιστο Εμβαδόν: 300 m2
Ελάχιστο Πρόσωπο: 14 m.
Συντελεστής Δόμησης: 0,40
Κάλυψη : 40%
Μέγιστο Ύψος Κτισμάτων: 7.5 m. + Στέγη
Δ: κατά Νέο Οικοδομικό Κανονισμό.
Ελάχιστη απόσταση κτιρίου από ρυμοτομική γραμμή: 5 m.
3. Η ισχύς της παρούσας απόφασης αρχίζει από την δημοσίευσή της στην Εφημερίδα της Κυβερνήσεως.
Επιτρέπεται η υποβολή προσφυγής στο Γενικό Γραμματέα Αποκεντρωμένης Διοίκησης Μακεδονίας - Θράκης, μόνο για παράβαση του νόμου, σύμφωνα με τις διατάξεις των άρθρων 227 και 238 του νόμου 3852/2010 (ΦΕΚ 87/Α/2010) και σε προθεσμία 15 ημερών από τη δημοσίευσή της στην Εφημερίδα της Κυβερνήσεως.
Η απόφαση αυτή με το θεωρημένο διάγραμμα να δημοσιευθούν στην Εφημερίδα της Κυβερνήσεως.

Κομοτηνή, 16-06-2017
Με εντολή Περιφερειάρχη
Ο Προϊστάμενος Γενικής Διεύθυνσης Αναπτυξιακού Προγραμματισμού, Περιβάλλοντος και Υποδομών