| Συνδεθείτε στην Υπηρεσία Νομοσκόπιο | | | | | Νέοι χρήστες | | Εάν είστε νέος χρήστης, θα πρέπει να δημιουργήσετε ένα ΔΩΡΕΑΝ λογαριασμό προκειμένου να φύγει το παράθυρο αυτό και να αποκτήσετε πλήρη πρόσβαση στην υπηρεσία Νομοσκόπιο. | | Δημιουργία νέου λογαριασμού | | |
Απόφαση 9823/2012: Καθορισμός ειδικών όρων και περιορισμών δόμησης στο διατηρητέο κτίριο που βρίσκεται επί της οδού Άγγελου Σικελιανού 13 του εγκεκριμένου ρυμοτομικού σχεδίου του Δήμου Λευκάδας νομού Λευκάδας, (ΦΕΚ 79/ΑΑΠ/2012), 13-03-2012.
Ο Αναπληρωτής Υπουργός Περιβάλλοντος, Ενέργειας και Κλιματικής Αλλαγής
Έχοντας υπόψη:
1. Τις διατάξεις του άρθρου 4 παράγραφος 2 του νόμου 1577/1985 Γενικός Οικοδομικός Κανονισμός (ΦΕΚ 210/Α/1985) όπως αντικαταστάθηκε με το άρθρο 3 του νόμου 2831/2000 Τροποποίηση των διατάξεων του νόμου 1577/1985 Γενικός Οικοδομικός Κανονισμός και άλλες Πολεοδομικές διατάξεις (ΦΕΚ 140/Α/2000).
2. Τις διατάξεις του άρθρου 90 του Κώδικα Νομοθεσίας για την Κυβέρνηση και τα κυβερνητικά όργανα που κυρώθηκε με το άρθρο πρώτο του προεδρικού διατάγματος 63/2005 (ΦΕΚ 98/Α/2005).
3. Την υπ' αριθμόν Υ14/2011 απόφαση του Πρωθυπουργού Καθορισμός αρμοδιοτήτων του Αναπληρωτή Υπουργού Περιβάλλοντος, Ενέργειας και Κλιματικής Αλλαγής Νικόλαου Σηφουνάκη (ΦΕΚ 2740/Β/2011).
4. Το υπ' αριθμόν 1591/2010 έγγραφο της Διεύθυνσης Πολεοδομίας Χωροταξίας και Περιβάλλοντος της Νομαρχιακής Αυτοδιοίκησης Λευκάδας
5. Την από 15-09-2011 αιτιολογική έκθεση της Διεύθυνσης Πολεοδομικού Σχεδιασμού - Τμήμα Παραδοσιακών Οικισμών.
6. Την από 19-10-2011 σύμφωνη γνώμη του φερόμενου ιδιοκτήτη Βασιλείου Μαμαλούκα.
7. Το υπ' αριθμόν 39801/15-09-2011 έγγραφο της Διεύθυνσης Πολεοδομικού Σχεδιασμού Τμήμα Παραδοσιακών Οικισμών, και τις από 04-11-2011 αντιρρήσεις του ενδιαφερόμενου Αντώνη Αθανίτη.
8. Τις από 13-12-2011 παρατηρήσεις της Διεύθυνσης Πολεοδομικού Τμήμα Παραδοσιακών Οικισμών επί των αντιρρήσεων του Αντώνη Αθανίτη.
9. Το γεγονός ότι από τις κανονιστικές διατάξεις της απόφασης αυτής δεν προκαλείται δαπάνη σε βάρος του κρατικού προϋπολογισμού και του προϋπολογισμού του οικείου οργανισμού τοπικής αυτοδιοίκησης, αποφασίζουμε:
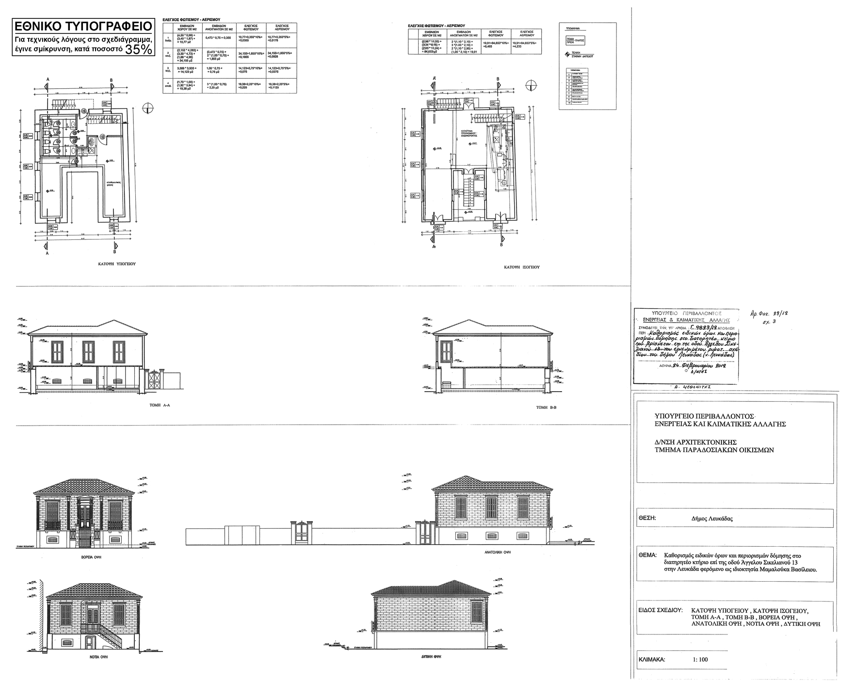
1. Στο κτίριο που βρίσκεται επί της οδού Άγγελου Σικελιανού 13 εντός του εγκεκριμένου ρυμοτομικού σχεδίου του Δήμου Λευκάδας (νομού Λευκάδας) φερόμενο ως ιδιοκτησία Βασιλείου Μαμαλούκα και το οποίο έχει χαρακτηρισθεί ως διατηρητέο με την υπ' αριθμόν 50720/1615/1992 απόφαση του Υπουργού Περιβάλλοντος, Χωροταξίας και Δημοσίων Έργων (ΦΕΚ 319/Δ/1992), επιτρέπονται χωρίς υπέρβαση του συντελεστή δόμησης και των λοιπών ισχυόντων όρων και περιορισμών δόμησης:
Εργασίες επισκευής, αποκατάστασης και αναδιαρρύθμισης των εσωτερικών του χώρων, όπως οι ρυθμίσεις αυτές φαίνονται στα τρία σχετικά πρωτότυπα διαγράμματα (τοπογραφικό και κάλυψης σε κλίμακα 1:200, όψεις - κατόψεις - τομές σε κλίμακα 1:100).
2. Συνοπτικά αντίτυπα σε φωτοσμίκρυνση των παραπάνω διαγραμμάτων που θεωρήθηκαν από τον Προϊστάμενο της Διεύθυνσης Τοπογραφικών Εφαρμογών με την υπ' αριθμόν 9823/2012 πράξη του συν-δημοσιεύονται με την παρούσα απόφαση.



3. Επιτρέπεται επίσης η αλλαγή της χρήσης του κτιρίου από κατοικία σε κατάστημα υγειονομικού ενδιαφέροντος.
4. Η ορθή εφαρμογή των επιτρεπομένων με την παρούσα απόφαση ρυθμίσεων πιστοποιείται με αυτοψία της αρμόδιας πολεοδομικής υπηρεσίας.
5. Επιβάλλεται η αποκατάσταση στην αρχική τους μορφή των στοιχείων του περιβάλλοντος χώρου του κτιρίου (έμβλημα - βρύση) που έχουν επίσης κηρυχθεί ως διατηρητέα με την ίδια ως άνω απόφαση του Υπουργού Περιβάλλοντος, Χωροταξίας και Δημοσίων Έργων.
6. Κατά τα λοιπά εξακολουθούν να ισχύουν τα οριζόμενα με τις διατάξεις της υπ' αριθμόν 50720/1615/1992 απόφασης του Υπουργού Περιβάλλοντος Χωροταξίας και Δημοσίων Έργων (ΦΕΚ 319/Δ/1992) με την οποία το κτίριο και στοιχεία του περιβάλλοντος χώρου του χαρακτηρίσθηκαν ως διατηρητέα.
7. Η ισχύς της παρούσας απόφασης αρχίζει από τη δημοσίευση της στην Εφημερίδα της Κυβερνήσεως.
Η απόφαση αυτή να δημοσιευθεί στην Εφημερίδα της Κυβερνήσεως.
Αθήνα, 24-02-2012
Ο Αναπληρωτής Υπουργός