| Συνδεθείτε στην Υπηρεσία Νομοσκόπιο | | | | | Νέοι χρήστες | | Εάν είστε νέος χρήστης, θα πρέπει να δημιουργήσετε ένα ΔΩΡΕΑΝ λογαριασμό προκειμένου να φύγει το παράθυρο αυτό και να αποκτήσετε πλήρη πρόσβαση στην υπηρεσία Νομοσκόπιο. | | Δημιουργία νέου λογαριασμού | | |
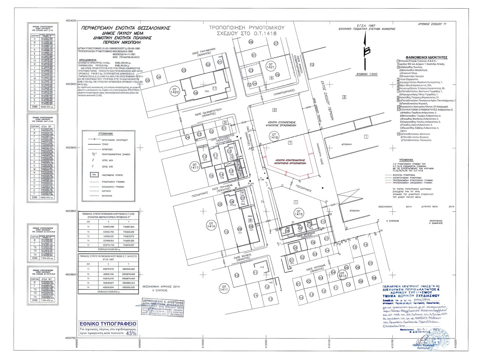
Την έγκριση της τροποποίησης του ρυμοτομικού σχεδίου στο οικοδομικό τετράγωνο 1418 της Δημοτικής Κοινότητας Πολίχνης του Δήμου Παύλου Μελά της Περιφερειακής Ενότητας Θεσσαλονίκης με:
α) τον αποχαρακτηρισμό τμήματος της ιδιοκτησίας της ανώνυμης εταιρείας με την επωνυμία Ελληνική Εταιρεία Γρανιτών ΑΒΕΕ, με στοιχεία Β, Γ, Τ2, Τ3, Τ4, Β από χώρο Κέντρο Επαγγελματικής Κατάρτισης Εργαζομένων και τον χαρακτηρισμό του σε οικοδομήσιμο χώρο με τους ισχύοντες όρους και περιορισμούς δόμησης που ισχύουν στην περιοχή
β) την επιβολή προκηπίου πλάτους 4 m στην πλευρά του οικοδομικού τετραγώνου 1418 επί της αδιάνοικτης οδού και σε επαφή με το όριο σχεδίου πόλης
γ) την επιβολή προκηπίου πλάτους 3 m στις υπόλοιπες τρεις πλευρές του οικοδομικού τετραγώνου 1418, ήτοι επί του πεζοδρόμου και επί της οδού Κερασούντος.
ως συνέπεια της με αριθμό 1049/2013 απόφασης του Ι' Τριμελούς Τμήματος του Διοικητικού Πρωτοδικείου Θεσσαλονίκης όπως η ρύθμιση αυτή φαίνεται στο πρωτότυπο χρωματισμένο τοπογραφικό διάγραμμα σε κλίμακα 1:500 που θεωρήθηκε από τον Αναπληρωτή Προϊστάμενο της Διεύθυνσης Περιβάλλοντος και Χωρικού Σχεδιασμού Περιφέρειας Κεντρικής Μακεδονίας και συνοδεύει την απόφαση αυτή.
