| Συνδεθείτε στην Υπηρεσία Νομοσκόπιο | | | | | Νέοι χρήστες | | Εάν είστε νέος χρήστης, θα πρέπει να δημιουργήσετε ένα ΔΩΡΕΑΝ λογαριασμό προκειμένου να φύγει το παράθυρο αυτό και να αποκτήσετε πλήρη πρόσβαση στην υπηρεσία Νομοσκόπιο. | | Δημιουργία νέου λογαριασμού | | |
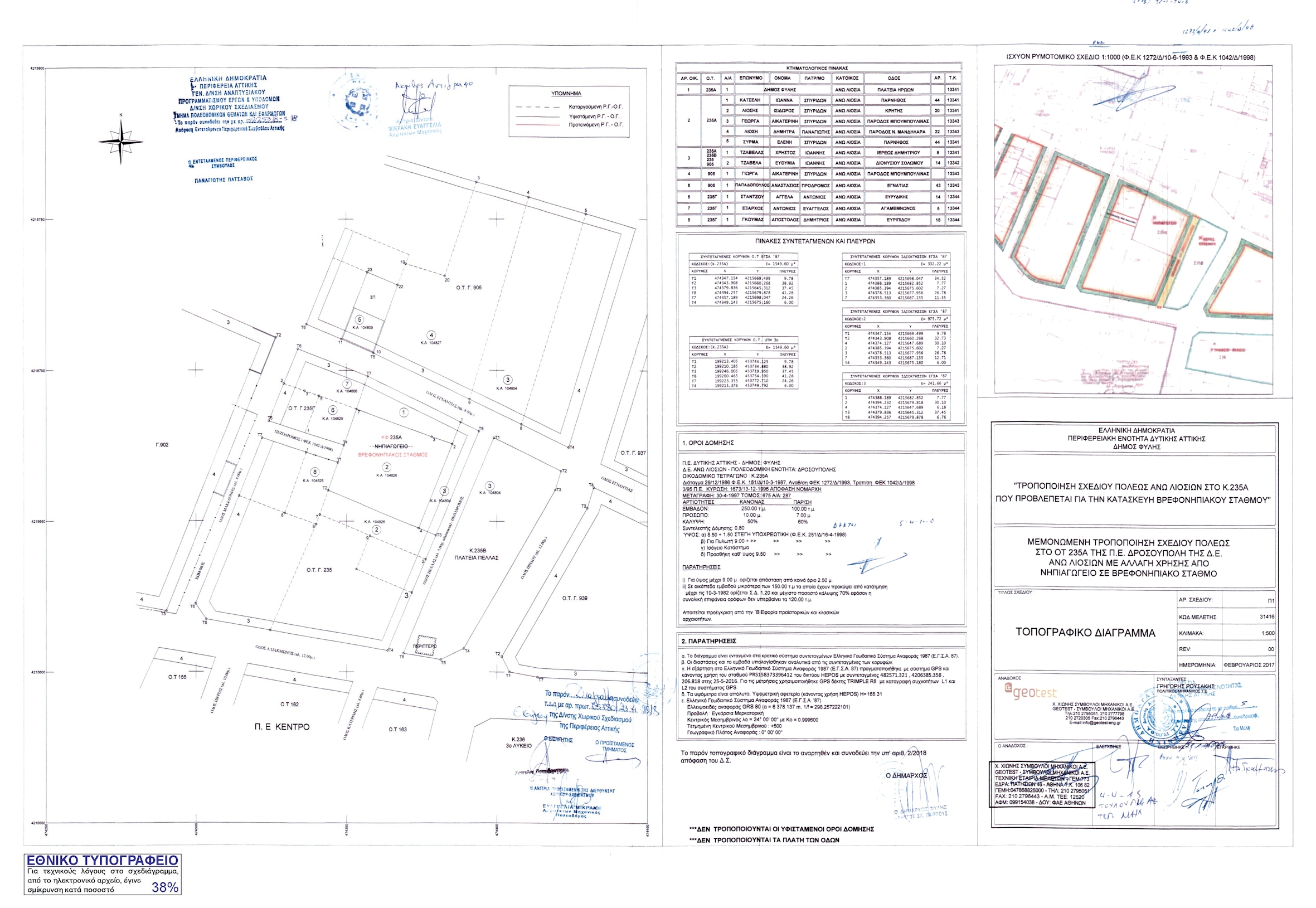
Απόφαση 82253/2018: Τροποποίηση του εγκεκριμένου ρυμοτομικού σχεδίου στο οικοδομικό τετράγωνο Κ 235Α της Δημοτικής Ενότητας Δροσούπολης Άνω Λιοσίων του Δήμου Φυλής, που αφορά σε αλλαγή χρήσης από Νηπιαγωγείο σε Βρεφονηπιακό Σταθμό, (ΦΕΚ 95/ΑΑΠ/2018), 17-05-2018.
Ο Εντεταλμένος Περιφερειακός Σύμβουλος Αττικής
Έχοντας υπόψη:
1. Τις διατάξεις του νόμου 3852/2010 (ΦΕΚ 87/Α/2010) για τη Νέα Αρχιτεκτονική της Αυτοδιοίκησης και της Αποκεντρωμένης Διοίκησης - Πρόγραμμα Καλλικράτης, άρθρο 186, παράγραφος ΣΤ.39.
2. Τις διατάξεις του προεδρικού διατάγματος 145/2010 (ΦΕΚ 238/Α/2010) για τον Οργανισμό Περιφέρειας Αττικής, όπως τροποποιήθηκε με την υπ' αριθμόν 44403/2011 απόφαση Υπουργού Εσωτερικών (ΦΕΚ 2494/Β/2011) και την ορθή επανάληψη αυτής (ΦΕΚ 2822/Β/2011) και την μεταγενέστερη με αριθμό 109290/39629/2016 απόφαση Γενικού Γραμματέα Αποκεντρωμένης Διοίκησης Αττικής, με την οποία εγκρίθηκε η με αριθμό 438/2016 απόφαση του Περιφερειακού Συμβουλίου Περιφέρειας Αττικής (ΦΕΚ 4251/Β/2016) για τροποποίηση του Οργανισμού Εσωτερικής Υπηρεσίας της Περιφέρειας Αττικής και ισχύει σήμερα.
3. Τη με αριθμό οίκοθεν 8840/2017 απόφαση Περιφερειάρχη Αττικής για Μεταβίβαση αρμοδιοτήτων σε Αντιπεριφερειάρχες της Περιφέρειας Αττικής, σε Περιφερειακούς Συμβούλους της Περιφέρειας Αττικής και παροχή εξουσιοδότησης υπογραφής Με εντολή Περιφερειάρχη σε Προϊσταμένους της Περιφέρειας Αττικής (ΦΕΚ 39/Β/2017), όπως τροποποιήθηκε-συμπληρώθηκε με την με αριθμό οίκοθεν 59417/2017 απόφαση Περιφερειάρχη Αττικής (ΦΕΚ 945/Β/2017) και ισχύει σήμερα.
4. Το άρθρο 44 του νόμου 3979/2011 (ΦΕΚ 138/Δ/2011) Για την ηλεκτρονική διακυβέρνηση και λοιπές διατάξεις και τις διατάξεις του νόμου 3469/2006 (ΦΕΚ 131/A/2006) Εθνικό Τυπογραφείο, Εφημερίς της Κυβερνήσεως και λοιπές διατάξεις και ειδικότερα τα άρθρα 5, 6 και 7 (παράγραφος 5)β).
5. Τις διατάξεις του από 17-07-1923 νομοθετικού διατάγματος (ΦΕΚ 228/Α/1923) και ειδικότερα τα άρθρα 1, 3, 7, 9 και 70, όπως ισχύουν σήμερα.
6. Τις διατάξεις του Κώδικα Βασικής Πολεοδομικής Νομοθεσίας (ΦΕΚ 580/Δ/1999) και ειδικότερα τα άρθρα 154 και 160.
7. Τις διατάξεις του άρθρου 29 του νόμου 2831/2000 (ΦΕΚ 140/Α/2000), όπως αντικαταστάθηκαν από το άρθρο 10 του νόμου 3044/2002 (ΦΕΚ 197/Α/2002).
8. Τις διατάξεις του νόμου 2882/2001 (ΦΕΚ 17/Α/001) για τον Κώδικα Αναγκαστικών Απαλλοτριώσεων και του νόμου 2985/2002 (ΦΕΚ 18/Α/2002), όπως ισχύουν σήμερα.
9. Το άρθρο 29Α του νόμου 1558/1985, όπως προστέθηκε με το άρθρο 27 του νόμου 2081/1992 (ΦΕΚ 154/Α/1992), που αναφέρονται και στις διατάξεις του άρθρου 90 του Κώδικα Νομοθεσία για την Κυβέρνηση και τα κυβερνητικά όργανα που κυρώθηκε με το προεδρικό διάταγμα 63/2005 (ΦΕΚ 98/Α/2005).
10. Το νόμο 3937/2011 (ΦΕΚ 60/Α/2011) άρθρα 30 και 34 καθώς και το νόμο 4030/2011 (ΦΕΚ 294/Α/2011) άρθρο 45, για την ανασυγκρότηση και λειτουργία των Συμβουλίων Πολεοδομικών Θεμάτων και Αμφισβητήσεων, όπως ισχύουν σήμερα.
11. Την υπ' αριθμόν 32129/1637/2017 απόφαση ασκούσας τα καθήκοντα Γενικού Γραμματέα Αποκεντρωμένης Διοίκησης Αττικής, για ανασυγκρότηση των Συμβουλίων Πολεοδομικών Θεμάτων και Αμφισβητήσεων, στην έδρα κάθε Περιφερειακής Ενότητας της Περιφέρειας Αττικής, όπως τροποποιήθηκε με την υπ' αριθμόν 58421/3240/2017 όμοια (ΦΕΚ 372/ΥΟΔΔ/2017).
12. Το νόμο 4067/2012 (ΦΕΚ 79/Α/2012) για το Νέο Οικοδομικό Κανονισμό, άρθρα 31, 32 και 33, όπως τροποποιήθηκαν και ισχύουν.
13. Το (ΦΕΚ 829/Δ/1987) με το οποίο εγκρίθηκε το Γενικό Πολεοδομικό Σχέδιο του Δήμου Άνω Λιοσίων, το οποίο τροποποιήθηκε με το (ΦΕΚ 540/Δ/1996).
14. Το από 29-12-1986 προεδρικό διάταγμα (ΦΕΚ 181/Δ/1987) με το οποίο εντάχθηκε η περιοχή στο σχέδιο πόλης που τροποποιήθηκε με το από 25-08-1993 προεδρικό διάταγμα (ΦΕΚ 1272/Δ/1993).
15. Την υπ' αριθμόν 1/2018 πράξη της 1ης/25-01-2018 6ης/19-10-2012 συνεδρίασης της Δημοτικής Κοινότητας Άνω Λιοσίων καθώς και την υπ' αριθμόν 1/2018 πράξη της 1ης/25-01-2018 συνεδρίασης Επιτροπής Ποιότητας Ζωής του Δήμου Φυλής.
16. Την υπ' αριθμόν 2/2018 (αριθμός πρακτικού 1) πράξης, της από 26-01-2018 συνεδρίασης του Δημοτικού Συμβουλίου Δήμου Φυλής.
17. Τη με αριθμό πρωτοκόλλου 75780/23-04-2018 εισήγηση του Τμήματος Πολεοδομικών Θεμάτων της Υπηρεσίας, προς το Συμβούλιο Πολεοδομικών Θεμάτων και Αμφισβητήσεων Περιφερειακής Ενότητας Δυτικής Αττικής.
18. Την από 27-04-2018 (Πρακτικό 5ο, Θέμα 1ο) γνωμοδότηση του Συμβουλίου Πολεοδομικών Θεμάτων και Αμφισβητήσεων Περιφερειακής Ενότητας Δυτικής Αττικής.
19. Τα νόμιμα δικαιολογητικά που περιέχονται στο φάκελο τροποποίησης σχεδίου, όπως συμπληρώθηκε.
Και επειδή
Α. Το συμβούλιο της Δημοτικής Κοινότητας Άνω Λιοσίων, στην υπ' αριθμόν 1η /25-01-2018 Συνεδρίασή του, γνωμοδοτεί κατά πλειοψηφία με την 1/2018 απόφασή του, για την: Μεμονωμένη τροποποίηση του εγκεκριμένου ρυμοτομικού σχεδίου στο οικοδομικό τετράγωνο Κ 235Α της Πολεοδομικής Ενότητας Δροσούπολης της Δημοτικής Ενότητας Άνω Λιοσίων του Δήμου Φυλής, προκειμένου να αλλάξει η χρήση από Νηπιαγωγείο σε Βρεφονηπιακό Σταθμό.
Β. Η Επιτροπή Ποιότητας Ζωής του Δήμου Φυλής, στην υπ' αριθμόν 1η/26-01-2018 Συνεδρίασή της, εισηγείται ομόφωνα με την υπ' αριθμόν 1/2018 πράξη της, την: Μεμονωμένη τροποποίηση του εγκεκριμένου ρυμοτομικού σχεδίου στο οικοδομικό τετράγωνο Κ 235Α της Πολεοδομικής Ενότητας Δροσούπολης της Δημοτικής Ενότητας Άνω Λιοσίων του Δήμου Φυλής, προκειμένου να αλλάξει η χρήση από Νηπιαγωγείο σε Βρεφονηπιακό Σταθμό.
Γ. Το Δημοτικό Συμβούλιο, στην από 26-01-2018 συνεδρίασή του, αποφάσισε ομόφωνα, με την υπ' αριθμόν 2/2018 απόφασή του (αριθμός πρακτικού 1), για την: Μεμονωμένη τροποποίηση του εγκεκριμένου ρυμοτομικού σχεδίου στο οικοδομικό τετράγωνο Κ 235Α της Πολεοδομικής Ενότητας Δροσούπολης της Δημοτικής Ενότητας Άνω Λιοσίων του Δήμου Φυλής, προκειμένου να αλλάξει η χρήση από Νηπιαγωγείο σε Βρεφονηπιακό Σταθμό.
Κατά της απόφασης αυτής, η οποία αναρτήθηκε, δημοσιεύθηκε και κοινοποιήθηκε νόμιμα, δεν κατατέθηκαν ενστάσεις, σύμφωνα με την με αριθμό πρωτοκόλλου 707/ 22-02-2018 Βεβαίωση Δημάρχου Φυλής.
Δ. Το Τμήμα Πολεοδομικών Θεμάτων και Εφαρμογών της Διεύθυνσης Χωρικού Σχεδιασμού της Περιφέρειας Αττικής με την υπ' αριθμόν 75780/23-04-2018 εισήγησή του προς το Συμβούλιο Πολεοδομικών Θεμάτων και Αμφισβητήσεων Περιφερειακής Ενότητας Δυτικής Αττικής, εισηγήθηκε θετικά για την εν λόγω τροποποίηση, σύμφωνα με την απόφαση του Δημοτικού Συμβουλίου, δεδομένου ότι από τα στοιχεία του φακέλου συντρέχουν οι, εκ της νομοθεσίας, προϋποθέσεις:
α. Η ύπαρξη σοβαρής πολεοδομικής ανάγκης.
β. Η εξασφάλιση αποζημίωσης των δικαιούχων.
γ. Η τήρηση από τον Δήμο Φυλής, της κατά νόμο διαδικασίας σύμφωνα με το άρθρο 3 του από 17-07-1923 νομοθετικού διατάγματος, όπως ισχύει σήμερα.
Ε. Το Συμβούλιο Πολεοδομικών Θεμάτων και Αμφισβητήσεων Περιφερειακής Ενότητας Δυτικής Αττικής, με την από 27-04-2018 (Πρακτικό 5ο, Θέμα 1ο) απόφασή του, γνωμοδότησε ομόφωνα υπέρ της έγκρισης της τροποποίησης του ρυμοτομικού σχεδίου του Δήμου Φυλής:
| • | Με την αλλαγή χρήσης από Νηπιαγωγείο σε Βρεφονηπιακό Σταθμό, του οικοδομικού τετραγώνου Κ 235 Α της Δημοτικής Ενότητας Δροσούπολης Άνω Λιοσίων του Δήμου Φυλής - Τον καθορισμό όρων και περιορισμών δόμησης στο οικοδομικό τετράγωνο Κ235 Α, σύμφωνα με τους ισχύοντες της περιοχής, λαμβανομένων υπόψη των όρων και περιορισμών που απορρέουν από το προεδρικό διάταγμα 99/2017 (ΦΕΚ 141/Α/2017) Καθορισμός προϋποθέσεων αδειοδότησης και λειτουργίας των παιδικών και βρεφονηπιακών σταθμών που λειτουργούν εντός νομικών προσώπων των δήμων ή υπηρεσίας των δήμων. |
ΣΤ. Η εν λόγω τροποποίηση είναι όλως εντοπισμένη τροποποίηση, δεν ευρίσκεται επί Βασικού Οδικού Δικτύου, ούτε σε περιοχή ιδιαιτέρου φυσικού κάλλους ή χαρακτηρισμένη ως διατηρητέου περιβαλλοντικού ενδιαφέροντος, ή κηρυγμένου αρχαιολογικού χώρου και σύμφωνα με το άρθρο 186 του νόμου 3852/2010 (ΦΕΚ 87 Α/2010) καθώς και την υπ' αριθμόν πρωτοκόλλου 29829/2012 Εγκύκλιο 10/2012 του Υπουργείου Περιβάλλοντος, Ενέργειας και Κλιματικής Αλλαγής (ΑΔΑ: Β4ΛΔ0ΛΔ2), εγκρίνεται με απόφαση του Περιφερειάρχη Αττικής, αποφασίζουμε:
1. Την έγκριση της πρότασης τροποποίησης του ρυμοτομικού σχεδίου του Δήμου Φυλής:
| • | Με την αλλαγή χρήσης από Νηπιαγωγείο σε Βρεφονηπιακό Σταθμό, του οικοδομικού τετραγώνου Κ235Α της Δημοτικής Ενότητας Δροσούπολης Άνω Λιοσίων του Δήμου Φυλής. |
| • | Τον καθορισμό όρων και περιορισμών δόμησης στο οικοδομικό τετράγωνο Κ235 Α, σύμφωνα με τους ισχύοντες της περιοχής, λαμβανομένων υπόψη των όρων και περιορισμών που απορρέουν από το προεδρικό διάταγμα 99/2017 (ΦΕΚ 141/Α/2017) Καθορισμός προϋποθέσεων αδειοδότησης και λειτουργίας των παιδικών και βρεφονηπιακών σταθμών που λειτουργούν εντός νομικών προσώπων των δήμων ή υπηρεσίας των δήμων όπως αναλυτικά φαίνεται στο τοπογραφικό διάγραμμα σε κλίμακα 1:500, που συνοδεύει την παρούσα. |
2. Η ισχύς της απόφασης αρχίζει από την ημερομηνία δημοσίευσής της στην Εφημερίδα της Κυβερνήσεως.
3. Επιτρέπεται η υποβολή προσφυγής στο Γενικό Γραμματέα Αποκεντρωμένης Διοίκησης Αττικής μέχρι συστάσεως της αυτοτελούς Υπηρεσίας εποπτείας οργανισμών τοπικής αυτοδιοίκησης (Ελεγκτής Νομιμότητας), μόνο για παράβαση του Νόμου, σύμφωνα με τις διατάξεις του άρθρου 227 του νόμου 3852/2010 (ΦΕΚ 87/Α/2010) και σε προθεσμία 15 ημερών, από την δημοσίευσή της, στην Εφημερίδα της Κυβερνήσεως.
4. Μετά τη δημοσίευση της παρούσας στο ΦΕΚ, αυτή αναρτάται στο πρόγραμμα Διαύγεια.

Η απόφαση αυτή να δημοσιευθεί στην Εφημερίδα της Κυβερνήσεως.
Αθήνα, 08-05-2018
Ο Εντεταλμένος Περιφερειακός Σύμβουλος