| Συνδεθείτε στην Υπηρεσία Νομοσκόπιο | | | | | Νέοι χρήστες | | Εάν είστε νέος χρήστης, θα πρέπει να δημιουργήσετε ένα ΔΩΡΕΑΝ λογαριασμό προκειμένου να φύγει το παράθυρο αυτό και να αποκτήσετε πλήρη πρόσβαση στην υπηρεσία Νομοσκόπιο. | | Δημιουργία νέου λογαριασμού | | |
Απόφαση 78692/2020: Άρση ρυμοτομικής απαλλοτρίωσης και τροποποίηση του εγκεκριμένου ρυμοτομικού σχεδίου στο οικοδομικό τετράγωνο 449 του Δήμου Νέας Ιωνίας, σε εκτέλεση των 477/2005, 6423/2009, 5298/2013, 5301/2013 και 10302/2013 αποφάσεων του Τριμελούς Διοικητικού Πρωτοδικείου Αθηνών, (ΦΕΚ 263/Δ/2020), 25-05-2020.
Ο Εντεταλμένος Περιφερειακός Σύμβουλος Αττικής
Έχοντας υπόψη:
1. Το νόμο 3852/2010 (ΦΕΚ 87/Α/2010) για τη Νέα Αρχιτεκτονική της Αυτοδιοίκησης και της Αποκεντρωμένης Διοίκησης - Πρόγραμμα Καλλικράτης, όπως ισχύει.
2. Το προεδρικό διάταγμα 145/2010 (ΦΕΚ 238/Α/2010) για τον Οργανισμό Περιφέρειας Αττικής, όπως τροποποιήθηκε με την 44403/2011 (ΦΕΚ 2494/Β/2011) απόφαση Υπουργού Εσωτερικών, την ορθή επανάληψη αυτής (ΦΕΚ 2822/Β/2011) και τη μεταγενέστερη 109290/39629/2016 απόφαση του Γενικού Γραμματέα Αποκεντρωμένης Διοίκησης Αττικής, με την οποία εγκρίθηκε η 438/2016 απόφαση του Περιφερειακού Συμβουλίου Περιφέρειας Αττικής (ΦΕΚ 4251/Β/2016) που αφορά την τροποποίηση του Οργανισμού Εσωτερικής Υπηρεσίας της Περιφέρειας Αττικής), καθώς και την 66313/24553/2017 (ΦΕΚ 3051/Β/2017) όμοια, όπως ισχύει σήμερα.
3. Την 505910/2019 (ΦΕΚ 3411/Β/2019) απόφαση Περιφερειάρχη Αττικής Ανάθεση - Μεταβίβαση αρμοδιοτήτων σε Αντιπεριφερειάρχες και Περιφερειακούς Συμβούλους της Περιφέρειας Αττικής.
4. Το από 17-07-1923 νομοθετικό διάταγμα (ΦΕΚ 228/Α/1923) και ειδικότερα τα άρθρα 1, 3, 7, 9 και 70, όπως ισχύουν σήμερα
5. Το άρθρο 44 του νόμου 3979/2011 (ΦΕΚ 138/Δ/2011) Για την ηλεκτρονική διακυβέρνηση και λοιπές διατάξεις και τις διατάξεις του νόμου 3469/2006 (ΦΕΚ 131/Α/2006) Εθνικό Τυπογραφείο, Εφημερίς της Κυβερνήσεως και λοιπές διατάξεις και ειδικότερα τα άρθρα 5, 6 και 7 (παράγραφος 5)β).
6. Το νόμο 1577/1985 (ΦΕΚ 240/Α/1985), άρθρο 34.
7. Τις διατάξεις του Κώδικα Βασικής Πολεοδομικής Νομοθεσίας (ΦΕΚ 580/Δ/1999) και ειδικότερα τα άρθρα 152, 154 και 160.
8. Τις διατάξεις του άρθρου 29 του νόμου 2831/2000 (ΦΕΚ 140/Α/2000), όπως αντικαταστάθηκαν από το άρθρο 10 του νόμου 3044/2002 (ΦΕΚ 197/Α/2002).
9. Το νόμο 2882/2001 (ΦΕΚ 17/Α/2001) Κώδικας Αναγκαστικών Απαλλοτριώσεων και το νόμο 2985/2002 (ΦΕΚ 18/Α/2002), όπως ισχύουν σήμερα.
10. Τις διατάξεις του άρθρου 29 του νόμου 1558/1985 (ΦΕΚ 137/Α/1985), όπως συμπληρώθηκαν με το άρθρο 27 του νόμου 2081/1992 (ΦΕΚ 154/Α/1992), που αναφέρονται και στις διατάξεις του άρθρου 90 του Κώδικα Νομοθεσία για την Κυβέρνηση και τα κυβερνητικά όργανα που κυρώθηκε με το προεδρικό διάταγμα 63/2005 (ΦΕΚ 98/Α/2005).
11. Το νόμο 3937/2011 (ΦΕΚ 60/Α/2011) άρθρα 30 και 34 καθώς και το νόμο 4030/2011 (ΦΕΚ 294/Α/2011) άρθρο 45, για την ανασυγκρότηση και λειτουργία των Συμβουλίων Πολεοδομικών Θεμάτων και Αμφισβητήσεων, όπως ισχύουν σήμερα.
12. Την οίκοθεν 11779/11205/2012 απόφαση του Γενικού Γραμματέα Αποκεντρωμένης Διοίκησης Αττικής, που αφορά στην συγκρότηση των Συμβουλίων Πολεοδομικών Θεμάτων και Αμφισβητήσεων, καθώς και την Φ39/1985/2015 απόφαση ανασυγκρότησης αυτών, όπως τροποποιήθηκε και ισχύει με τις Φ39/2209/2015, Φ39/4541/2015 και 7541/515/2016 και μεταγενέστερες αποφάσεις του ιδίου.
13. Το νόμο 4067/2012 (ΦΕΚ 79/Α/2012) για το Νέο Οικοδομικό Κανονισμό, άρθρα 31, 32 και 33, όπως τροποποιήθηκαν και ισχύουν.
14. Το (ΦΕΚ 662/Δ/1995), με το οποίο εγκρίθηκε το Γενικό Πολεοδομικό Σχέδιο της περιοχής Νέας Ιωνίας.
15. Το από [ΒΔ] 27-09-1950 βασιλικό διάταγμα (ΦΕΚ 218/Α/1950), με το οποίο εντάχθηκε η περιοχή στο σχέδιο πόλης.
Το από [ΒΔ] 04-07-1970 βασιλικό διάταγμα (ΦΕΚ 156/Δ/1970) και την 25427/1996 απόφαση Νομάρχη Αθηνών (ΦΕΚ 1326/Δ/1996) που έγινε τροποποίηση όρων και περιορισμών δόμησης οικοπέδων του ρυμοτομικού σχεδίου Νέας Ιωνίας.
Την 30464/1998 απόφαση Νομάρχη Αθηνών (ΦΕΚ 169/Δ/1998) που έγινε αναθεώρηση για τον καθορισμό χρήσεων γης του ρυμοτομικού σχεδίου Νέας Ιωνίας.
16. Την 27852/805/1989 απόφαση Νομάρχη Ανατολικής Αττικής (ΦΕΚ 750/Δ/1989), με την οποία εγκρίθηκε η τροποποίησή του με το χαρακτηρισμό μέρους αυτού σε χώρο παιδικής χαράς και την 23019/738/1993 απόφαση Νομάρχη Ανατολικής Αττικής (ΦΕΚ 1012/Δ/1993) που εγκρίθηκε τροποποίηση για την μετατόπιση οικοδομικής γραμμής.
17. Τις 477/2005, 6423/2009, 5298/2013, 5301/2013 και 10302/2013 αποφάσεις του Τριμελούς Διοικητικού Πρωτοδικείου Αθηνών.
18. Την από 20-12-2018 (πρακτικό 11ο, θέμα 4) γνωμοδότηση του Συμβουλίου Πολεοδομικών Θεμάτων και Αμφισβητήσεων Περιφερειακής Ενότητας Βόρειου Τομέα Αθηνών, μετά την 197837/11-10-2018 εισήγηση της Διεύθυνσης Χωρικού Σχεδιασμού.
23. Τα νόμιμα δικαιολογητικά που περιέχονται στο φάκελο τροποποίησης σχεδίου, όπως συμπληρώθηκε.
Και επειδή:
Α. Το Διοικητικό Πρωτοδικείο Αθηνών με τις 477/2005, 6423/2009, 5298/2013, 5301/2013, 10302/2013 αποφάσεις του, έκανε αποδεκτές τις προσφυγές των ΙΩΑΝΝΗ ΚΑΙ ΚΑΛΛΙΟΠΗΣ ΠΑΠΑΣΩΤΗΡΙΟΥ, ΣΤΑΥΡΟΥ ΑΡΓΥΡΟΥ, ΜΑΡΙΤΣΑΣ ΣΟΥΨΑΝΑ, ΑΡΙΣΤΕΙΔΟΥ ΜΑΡΟΥ - ΣΠΥΡΙΔΩΝΑ - ΒΑΣΙΛΙΚΗΣ ΚΑΙ ΑΙΜΙΛΙΑΣ ΚΑΝΤΑ, ΗΛΙΑ ΚΑΙ ΘΕΟΔΩΡΟΥ ΒΑΣΙΛΕΙΑΔΗ αντίστοιχα και συγκεκριμένα:
| • | Αναγνώρισε την άρση της ρυμοτομικής απαλλοτρίωσης στις ιδιοκτησίες τους. |
| • | Ανέπεμψε την υπόθεση στην Διοίκηση προκειμένου να άρει τη ρυμοτομική απαλλοτρίωση, με την τροποποίηση του οικείου ρυμοτομικού σχεδίου, στο οικοδομικό τετράγωνο 449. |
Β. Ο Δήμος Νέας Ιωνίας δεν κίνησε καμία διαδικασία σε εκτέλεση των πιο πάνω αναφερομένων δικαστικών αποφάσεων, οι προβλεπόμενες δε από το νόμο αποκλειστικές προθεσμίες έχουν προ πολλού παρέλθει άπρακτες. Ως εκ τούτου έχει ισχύ η παράγραφος 12 του άρθρου 32 του νόμου 4067/2012, όπως τροποποιήθηκε και ισχύει με το άρθρο 3 παράγραφος 2 του νόμου 4315/2014.
Γ. Σύμφωνα με την οίκοθεν 197835/11-10-2018 εισήγηση της υπηρεσίας προς το Συμβούλιο Πολεοδομικών Θεμάτων και Αμφισβητήσεων Περιφερειακής Ενότητας Βόρειου Τομέα, προτείνεται:
α) Η άρση απαλλοτρίωσης που επιβλήθηκε στις ιδιοκτησίες 3, 5, 14, 15 και 16 εντός του οικοδομικού τετραγώνου 449 με την με αριθμό 27852/805/1989 απόφαση Νομάρχη Ανατολικής Αττικής (ΦΕΚ 750/Δ/1989) για τον χαρακτηρισμό μέρους αυτού σε χώρο παιδικής χαράς,
β) Η τροποποίηση του ρυμοτομικού σχεδίου, με το χαρακτηρισμό όλου του τμήματος του οικοδομικού τετραγώνου 449 που τροποποιήθηκε με την με αριθμό 27852/805/1989 απόφαση Νομάρχη Ανατολικής Αττικής (ΦΕΚ 750/Α/1989), από χώρο παιδικής χαράς σε οικοδομήσιμο χώρο, χωρίς να υποχρεούνται οι ιδιοκτήτες σε εισφορά σε γη.
γ) Η διαβίβαση του τοπογραφικού διαγράμματος στον Δήμο για την κατά νόμο ανάρτηση, δεδομένου ότι, ύστερα από μελέτη του φακέλου διαπιστώθηκε ότι δεν συντρέχουν, κατά την ισχύουσα νομοθεσία, οι προϋποθέσεις:
α. Τεκμηρίωσης της πολεοδομικής ανάγκης διατήρησης της υπό άρση ιδιοκτησίας.
β. Πιστοποίησης της δυνατότητας για άμεση αποζημίωση των ιδιοκτησιών.
Δ. Το Συμβούλιο Πολεοδομικών Θεμάτων και Αμφισβητήσεων Περιφερειακής Ενότητας Βόρειου Τομέα, στην από 20-12-2018 συνεδρίασή του (πρακτικό 11ο, Θέμα 4), γνωμοδότησε ομόφωνα υπέρ της άρσης απαλλοτρίωσης με τροποποίηση του ρυμοτομικού σχεδίου σε τμήματα του οικοδομικού τετραγώνου 449 του Νέας Ιωνίας, σύμφωνα με την εισήγηση της Διεύθυνσης Χωρικού Σχεδιασμού.
Ε. Ο Δήμος Νέας Ιωνίας τήρησε τη διαδικασία δημοσιοποίησης της τροποποίησης του εγκεκριμένου ρυμοτομικού σχεδίου, σύμφωνα με τις διατάξεις του Κώδικα Βασικής Πολεοδομικής Νομοθεσίας (ΦΕΚ 580/Δ/1999), άρθρο 154, και του άρθρου 3 του από 17-07-1923 νομοθετικού διατάγματος, όπως συμπληρώθηκε με την παράγραφο 3 του άρθρου 13 του νόμου 3212/2003 (ΦΕΚ 308/Δ/2003).
ΣΤ. Η εν λόγω τροποποίηση είναι όλως εντοπισμένη, δεν ευρίσκεται επί Βασικού Οδικού Δικτύου, ούτε σε περιοχή ιδιαιτέρου φυσικού κάλλους ή χαρακτηρισμένη ως διατηρητέου περιβαλλοντικού ενδιαφέροντος, ή κηρυγμένου αρχαιολογικού χώρου και σύμφωνα με το άρθρο 186 του νόμου 3852/2010 (ΦΕΚ 87/Α/2010), καθώς και την 29829/2012 εγκύκλιο 10/2012 του Υπουργείου Περιβάλλοντος, Ενέργειας και Κλιματικής Αλλαγής (ΑΔΑ: Β4ΛΔ0ΛΔ2), εγκρίνεται με απόφαση Περιφερειάρχη Αττικής.
Ζ. Με την προτεινόμενη τροποποίηση ρυμοτομικού σχεδίου δεν προκαλείται δαπάνη σε βάρος του προϋπολογισμού του Δήμου Νέας Ιωνίας και του κρατικού προϋπολογισμού, αποφασίζουμε:
1. Την άρση απαλλοτρίωσης που επιβλήθηκε στις ιδιοκτησίες 3, 5, 14, 15 και 16 εντός του οικοδομικού τετραγώνου 449, με την με αριθμό 27852/805/1989 απόφαση Νομάρχη Ανατολικής Αττικής (ΦΕΚ 750/Δ/1989) για τον χαρακτηρισμό μέρους αυτού σε χώρο παιδικής χαράς.
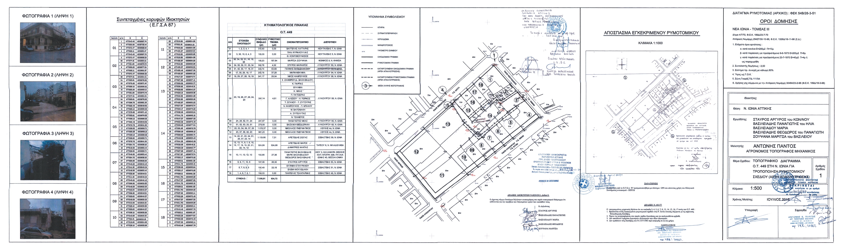
2. Την τροποποίηση του ρυμοτομικού σχεδίου, με το χαρακτηρισμό όλου του τμήματος του οικοδομικού τετραγώνου 449 που τροποποιήθηκε με την 27852/805/1989 απόφαση Νομάρχη Ανατολικής Αττικής (ΦΕΚ 750/Δ/1989), από χώρο παιδικής χαράς σε οικοδομήσιμο χώρο, χωρίς να υποχρεούνται οι ιδιοκτήτες σε εισφορά σε γη, όπως η παραπάνω ρύθμιση φαίνεται στο τοπογραφικό διάγραμμα κλίμακας 1:500 που συνοδεύει την παρούσα.
3. Τον καθορισμό όρων και περιορισμών δόμησης καθώς και χρήσεων γης στο νέο οικοδομήσιμο τμήμα του οικοδομικού τετραγώνου 449, σύμφωνα με τους ισχύοντες της περιοχής.
Συγκεκριμένα:
Κατά τα λοιπά ισχύουν οι όροι και περιορισμοί δόμησης της περιοχής, καθώς και οι ισχύουσες διατάξεις του Νέου Οικοδομικού Κανονισμού (νόμος 4067/2012 (ΦΕΚ 79/Α/2012)), όπως τροποποιήθηκε και ισχύει.
Χρήσεις γης: Σύμφωνα με την 30464/1998 απόφαση Νομάρχη Αθηνών (ΦΕΚ 169/Δ/1998).
4. Η ισχύς της απόφασης αρχίζει από την ημερομηνία δημοσίευσής της στην Εφημερίδα της Κυβερνήσεως.
5. Επιτρέπεται η υποβολή προσφυγής στον Γενικό Γραμματέα Αποκεντρωμένης Διοίκησης Αττικής μέχρι συστάσεως της αυτοτελούς Υπηρεσίας εποπτείας οργανισμών τοπικής αυτοδιοίκησης (Ελεγκτής Νομιμότητας), μόνο για παράβαση νόμου, σύμφωνα με τις διατάξεις του άρθρου 227 του νόμου 3852/2010 (ΦΕΚ 87/Α/2010) και σε προθεσμία 15 ημερών, από την δημοσίευσή της στην Εφημερίδα της Κυβερνήσεως.
6. Μετά τη δημοσίευση της παρούσας στο ΦΕΚ, αυτή αναρτάται στο πρόγραμμα Διαύγεια.

Η απόφαση αυτή να δημοσιευθεί στην Εφημερίδα της Κυβερνήσεως.
Αθήνα, 21-04-2020
Ο Εντεταλμένος Περιφερειακός Σύμβουλος