| Συνδεθείτε στην Υπηρεσία Νομοσκόπιο | | | | | Νέοι χρήστες | | Εάν είστε νέος χρήστης, θα πρέπει να δημιουργήσετε ένα ΔΩΡΕΑΝ λογαριασμό προκειμένου να φύγει το παράθυρο αυτό και να αποκτήσετε πλήρη πρόσβαση στην υπηρεσία Νομοσκόπιο. | | Δημιουργία νέου λογαριασμού | | |
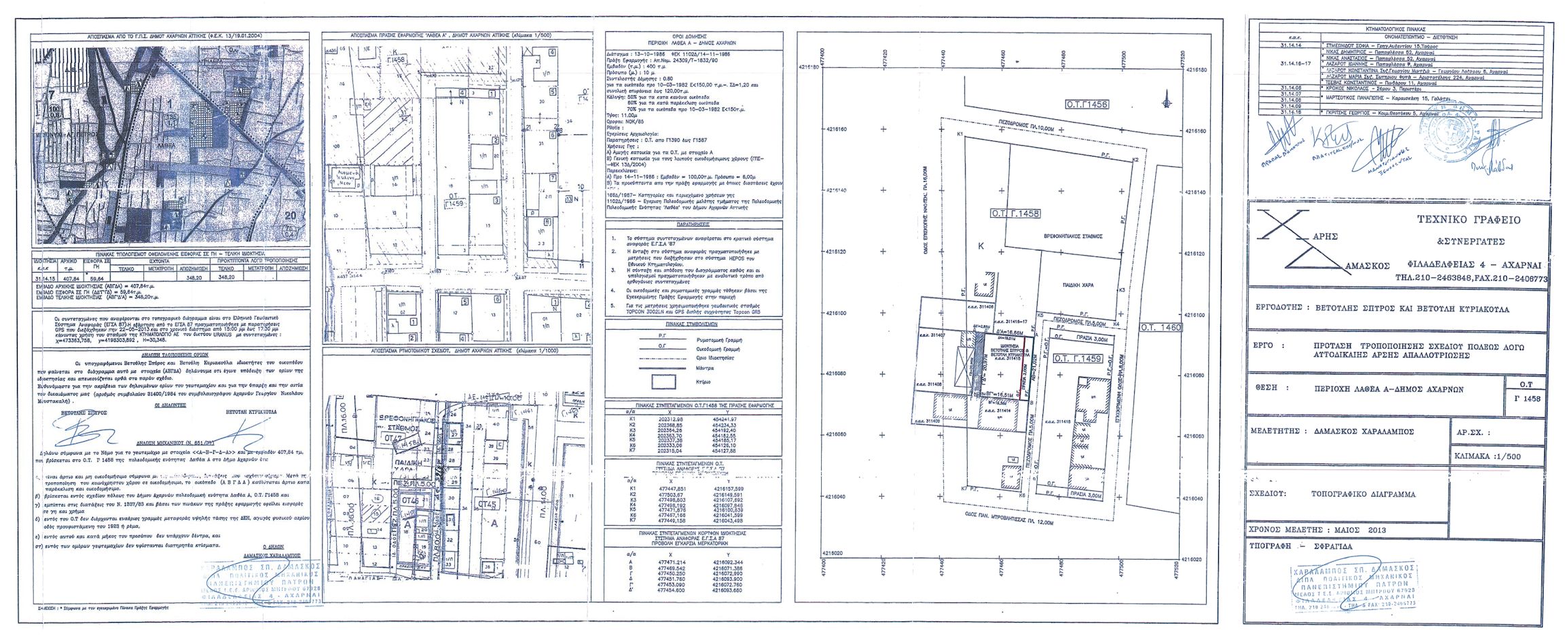
Απόφαση 62948/2016: Άρση απαλλοτρίωσης, στην ιδιοκτησία Βετούλη Σπυρίδωνα και Κυριακούλας, σε συμμόρφωση της Διοίκησης με την αριθμ. 12602/2008 απόφαση του Διοικητικού Πρωτοδικείου Αθηνών και τροποποίηση του εγκεκριμένου ρυμοτομικού σχεδίου, στο οικοδομικό τετράγωνο Γ1458, της Πολεοδομικής Ενότητας ΛΑΘΕΑ Α', του Δήμου Αχαρνών, νομού Αττικής, (ΦΕΚ 138/ΑΑΠ/2016), 19-07-12016.
Ο Εντεταλμένος Περιφερειακός Σύμβουλος Αττικής
Έχοντας υπόψη:
1. Τις διατάξεις του νόμου 3852/2010 (ΦΕΚ 87/Α/2010) για τη Νέα Αρχιτεκτονική της Αυτοδιοίκησης και της Αποκεντρωμένης Διοίκησης - Πρόγραμμα Καλλικράτης, άρθρο 186, παράγραφος ΣΤ.39.
2. Τις διατάξεις του προεδρικού διατάγματος 145/2010 (ΦΕΚ 238/Α/2010) για τον Οργανισμό Περιφέρειας Αττικής, όπως τροποποιήθηκε με την 44403/2011 απόφαση Υπουργού Εσωτερικών (ΦΕΚ 2494/Β/2011), όπως τροποποιήθηκε με την 44403/2011 (ΦΕΚ 2494/Β/2011) απόφαση Υπουργού Εσωτερικών και ισχύει.
3. Την υπ' αριθμόν οίκοθεν 234321/2014 (ΦΕΚ 3203/Β/2014) απόφαση Περιφερειάρχη Αττικής Μεταβίβαση αρμοδιοτήτων σε Αντιπεριφερειάρχες της Περιφέρειας Αττικής, σε Περιφερειακούς Συμβούλους της Περιφέρειας Αττικής και παροχή εξουσιοδότησης υπογραφής Με εντολή Περιφερειάρχη σε Προϊσταμένους Διεύθυνσης, όπως ισχύει.
4. Τις διατάξεις του από 17-07-1923 νομοθετικού διατάγματος (ΦΕΚ 228/Α/1923), περί σχεδίων πόλεων, κωμών και συνοικισμών του Κράτους και οικοδομής αυτών και ειδικότερα τα άρθρα 1, 3, 7, 9 και 70 όπως μεταγενέστερα τροποποιήθηκαν και συμπληρώθηκαν.
5. Τις διατάξεις του άρθρου 34 του νόμου 1577/1985 (ΦΕΚ 240/Α/1985).
6. Τις διατάξεις του Κώδικα Βασικής Πολεοδομικής Νομοθεσίας και ειδικότερα τα άρθρα 152, 154 και 160 (ΦΕΚ 580/Δ/1999).
7. Τις διατάξεις του άρθρου 29 του νόμου 2831/2000 (ΦΕΚ 140/Α/2000), περί τροποποίησης των διατάξεων του νόμου 1577/1985 - Γενικός Οικοδομικός Κανονισμός και άλλες πολεοδομικές διατάξεις, όπως αντικαταστάθηκαν από το άρθρο 10 του νόμου 3044/2002 (ΦΕΚ 197/Α/2002), περί Μεταφοράς συντελεστού δομήσεως κ.λ.π.
8. Τις διατάξεις του νόμου 2882/2001 (ΦΕΚ 17/Α/2001) για τον Κώδικα Αναγκαστικών Απαλλοτριώσεων και του νόμου 2985/2002 (ΦΕΚ 18/Α/2002), όπως ισχύουν σήμερα.
9. Τις διατάξεις του άρθρου 29Α του νόμου 1558/1985, όπως προστέθηκε με το άρθρο 27 του νόμου 2081/1992 (ΦΕΚ 154/Α/1992), που αναφέρονται και στις διατάξεις του άρθρου 90 του Κώδικα Νομοθεσίας για την Κυβέρνηση και τα Κυβερνητικά όργανα που κυρώθηκε με το προεδρικό διάταγμα 63/2005 (ΦΕΚ 98/Α/2005).
10. Τις διατάξεις των νόμων 3937/2011 (ΦΕΚ 60/Α/2011 ), άρθρα 30 και 34 και 4030/2011 (ΦΕΚ 294/Α/2011), άρθρο 45, σχετικά με τη συγκρότηση και λειτουργία των Συμβουλίων Πολεοδομικών Θεμάτων και Αμφισβητήσεων.
11. Την υπ' αριθμόν Φ39/1895/2015 απόφαση Γενικού Γραμματέα Αποκεντρωμένης Διοίκησης Αττικής, για ανασυγκρότηση των Συμβουλίων Πολεοδομικών Θεμάτων και Αμφισβητήσεων, όπως τροποποιήθηκε με την υπ' αριθμόν Φ39/2209/2015 απόφαση του ιδίου, όπως ίσχυε κατά το χρόνο γνωμοδότησης.
12. Τις διατάξεις του νόμου 4067/2012 (ΦΕΚ 79/Α/2012) για το Νέο Οικοδομικό Κανονισμό, άρθρα 31 και 32, όπως τροποποιήθηκαν και ισχύουν.
13. Τις διατάξεις του νόμου 3469/2006 (ΦΕΚ 131/Α/2006) Εθνικό Τυπογραφείο, Εφημερίδα της Κυβερνήσεως και λοιπές διατάξεις και ειδικότερα τα άρθρα 5, 6 και 7 (παράγραφος 5)β).
14. Την υπ' αριθμόν 366/2004 απόφαση Υπουργού Περιβάλλοντος, Χωροταξίας και Δημοσίων Έργων για Τροποποίηση γενικού πολεοδομικού σχεδίου του Δήμου Αχαρνών (νομού Αττικής).
15. Το από 13-10-1986 προεδρικό διάταγμα (ΦΕΚ 1102/Δ/1986) με το οποίο εγκρίθηκε η πολεοδομική μελέτη της περιοχής, έτσι όπως τροποποιήθηκε και ισχύει μέχρι σήμερα.
16. Την υπ' αριθμόν 24930/ΤΑ-1832/1990 απόφαση Νομάρχη Ανατολικής Αττικής, με την οποία κυρώθηκε η υπ' αριθμόν 1η πράξη εφαρμογής του Ρυμοτομικού σχεδίου, στην περιοχή ΛΑΘΕΑ Α' του Δήμου Αχαρνών, Αττικής.
17. Την υπ' αριθμόν 12602/2008 απόφαση του Διοικητικού Πρωτοδικείου Αθηνών (Τμήμα 18° Τριμελές).
18. Την από 02-05-2014 εισήγηση του Τμήματος Πολεοδομικών Θεμάτων της Υπηρεσίας μας προς το Συμβούλιο Πολεοδομικών Θεμάτων και Αμφισβητήσεων Περιφερειακής Ενότητας Ανατολικής Αττικής.
19. Την από 09-07-2015 (πρακτικό 5ο, θέμα 3ο) γνωμοδότηση του Συμβουλίου Πολεοδομικών Θεμάτων και Αμφισβητήσεων Περιφερειακής Ενότητας Ανατολικής Αττικής.
20. Τα νόμιμα δικαιολογητικά που περιέχονται στο φάκελο της υπόθεσης.
Και επειδή:
1. Σύμφωνα με την από 02-05-2014 εισήγηση της Διεύθυνσης Χωρικού Σχεδιασμού (Τμήμα Πολεοδομικών Θεμάτων) προς το Συμβούλιο Πολεοδομικών Θεμάτων και Αμφισβητήσεων Περιφερειακής Ενότητας Ανατολικής Αττικής, πρέπει να γίνει δεκτή η αιτούμενη άρση απαλλοτρίωσης με τροποποίηση του εγκεκριμένου ρυμοτομικού σχεδίου στο οικοδομικό τετράγωνο Γ 1458 της περιοχής ΛΑΘΕΑ Α' του Δήμου Αχαρνών, γιατί μετά από τη μελέτη των στοιχείων του φακέλου διαπιστώθηκε ότι:
α) για την ιδιοκτησία με στοιχεία ΑΒΓΔΑ (κ.α. 311415) έχει εκδοθεί η υπ' αριθμόν 12602/2008 απόφαση του Διοικητικού Πρωτοδικείου Αθηνών, η οποία είναι αμετάκλητη και υποχρεωτικά εκτελεστή για τη Διοίκηση (νόμος 3068/2002).
β) Πληρούνται οι προϋποθέσεις του από 17-07-1923 νομοθετικού διατάγματος, του Κώδικα Αναγκαστικών Απαλλοτριώσεων νόμος 2882/2001, όπως τροποποιήθηκε και ισχύει, του νόμου 4067/2012 όπως τροποποιήθηκε και ισχύει και αυτών που τίθενται από την πάγια νομολογία του Συμβουλίου της Επικρατείας (ΣτΕ 3284/1986, 3805/1987, 3311/1989, 5905/1995, 3642/1998 κ.α.).
2. Σύμφωνα με την από 09-07-2015 (πρακτικό 5ο, θέμα 3ο) γνωμοδότηση του Συμβουλίου Πολεοδομικών Θεμάτων και Αμφισβητήσεων Περιφερειακής Ενότητας Ανατολικής Αττικής, αυτό γνωμοδότησε ομόφωνα:
| • | για την άρση της απαλλοτρίωσης στο τμήμα της ιδιοκτησίας των Βετούλη Σπυρίδωνα και Κυριακούλας, εμβαδού 348,20 m2, που βρίσκεται στο οικοδομικό τετράγωνο Γ1458(κ) της Πολεοδομικής Ενότητας ΛΑΘΕΑ Α, του εγκεκριμένου ρυμοτομικού σχεδίου του Δήμου Αχαρνών (νομού Αττικής) σε συμμόρφωση της διοίκησης προς την υπ' αριθμόν 12602/2008 απόφαση του Διοικητικού Πρωτοδικείου Αθηνών. |
| • | την τροποποίηση του εγκεκριμένου ρυμοτομικού σχεδίου για: |
α) τον αποχαρακτηρισμό από κοινόχρηστο χώρο σε οικοδομήσιμο, τμήματος του οικοδομικού τετραγώνου Γ1458, εμβαδού 348,20 m2, προκειμένου η ιδιοκτησία των Βετούλη Σπυρίδωνα και Κυριακούλας να καταστεί οικοδομήσιμη,
β) τη θεσμοθέτηση 4 m λωρίδας προκηπίου, στο πρόσωπο του οικοπέδου επί του πεζοδρόμου,
γ) της θεσμοθέτησης όρων και περιορισμών δόμησης για το νέο οικόπεδο στο οικοδομικό τετράγωνο Γ1458, όπως αυτοί ισχύουν σήμερα στην ευρύτερη περιοχή (ΦΕΚ 1102/Δ/1986).
3. Η εισφορά σε γη του άρθρου 11 του νόμου 3212/2003 υπολογίζεται σε 59,54 m2 και διατίθεται για τη δημιουργία κοινόχρηστου χώρου (σαν τμήμα του θεσμοθετημένου κοινόχρηστου χώρου), και απεικονίζεται με στοιχεία ΔΔ'ΓΓ'Δ στο συνοδεύουν τοπογραφικό διάγραμμα, αποφασίζουμε:
1) Την άρση της απαλλοτρίωσης, στη φερόμενη ιδιοκτησία Βετούλη Σπυρίδωνα και Κυριακούλας που βρίσκεται στο οικοδομικό τετράγωνο Γ 1458 του εγκεκριμένου ρυμοτομικού σχεδίου της Πολεοδομικής Ενότητας ΛΑΘΕΑ Α του Δήμου Αχαρνών, νομού Αττικής, σε συμμόρφωση της Διοίκησης, προς την υπ' αριθμόν 12602/2008 απόφαση του Διοικητικού Πρωτοδικείου Αθηνών, 2) Την τροποποίηση του εγκεκριμένου ρυμοτομικού σχεδίου, όπως φαίνεται στο τοπογραφικό διάγραμμα που συνοδεύει την παρούσα και πιο συγκεκριμένα:
α) Τον αποχαρακτηρισμό από κοινόχρηστο σε οικοδομήσιμο χώρο, τμήματος 348,20 m2, του οικοδομικού τετραγώνου Γ1458, στη θέση της επίμαχης ιδιοκτησίας,
β) τη θεσμοθέτηση τετράμετρης (4 m) λωρίδας προκηπίου, στο πρόσωπο του οικοπέδου επί του πεζοδρόμου,
γ) τη θεσμοθέτηση όρων και περιορισμών δόμησης για το νέο οικόπεδο στο οικοδομικό τετράγωνο Γ1458, όπως αυτοί ισχύουν σήμερα στην ευρύτερη περιοχή (ΦΕΚ 1102/Δ/1986),
δ) την επιβολή εισφοράς σε γη εις βάρος της ιδιοκτησίας των Βετούλη Σπυρίδωνα και Κυριακούλας επιφάνειας 59,54 m2, η οποία διατίθεται για τη δημιουργία κοινόχρηστου χώρου (σαν τμήμα του θεσμοθετημένου κοινόχρηστου χώρου), και απεικονίζεται με στοιχεία ΔΔ'ΓΓ'Δ στο συνοδεύουν τοπογραφικό διάγραμμα.
Η ισχύς της απόφασης αυτής αρχίζει από την ημερομηνία δημοσίευσής της στην Εφημερίδα της Κυβερνήσεως.
Επιτρέπεται η υποβολή προσφυγής κατά της απόφασης αυτής, στον Γενικό Γραμματέα της Αποκεντρωμένης Διοίκησης Αττικής, μέχρι συστάσεως της αυτοτελούς εποπτείας οργανισμών τοπικής αυτοδιοίκησης (Ελεγκτής Νομιμότητας) μόνο για παράβαση του Νόμου, σύμφωνα με τις διατάξεις του άρθρου 227 του νόμου 3852/2010 (ΦΕΚ 87/Α/2010) και σε προθεσμία 15 ημερών, από τη δημοσίευσή της στην Εφημερίδα της Κυβερνήσεως.

Η απόφαση αυτή θα αναρτηθεί στο διαδίκτυο (Πρόγραμμα Διαύγεια), μετά τη δημοσίευσή της στην Εφημερίδα της Κυβερνήσεως.
Η απόφαση αυτή με το συνοδεύον τοπογραφικό διάγραμμα να δημοσιευθούν στην Εφημερίδα της Κυβερνήσεως.
Αθήνα, 28-08-2016
Ο Εντεταλμένος Περιφερειακός Σύμβουλος