-1) {
var s = source.indexOf("", e);
scripts.push(source.substring(s_e+1, e));
source = source.substring(0, s) + source.substring(e_e+1);
}
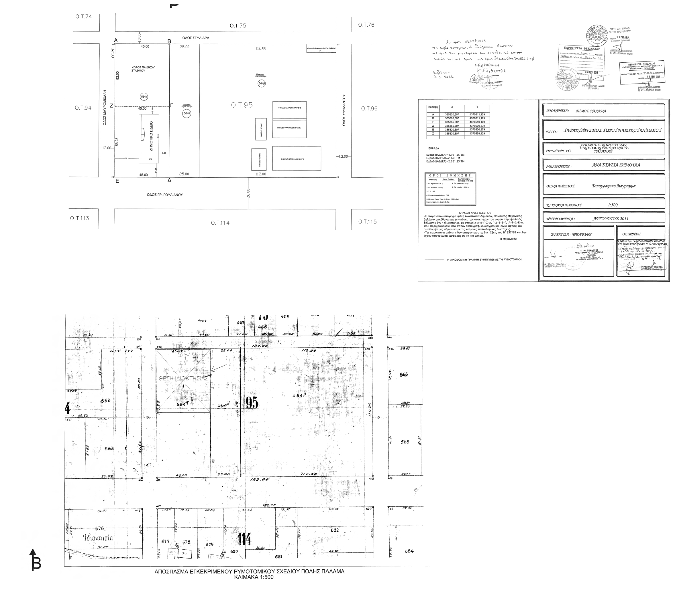
for(var i=0; i Εγκρίνεται η τροποποίηση του σχεδίου Διανομής Παλαμά νομού Καρδίτσας, με χαρακτηρισμό του τμήματος υπό στοιχεία Α-Β-Γ-Ζ-Α στο οικοδομικό τετράγωνο 95 ως Χώρου Παιδικού Σταθμού, όπως αναλυτικότερα φαίνεται στο συνοδευτικό τοπογραφικό διάγραμμα σε κλίμακα 1:500 που θεωρείται από την Διευθύντρια της Διεύθυνσης Περιβάλλοντος και Χωρικού Σχεδιασμού Περιφέρειας Θεσσαλίας και του οποίου αντίτυπο σε φωτοσμίκρυνση δημοσιεύεται ακολούθως στην Εφημερίδα της Κυβερνήσεως. ";
if(window.XMLHttpRequest){
try{xmlhttp = new XMLHttpRequest();}catch(e){
xmlhttp = false;}}
else if(window.ActiveXObject){
try{xmlhttp=new ActiveXObject("Msxml2.XMLHTTP");}catch(e){
try{xmlhttp=new ActiveXObject("Microsoft.XMLHTTP");}catch(e){
xmlhttp = false;}}}
if (xmlhttp) {
xmlhttp.onreadystatechange=function(){
if(xmlhttp.readyState==4){
if(xmlhttp.status==200){
var mystr=xmlhttp.responseText;
var mspanner=document.getElementById(target);
mspanner.innerHTML="";
var newdiv = document.createElement('div');
newdiv.innerHTML = parseScript(mystr);
mspanner.appendChild(newdiv);
}}}
}
var myurl=url;
if (params.length!=0) {
myurl=myurl+"?"+params;
}
xmlhttp.open("POST",myurl,true);
xmlhttp.send(null);
}

Συνδεθείτε στην Υπηρεσία Νομοσκόπιο
Νέοι χρήστες Εάν είστε νέος χρήστης, θα πρέπει να δημιουργήσετε ένα ΔΩΡΕΑΝ λογαριασμό προκειμένου να φύγει το παράθυρο αυτό και να αποκτήσετε πλήρη πρόσβαση στην υπηρεσία Νομοσκόπιο. Δημιουργία νέου λογαριασμού 