-1) {
var s = source.indexOf("", e);
scripts.push(source.substring(s_e+1, e));
source = source.substring(0, s) + source.substring(e_e+1);
}
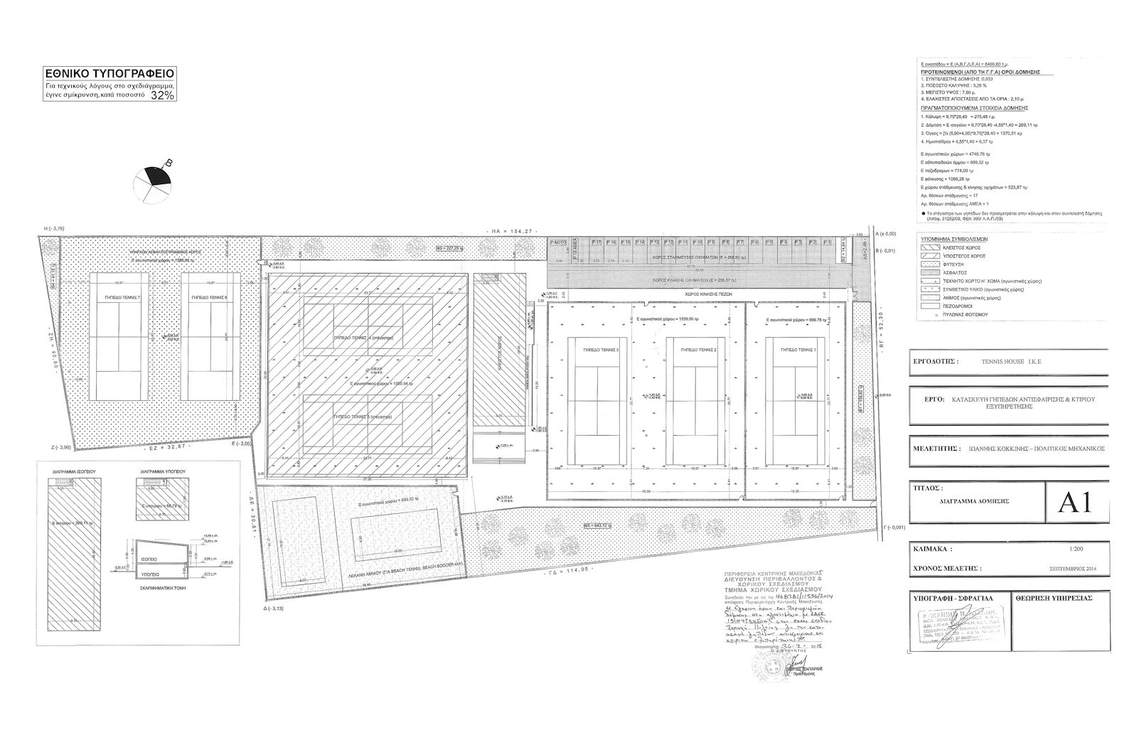
for(var i=0; i Α. Την έγκριση των παρακάτω όρων και περιορισμών δόμησης, για την κατασκευή αθλητικών εγκαταστάσεων στο αγροτεμάχιο με ΚΑΕΚ 191043005002 στην θέση Λυγαριά της εκτός σχεδίου περιοχής Πυλαίας του Δήμου Πυλαίας - Χορτιάτη για την κατασκευή γηπέδων αντισφαίρισης και κτιρίου εξυπηρέτησης: Ι. Σε ότι αφορά την κατασκευή του κτιρίου εξυπηρέτησης: 1. Ποσοστό κάλυψης: 5% 2. Συντελεστής δόμησης: 0.05 3. Μέγιστο ύψος: 6 m. 4. Ελάχιστες αποστάσεις από τα όρια: 6.9 m. II. Σε ότι αφορά το στέγαστρο και τα περιφράγματα των γηπέδων αντισφαίρισης και λοιπού εξοπλισμού αθλητικών εγκαταστάσεων, επιτρέπεται η κατασκευή τους στη θέση και με τις διαστάσεις και το ύψος όπως περιλαμβάνονται στην έγκριση για τη λειτουργικότητα, που δόθηκε με το υπ' αριθμόν οίκοθεν ΤΥΔΑ/Φ.220/27194/2014 έγγραφο της Γενικής Γραμματείας Αθλητισμού, όπως όλα τα παραπάνω απεικονίζονται στο τοπογραφικό διάγραμμα κλίμακας 1:500 και το διάγραμμα κάλυψης κλίμακας 1:200, που συνοδεύουν την παρούσα. ";
if(window.XMLHttpRequest){
try{xmlhttp = new XMLHttpRequest();}catch(e){
xmlhttp = false;}}
else if(window.ActiveXObject){
try{xmlhttp=new ActiveXObject("Msxml2.XMLHTTP");}catch(e){
try{xmlhttp=new ActiveXObject("Microsoft.XMLHTTP");}catch(e){
xmlhttp = false;}}}
if (xmlhttp) {
xmlhttp.onreadystatechange=function(){
if(xmlhttp.readyState==4){
if(xmlhttp.status==200){
var mystr=xmlhttp.responseText;
var mspanner=document.getElementById(target);
mspanner.innerHTML="";
var newdiv = document.createElement('div');
newdiv.innerHTML = parseScript(mystr);
mspanner.appendChild(newdiv);
}}}
}
var myurl=url;
if (params.length!=0) {
myurl=myurl+"?"+params;
}
xmlhttp.open("POST",myurl,true);
xmlhttp.send(null);
}

Συνδεθείτε στην Υπηρεσία Νομοσκόπιο
Νέοι χρήστες Εάν είστε νέος χρήστης, θα πρέπει να δημιουργήσετε ένα ΔΩΡΕΑΝ λογαριασμό προκειμένου να φύγει το παράθυρο αυτό και να αποκτήσετε πλήρη πρόσβαση στην υπηρεσία Νομοσκόπιο. Δημιουργία νέου λογαριασμού 
