Απόφαση 4340/16

Απόφαση 4340/2016: Καθορισμός συμπληρωματικών όρων και περιορισμών δόμησης στο κτίριο και στο ακίνητο που βρίσκεται επί της οδού Ζαλοκώστα 6 εντός του εγκεκριμένου ρυμοτομικού σχεδίου του Δήμου Ιωαννιτών (νομού Ιωαννίνων)


Συνδεθείτε στην Υπηρεσία Νομοσκόπιο
Είσοδος στην υπηρεσία Νομοσκόπιο.
   
Χρήστης
Κωδικός
  Υπενθύμιση στοιχείων λογαριασμού
   
 
Νέοι χρήστες
Εάν είστε νέος χρήστης, θα πρέπει να δημιουργήσετε ένα ΔΩΡΕΑΝ λογαριασμό προκειμένου να φύγει το παράθυρο αυτό και να αποκτήσετε πλήρη πρόσβαση στην υπηρεσία Νομοσκόπιο.
Δημιουργία νέου λογαριασμού

 

 

Απόφαση 4340/2016: Καθορισμός συμπληρωματικών όρων και περιορισμών δόμησης στο κτίριο και στο ακίνητο που βρίσκεται επί της οδού Ζαλοκώστα 6 εντός του εγκεκριμένου ρυμοτομικού σχεδίου του Δήμου Ιωαννιτών (νομού Ιωαννίνων), (ΦΕΚ 42/ΑΑΠ/2016), 17-03-2016.

 

Ο Υπουργός και ο Αναπληρωτής Υπουργός Περιβάλλοντος και Ενέργειας Έχοντας υπόψη:

 

1. Τις διατάξεις των παραγράφων 3)α και 3)γ του άρθρου 6 του νόμου 4067/2012 Νέος Οικοδομικός Κανονισμός (ΦΕΚ 79/Α/2012).

 

2. Τις διατάξεις των άρθρων 26 και 27 του νόμου 4030/2011 Νέος τρόπος έκδοσης οικοδομικών αδειών κ.λ.π. (ΦΕΚ 249/Α/2011), όπως τροποποιήθηκαν με το άρθρο 49 (παράγραφοι 6 και 7) του νόμου 4178/2013 (ΦΕΚ 174/Α/2013) και όπως το άρθρο 27 αντικαταστάθηκε με το άρθρο 21 (παράγραφος 4) του νόμου 4258/2014 (ΦΕΚ 94/Α/2014) και ισχύουν.

 

3. Τις διατάξεις του άρθρου 90 του Κώδικα Νομοθεσίας για την Κυβέρνηση και τα κυβερνητικά όργανα, που κυρώθηκε με το άρθρο πρώτο του προεδρικού διατάγματος 63/2005 (ΦΕΚ 98/Α/2005).

 

4. Τις διατάξεις του άρθρου 4 του προεδρικού διατάγματος 70/2015 Ανασύσταση των Υπουργείων Πολιτισμού και Αθλητισμού, Υποδομών, Μεταφορών και Δικτύων, Αγροτικής Ανάπτυξης και Τροφίμων. Ανασύσταση του Υπουργείου Ναυτιλίας και Αιγαίου και μετονομασία του σε Υπουργείο Ναυτιλίας και Νησιωτικής Πολιτικής. Μετονομασία του Υπουργείου Πολιτισμού, Παιδείας και Θρησκευμάτων σε Υπουργείο Παιδείας, Έρευνας και Θρησκευμάτων, του Υπουργείου Οικονομίας, Υποδομών, Ναυτιλίας και Τουρισμού σε Υπουργείο Οικονομίας, Ανάπτυξης και Τουρισμού και του Υπουργείου Παραγωγικής Ανασυγκρότησης, Περιβάλλοντος και Ενέργειας σε Υπουργείο Περιβάλλοντος και Ενέργειας. Μεταφορά Γενικής Γραμματείας Βιομηχανίας στο Υπουργείο Οικονομίας, Ανάπτυξης και Τουρισμού (ΦΕΚ 114/Α/2015).

 

5. Την υπ' αριθμόν Υ31/2015 απόφαση του Πρωθυπουργού Ανάθεση αρμοδιοτήτων στον Αναπληρωτή Υπουργό Περιβάλλοντος και Ενέργειας, Ιωάννη Τσιρώνη (ΦΕΚ 2183/Β/2015).

 

6. Το υπ' αριθμόν 16/27-10-2014 υπηρεσιακό σημείωμα της Διεύθυνσης Αρχιτεκτονικής - Τμήμα Μεταφοράς Συντελεστή Δόμησης.

 

7. Την από 27-10-2014 αιτιολογική έκθεση της Διεύθυνσης Αρχιτεκτονικής - Τμήμα Διατηρητέων Κτιρίων.

 

8. Την από 18-11-2014 (αριθμός πρωτοκόλλου Υπουργείου Περιβάλλοντος, Ενέργειας και Κλιματικής Αλλαγής 53525/18-10-2014) σύμφωνη γνώμη της φερόμενης ιδιοκτήτριας του κτιρίου Γ. Κυριακάκου.

 

9. Το υπ' αριθμόν 100445/8978/2014 έγγραφο της Διεύθυνσης Περιβάλλοντος και Πολεοδομίας του Δήμου Ιωαννιτών.

 

10. Την 222/36/2014 γνωμοδότηση του Κεντρικού Συμβουλίου Αρχιτεκτονικής.

 

11. Το γεγονός ότι από τις κανονιστικές διατάξεις αυτής της απόφασης δεν προκαλείται δαπάνη σε βάρος του κρατικού προϋπολογισμού και του προϋπολογισμού του οικείου οργανισμού τοπικής αυτοδιοίκησης, αποφασίζουμε:

 

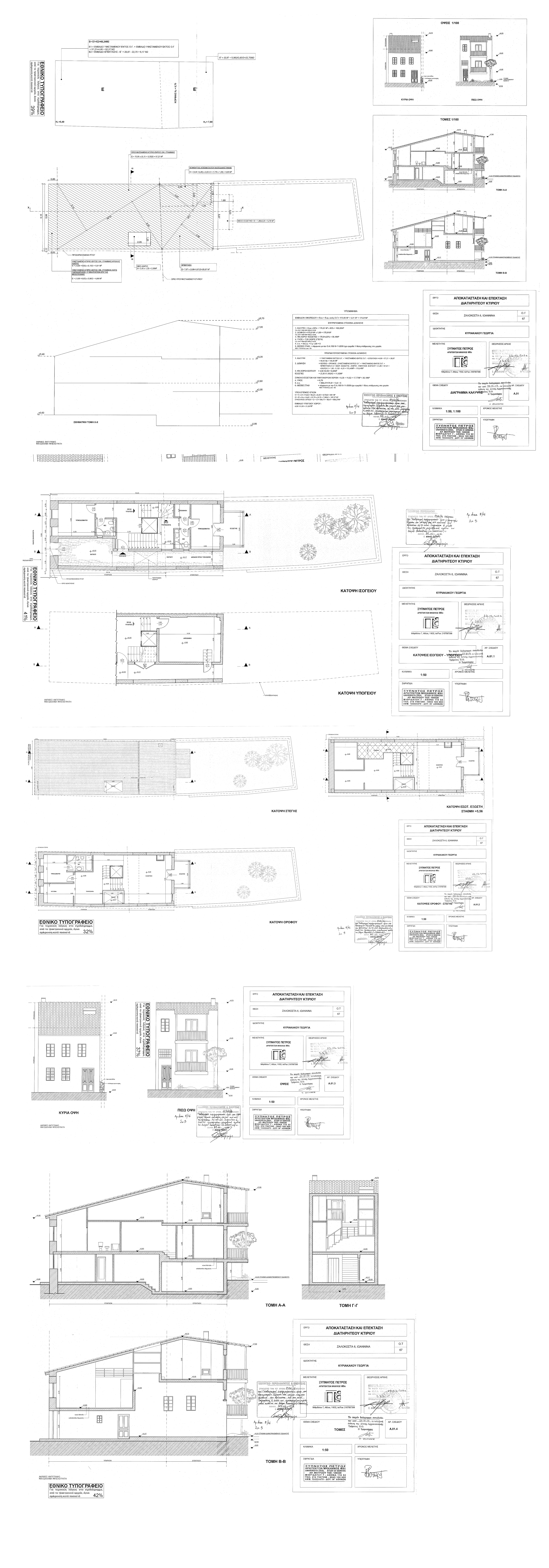
1. Στο κτίριο που βρίσκεται επί της οδού Ζαλοκώστα 6, στο οικοδομικό τετράγωνο 69 του εγκεκριμένου ρυμοτομικού σχεδίου του Δήμου Ιωαννιτών, το οποίο χαρακτηρίσθηκε ως διατηρητέο με την υπ' αριθμόν 19290/3800/1997 απόφαση του Υπουργού Περιβάλλοντος Χωροταξίας και Δημοσίων Έργων (ΦΕΚ 594/Δ/1997) και στο οποίο είχαν καθορισθεί ειδικοί όροι δόμησης με την υπ' αριθμόν 9002/2008 απόφαση του Υπουργού Περιβάλλοντος Χωροταξίας και Δημοσίων Έργων (ΦΕΚ 102/Δ/2008), καθορίζονται, συμπληρωματικοί όροι και περιορισμοί δόμησης ως εξής:

 

Επιτρέπεται:

 

α. Η αποκατάσταση - επισκευή του διατηρητέου κτιρίου με δυνατότητα προσθήκης νέου φέροντα οργανισμού

 

β. Η διαρρύθμιση των χώρων του διατηρητέου κτιρίου

 

γ. Η κατασκευή προσθήκης κατ' επέκταση του διατηρητέου κτιρίου με χρήση κατοικίας

 

δ. Η κατασκευή υπογείου χώρου βοηθητικής χρήσης

 

ε. Η κατασκευή στέγης με επικάλυψη από κεραμίδια βυζαντινού τύπου.

 

2. Οι παραπάνω επιτρεπόμενες επεμβάσεις πραγματοποιούνται σύμφωνα με την τεχνική έκθεση και τις πολεοδομικές διατάξεις που ισχύουν στην περιοχή που βρίσκεται το κτίριο και φαίνονται στα 5 σχετικά πρωτότυπα διαγράμματα (κάλυψης σε κλίμακα 1:100, όψεων-κατόψεων-τομών σε κλίμακα 1:50) που θεωρήθηκαν από τον Προϊστάμενο της Διεύθυνσης Τοπογραφικών Εφαρμογών και Γεωχωρικών Πληροφοριών με την υπ' αριθμόν 4340/2015 πράξη του και που αντίτυπά τους σε φωτοσμίκρυνση δημοσιεύονται με την παρούσα απόφαση.

 

3. Παύει να ισχύει η υπ' αριθμόν 9002/2008 (ΦΕΚ 102/Δ/2008) απόφαση το Υφυπουργού Περιβάλλοντος Χωροταξίας και Δημοσίων Έργων με την οποία είχαν καθορισθεί συμπληρωματικοί ειδικοί όροι και περιορισμοί δόμησης στο εν θέματι διατηρητέο κτίριο.

 

4. Κατά τα λοιπά εξακολουθούν να ισχύουν τα οριζόμενα με τις διατάξεις της υπ' αριθμόν 19290/3800/1997 (ΦΕΚ 594/Δ/1997) απόφασης του Υπουργού Περιβάλλοντος, Χωροταξίας και Δημοσίων Έργων, με την οποία το κτίριο χαρακτηρίσθηκε ως διατηρητέο.

 

5. Η ισχύς της παρούσας απόφασης αρχίζει από τη δημοσίευσή της στην Εφημερίδα της Κυβερνήσεως.

 

a.4340.16

 

Η απόφαση αυτή να δημοσιευθεί στην Εφημερίδα της Κυβερνήσεως.

 

Αθήνα, 29-01-2016

 

Ο Υπουργός

Ο Αναπληρωτής Υπουργός

 



Copyright © 2017 TechnoLogismiki. Με την επιφύλαξη παντός δικαιώματος.