Απόφαση 3850/17

Απόφαση 3850/2017: Τροποποίηση σχεδίου πόλης στο οικοδομικό τετράγωνο 1352 των Βορείων Συνοικιών (Χιλιάδου) της Δημοτικής Ενότητας Βόλου του Ενιαίου Δήμου Βόλου μετά την υπ' αριθμόν 3687/2012 απόφαση του Συμβουλίου της Επικρατείας


Συνδεθείτε στην Υπηρεσία Νομοσκόπιο
Είσοδος στην υπηρεσία Νομοσκόπιο.
   
Χρήστης
Κωδικός
  Υπενθύμιση στοιχείων λογαριασμού
   
 
Νέοι χρήστες
Εάν είστε νέος χρήστης, θα πρέπει να δημιουργήσετε ένα ΔΩΡΕΑΝ λογαριασμό προκειμένου να φύγει το παράθυρο αυτό και να αποκτήσετε πλήρη πρόσβαση στην υπηρεσία Νομοσκόπιο.
Δημιουργία νέου λογαριασμού

 

 

Απόφαση 3850/2017: Τροποποίηση σχεδίου πόλης στο οικοδομικό τετράγωνο 1352 των Βορείων Συνοικιών (Χιλιάδου) της Δημοτικής Ενότητας Βόλου του Ενιαίου Δήμου Βόλου μετά την υπ' αριθμόν 3687/2012 απόφαση του Συμβουλίου της Επικρατείας, (ΦΕΚ 147/ΑΑΠ/2017), 30-06-2017.

 

Ο Περιφερειάρχης Θεσσαλίας

 

Έχοντας υπόψη:

 

1. Τις διατάξεις των άρθρων 3, 186 και 283 του νόμου 3852/2010 Νέα Αρχιτεκτονική της Αυτοδιοίκησης κ.λ.π. (Καλλικράτης) (ΦΕΚ 87/Α/2010) όπως τροποποιήθηκαν, συμπληρώθηκαν, αντικαταστάθηκαν, διορθώθηκαν και ισχύουν ως σήμερα.

 

2. Το προεδρικό διάταγμα 129/2010 (ΦΕΚ 222/Α/2012) Οργανισμός της Περιφέρειας Θεσσαλίας.

 

3. Την με αριθμό πρωτοκόλλου οίκοθεν 2899/2014 (ΦΕΚ 2474/Β/2014) απόφαση του Περιφερειάρχη Θεσσαλίας με θέμα Αναπλήρωση Περιφερειάρχη Θεσσαλίας.

 

4. Τις διατάξεις του από 17-07-1923 νομοθετικού διατάγματος (ΦΕΚ 228/Α/1923) περί σχεδίων πόλεων, κωμών και συνοικισμών του Κράτους και οικοδομής αυτών όπως τροποποιήθηκαν, συμπληρώθηκαν, αντικαταστάθηκαν, διορθώθηκαν και ισχύουν ως σήμερα.

 

5. Τις διατάξεις του νόμου 1337/1983 (ΦΕΚ 33/Α/1983) όπως τροποποιήθηκαν, συμπληρώθηκαν, αντικαταστάθηκαν, διορθώθηκαν και ισχύουν ως σήμερα.

 

6. Τις διατάξεις των άρθρων 152 και 154 του από 14-07-1999 προεδρικού διατάγματος Κώδικας Βασικής Πολεοδομικής Νομοθεσίας (ΦΕΚ 580/Δ/1999).

 

7. Τις διατάξεις του άρθρου 29 του νόμου 2831/2000 (ΦΕΚ 140/Α/2000), περί τροποποίησης των διατάξεων του νόμου 1577/1985 - Γενικός Οικοδομικός Κανονισμός και άλλες πολεοδομικές διατάξεις όπως αντικαταστάθηκαν από το άρθρο 10 του νόμου 3044/2002 (ΦΕΚ 197/Α/2002) περί Μεταφοράς συντελεστού δομήσεως κ.λ.π.

 

8. Τις διατάξεις της παραγράφου 8 του άρθρου 4 του νόμου 2508/1997 όπως τροποποιήθηκαν, συμπληρώθηκαν, αντικαταστάθηκαν, διορθώθηκαν και ισχύουν ως σήμερα.

 

9. Τις διατάξεις του νόμου 4067/2012 Νέος Οικοδομικός Κανονισμός (ΦΕΚ 79/Α/2012).

 

10. Την εγκύκλιο 55/1988 Οδηγίες και προδιαγραφές για τροποποιήσεις, επεκτάσεις, ρυμοτομικών σχεδίων.

 

11. Την εγκύκλιο 18894/6/2006 (Εγκύκλιος 6/2006) Άσκηση αρμοδιοτήτων πολεοδομικού σχεδιασμού.

 

12. Την εγκύκλιο 29829/2012 (εγκύκλιος 10/2012) Αρμοδιότητες γνωμοδότησης Συμβουλίων Πολεοδομικών Θεμάτων και Αμφισβητήσεων Περιφερειακών Ενοτήτων / Περιφερειών για θέματα πολεοδομικού σχεδιασμού.

 

13. Τις διατάξεις του νόμου 4315/2014 Πράξεις εισφοράς σε γη και σε χρήμα - Ρυμοτομικές απαλλοτριώσεις και άλλες διατάξεις (ΦΕΚ 269/Α/2014).

 

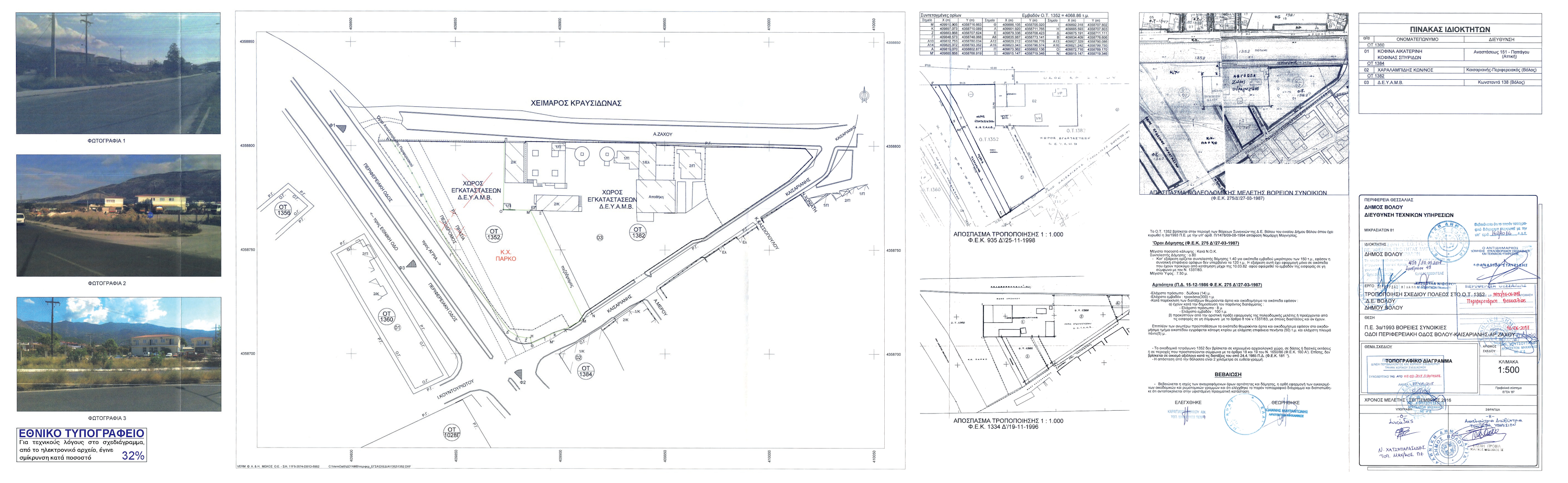
14. Το από 15-12-1986 προεδρικό διάταγμα (ΦΕΚ 275/Δ/1987) περί Έγκρισης πολεοδομικής μελέτης των Βορείων Συνοικιών του Δήμου Βόλου (νομού Μαγνησίας) και τροποποίηση του εγκεκριμένου σχεδίου σε συνεχόμενη περιοχή, με το οποίο το οικοδομικό τετράγωνο 1352 που περικλείεται από τις οδούς Α. Ζάχου Περιφερειακή Οδό - Καισαριανής, χαρακτηρίστηκε ως ΚΧ - Πάρκο.

 

15. Την υπ' αριθμόν ΤΚ/1808/1998 απόφαση του Νομάρχη Μαγνησίας (ΦΕΚ 935/Δ/1998) με την οποία ο παραπάνω χώρος χαρακτηρίστηκε ως Χώρος Εγκαταστάσεων Δημοτικής Επιχείρισης Ύδρευσης - Αποχέτευσης Μείζονος περιοχής Βόλου.

 

16. Τις υπ' αριθμόν 3687/2012, 3762/2014 και 3764/2014 αποφάσεις του Συμβουλίου της Επικρατείας.

 

17. Την από 30-04-2015 αναφορά του Σωτηρίου Γκανάτσιου.

 

18. Την Αιτιολογική Έκθεση του Τμήματος Πολεοδομικού Σχεδιασμού του Δήμου Βόλου.

 

19. Την υπ' αριθμόν πρωτοκόλλου 9200/10-12-2015 εισήγηση της Διεύθυνσης Υπηρεσίας Δόμησης του Δήμου Βόλου.

 

20. Την με αριθμό 32/2016 απόφαση της Επιτροπής Ποιότητας Ζωής του Δήμου Βόλου.

 

21. Την υπ' αριθμόν 162/2016 απόφαση του Δημοτικού Συμβουλίου του Δήμου Βόλου.

 

22. Τα Τοπογραφικά Διαγράμματα με ημερομηνία Σεπτέμβριος 2016, που συντάχθηκαν από τον Τοπογράφο Μηχανικό ΠΕ Ν. Χατζηπαρασίδη, θεωρήθηκαν από την Διεύθυνση Τεχνικών Υπηρεσιών του Δήμου Βόλου και συνοδεύουν την με αριθμό 162/2016 απόφαση του Δημοτικού Συμβουλίου Βόλου.

 

23. Την από 30-11-2016 Βεβαίωση του Αντιδημάρχου Δόμησης, Κυκλοφοριακού Σχεδιασμού και Τεχνικών Υπηρεσιών, με την οποία βεβαιώνεται ότι δεν θίγονται άρτια οικόπεδα, δεν υφίστανται μη άρτια οικόπεδα, δε θίγονται οικοδομές νομίμως υφιστάμενες και δεν προκαλείται δαπάνη σε βάρος του Δημοσίου.

 

24. Το με αριθμό πρωτοκόλλου 8443/01-12-2016 έγγραφο της Διεύθυνσης Υπηρεσίας Δόμησης του Δήμου Βόλου, με το οποίο διαβιβάστηκε στην Υπηρεσία ο φάκελος της προτεινόμενης ρύθμισης του θέματος και στο οποίο βεβαιώνεται ότι δεν υποβλήθηκαν ενστάσεις κατά της 162/2016 απόφασης Δημοτικού Συμβουλίου μέσα στη νόμιμη προθεσμία.

 

25. Το με αριθμό 10990/2016/07-03-2017 έγγραφο της Διεύθυνσης Περιβάλλοντος και Χωρικού Σχεδιασμού της Περιφέρειας Θεσσαλίας προς το Συμβούλιο Πολεοδομικών Θεμάτων και Αμφισβητήσεων Περιφερειακής Ενότητας Μαγνησίας και Σποράδων, με το οποίο διαβιβάστηκε η από 07-03-2017 εισήγηση της υπηρεσίας και το Τοπογραφικό Διάγραμμα που τη συνοδεύει.

 

26. Το απόσπασμα του πρακτικού της 4ης/30-05-2017 Συνεδρίασης του Συμβουλίου Πολεοδομικών Θεμάτων και Αμφισβητήσεων Περιφερειακής Ενότητας Μαγνησίας και Σποράδων (Πράξη 45η), με το οποίο το Συμβούλιο γνωμοδοτεί ομόφωνα υπέρ της έγκρισης της παραπάνω τροποποίησης.

 

Επειδή:

 

1. Έχουν υποβληθεί τα δικαιολογητικά όπως ορίζει η εγκύκλιος 55/1988, ο νόμος 4067/2012 και οι Καταργούμενες - Μεταβατικές Διατάξεις, άρθρο 6 του νόμου 4315/2014.

 

2. Σύμφωνα με το άρθρο 1 παράγραφος 1.3)α του από 17-07-1923 νομοθετικού διατάγματος, κάθε τροποποίηση εγκεκριμένου ρυμοτομικού σχεδίου πρέπει να κατευθύνεται από πολεοδομικά κριτήρια και να αποβλέπει στην θεραπεία πολεοδομικών αναγκών, υγιεινής, συγκοινωνίας, ασφάλειας, οικονομίας και αισθητικής, τις οποίες εμφανίζει η οικιστική ανάπτυξη και διαμόρφωση της πόλης στην εξέλιξή της.

 

3. Σύμφωνα με το άρθρο 10 παράγραφος 4)α του νόμου 3044/2002, οι τροποποιήσεις εγκεκριμένων ρυμοτομικών σχεδίων πόλεων δεν πρέπει να επιφέρουν μείωση της συνολικής επιφάνειας κοινόχρηστων χώρων, ούτε των αναγκαίων κοινωφελών χώρων σύμφωνα με τα γενικά πλαίσια χρήσεων γης (ΓΠΣ, ΣΧΟΟΑΠ). Στη συγκεκριμένη περίπτωση, σύμφωνα με τις υπ' αριθμόν 3687/2012, 3762/2014 και 3764/2014 Αποφάσεις του Συμβουλίου της Επικρατείας, αποχαρακτηρίζεται η ιδιοκτησία η οποία περικλείεται από τις οδούς Α. Ζάχου - Περιφερειακή Οδός - Καισαριανής από Χώρος Εγκαταστάσεων Δημοτικής Επιχείρισης Ύδρευσης - Αποχέτευσης Μείζονος περιοχής Βόλου και επαναχαρακτηρίζεται ως Κ.Χ. - Πάρκο με αποτέλεσμα την αξιοσημείωτη αύξηση των Κοινοχρήστων Χώρων της Πολεοδομικής Ενότητας.

 

4. Με την προτεινόμενη τροποποίηση: - μετατοπίζεται το τμήμα (Γ.Γ') του ορίου απαλλοτρίωσης της Περιφερειακής οδού στη θέση με στοιχεία (Γ.Δ.Ε.Ζ.Η.Θ.Ι.Κ.Λ.) λόγω της αναγκαιότητας εναρμόνισης των ρυμοτομικών γραμμών με την υλοποιημένη σημερινή κατάσταση, - μετατοπίζεται το τμήμα της ρυμοτομικής γραμμής κατά το τμήμα (Λ.Μ.) από την πλευρά της οδού Καισαριανής, έτσι ώστε να συμπίπτει με την εγκεκριμένη από την πολεοδομική μελέτη, ρυμοτομική γραμμή (ΦΕΚ 275/Δ/1985) η οποία κυρώθηκε με την υπ' αριθμόν 3Α/1993 πράξη Εφαρμογής της περιοχής, - επαναφέρεται ο πεζόδρομος με στοιχεία (Ν.Ξ.Μ'.Μ.) μεταξύ των οικοδομικών τετραγώνων 1352 και 1382 και - καταργείται ο πεζόδρομος και η πρασιά στο πρόσωπο με την Περιφερειακή Οδό.

 

5. Το γεγονός ότι από τις κανονιστικές διατάξεις της παρούσας απόφασης δεν προκαλείται δαπάνη σε βάρος του Κρατικού προϋπολογισμού και προϋπολογισμού του οικείου οργανισμού τοπικής αυτοδιοίκησης, αποφασίζουμε:

 

1. Την έγκριση της τροποποίησης του εγκεκριμένου σχεδίου στο οικοδομικό τετράγωνο 1352 των Βορείων Συνοικιών (Χιλιαδού) της Δημοτικής Ενότητας Βόλου του Ενιαίου Δήμου Βόλου μετά από την υπ' αριθμόν 3687/2012 απόφαση του Συμβουλίου της Επικρατείας, σύμφωνα με το εγκεκριμένο σχέδιο.

 

2. Τη διατήρηση των όρων δόμησης που ισχύουν στην περιοχή, σύμφωνα και με το 7ο σχετικό.

 

3. Η ισχύς της απόφασης αυτής αρχίζει από την δημοσίευσή της στην Εφημερίδα της Κυβερνήσεως.

 

4. Επιτρέπεται η υποβολή προσφυγής στο Γενικό Γραμματέα Αποκεντρωμένης Διοίκησης Θεσσαλίας και Στερεάς Ελλάδας μέχρι συστάσεως της αυτοτελούς Υπηρεσίας εποπτείας οργανισμών τοπικής αυτοδιοίκησης (Ελεγκτής Νομιμότητας), μόνο για Παράβαση του νόμου, σύμφωνα με τις διατάξεις του άρθρου 227 του νόμου 3852/2010 (ΦΕΚ 87/Α/2010) και σε προθεσμία 15 ημερών, από τη δημοσίευσή της ή την ανάρτησή της στο διαδίκτυο ή από την κοινοποίησή της ή αφού έλαβε γνώση αυτής.

 

Η απόφαση αυτή με το σχεδιάγραμμα που την συνοδεύει να δημοσιευθούν στην Εφημερίδα της Κυβερνήσεως.

 

a.3850.17

 

Λάρισα, 16-06-2017

 

Ο Περιφερειάρχης

 



Copyright © 2020 TechnoLogismiki. Με την επιφύλαξη παντός δικαιώματος.