| Συνδεθείτε στην Υπηρεσία Νομοσκόπιο | | | | | Νέοι χρήστες | | Εάν είστε νέος χρήστης, θα πρέπει να δημιουργήσετε ένα ΔΩΡΕΑΝ λογαριασμό προκειμένου να φύγει το παράθυρο αυτό και να αποκτήσετε πλήρη πρόσβαση στην υπηρεσία Νομοσκόπιο. | | Δημιουργία νέου λογαριασμού | | |
Απόφαση 38033/2015: Καθορισμός χρήσεων γης και όρων και περιορισμών δόμησης του Χώρου Εγκαταστάσεων Υποστήριξης σε εκτός του εγκεκριμένου ρυμοτομικού σχεδίου περιοχή του Δήμου Χαλανδρίου (νομού Αττικής) (Χώρος Εγκαταστάσεων Υποστήριξης 9 Δουκίσσης Πλακεντίας), (ΦΕΚ 201/Α/2015), 18-09-2015.
Ο Υπουργός και ο Αναπληρωτής Υπουργός Παραγωγικής Ανασυγκρότησης, Περιβάλλοντος και Ενέργειας
Έχοντας υπόψη:
1. Τις διατάξεις της παραγράφου 2)β του άρθρου δεύτερου του νόμου [Ν] 2445/1996 Κύρωση Σύμβασης Παραχώρησης της Μελέτης, Κατασκευής Αυτοχρηματοδότησης και Εκμετάλλευσης της Ελεύθερης Λεωφόρου Ελευσίνας - Σταυρού - Αεροδρομίου Σπάτων και Δυτικής Περιφερειακής Λεωφόρου Υμηττού, ρύθμιση συναφών θεμάτων και άλλες διατάξεις (ΦΕΚ 274/Α/1996).
2. Τις διατάξεις του νόμου 4269/2014 Χωροταξική και πολεοδομική μεταρρύθμιση - Βιώσιμη ανάπτυξη (ΦΕΚ 142/Α/2014) και ειδικότερα της παραγράφου 11 του άρθρου 33 αυτού, όπως η παράγραφος αυτή προστέθηκε με την παράγραφο 34 του άρθρου 28 του νόμου 4280/2014 Περιβαλλοντική αναβάθμιση και ιδιωτική πολεοδόμηση - Βιώσιμη ανάπτυξη οικισμών Ρυθμίσεις δασικής νομοθεσίας και άλλες διατάξεις (ΦΕΚ 159/Α/2014).
3. Τις διατάξεις του άρθρου 90 του Κώδικα Νομοθεσία για την Κυβέρνηση και τα κυβερνητικά όργανα, που κυρώθηκε με το πρώτο άρθρο του προεδρικού διατάγματος 63/2005 (ΦΕΚ 98/Α/2005).
4. Την υπ' αριθμόν 48658/2860/1989 απόφαση του Υπουργού Περιβάλλοντος, Χωροταξίας και Δημοσίων Έργων Έγκριση Γενικού Πολεοδομικού Σχεδίου Δήμου Χαλανδρίου (νομού Αττικής) (ΦΕΚ 419/Δ/1989), όπως ισχύει.
5. Τις διατάξεις του άρθρου 3 (παράγραφοι 1.α και 2) του προεδρικού διατάγματος 24/2015 Σύσταση και μετονομασία Υπουργείων, μεταφορά της Γενικής Γραμματείας Κοινωνικών Ασφαλίσεων (ΦΕΚ 20/Α/2015).
6. Την υπ' αριθμόν Υ19/2015 απόφαση του Πρωθυπουργού Ανάθεση αρμοδιοτήτων στον Αναπληρωτή Υπουργό Παραγωγικής Ανασυγκρότησης, Περιβάλλοντος και Ενέργειας, Κωνσταντίνο Μουσουρούλη (ΦΕΚ 1866/Β/2015).
7. Την υπ' αριθμόν 17213/2014 αίτηση του Ταμείου Αξιοποίησης Ιδιωτικής Περιουσίας του Δημοσίου ανώνυμη εταιρεία (ΤΑΙΠΕΔ).
8. Την υπ' αριθμόν 3/συνεδρίαση 2η/21-01-2015 γνωμοδότηση του Κεντρικού Συμβουλίου Πολεοδομικών Θεμάτων και Αμφισβητήσεων.
9. Το υπ' αριθμόν 16896/2015 έγγραφο Δημάρχου Χαλανδρίου με αριθμό Γραφείου Αναπληρωτή Υπουργού Παραγωγικής Ανασυγκρότησης, Περιβάλλοντος και Ενέργειας 2006/2015.
10. Το γεγονός ότι από τις κανονιστικές διατάξεις αυτής της απόφασης δεν προκαλείται δαπάνη σε βάρος του κρατικού προϋπολογισμού, αποφασίζουμε:
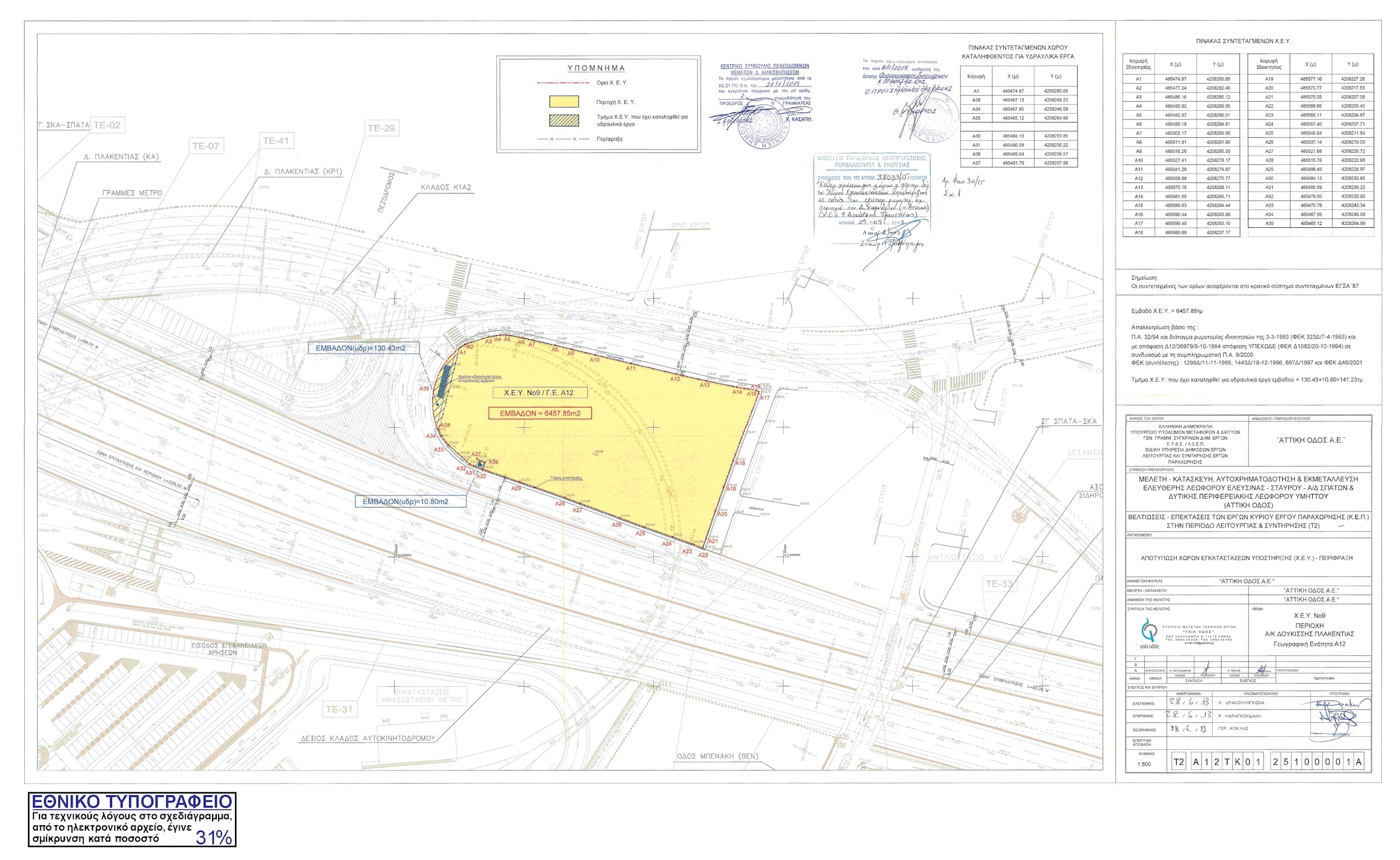
1. Στο Χώρο Εγκαταστάσεων Υποστήριξης (ΧΕΥ 9 Δουκίσσης Πλακεντίας), που βρίσκεται σε εκτός του εγκεκριμένου ρυμοτομικού σχεδίου περιοχή του Δήμου Χαλανδρίου (νομού Αττικής), όπως αυτός φαίνεται περικλεισμένος με κόκκινη εστιγμένη γραμμή στο σχετικό πρωτότυπο διάγραμμα σε κλίμακα 1:500, που θεωρήθηκε από τον Προϊστάμενο της Διεύθυνσης Τοπογραφικών Εφαρμογών και Γεωχωρικών Πληροφοριών με την υπ' αριθμόν 38033/2015 πράξη του και που αντίτυπο του σε φωτοσμίκρυνση συνδημοσιεύεται με την παρούσα απόφαση, καθορίζονται χρήσεις γης και όροι δόμησης ως εξής:
α. Χρήσεις γης
1. Χώρος μεταφόρτωσης απορριμάτων
2. ΚΔΑΥ.
3. Κτίριο στέγασης Υπηρεσίας Καθαριότητας Δήμου
4. Κτίρια - γήπεδα στάθμευσης απορριμματοφόρων Δήμου
β. Όροι δόμησης:
| • | Μέγιστος επιτρεπόμενος συντελεστής δόμησης: 0.20 |
| • | Μέγιστο επιτρεπόμενο ποσοστό κάλυψης: 20% |
| • | Ελάχιστη απόσταση κτιρίων από τη ρυμοτομική γραμμή: 10 μέτρα επί της Αττικής Οδού και 5 m από τις άλλες οδούς. |
| • | Επιτρέπεται η κατασκευή περισσότερων του ενός κτιρίων στο γήπεδο. |
| • | Απαγορεύεται η κατασκευή κτιρίων επί υποστηλωμάτων (pilotis). |
| • | Επιβάλλεται ο έλεγχος της Β' Εφορείας Προϊστορικών και Κλασικών Αρχαιοτήτων κατά την εκσκαφή των θεμελίων των οικοδομών. |
2. Η ισχύς της παρούσας απόφασης αρχίζει από τη δημοσίευσή της στην Εφημερίδα της Κυβερνήσεως.

Η απόφαση αυτή να δημοσιευθεί στην Εφημερίδα της Κυβερνήσεως.
Αθήνα, 09-09-2015
Οι Υπουργοί