| Συνδεθείτε στην Υπηρεσία Νομοσκόπιο | | | | | Νέοι χρήστες | | Εάν είστε νέος χρήστης, θα πρέπει να δημιουργήσετε ένα ΔΩΡΕΑΝ λογαριασμό προκειμένου να φύγει το παράθυρο αυτό και να αποκτήσετε πλήρη πρόσβαση στην υπηρεσία Νομοσκόπιο. | | Δημιουργία νέου λογαριασμού | | |
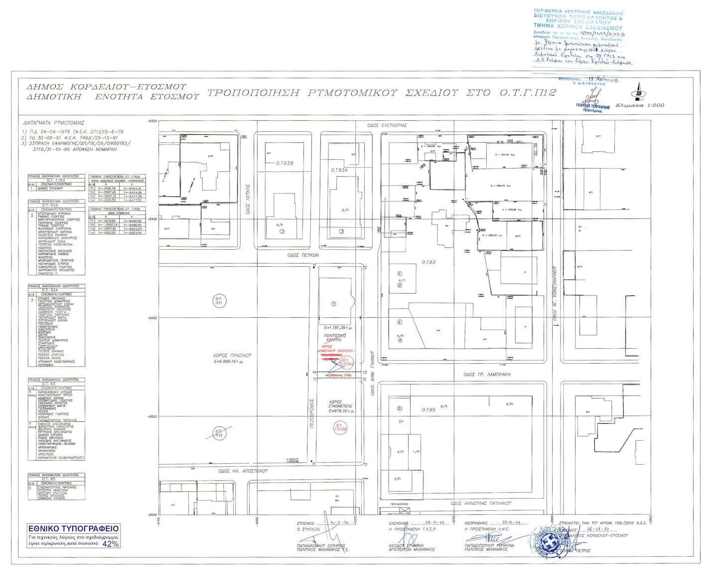
Εγκρίνεται η τροποποίηση του ρυμοτομικού σχεδίου στο οικοδομικό τετράγωνο ΓΠ12 που περικλείεται από τις οδούς Πεύκων Δ. Γληνού - Ηλία Αποστόλου - Πρωτομαγιάς της Δημοτικής Ενότητας Εύοσμου του Δήμου Κορδελιού - Εύοσμου, Περιφερειακής Ενότητας Θεσσαλονίκης ως εξής:
α) Καταργείται ο χαρακτηρισμός ΠΟΛΙΤΙΣΤΙΚΟ ΚΕΝΤΡΟ στο ενιαίο οικοδομικό τετράγωνο όπως αυτό περιγραφόταν στο από 30-09-1991 προεδρικό διάταγμα (ΦΕΚ 749/Δ/1991),
β) Δημιουργείται το οικοδομικό τετράγωνο ΓΠ12Α με κορυφές Τ1 - Τ2 - Τ3 - Τ4 και χαρακτηρίζεται ως ΧΩΡΟΣ ΔΗΜΟΤΙΚΟΥ ΣΧΟΛΕΙΟΥ,
γ) Δημιουργείται το οικοδομικό τετράγωνο ΓΠ12Β με κορυφές Τ1 - Τ2 - Τ3 - Τ4 και χαρακτηρίζεται ως ΧΩΡΟΣ ΣΤΑΘΜΕΥΣΗΣ,
δ) Δημιουργείται πεζόδρομος πλάτους 3 m μεταξύ των οικοδομικών τετραγώνων ΓΠ12Α και ΓΠ12Β και κορυφές Τ1 -Τ2-Τ3-Τ4,
ε) Καταργείται ο εκ παραδρομής και μη διαγραφείς συμβολισμός Π12 στον ενιαίο ΧΩΡΟ ΠΡΑΣΙΝΟΥ, ο οποίος προέκυψε από την πολεοδομική μελέτη που εγκρίθηκε με το από 30-09-1991 προεδρικό διάταγμα (ΦΕΚ 749/Δ/1991), και διατηρείται μόνο ο συμβολισμός Π11, όπως αυτά απεικονίζονται στο συνημμένο στην παρούσα απόφαση τοπογραφικό διάγραμμα σε κλίμακα 1:500.
