| Συνδεθείτε στην Υπηρεσία Νομοσκόπιο | | | | | Νέοι χρήστες | | Εάν είστε νέος χρήστης, θα πρέπει να δημιουργήσετε ένα ΔΩΡΕΑΝ λογαριασμό προκειμένου να φύγει το παράθυρο αυτό και να αποκτήσετε πλήρη πρόσβαση στην υπηρεσία Νομοσκόπιο. | | Δημιουργία νέου λογαριασμού | | |
Απόφαση 152456/2477/2017: Τροποποίηση Ρυμοτομικού Σχεδίου με άρση Ρυμοτομικής δέσμευσης στο οικοδομικό τετράγωνο 336 του Ρυμοτομικού Σχεδίου Λουτρακίου, Δήμου Λουτρακίου - Περαχώρας - Αγίων Θεοδώρων, (ΦΕΚ 240/ΑΑΠ/2017), 16-10-2017.
Ο Περιφερειάρχης Πελοποννήσου
Έχοντας υπόψη:
1. Το άρθρο 186 του νόμου 3852/2010 (ΦΕΚ 87/Α/2010) Νέα αρχιτεκτονική της Αυτοδιοίκησης και της αποκεντρωμένης Διοίκησης - Πρόγραμμα Καλλικράτης όπως αυτός τροποποιηθεί και ισχύει σήμερα.
2. Το προεδρικό διάταγμα 131/2010 (ΦΕΚ 224/Α/2010) Οργανισμός της Περιφέρειας Πελοποννήσου.
3. Τις διατάξεις του από 17-07-1923 νομοθετικού διατάγματος (ΦΕΚ 228/Α/1923), όπως τροποποιήθηκε και Ισχύει σήμερα.
4. Τα άρθρα 18 και 19 του από 03-04-1929 προεδρικού διατάγματος περί Γενικού Οικοδομικού Κανονισμού, διατηρηθέντων εν ισχύ.
5. Το από 07-05-1936 βασιλικό διάταγμα (ΦΕΚ 205/Α/1936) όπως αυτό τροποποιήθηκε και ισχύει σήμερα περί εκτελέσεως της παραγράφου 3 του άρθρου 6 του νόμου 5269/1931.
6. Το νομοθετικό διάταγμα 690/1948 (ΦΕΚ 133/Α/1948) όπως τροποποιήθηκε και ισχύει σήμερα.
7. Τον αναγκαστικό νόμο 625/1968 περί συμπληρώσεως και τροποποιήσεως των γενικών περί σχεδίων πόλεως διατάξεις και το νομοθετικό διάταγμα [Ν] 758/1970 περί παρατάσεως της προθεσμίας της παραγράφου 3 του άρθρου 3 του αναγκαστικού νόμου 625/1968 (ΦΕΚ 283/Α/1970).
8. Τις διατάξεις του νομοθετικού διατάγματος 797/1971 περί αναγκαστικών απαλλοτριώσεων.
9. Τις διατάξεις του νόμου 1577/1985 περί Γενικού Οικοδομικού Κανονισμού του Κράτους και τις λοιπές σχετικές αυτού διατάξεις όπως αυτός έχει τροποποιηθεί και ισχύει σήμερα και ειδικότερα το άρθρο 24.
10. Τις διατάξεις του νόμου 1337/1983 (ΦΕΚ 33/Α/1983), όπως ισχύει σήμερα και των εκτελεστικών αυτού διαταγμάτων
11. Το άρθρο 10 του νόμου 3044/2002 (ΦΕΚ 197/Α/2002), όπως τροποποιήθηκε και ισχύει.
12. Την εγκύκλιο 1/1961 καθώς και το τεύχος του Υπουργείου Περιβάλλοντος, Χωροταξίας και Δημοσίων Έργων εγκύκλιος 55/1988 οδηγίες και προδιαγραφές για τροποποιήσεις και επεκτάσεις σχεδίων πόλεως
13. Την εγκύκλιο 18/2003 Αρμοδιότητες Πολεοδομικού Σχεδιασμού, όπως και την εγκύκλιο 6/2006 Άσκηση αρμοδιοτήτων Πολεοδομικού Σχεδιασμού.
14. Το άρθρο 11 του νόμου 3212/2003 (ΦΕΚ 308/Α/2003).
15. Τις διατάξεις του άρθρου 11 του νόμου 2882/2001 (ΦΕΚ 17/Α/2001) Κώδικας Αναγκαστικών Απαλλοτριώσεων Ακινήτων.
16. Τις διατάξεις του Κώδικα Βασικής Πολεοδομικής Νομοθεσίας (ΦΕΚ 580/Δ/1999) και ειδικότερα τα άρθρα 152, 154 και 160.
17. Τις διατάξεις των άρθρων 31 και 32 του νόμου 4067/2012 (ΦΕΚ 79/Α/2012) όπως έχει τροποποιηθεί και ισχύει σήμερα.
18. Το από 25-06-1979 προεδρικό διάταγμα (ΦΕΚ 367/Δ/1979) εγκρίθηκε η επέκταση του ρυμοτομικού σχεδίου Λουτρακίου Περαχώρας Νομού Κορινθίας
19. Την υπουργική απόφαση 9037/2002 (ΦΕΚ 616/Δ/2002) με την οποία εγκρίθηκε το Γενικό Πολεοδομικό Σχέδιο των οικισμών Λουτρακίου και Περαχώρας του Δήμου Λουτρακίου - Περαχώρας νομού Κορινθίας
20. Την από 03-02-2016 αίτηση των Παγώνας Βογιατζάκη του Στυλιανού και της Βαρβάρας, συζύγου Ασημάκη Θεοχάρη, Μαρίας Βογιατζάκη του Στυλιανού και της Βαρβάρας και Γεωργίου Βογιατζάκη του Στυλιανού και της Βαρβάρας.
21. Την από 08-02-2016 έκθεση ελέγχου τίτλων ιδιοκτησίας των Δικηγόρων Πέτρου Θωμαΐδη και Αθανασίου Ράπτη έχει θεωρηθεί από την Αντιπρόεδρο του Δικηγορικού Συλλόγου Κορίνθου Παναγιώτα Επιβατινού.
22. Την υπ' αριθμό 5/2004 Πράξη Αναλογισμού ρυμοτομούμενων ιδιοκτησιών στο οικοδομικό τετράγωνο Α340- Α341 και Α336 (χώρος Δημοτικού Σχολείου)του ρυμοτομικού σχεδίου πόλεως Λουτρακίου, όπως κυρώθηκε με την υπ' αριθμόν 2600/15-02-2005 απόφαση Νομάρχη Κορινθίας.
23. Την υπ' αριθμόν 1780/03-03-2016 βεβαίωση παραγράφου 2)γ, άρθρου 32 του νόμου 4067/2012, του Τμήματος Πολεοδομικών Εφαρμογών, της Διεύθυνσης Τεχνικών Υπηρεσιών και Πολεοδομίας του Δήμου Λουτρακίου - Περαχώρας - Αγίων Θεοδώρων, με την οποία βεβαιώνεται ότι: α) Δεν έχει συντελεσθεί απαλλοτρίωση επί της ιδιοκτησίας των Παγώνας Βογιατζάκη του Στυλιανού και της Βαρβάρας, συζύγου Ασημάκη Θεοχάρη, Μαρίας Βογιατζάκη του Στυλιανού και της Βαρβάρας και Γεωργίου Βογιατζάκη του Στυλιανού και της Βαρβάρας στο οικοδομικό τετράγωνο 336 ρυμοτομικού σχεδίου Λουτρακίου και β) Για την ανωτέρω ιδιοκτησία δεν συντρέχουν οι προϋποθέσεις του άρθρου 28 του νόμου 1337/1983. Η παραπάνω εκδόθηκε σε συνέχεια της από 03-02-2016 αίτησης των ιδιοκτητών.
24. Το με αριθμό πρωτοκόλλου ΕΓ./Τ5-4/6698/11-05-2016 έγγραφο του Τμήματος Απόκτησης Γης, της Διεύθυνσης Υποστήριξης Έργων, Γενικής Διεύθυνσης Έργων, Κτιριακές Υποδομές ανώνυμη εταιρεία σε απάντηση του υπ' αριθμόν 6121/07-04-2016 εγγράφου του Τμήματος Πολεοδομικών Εφαρμογών της Διεύθυνσης Τεχνικών Υπηρεσιών και Πολεοδομίας του Δήμου Λουτρακίου - Περαχώρας - Αγίων Θεοδώρων, με το οποίο γνωστοποιείται ότι δεν περιήλθε στην κυριότητα της εταιρείας Κτιριακές Υποδομές ανώνυμη εταιρεία το ακίνητο στο οικοδομικό τετράγωνο 336 ρυμοτομικού σχεδίου Λουτρακίου.
25. Το υπ' αριθμόν 286465/61290/2016 έγγραφο του Τμήματος Δομών Περιβάλλοντος, της Διεύθυνσης Τεχνικών Έργων, Περιφερειακής Ενότητας Κορινθίας Περιφέρειας Πελοποννήσου σε απάντηση του υπ' αριθμόν 19978/26-10-2016 εγγράφου της Διεύθυνσης Τεχνικών Υπηρεσιών και Πολεοδομίας του Δήμου Λουτρακίου - Περαχώρας - Αγίων Θεοδώρων, με το οποίο γνωστοποιείται ότι δεν προέκυψε κάποια σχετική με την υπόθεση πράξη Απαλλοτρίωσης.
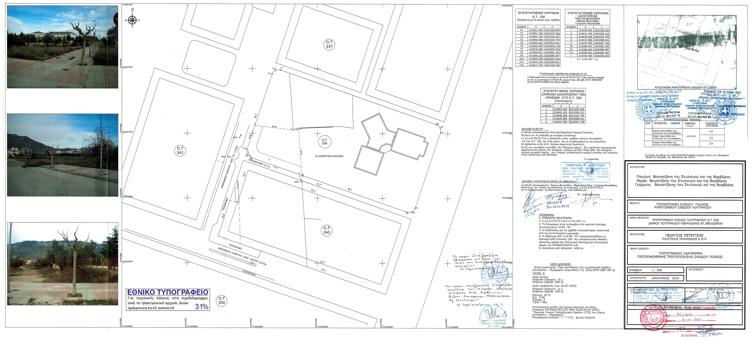
26. Την πρόταση τροποποίησης που απεικονίζεται στο από Ιανουάριο 2016 τοπογραφικό διάγραμμα κλίμακας 1:500 το οποίο συντάχθηκε από τον Γεώργιο Πετρίτση, Πολιτικό Μηχανικό, ελέγχθηκε και θεωρήθηκε στις 27-12-2016 από το Τμήμα Πολεοδομικών Εφαρμογών της Διεύθυνσης Τεχνικών Υπηρεσιών και Πολεοδομίας του Δήμου Λουτρακίου - Περαχώρας - Αγίων Θεοδώρων.
27. Το από 08-04-2016 έγγραφο της Οικονομικής Υπηρεσίας του Δήμου Λουτρακίου - Περαχώρας- Αγίων Θεοδώρων, το οποίο αναφέρει ότι δεν υπάρχει οικονομική δυνατότητα και πρόθεση του Δήμου, να εγγράψει στον προϋπολογισμό ποσό 115.933,78 € για αποζημίωση της ιδιοκτησίας των Παγώνας Βογιατζάκη του Στυλιανού και της Βαρβάρας, συζύγου Ασημάκη Θεοχάρη, Μαρίας Βογιατζάκη του Στυλιανού και της Βαρβάρας και Γεωργίου Βογιατζάκη του Στυλιανού και της Βαρβάρας, που βρίσκεται στο οικοδομικό τετράγωνο 336 του ρυμοτομικού σχεδίου Λουτρακίου.
28. Την από 28-09-2016 εισήγηση του τμήματος Πολεοδομικών Εφαρμογών της Διεύθυνσης Τεχνικών Υπηρεσιών και Πολεοδομίας του Δήμου Λουτρακίου Περαχώρας - Αγίων Θεοδώρων.
29. Την υπ' αριθμόν 37/2016 απόφαση της Επιτροπής Ποιότητας Ζωής.
30. Την υπ' αριθμόν 292/2016 απόφαση του Δημοτικού Συμβουλίου Λουτρακίου Αγίων Θεοδώρων.
31. Τη με αριθμό πρωτοκόλλου 21002/15-11-2016 Ανακοίνωση - πρόσκληση, με την οποία δημοσιοποιήθηκε η τροποποίηση. Η ανακοίνωση αυτή δημοσιεύθηκε:
α) στην εφημερίδα ΗΜΕΡΗΣΙΑ ΚΟΡΙΝΘΟΥ στις 21 και 22-11-2016, και
β) στην εφημερίδα ΚΟΡΙΝΘΙΑΚΗ ΗΜΕΡΑ στις 21 και 22-11-2016.
32. Τα έγγραφα με αριθμούς πρωτοκόλλου 21694/25-11-2016, 21695/25-11-2016 και 21704/25-11-2016 της Διεύθυνσης Τεχνικών Υπηρεσιών και Πολεοδομίας του Δήμου Λουτρακίου - Αγίων Θεοδώρων με τα οποία γνωστοποιήθηκε στους άμεσα ή έμμεσα θιγόμενους ιδιοκτήτες ότι μπορούν να λάβουν γνώση της πρότασης τροποποίησης και να υποβάλουν τυχόν ενστάσεις επί της πρότασης τροποποίησης εντός προθεσμίας 15 ημερών από την επίδοση της κοινοποίησης.
33. Το υπ' αριθμόν 23964/27-12-2016 έγγραφο της Διεύθυνσης Τεχνικών Υπηρεσιών και Πολεοδομίας του Δήμου Λουτρακίου - Περαχώρας - Αγίων Θεοδώρων βεβαιώθηκε ότι δεν ασκήθηκαν ενστάσεις επί της πρότασης τροποποίησης ρυμοτομικού σχεδίου στο οικοδομικό τετράγωνο 336.
34. Τη βεβαίωση με αριθμό πρωτοκόλλου 23964/27-12-2016 της Διεύθυνσης Τεχνικών Υπηρεσιών και Πολεοδομίας του Δήμου Λουτρακίου - Περαχώρας - Αγίων Θεοδώρων.
35. Το έγγραφο με αριθμό πρωτοκόλλου 24084/28-12-2016 του Τμήματος Τεχνικών Έργων της Διεύθυνσης Τεχνικών Υπηρεσιών του Δήμου Λουτρακίου - Αγίων Θεοδώρων με το οποίο απεστάλη ο σχετικός φάκελος τροποποίησης.
36. Τη με αριθμό πρωτοκόλλου 3186/91/29-03-2017 εισήγηση Προϊσταμένης Τμήματος Χωρικού Σχεδιασμού προς το Συμβούλιο Πολεοδομικών Θεμάτων και Αμφισβητήσεων Περιφερειακής Ενότητας Κορινθίας, η οποία διαβιβάστηκε με συνημμένο σχετικό φάκελο με το υπ' αριθμόν πρωτοκόλλου οίκοθεν 85363/1460 έγγραφο του Τμήματος Χωρικού Σχεδιασμού της Διεύθυνσης Περιβάλλοντος και Χωρικού Σχεδιασμού της Περιφέρειας Πελοποννήσου.
37. Την ομόφωνα θετική γνωμοδότηση με αριθμό 16/2017 από το πρακτικό συνεδρίασης της 04-04-2017 του Συμβουλίου Πολεοδομικών Θεμάτων και Αμφισβητήσεων Περιφερειακής Ενότητας Κορινθίας, η οποία διαβιβάστηκε με το έγγραφο με αριθμό πρωτοκόλλου 34/31-05-2017 του Συμβουλίου Πολεοδομικών Θεμάτων και Αμφισβητήσεων Περιφερειακής Ενότητας Κορινθίας.
Και επειδή:
Α. Έχει εκφραστεί, με το από 08-04-2016 έγγραφο της Διεύθυνσης Οικονομικών Υπηρεσιών του Δήμου Λουτρακίου - Αγίων Θεοδώρων, η οικονομική αδυναμία εγγραφής στον προϋπολογισμό του Δήμου της προσήκουσας αποζημίωσης για την ιδιοκτησία των Παγώνας Βογιατζάκη, Μαρίας Βογιατζάκη και Γεωργίου Βογιατζάκη.
Β. Έχει βεβαιωθεί η αυτοδίκαιη άρση της απαλλοτρίωσης για την ιδιοκτησία των Παγώνας Βογιατζάκη, Μαρίας Βογιατζάκη και Γεωργίου Βογιατζάκη σύμφωνα με τη βεβαίωση της παραγράφου 23 της παρούσας.
Γ. Δεν οφείλεται από την ιδιοκτησία εισφορά σε γη σύμφωνα με τα οριζόμενα στην παράγραφο 2)β του άρθρου 20 του νόμου 2508/1997 όπως αυτό τροποποιήθηκε και ισχύει σήμερα με το νόμο 4315/2014.
Δ. Η εν λόγω τροποποίηση μπορεί να θεωρηθεί σημειακή και εντοπισμένη.
Ε. Το γεγονός ότι από τις κανονιστικές διατάξεις της παρούσας δεν προκαλείται δαπάνη σε βάρος του προϋπολογισμού της Περιφέρειας Πελοποννήσου, αποφασίζει:
1.1 Την έγκριση της Τροποποίησης σχεδίου πόλης στο οικοδομικό τετράγωνο 336 του εγκεκριμένου ρυμοτομικού σχεδίου Λουτρακίου - Περαχώρας - Αγίων Θεοδώρων με άρση της ρυμοτομικής δέσμευσης του ανωτέρω ακινήτου. Συγκεκριμένα προτείνεται: ο αποχαρακτηρισμός και η άρση της ρυμοτομικής δέσμευσης στο γεωτεμάχιο ιδιοκτησίας των Παγώνας Βογιατζάκη του Στυλιανού και της Βαρβάρας, σύζυγος Ασημάκη Θεοχάρη, Μαρίας Βογιατζάκη του Στυλιανού και της Βαρβάρας και Γεωργίου Βογιατζάκη του Στυλιανού και της Βαρβάρας από χώρο ΚΦ σχολείου και η μετατροπή του σε οικοδομήσιμο χώρο. Το γεωτεμάχιο αυτό περιγράφεται με τα στοιχεία 1, 2, 3, 4, 5, Τ8, Τ9, Τ10, 1 στο από Ιανουάριο 2016 τοπογραφικό διάγραμμα κλίμακας 1:500 του Διπλωματούχου Πολιτικού Μηχανικού Γεωργίου Πετρίτση (και έχει ελεγχθεί από την αρμόδια Υπηρεσία του Δήμου Λουτρακίου - Περαχώρας - Αγίων Θεοδώρων) και σε αυτό προτείνεται η επιβολή προκηπίου 6 m. Το τοπογραφικό διάγραμμα υπογράφεται και συνοδεύει την παρούσα.
1.2 Για την εν λόγω ιδιοκτησία θα ισχύουν οι όροι δόμησης της όμορης περιοχής (τομέας Α του 25-06-1979 προεδρικού διατάγματος (ΦΕΚ 367/Δ/1979)) και η επιτρεπόμενη χρήση θα είναι η εκάστοτε χρήση της όμορης περιοχής, που στην παρούσα χρονική στιγμή είναι σύμφωνη με την πολεοδομική ενότητα 7 Γενικού Πολεοδομικού Σχεδίου Λουτρακίου (αμιγής κατοικία) (απόφαση 9037/2002 (ΦΕΚ 616/Δ/2002)).
1.3 Η ιδιοκτησία για την οποία γίνεται η άρση της ρυμοτομικής δέσμευσης δεν οφείλει εισφορά σε γη, σύμφωνα με τα οριζόμενα στην παράγραφο 2)β του άρθρου 20 του νόμου 2508/1997, όπως αυτό έχει τροποποιηθεί και ισχύει με το νόμο 4315/2014.
2. Η παρούσα απόφαση ισχύει από τη δημοσίευσή της στην Εφημερίδα της Κυβερνήσεως.
3. Η απόφαση αυτή να αναρτηθεί στο διαδίκτυο και να κοινοποιηθεί στο Δήμο Λουτρακίου - Περαχώρας Αγίων Θεοδώρων.

Η απόφαση αυτή να δημοσιευθεί της Εφημερίδα της Κυβερνήσεως.
Τρίπολη, 27-09-2017
Ο Περιφερειάρχης