| Συνδεθείτε στην Υπηρεσία Νομοσκόπιο | | | | | Νέοι χρήστες | | Εάν είστε νέος χρήστης, θα πρέπει να δημιουργήσετε ένα ΔΩΡΕΑΝ λογαριασμό προκειμένου να φύγει το παράθυρο αυτό και να αποκτήσετε πλήρη πρόσβαση στην υπηρεσία Νομοσκόπιο. | | Δημιουργία νέου λογαριασμού | | |
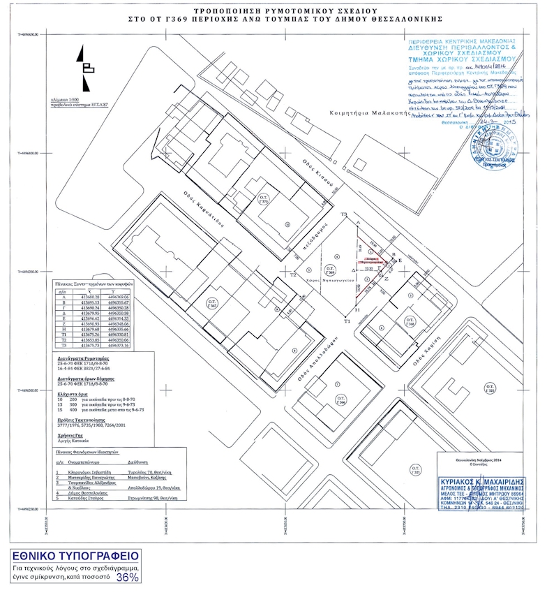
Την έγκριση της τροποποίησης του ρυμοτομικού σχεδίου Δήμου Θεσσαλονίκης, Περιφερειακής Ενότητας Θεσσαλονίκης, στο οικοδομικό τετράγωνο Γ369, που περικλείεται από τις οδούς Κισσού - Απολλοδώρου - Καρυάτιδας και ανωνύμου με:
α) τον αποχαρακτηρισμό του χώρου με στοιχεία ΑΒΕΖΗΔΑ από χώρο Νηπιαγωγείου και τον χαρακτηρισμό του σε οικοδομήσιμο χώρο, με τους αυτούς όρους και περιορισμούς δόμησης που ισχύουν στην περιοχή,
β) την επιβολή προκηπίου πλάτους 3 m στην πλευρά του οικοδομικού τετραγώνου Γ369 επί της οδού Κισσού και μόνο εντός της προς αποχαρακτηρισμό ιδιοκτησίας.
γ) την επιβολή προκηπίου πλάτους 2 m στην πλευρά του οικοδομικού τετραγώνου Γ369 επί της οδού Απολλοδώρου και μόνο εντός της προς αποχαρακτηρισμό ιδιοκτησίας.
ως συνέπεια των με αριθμούς 372/2009 και 1145/2011 αποφάσεων του Διοικητικού Πρωτοδικείου Θεσσαλονίκης όπως η ρύθμιση αυτή φαίνεται στο πρωτότυπο χρωματισμένο τοπογραφικό διάγραμμα σε κλίμακα 1:500 που θεωρήθηκε από τον Αναπληρωτή Προϊστάμενο της Διεύθυνσης Περιβάλλοντος και Χωρικού Σχεδιασμού Περιφέρειας Κεντρικής Μακεδονίας και συνοδεύει την απόφαση αυτή.
